| 标题
快捷导航

精彩推荐:MY0511客户端下载

    • 中信银行镇江分行

    • 公益体彩 乐善人生

    • 鹏龙鸿蒙

    • 天然石材·人造石

    » 梦溪论坛 » 家庭装修 » 家装毕业照幸福拍拍秀第六十五集:泰银茗园 《醉美栖居 》
    家庭装修  >  [官方活动] 家装毕业照幸福拍拍秀第六十五集:泰银茗园 《醉美栖居 》     
    查看: 48874  回复: 32
    [官方活动] 家装毕业照幸福拍拍秀第六十五集:泰银茗园 《醉美栖居 》      查看: 48874  回复: 32
    • 来自 江苏省
    • 精华 6
    • 注册 2013-5-21
    • 行业 IT 通信
    •  
    家装毕业照幸福拍拍秀第六十五集:泰银茗园 《醉美栖居 》


    【家装毕业照幸福拍拍秀】旨在与网友们共同分享你的毕业完工照,我们的口号是:你的幸福空间,我们帮你拍照留念!还希望大家多多支持哦~~

    第六十五集,我们来到网友玲珑水阁123


                                            《醉美栖居


                                                              摄影编辑:my0511小Z



                                        【小区名称】:泰银茗园


                                          【套内面积】:140+50(一楼140+半地下室50平)

                                          【房      型】:四室两厅一厨一卫

                                          【装修风格】:美法混搭

                                          【包工方式】:半包
       
                                          【装修总费用】:装修结束含家电家具总计30W左右


    玲珑水阁123家的装修日记直通车:

    告别青涩,青莲记事——美法混搭茗苑小屋
    http://bbs.my0511.com/viewthread.php?tid=4865779&extra=&highlight=&page=1



    [ 本帖最后由 my0511菲雪 于 16-1-26 14:59 编辑 ]





                      
    • 来自 江苏省
    • 精华 6
    • 注册 2013-5-21
    • 行业 IT 通信
    •  

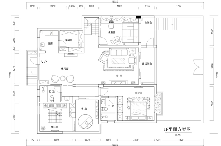
    户型图




    写在前面的话:

    三年四房,可以说玲珑水阁123已经算是家装的前辈了,所以装修起来也算得心应手,
    未拿房就已早早做起了功课,下定材料也特别早,不得不说,准备充分就会占据优势。
    因为是父母的养老房,玲珑很多地方也是征求了父母的意见,以舒适环保为前提,集

    一家人的智慧和辛劳,共同打造了泰银茗苑这个得房率很高的花园房。

    下面我们一起进入实景部分:

    [ 本帖最后由 my0511菲雪 于 16-1-15 16:34 编辑 ]




    • 来自 江苏省
    • 精华 6
    • 注册 2013-5-21
    • 行业 IT 通信
    •  

    客厅
    作为待客和家人团聚的主要空间,客厅设计了两个区域,把自然休闲体现的淋漓尽致,
    木质的护墙板与古色古香的吊灯相互呼应,皮质沙发与实木的茶几,原生态的气息蔓
    延开来。

    精致的壁炉又为其增加了一笔不一样的色彩。淡绿色的墙壁颜色清新,自然。花色的休

    闲沙发搭配在另一边,给沉闷的深色带来一丝跳跃的感觉。

    客厅两边均有窗户,通透,光线明亮。三五好友看电视聊天足矣,壁纸和实木框架相结合

    做了电视背景墙,电视柜两边分别用花架来点缀空间,优美而绿意盎然。

    整个色调以淡色系为主调,再结合些浪漫的软装元素,深色的沙发,使整个环境变得温暖轻
    柔,舒缓的线条、温暖的色彩,有着令人难以仿效的柔和质感。


    客厅比较大,功能区域划分比较多,茶水室,休闲区,卫生间,书房,连贯而不突兀。

    皮质沙发,质感十足,搭配素色靠垫,加上台灯的点缀,挂画的装饰,使整个区域空间变得
    活泼而不呆板。


    朦胧中美式搭配的吊灯美丽又灵动。



    [ 本帖最后由 my0511菲雪 于 16-1-18 16:05 编辑 ]




    • 来自 江苏省
    • 精华 6
    • 注册 2013-5-21
    • 行业 IT 通信
    •  



    橡木材质的书架,跟地板相协调,蓝绿色搭配的窗帘,拉起来就是安静的一隅。

    白色的折叠拉门大气而美观,实木的书桌,简单的台灯,书香气油然而生。

    茶水室

    在客厅和休闲的区域单独做了茶水室,用于招呼客人,自己烘焙小食,像个小小的

    厨房,充满了温暖。

    榻榻米

    榻榻米是女儿房,很特殊很有感觉,塌塌米的构造像个小房子,有栏杆,
    有古色古香的装饰,有质朴的小灯。


    中式风格的移门及升降桌,及休闲收纳于一体。

    卫生间

    卫生间的设计主旨就是干净、易打理,没有过多的装饰,却不缺失精致细节。



    [ 本帖最后由 my0511菲雪 于 16-1-18 17:00 编辑 ]




    • 来自 江苏省
    • 精华 6
    • 注册 2013-5-21
    • 行业 IT 通信
    •  

    主卧次卧

    卧室的床一眼就看中了,墙面的壁纸也是,怎么都舍弃不了,深色法式床,
    搭配浅绿色的花纹壁纸以及鸟语花香的床品,缎面绿色的窗帘,精致而美丽。


    次卧的床美式味十足,与主卧的基调有点区别,更注重了柔和和安详,老人
    暖色调更增添了宁静感,简单的条纹壁纸和花式壁纸都跟窗帘的颜色很相近。

    楼下厨房餐厅

    半地下室的空间作为餐厅,厨房和休闲区域一体,因为空间够大,显的宽敞明亮。
    圆形的大餐桌适合一家人聚会,其乐融融。

    橱柜采用了一字型加导台的设计,台面因为半地下室的缘故采用的覆膜板,
    开放
    式的厨房,是空间通透,因为窗户很多,采光很不错。

    前后花园
    前面的花园做了秋千,小孩子可以嬉戏玩耍,乐在其中。

    后面花园,有种菜的地方,也有特意挖出的小水池,户主爸爸亲力亲为做了很多
    改造,真是不容易,有风,有水,有阳光,安逸的生活也不过如此。







    家是一铺床,一张沙发,一盏灯;
    家是一个布偶,一张照片,一个水杯;
    家是空间格局的安排,光影气氛的调协;
    家是人和人的关系,
    家是身体的归宿精神的寄托
    ......
    说到底,家是心之所安----------欧阳应霁


    OVER~

    [ 本帖最后由 my0511菲雪 于 16-1-18 17:10 编辑 ]




    • 来自 江苏省
    • 精华 6
    • 注册 2013-5-21
    • 行业 IT 通信
    •  

    小编的言外话:

    不是每张毕业照小编们拍的都华丽丽

    我们都懂装修里难免有遗憾 别人家的也请不要强求完美
    何况每个人的审美也都不一样的
    没有人说要完全按照别人家的装

    所以请回帖的童鞋们不要挑刺 尊重别人的劳动成果 谢谢



    如果你写了装修日记 想给装修之旅留个纪念
    或者你觉得你家亮点多多 有很多装修经验想跟大家分享
    欢迎你联系小编 提前预约(QQ: 776280275  
    775967213 敲门暗号:想拍毕业照)

    小编会竭力帮助你的

    现在加小编微信号也可以预约哦
    扫一扫下方的二维码,加家装小编微信号
    微信号:My0511家装小蜜蜂






    • 来自 江苏省
    • 精华 4
    • 注册 2010-8-21
    • 行业 工业制造
    •  






    • 来自 江苏省
    • 精华 0
    • 注册 2015-11-22
    •  

    感觉房子超大啊




    • 来自 江苏省
    • 精华 0
    • 注册 2015-11-22
    •  

    院子很别致的感觉 看得我也想搞个秋千




    • 来自 江苏省
    • 精华 0
    • 注册 2011-5-4
    • 行业 房产建筑
    •  

    30万含家电,好厉害




    • 来自 江苏省
    • 精华 109
    • 注册 2008-12-24
    • 行业 其它
    • 吃货达人 烘焙达人 小花农
    •  






    • 来自 江苏省
    • 精华 0
    • 注册 2007-3-24
    • 行业 其它
    •  

    赞!学习了!有可能请楼主发个楼梯整图看一下~借鉴!




    • 来自 江苏省
    • 精华 0
    • 注册 2010-3-11
    • 行业 其它
    •  

    这么大的面积装修还包含家具和家电一共30W
    如果真是这样确实厉害了
    绝对是个装潢的行家或者认识内行人




    • 来自 江苏省
    • 精华 23
    • 注册 2012-12-2
    • 行业 房产建筑
    •  

    我们的作品,发上来几天了才发现,谢谢摄影师,谢谢菲雪!




    • 来自 江苏省
    • 精华 181
    • 注册 2003-7-9
    • 行业 政府行政
    • 闯关达人 资深食神 吃货达人 我们爱旅行
    •  






    • 来自 江苏省
    • 精华 1
    • 注册 2014-9-28
    •  

    哇哦,好大的房纸!




    • 来自 江苏省
    • 精华 0
    • 注册 2007-4-29
    • 行业 其它
    •  

    , 好美!




    • 来自 江苏省
    • 精华 0
    • 注册 2008-12-3
    • 行业 信息咨询
    •  






    • 来自 江苏省
    • 精华 0
    • 注册 2015-12-29
    •  

    装修的挺漂亮的  我也入手了一套茗园的房子 装修的时候可以借鉴下




    • 来自 江苏省
    • 精华 7
    • 注册 2004-6-13
    • 行业 工业制造
    •  

    厨房好棒啊,这空间在家筵席两桌毫无压力




    • 来自 江苏省
    • 精华 4
    • 注册 2006-7-29
    • 行业 其它
    •  

    不好意思,刚刚旅游回来经设计师提醒才看到自己的家已经发上来了。
    因为拍摄的时间比较仓促,家里也住了几个月了,东西比较杂乱,没有来得及整理。
    相信如果多点时间准备效果会更好点,大家多包涵。




    • 来自 江苏省
    • 精华 4
    • 注册 2006-7-29
    • 行业 其它
    •  

    关于房子,泰银茗园的得房率还是比较高的,户型设计也不错,本身不需要太大的改动,这也是当时选择这个小区最主要的原因。当然有微调,包括封闭了主入户门,改为衣帽间,由院子入户等等。这是设计师和我们共同商量出的成果,在这里也要感谢成斌设计工作室的努力。




    • 来自 江苏省
    • 精华 4
    • 注册 2006-7-29
    • 行业 其它
    •  

    关于费用,老早就超预算了,老话说得好,预算是用来超的嘛!
    整个费用应该在42万左右。




    • 来自 江苏省
    • 精华 4
    • 注册 2006-7-29
    • 行业 其它
    •  

    关于楼梯,要推荐一下,是外挂的栏杆设计,配合白色和橡木色的颜色拼色,大大扩大了原来不大的空间,减轻了压抑感,提高了实用性。




    • 来自 江苏省
    • 精华 23
    • 注册 2012-12-2
    • 行业 房产建筑
    •  






    • 来自 江苏省
    • 精华 0
    • 注册 2014-10-9
    • 行业 房产建筑
    •  






    • 来自 江苏省
    • 精华 0
    • 注册 2007-11-30
    • 行业 教育科研
    •  

    沙发漂亮,可以短下品牌和价格吗




    • 来自 江苏省
    • 精华 0
    • 注册 2010-3-12
    • 行业 政府行政
    •  

    俺们楼下一层蛮~装的确实不错~点赞!




    • 来自 江苏省
    • 精华 0
    • 注册 2006-10-13
    • 行业 其它
    •  

    高大上的榻榻米

    地址:红星美凯龙二楼
    电话:0511-88884528
    尹先生:13952860002     居先生13952858202









    • 来自 江苏省
    • 精华 0
    • 注册 2006-10-13
    • 行业 其它
    •  

    我们是镇江翔鹤心斋榻榻米,榫卯结构,全国连锁,环保嘉宝莉水性漆合作单位。镇江第一家专业和室装修。采用进口俄罗斯樟子松,并可提供报关单。




    地址:红星美凯龙二楼
    电话:0511-88884528
    尹先生:13952860002     居先生13952858202









    • 来自 江苏省
    • 精华 0
    • 注册 2006-10-13
    • 行业 其它
    •  

    高大上的榻榻米

    地址:红星美凯龙二楼
    电话:0511-88884528
    尹先生:13952860002     居先生13952858202









    查看积分策略说明快速回复主题
    您目前还是游客,请 登录注册
    您目前是游客,本帖已被系统设置了自动关闭,不可回复!

    0/5000字

     
    < >
     

    Powered by Discuz! X 2 0.087685 s 清除 Cookies - 镇江网友之家 - 手机版
    论坛导航 关闭