| 标题
快捷导航

精彩推荐:MY0511客户端下载

    • 中信银行镇江分行

    • 公益体彩 乐善人生

    • 鹏龙鸿蒙

    • 天然石材·人造石

    » 梦溪论坛 » 家庭装修 » 老有所居——老爸老妈的安置房(半清包--金泉花园三期)
    家庭装修  >  [装修日记] 老有所居——老爸老妈的安置房(半清包--金泉花园三期)     
    查看: 72604  回复: 94
     95  1/2  1  2  > 
    [装修日记] 老有所居——老爸老妈的安置房(半清包--金泉花园三期)      查看: 72604  回复: 94
    • 来自 江苏省
    • 精华 1
    • 注册 2003-10-10
    • 行业 商业贸易
    •  
    老有所居——老爸老妈的安置房(半清包--金泉花园三期)



    此帖已成功报名2016家装日记大赛更多家装信息关注MY0511家装频道

    【小区名称】:金泉花园三期
    【建筑面积】:110
    【装修风格】:新中式混搭

    【包工方式】:半清包(自己找的人,但辅材由他们购买,我指定品牌)
    【设 计 师】:本人
    【开工日期】:2016.3.12
    【装修预算】:10w以内
    【户型图】:三室一厅一卫
    年前老爸老妈的老房子由于危房改造,被伟大的人民政府产权置换了,从金山小区换到了金泉花园三期。路虽然远了,也没有原来方便了,但老房子换新房子,父母的心里还是挺开心的。居住了多年的老宅,由于地基下沉,整个楼都有点歪,而且外墙渗水,地下还有白蚁出没;虽然产权置换不如拆迁安置,老爸老妈还是爽快的签了字,搬了家。拿到了房,装修的重任就落到了做儿子的身上。回想八九年前,婚房装修,为了省钱,全部清包,也在0511写了一篇日记,自己累了个半死;前年为老丈人家装修,找了装潢公司半包,省心省力;今年,心血来潮,又准备自己来装,少花钱多办事,从量房、绘图到设计都自己来,只有施工找人。闲话少说,先上户型图,其余下回分解。
    房子是金泉花园三期的高层,由于没什么好楼层挑,考虑到采光,选择了西边的17楼,透过窗户可以看见润扬大桥和长江。去的时候光注意怎么装修了,都忘记拍拍户外的景色,下次补上。


    这是入户门,一点都不合理,靠墙弄个鞋柜都不行。
    这是厨房的门,想换到侧面,把这里改成放冰箱的,可惜侧面是承重墙,我不敢动。




    [ 本帖最后由 my0511菲雪 于 17-5-12 16:47 编辑 ]





                      
    • 来自 江苏省
    • 精华 0
    • 注册 2006-6-15
    • 行业 工业制造
    •  

    哈哈,加油




    • 来自 江苏省
    • 精华 1
    • 注册 2003-10-10
    • 行业 商业贸易
    •  

    继续。。。怎么说本人也是机械设计出身,虽然装潢设计不是特别了解,但触类旁通,尤其也不准备搞多么复杂,参考参考网上的案列,也甲嘛乐贵的鼓捣出一份装修施工图出来,虽然还没完全定稿,单总体基本算是出来了,具体细节还要和施工的师傅们商量,再修改。先来一个敲墙砌墙的,本来想把厨房门换个墙,没想到靠入户门的是个承重墙,全是钢筋混凝土,没敢动(PS:楼下也有胆子大的,开了一个门,泥玛物业也不管,只知道收钱);其它能动的就是那个储藏室了,敲掉改衣柜;这个安置房虽然号称110平方,但得房率很低,能储物的地方很少,只能自己想办法了。




    • 来自 江苏省
    • 精华 1
    • 注册 2003-10-10
    • 行业 商业贸易
    •  

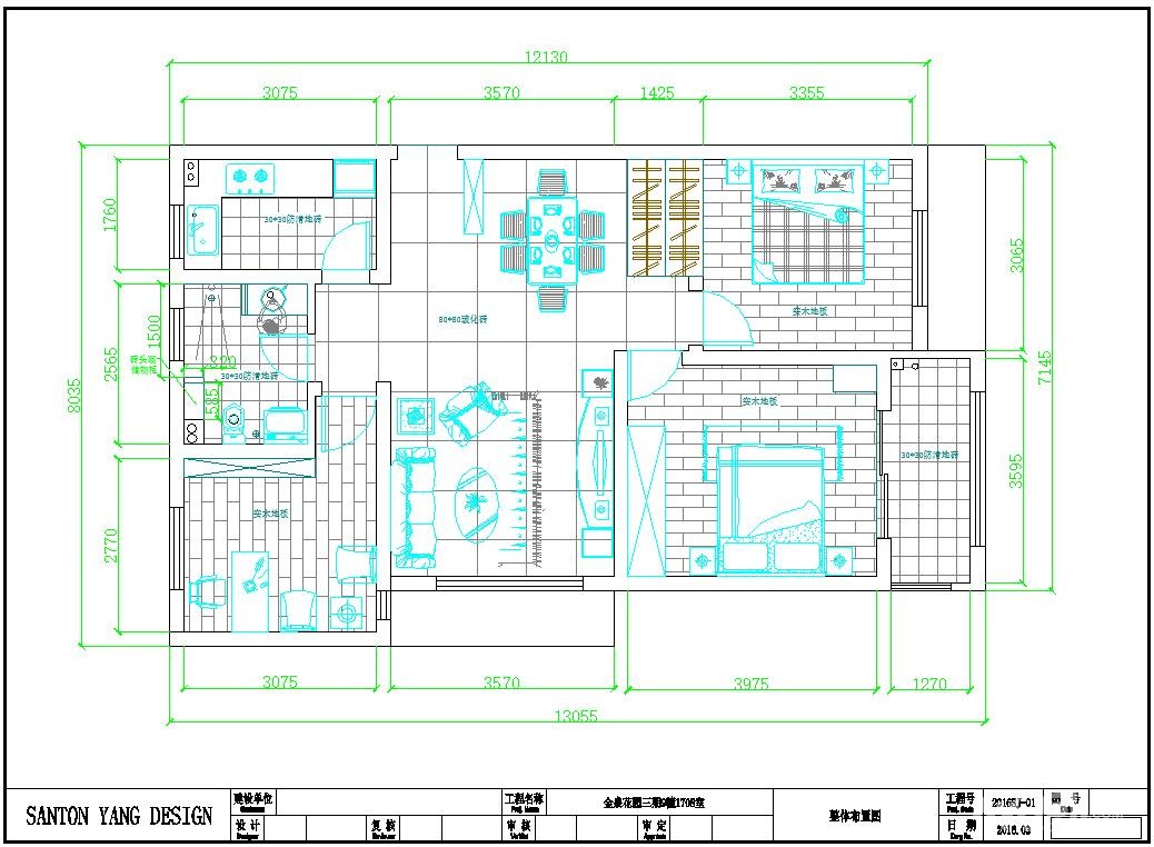
    忙里偷闲,利用空余时间,把整体布置一些图纸给搞了出来,不说了直接上图,细节再说。这个是总体布置,中规中举,也没想搞出什么花来。
    这个是地面布置,除了房间是实木地板(中意圆盘豆的颜色,老年人比较喜欢深色),其余都是瓷砖。


    顶面的布置力求简单,不想太花哨。
    开关布置,从使用角度出发,多放一点,花不了几个钱。
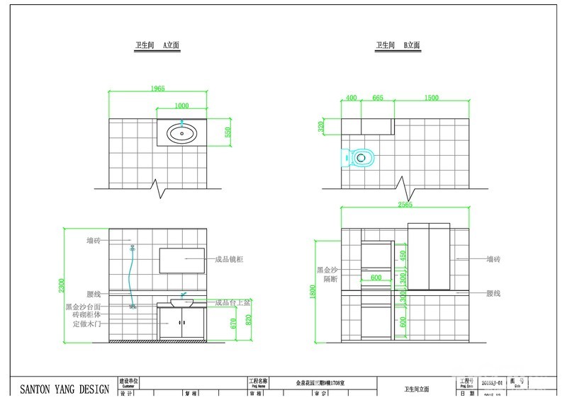
    卫生间布局不是很理想,父母年岁已高,淋浴房显得有点局促,直接开放式淋浴,可以弄个凳子坐着,也可以买个桶泡泡。同时考虑开发式的防水,浴室柜准备瓦工砌,台面上大理石,弄个台上盆。

    [ 本帖最后由 santon 于 16-3-9 14:31 编辑 ]




    • 来自 江苏省
    • 精华 0
    • 注册 2006-6-15
    • 行业 工业制造
    •  

    可以改行了




    • 来自 江苏省
    • 精华 0
    • 注册 2004-6-20
    • 行业 工业制造
    •  

    你哪怪是机械出身啊,不是水电工蛮!




    • 来自 江苏省
    • 精华 2
    • 注册 2006-4-23
    •  

    瓦匠小工哦。。。。。




    • 来自 江苏省
    • 精华 0
    • 注册 2016-3-9
    •  

    朋友 我才装好的 你早干嘛去了




    • 来自 江苏省
    • 精华 0
    • 注册 2015-9-15
    •  

    zhengzhi  yang  Design




    • 来自 上海
    • 精华 0
    • 注册 2004-1-30
    •  

    真有时间,好儿子




    • 来自 上海
    • 精华 0
    • 注册 2008-11-17
    • 行业 其它
    •  

    很有才啊




    • 来自 江苏省
    • 精华 1
    • 注册 2003-10-10
    • 行业 商业贸易
    •  

    父母退休了,年纪大了,家具喜欢一些实木的耐用的,整体风格上没什么太多要求,在网上找了些图片,客厅的风格往下面这些图上靠





    [ 本帖最后由 santon 于 16-3-9 22:39 编辑 ]




    • 来自 江苏省
    • 精华 0
    • 注册 2003-2-2
    • 行业 工业制造
    •  
    • 来自 江苏省
    • 精华 1
    • 注册 2003-10-10
    • 行业 商业贸易
    •  


    QUOTE:
    原帖由 louise_ly 于 2016-3-9 23:28 发表
    邻居
    好邻居 晒金宝 入住了吗




    • 来自 江苏省
    • 精华 1
    • 注册 2003-10-10
    • 行业 商业贸易
    •  

    今天思考了半天,为了省钱,石材就不考虑了,找个漂亮花色的瓷砖当背景墙吧,初步设计如下,希望达人们指导下,提些建议。总体布局就差不多这样了 ,地方小,不能太复杂。

    瓷砖大概就选这种风格的,地砖当墙砖用。
    两边的装饰板,往这个颜色靠,和背景颜色形成对比,不知道效果如何。




    • 来自 江苏省
    • 精华 8
    • 注册 2010-9-13
    • 行业 房产建筑
    •  

    LZ厉害呢




    • 来自 江苏省
    • 精华 0
    • 注册 2006-6-15
    • 行业 工业制造
    •  






    • 来自 江苏省
    • 精华 1
    • 注册 2003-10-10
    • 行业 商业贸易
    •  


    QUOTE:
    原帖由 宇祥装饰客服 于 2016-3-10 15:21 发表
    LZ厉害呢
    这是嘲笑我 你们是专业的




    • 来自 江苏省
    • 精华 0
    • 注册 2006-6-15
    • 行业 工业制造
    •  






    • 来自 江苏省
    • 精华 1
    • 注册 2003-10-10
    • 行业 商业贸易
    •  

    明天开工了 2016.03.12 8:18




    • 来自 江苏省
    • 精华 3
    • 注册 2009-6-11
    • 行业 其它
    •  

    能指点指点我波,清包达人




    • 来自 江苏省
    • 精华 1
    • 注册 2003-10-10
    • 行业 商业贸易
    •  


    QUOTE:
    原帖由 隐藏 于 2016-3-11 15:50 发表
    能指点指点我波,清包达人
    一起一起




    • 来自 江苏省
    • 精华 0
    • 注册 2006-6-15
    • 行业 工业制造
    •  






    • 来自 江苏省
    • 精华 1
    • 注册 2003-10-10
    • 行业 商业贸易
    •  

    今天去了房子 铲墙结束
































    • 来自 江苏省
    • 精华 1
    • 注册 2003-10-10
    • 行业 商业贸易
    •  

    经过一番权衡,又看了看一单元住户的布局,还是决定把烟道敲掉,外墙开孔排烟,这样就有地方放冰箱了。修改过后,整体布局如下图所示。





    • 来自 内蒙古
    • 精华 0
    • 注册 2005-12-29
    • 行业 其它
    •  

    视野很好,无遮挡




    • 来自 江苏省
    • 精华 0
    • 注册 2006-6-15
    • 行业 工业制造
    •  






    • 来自 江苏省
    • 精华 0
    • 注册 2006-6-15
    • 行业 工业制造
    •  

    每天一顶




    • 来自 江苏省
    • 精华 1
    • 注册 2003-10-10
    • 行业 商业贸易
    •  

    开了5个小时的车,才从浙江回来,出差一趟累死了。赶去房子看了下,师傅们在进行穿线了,估计明天就结束了,到时候来个完工图,先上几张给大家瞧瞧,手艺还是不错的。水管用的是伟星20*3.4的管子,电线用的镇江人最爱的菊花牌,线管用的是4分的啥牌子(忘记了)
    阳台的洗衣槽预留冷水管及插座
    厨房的水槽及前置的过滤器(jd买的德国霍尼韦尔)
    顶部走的水管
    穿线的师傅们


    [ 本帖最后由 santon 于 16-3-17 20:00 编辑 ]




























    • 来自 江苏省
    • 精华 0
    • 注册 2006-6-15
    • 行业 工业制造
    •  

    加油加油




    • 来自 江苏省
    • 精华 0
    • 注册 2016-2-27
    •  






    • 来自 江苏省
    • 精华 0
    • 注册 2010-3-19
    • 行业 工业制造
    •  

    杨老板棒棒的 !有才有財!




    • 来自 江苏省
    • 精华 1
    • 注册 2003-10-10
    • 行业 商业贸易
    •  

    自己给自己加油




    • 来自 江苏省
    • 精华 3
    • 注册 2009-6-11
    • 行业 其它
    •  

    还不更新




    • 来自 江苏省
    • 精华 0
    • 注册 2003-2-2
    • 行业 工业制造
    •  

    视野不错 多少楼




    • 来自 江苏省
    • 精华 1
    • 注册 2003-10-10
    • 行业 商业贸易
    •  


    QUOTE:
    原帖由 louise_ly 于 2016-3-18 13:28 发表
    视野不错 多少楼
    9幢17楼 风景这边独好




    • 来自 江苏省
    • 精华 1
    • 注册 2003-10-10
    • 行业 商业贸易
    •  

    一大早起床就去工地哦




    • 来自 江苏省
    • 精华 0
    • 注册 2006-6-15
    • 行业 工业制造
    •  






    • 来自 江苏省
    • 精华 1
    • 注册 2003-10-10
    • 行业 商业贸易
    •  

    楼主感冒了




    • 来自 江苏省
    • 精华 1
    • 注册 2003-10-10
    • 行业 商业贸易
    •  

    水电完毕 等伟星的人来试压了

    [ 本帖最后由 santon 于 16-3-22 09:39 编辑 ]




















    • 来自 江苏省
    • 精华 0
    • 注册 2016-3-19
    •  

    楼主好样的




    • 来自 江苏省
    • 精华 0
    • 注册 2006-6-15
    • 行业 工业制造
    •  


    QUOTE:
    原帖由 santon 于 16-3-22 09:10 发表
    楼主感冒了
    我看你欢的很呢




    • 来自 江苏省
    • 精华 1
    • 注册 2003-10-10
    • 行业 商业贸易
    •  

    好久没跟新了 这周感冒 一直到周末才好点 跑了几个建材市场 最终在铭基把瓷砖给定了选的上面一款 金刚石的 80*80 牌子没听过 号称广东货 老爸看中的 老人家喜欢石材的花纹 他喜欢就买吧

    [ 本帖最后由 santon 于 16-3-27 20:33 编辑 ]




    • 来自 江苏省
    • 精华 1
    • 注册 2003-10-10
    • 行业 商业贸易
    •  

    顺带着挑了厨房、卫生间和阳台的 也没什么特色 简单一点 方便打扫这个是阳台的 造型有点特色 看上去还行
    卫生间就按这个样板贴了 花砖没要
    这个是厨房的 镜面的 感觉还行 好打理 (请忽略我儿子的背阴)




    • 来自 江苏省
    • 精华 1
    • 注册 2003-10-10
    • 行业 商业贸易
    •  

    都没人看 好可怜的帖子




    • 来自 江苏省
    • 精华 0
    • 注册 2006-6-15
    • 行业 工业制造
    •  

    我来顶顶,是儿子的背影,不是背阴




    • 来自 江苏省
    • 精华 0
    • 注册 2003-2-2
    • 行业 工业制造
    •  

    我来踩踩




    • 来自 江苏省
    • 精华 0
    • 注册 2010-3-19
    • 行业 工业制造
    •  

    我也来踩踩   




     95  1/2  1  2  > 
    查看积分策略说明快速回复主题
    您目前还是游客,请 登录注册
    您目前是游客,本帖已被系统设置了自动关闭,不可回复!

    0/5000字

     
    < >
     

    Powered by Discuz! X 2 0.053022 s 清除 Cookies - 镇江网友之家 - 手机版
    论坛导航 关闭