
此帖已成功报名2017家装日记大赛。更多家装信息关注MY0511家装频道
【楼房位置】:桃花坞路
【所在楼层】:6层/25层
【建筑面积】:155m2
【套内面积】:约130m2
【装修风格】:简欧
【包工方式】:清包
【装修公司】:无,完全自己找工人
【设 计 师】:张飞(三鬼设计)
【装修预算】:硬装12万,总预算20万
【最终支出】:硬装14万,加软装20万,加电器24万
设计方案是我在0511梦溪论坛找三鬼(SaKui)设计的,方案很出色,在突出风格的同时兼顾到了生活的习惯与便利。结合个人审美情趣和家人起居生活的特点,现将相关设计构思及施工过程介绍如下。
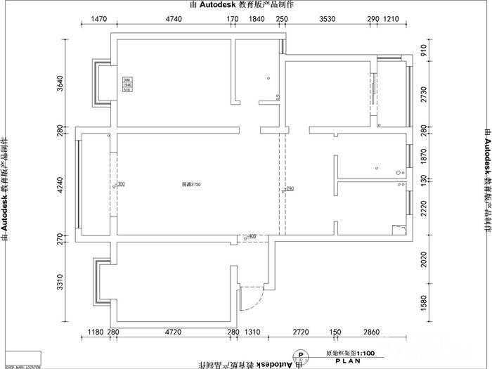
原架构图:

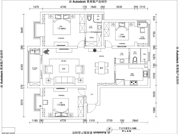
设计平面图:

效果图:






一、走廊与端景墙
入门右侧墙面,做成照片墙。左侧墙面全部砸除到梁,计划打鞋柜,中间留的间隙安装门禁系统。
施工图如下:

水电施工图如下:

完工图如下:

走廊尽头对着的主卧的门,将主卧门向客厅方向移,原来的门堵上,原计划做成玻璃马赛克背景墙,最终还是换成了加工成小片的微晶石。
施工图如下:

完工图如下:


二、厨房
原来的墙全部砸除,整墙向卫生间方向平移约10公分,同时向外延伸扩大厨房面积。
施工图如下:

水电施工图如下:

完工图如下:

三、客、餐厅
电视背景墙和端景墙用微晶石菱形铺贴,客餐厅地面用爵士白做主体,客厅加黑晶花全抛釉瓷砖进行菱形拼花。主卧和儿童房的门,做成暗门。

靠沙发一侧的墙面,下面做墙裙,计划上半面挂照片。

餐厅制作欧式酒柜。

四、卫生间
(一)客卫
客卫干区靠近餐厅设置为欧式雕花屏风,以达到增加个性和透光率的目的。
施工图如下:

完工图如下:

(二)主卫
缩小主卫面积,主卫外面设置成衣帽间。因为楼下的已经装修完毕,所以改下水只能采用垫高的方式,好在主卫面积缩小,有利于改造。
施工图如下:


完工图如下:

(三)备注
马桶周边设置插座,要不然手机和平板电脑没电的话,这厕所没法上!预留电源也是考虑到以后马桶升级的取电需求。
五、阳台
(一)南阳台
一侧做柜子;有下水道一侧放全自动洗衣机和盥洗池。拖把池和洗衣机上面做柜子,用来放置洗衣液、衣架等物品。
考虑洗衣机和盥洗池同时使用时,为了保证下水较快,直接把主下水道戒掉一节,将盥洗池下水改到主管道。
施工图如下:

完工图如下:


(二)北阳台
用钢化玻璃全部封上,增加室内面积,使之成为儿童房的落地窗。

六、卧室
(一)儿童房(书房)
目前打算就是给小孩准备玩具房,宝宝玩具太多,一个房间基本上全放满了。以后随着宝宝年龄的增长来购置和更换物品,和父母分床睡后搬到次卧客房居住。以后将儿童房改造成书房。考虑到房间较小,在墙上开龛放置电视。
施工图如下:

完工图如下:

(二)主卧
飘窗下面的柜子或抽屉与飘窗齐高,这样就延伸了飘窗的深度,根据尺寸订做床垫,宝宝小的时候跟父母一个房间就睡在这上面。因为尺寸变大,对角线距离将近两米,冬天的时候大人也可以睡在上面晒太阳。两边架子上放置书、摆件等。
完工图如下:

(三)次卧
卧正常设置,考虑到孩子长大后要住到客卧,那么将突出的阳台做成电脑学习桌,可以放置电脑和写作业。旁边的两面墙,做成书架,用来摆放书籍和孩子从小到大的各类荣誉奖章。
完工图如下:

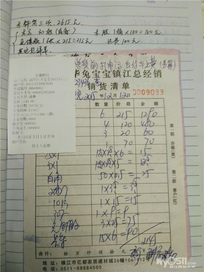
十六、装修支出明细(如下)
































[ 本帖最后由 平步青云1985 于 18-2-18 16:55 编辑 ]



































































































































