成斌设计作品 ——《淡烟如梦》
时间让人放下枷锁,轻装前行。偌大的城市,家是可以完美容纳自己感官感受和情感体验的地方。无需惊艳夺目亦无需人云亦云,是自己心中所爱即可。能和家人在此享受天伦之乐,或约二三好友于此谈笑风生,如此便足以。
繁花似锦般的壁纸,仿佛蕴含着无限的生命力,使整个空间富有张力却并不显轻浮之态。沉稳大气的美式家具于浅色墙面以及地面营造出的素雅氛围中更显醇厚。在影影绰绰的灯光晕染之下,体现了美式的浪漫和优雅。呈现出一个娴静犹如花照水,行动好比风拂柳的理想住所。
在家闲暇的时日,于温暖的阳光下,于清辉的月色里。沏一壶茶,捧一本书,便更胜人间千万事。
项目名称:招商北固湾
室内设计:成斌设计工作室
软装设计:成斌设计工作室
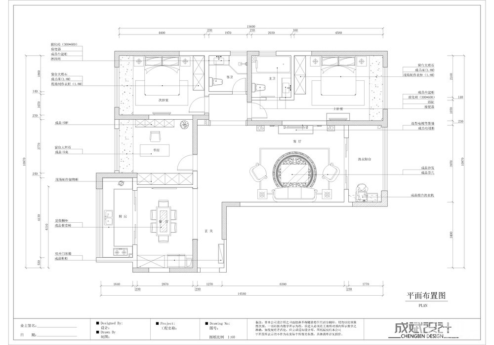
建筑面积:136㎡
使用物料:软木地板、PU线条、无纺布壁纸、彩色乳胶漆、仿古砖、大理石等。
设计时间:2016年7月
完工时间:2017年1月
主材:
地板:欧家软木地板
灯具:嫣然家居
瓷砖:曼联
墙纸:德国玛堡
洁具:高仪
木门:青田
冲淋房:福瑞
空调:格力
散热片:暖福居
家具:无锡檀香山



















