| 标题
快捷导航

精彩推荐:MY0511客户端下载

    • 中信银行镇江分行

    • 公益体彩 乐善人生

    • 鹏龙鸿蒙

    • 天然石材·人造石

    » 梦溪论坛 » 家庭装修 » 心心念念的小窝终于开工啦
    家庭装修  >  [装修日记] 心心念念的小窝终于开工啦     
    查看: 9428  回复: 36
    [装修日记] 心心念念的小窝终于开工啦      查看: 9428  回复: 36
    • 来自 江苏省
    • 精华 0
    • 注册 2017-3-10
    •  
    心心念念的小窝终于开工啦

    第一次写装修日志不怎么会写 就像想和大家分享下我的心情和装修的点点滴滴 步入正题吧



    小区名称:旭辉 东壹区


    所在楼层:4


    建筑面积:113

    装修风格:北欧


    包工方式:半包

    装修公司:好一家装饰(设计师幽默风趣 关键是他的设计我很满意)

    开工日期:2017年3月18日

    装修预算:预算是死的 人是活的

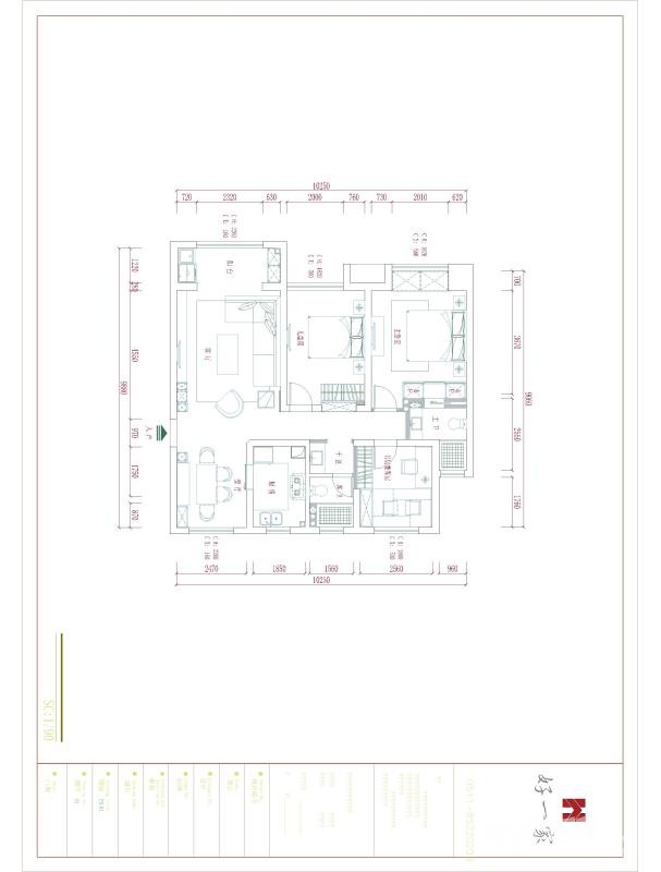
    户型图片:




    哎呀 这个图有点不清楚><













                      
    • 来自 江苏省
    • 精华 0
    • 注册 2017-3-10
    •  

    今天虽然雨蒙蒙 也挡不住我激动的心情呢 正式开工啦!!!












    • 来自 江苏省
    • 精华 0
    • 注册 2014-3-3
    • 行业 房产建筑
    •  

    这鞭炮拉的够气派,红红火火,欢迎新同学




    • 来自 江苏省
    • 精华 0
    • 注册 2017-3-2
    •  

    预算是死的,人是活的,楼主这个说得有道理




    • 来自 江苏省
    • 精华 0
    • 注册 2017-3-2
    •  

    有需要封阳台,移门,淋浴房等等都有可以来我家看看,就在永隆,可加微信了解13852948959




    • 来自 江苏省
    • 精华 0
    • 注册 2016-10-20
    • 行业 其它
    •  

    恭喜开工




    • 来自 江苏省
    • 精华 0
    • 注册 2006-6-10
    •  






    • 来自 江苏省
    • 精华 0
    • 注册 2007-4-17
    • 行业 工业制造
    •  

    邻居开工,恭喜恭喜




    • 来自 江苏省
    • 精华 0
    • 注册 2015-5-18
    •  

    开工大吉,需要封阳台可以找我,做工精细,13862454930




    • 来自 江苏省
    • 精华 0
    • 注册 2014-3-26
    •  

    新型环保集成墙面 无甲醛 防水 防火 防霉  全屋快装15--20天入住   新小区还可以打折上样板间   18015981256




    • 来自 江苏省
    • 精华 0
    • 注册 2017-3-9
    •  

    恭喜恭喜,祝新房开工大吉,装修早日完成!




    • 来自 江苏省
    • 精华 0
    • 注册 2010-5-28
    • 行业 其它
    •  

    恭喜邻居开工




    • 来自 江苏省
    • 精华 0
    • 注册 2017-3-11
    •  

    恭喜楼主开工大吉,有需求可以来全友定制了解了解哦




    • 来自 江苏省
    • 精华 0
    • 注册 2016-3-19
    •  

    恭喜开工




    • 来自 江苏省
    • 精华 0
    • 注册 2017-3-19
    •  

    专业水电工有需要联系15665112002 Callme周




    • 来自 江苏省
    • 精华 0
    • 注册 2017-3-10
    •  














    • 来自 江苏省
    • 精华 0
    • 注册 2017-3-10
    •  

    啦啦啦 今天下午封窗户啦 早知道就不装整体的了 看着都害怕 感谢杨师傅 老板很负责 有需要的可以打他电话哦




    • 来自 江苏省
    • 精华 0
    • 注册 2015-11-27
    •  

    楼主加油,多上图学习学习




    • 来自 江苏省
    • 精华 0
    • 注册 2017-3-10
    •  


    QUOTE:
    原帖由 虐尽天下单身狗 于 2017-3-19 16:13 发表
    楼主加油,多上图学习学习





    • 来自 江苏省
    • 精华 0
    • 注册 2017-3-10
    •  

    拆墙


















    • 来自 江苏省
    • 精华 0
    • 注册 2005-5-20
    • 行业 其它
    •  

    开工大吉




    • 来自 江苏省
    • 精华 0
    • 注册 2017-3-10
    •  

    橱柜台面有不锈钢的吗?有谁认识的推介下!~今天墙应该差不多了,




    • 来自 江苏省
    • 精华 0
    • 注册 2012-3-6
    • 行业 商业贸易
    •  

    恭喜恭喜,开工大吉!!!




    • 来自 江苏省
    • 精华 0
    • 注册 2008-9-1
    • 行业 商业贸易
    •  


    QUOTE:
    原帖由 软淑萌_ 于 17-3-23 16:27 发表
    橱柜台面有不锈钢的吗?有谁认识的推介下!~今天墙应该差不多了,
    有呢,在旭辉一条街里面有,




    • 来自 江苏省
    • 精华 0
    • 注册 2017-3-10
    •  










    墙体质量太差,拆除的时候,前后阳台粉层松动了,感觉要掉,就让葛工把整个打掉了!辛苦师傅了!




    • 来自 江苏省
    • 精华 0
    • 注册 2017-3-10
    •  






    • 来自 江苏省
    • 精华 4
    • 注册 2008-7-25
    • 行业 房产建筑
    • 我是车主 家装达人
    •  

    封阳台这个厉害了




    • 来自 江苏省
    • 精华 0
    • 注册 2017-3-17
    •  

    反正不要选择华府装饰,地址在工人体育场对面的万科写字楼A座703,我家油漆全部开裂,然后不管不问,真是闹心,老板名字叫戴锦玉,电话13852907568.跟小区里邻居们说一下,千万别选择他们家,华府装饰,老板还很嚣张的说他不怕被曝光,我猜他是想换个王八壳子继续坑别人








































    • 来自 江苏省
    • 精华 0
    • 注册 2017-3-5
    •  

    恭喜开工 楼主加油




    • 来自 江苏省
    • 精华 0
    • 注册 2017-3-10
    •  


    QUOTE:
    原帖由 叫我女汉子 于 2017-3-28 10:38 发表
    反正不要选择华府装饰,地址在工人体育场对面的万科写字楼A座703,我家油漆全部开裂,然后不管不问,真是闹心,老板名字叫戴锦玉,电话13852907568.跟小区里邻居们说一下,千万别选择他们家,华府装饰,老板还很嚣 ...
    你这绝对反面广告,吓我一跳。我还以为是我家呢。想想也没那么快啊。好一家装饰还是很负责的,我家老房子漏水就是他们去修的,都没收钱呢。看样板房的时候,和以前的客户处的都不错的。你运气不好,找公司不能比价格,性价比要高才行哦




    • 来自 江苏省
    • 精华 0
    • 注册 2017-3-10
    •  

    水电打水压10公斤,没漏水的。好开心。分享下图片。水电很满意。欢迎邻居来参观




    • 来自 江苏省
    • 精华 0
    • 注册 2017-3-10
    •  


    QUOTE:
    原帖由 镇江大津硅藻泥 于 2017-4-28 17:00 发表




    做墙面材料这块的   大津硅藻泥 可以与我联系  电话18012800398
    好滴,有机会 看看




    • 来自 江苏省
    • 精华 0
    • 注册 2017-3-10
    •  

    今天试水喽,马上可以做地暖喽。好兴奋




    • 来自 江苏省
    • 精华 0
    • 注册 2011-7-19
    • 行业 基础设施
    •  

    水电做的挺漂亮期待更新




    • 来自 江苏省
    • 精华 0
    • 注册 2017-3-10
    •  

    地暖和中央空调也结束,记录下




    查看积分策略说明快速回复主题
    您目前还是游客,请 登录注册
    您目前是游客,本帖已被系统设置了自动关闭,不可回复!

    0/5000字

     
    < >
     

    Powered by Discuz! X 2 0.050920 s 清除 Cookies - 镇江网友之家 - 手机版
    论坛导航 关闭