| 标题
快捷导航

精彩推荐:MY0511客户端下载

    • 中信银行镇江分行

    • 公益体彩 乐善人生

    • 鹏龙鸿蒙

    • 天然石材·人造石

    » 梦溪论坛 » 家庭装修 » [2017金钢铂林杯]心心念的台湾风——自然的宁静生活-------墙布已经贴好了
    家庭装修  >  [装修日记] [2017金钢铂林杯]心心念的台湾风——自然的宁静生活-------墙布已经贴好了     
    查看: 154784  回复: 279
     280  1/6  1  2  3  4  5  6  > 
    [装修日记] [2017金钢铂林杯]心心念的台湾风——自然的宁静生活-------墙布已经贴好了      查看: 154784  回复: 279
    • 来自 江苏省
    • 精华 0
    • 注册 2010-8-19
    • 行业 教育科研
    •  
    [2017金钢铂林杯]心心念的台湾风——自然的宁静生活-------墙布已经贴好了



    此帖已成功报名
    2017家装日记大赛更多家装信息关注MY0511家装频道


    【小区名称】:学府华庭

    【所在楼层】:17楼,顶层复式
    【建筑面积】:242
    【装修风格】:台湾风
    【包工方式】:半包
    【装修公司】:乙品
    【设计师】:方军
    【开工日期】:2017年6月23日【装修预算】:预算不管用

    欢迎加入家装官方VIP别墅QQ群 群号:565444352


        婚房比较小,只有两个房间。随着孩子慢慢长大,需要给孩子一个独立的空间,买一套改善型的房子就提上了日程。当初看房就围绕单位附近的楼盘,无奈周围新楼盘要么是楼层不合适,要么就户型不满意。这套房子是房龄10年左右的二手房,但是各方面都满足我们的要求,就毫不犹豫的买下了。除了小区有些老旧,其它各方面都还是挺满意的。
        既然买了房子,那当然要把它打造成自己心目中的“美窝”啦
        最近两年比较流行厚重、大气的美式风,无奈囊中羞涩,HOLD不住呀 ;新中式,也是烧钱的祖宗;地中海,颜色很鲜艳,怕是久了会审美疲劳、、、、、经过再三的纠结和权衡,还是喜欢直线条简单清爽的现代简约风,不过同时又想让家里温馨一些,不要过于冰冷,所以最终决定还是台湾风吧,打造一个简单、温馨同时又不失格调的家   
        关于装修公司的选择,没有太多纠结。最初锁定WJJH,因为他家水电做的很出名,设计师给出了报价和最初的设计方案;后来在朋友的推荐下找到了乙品的方总,方总给出的设计方案让我们很心动,与设计师的沟通也很投缘、很默契,后来报价也在我们能接受的预算范围内,再加上我们也非常信得过乙品的工艺,最终我们选择了乙品。希望设计师能够帮我们全面把控,尤其是整体性。








    [ 本帖最后由 妞妞112317 于 2018-10-30 14:42 编辑 ]





                      
    • 来自 江苏省
    • 精华 0
    • 注册 2010-8-19
    • 行业 教育科研
    •  

    时间久远,户型图都找不到了
    直接上平面图吧

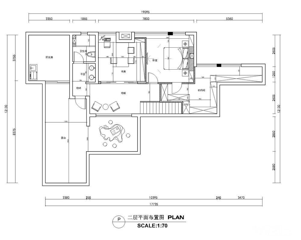
    二楼平米图



    这套房子的户型总体来说没有什么硬伤,还算方正。一楼改动不大,就是把厨房变动了一下,改成了开放式厨房,楼梯重新浇筑换了个上楼方向。二楼就是一个大的空框,除了卫生间没有进行任何的功能分区。经过我们的讨论,决定一楼留给老人和孩子,我们住在二楼,还有书房也安排在二楼。我们要求一定要有一个大书房,有一个大人和孩子共同学习的空间。按照我们的功能要求,设计师把二楼给我们规划的功能分区,还是比较满意的。




    • 来自 江苏省
    • 精华 0
    • 注册 2010-8-19
    • 行业 教育科研
    •  

    按照惯例,直接上效果图









    [ 本帖最后由 妞妞112317 于 17-6-29 22:15 编辑 ]




    • 来自 江苏省
    • 精华 0
    • 注册 2010-8-19
    • 行业 教育科研
    •  

    订购主装修被提上日程以后,我们就开始考察建材市场。年后在新体育会展中心举行的家博会我们去参加,并定下了不少建材。现在看来,一些家具定的有点过早了,倒不是说折扣力度不够大,是限制了设计师的一些发挥。设计师出的效果图就是根据我家已经定好的家具出的。按设计师的要求去选家具的话,效果应该更好。方案没定就去定家具,多少有些限值设计师发挥了。




    已订主材:
    1、暖福居威能地暖
    2、康丽根净水器(暖福居)
    3、芝华士功能沙发、床、电视柜、茶几、餐桌餐椅
    4、喜梦宝公主床、金可儿床垫(女儿房)
    5、三菱电机挂机
    6、天格地热实木地板
    7、方太油烟机、灶具
    8、西门子烤箱、蒸箱
    9、TOTO马桶
    10、汉斯格雅花洒
    、水龙头
    11、唯宝台盆
    12、玫瑰岛淋浴房隔断
    13、金牌橱柜
    14、左尚明舍整体衣柜
    15、白鸟大单槽
    16、松下冰箱、洗衣机
    17、奥普集成吊顶

    18、施耐德开关插座
    19、梦天木门
    20、松下灯具
    21、戴氏楼梯
    22、朗宝陶瓷

    [ 本帖最后由 妞妞112317 于 17-6-24 13:00 编辑 ]




    • 来自 江苏省
    • 精华 0
    • 注册 2010-8-19
    • 行业 教育科研
    •  

    关于防水:我们这套房子是顶层复式,漏水是顶楼不能摆脱的噩梦,当然我家房子也不能幸免。这套房子漏水非常严重,去年梅雨季节过后,整个房子一楼、二楼几乎全部沦陷,不仅原本漏水的北面墙渗水,南面、西面也有地方渗水。因此,做好防水是当务之急。我们原来打算先做防水,等梅雨季节来检验一下,再慢慢定装修公司。后来出现了一个插曲,由于漏水以及楼层相对较高的原因,我们家把窗户换了,因此窗台那要找平。开始还没有确定装潢公司,找了小区里面建幼儿园的瓦工去找平,但是后面问题很大,裂缝,不贴合等等问题,所幸装门窗的提醒了一下。出现这些问题让我们很懊恼,眼看梅雨季节也要到了,所以加快了找装潢公司,定了乙品之后,把原来的敲掉后重新找平,效果不错。先写这么多,后面等拍了图片再写这部分!11.4补充写防水的帖子

    [ 本帖最后由 妞妞112317 于 17-11-3 22:03 编辑 ]




    • 来自 江苏省
    • 精华 0
    • 注册 2010-8-19
    • 行业 教育科研
    •  

    窗户、阳光房
    本来没打算那么早做阳光房,封阳台,但是问了一下做阳光房和防水的,都说要先做阳光房,但是前期问了一些装潢公司,说可以先做防水,然后做阳光房之后再处理一下。考虑再三还是先做阳光房,再做露台防水。寻找做阳光房、封阳台和做窗户的店铺过程还是挺纠结的,先在天猫店里找了百明门窗和忠旺门窗,都在上海,虽然可以在镇江做,但还是很麻烦的,而且百明的很贵,如果不差钱的可以上天猫搜一搜。最后还是决定在镇江找。晚上搜了搜,决定找坚美去做,打电话到坚美公司询问镇江代理,找到店家,然后去店里就把事情定下了。55的断桥铝,家用差不多了。不多说了,上图!

















    [ 本帖最后由 妞妞112317 于 17-6-29 22:08 编辑 ]




    • 来自 江苏省
    • 精华 0
    • 注册 2010-8-19
    • 行业 教育科研
    •  

    开工大吉:
    设计师挑了个黄道吉日,2017年6月23日8:58分摆好造型,点燃鞭炮,可惜照片还没来得及拍
    我家帅哥敲下了第一槌,预示一个好兆头,一切顺利
    我家小美女,捧着乙品送的花,非要拍照,好吧,谁让为娘的我也从来没收到过鲜花,满足你一下
    脸就不露了,免得吓到大家
    PS:后面根据施工进度,贴图写日记




    [ 本帖最后由 妞妞112317 于 17-6-24 12:57 编辑 ]




    • 来自 江苏省
    • 精华 0
    • 注册 2010-8-19
    • 行业 教育科研
    •  

    楼梯

    [ 本帖最后由 妞妞112317 于 17-6-24 11:35 编辑 ]




    • 来自 江苏省
    • 精华 0
    • 注册 2010-8-19
    • 行业 教育科研
    •  

    占楼




    • 来自 江苏省
    • 精华 0
    • 注册 2010-8-19
    • 行业 教育科研
    •  

    占楼




    • 来自 江苏省
    • 精华 4
    • 注册 2008-7-25
    • 行业 房产建筑
    • 我是车主 家装达人
    •  

    台湾风很赞




    • 来自 江苏省
    • 精华 0
    • 注册 2010-8-19
    • 行业 教育科研
    •  


    QUOTE:
    原帖由 delarge 于 17-6-23 21:44 发表
    台湾风很赞
    装修小白,以后还请前辈多多指教




    • 来自 江苏省
    • 精华 0
    • 注册 2017-4-20
    •  

    多上图片




    • 来自 江苏省
    • 精华 0
    • 注册 2016-10-20
    • 行业 其它
    •  

    还没见过台湾风力有多大




    • 来自 江苏省
    • 精华 0
    • 注册 2010-8-19
    • 行业 教育科研
    •  


    QUOTE:
    原帖由 ihua 于 17-6-23 22:13 发表
    多上图片
    等我慢慢更新




    • 来自 江苏省
    • 精华 0
    • 注册 2010-8-19
    • 行业 教育科研
    •  


    QUOTE:
    原帖由 优金瓷美缝 于 17-6-23 22:21 发表
    还没见过台湾风力有多大
    希望我家后来不要跑偏啦




    • 来自 江苏省
    • 精华 0
    • 注册 2010-8-19
    • 行业 教育科研
    •  
    • 来自 0
    • 精华 0
    • 注册 2017-2-11
    • 行业 房产建筑
    •  

    第一次看到装台湾风关注学习下!




    • 来自 江苏省
    • 精华 10
    • 注册 2003-2-25
    • 行业 其它
    • 家装达人 晒家
    •  

    支持乙品的同学,我家也是方总设计的,也是顶楼带阁楼
    离得你家不远




    • 来自 江苏省
    • 精华 0
    • 注册 2010-8-19
    • 行业 教育科研
    •  


    QUOTE:
    原帖由 yanglei79 于 17-6-24 20:56 发表
    支持乙品的同学,我家也是方总设计的,也是顶楼带阁楼
    离得你家不远
    前辈




    • 来自 江苏省
    • 精华 0
    • 注册 2010-8-19
    • 行业 教育科研
    •  

    前辈,您是我学习的榜样,从您的帖子里学到很多新的装修理念。我们也非常想做无主灯、点光源设计,可惜我家层高才2.67,做不了,中央空调也用不了




    • 来自 江苏省
    • 精华 0
    • 注册 2010-8-19
    • 行业 教育科研
    •  

    前辈您是我学习的榜样和偶像,从您家装修中学习了许多新的装修理念
    我家也非常想去除主灯,用点光源,但是无奈我家层高才2.67用不了,中央空调也用不了,最后选择了吸顶灯,简单实用,就是不够美观




    • 来自 江苏省
    • 精华 0
    • 注册 2010-8-19
    • 行业 教育科研
    •  

    怎么回复了两次




    • 来自 江苏省
    • 精华 0
    • 注册 2014-11-25
    •  
    • 来自 江苏省
    • 精华 0
    • 注册 2015-10-9
    •  

    恭喜开工!




    • 来自 江苏省
    • 精华 0
    • 注册 2015-10-9
    •  

    整体阅读后,感觉写的比较细,写出装修的同时还写着心声,希望在网站上,装潢公司会更重视细节,我也等着看效果,到时还要参观。




    • 来自 江苏省
    • 精华 0
    • 注册 2015-10-9
    •  

    没装修的可以多学习。




    • 来自 江苏省
    • 精华 0
    • 注册 2010-8-19
    • 行业 教育科研
    •  


    QUOTE:
    原帖由 伍曙霞 于 17-6-25 15:37 发表
    整体阅读后,感觉写的比较细,写出装修的同时还写着心声,希望在网站上,装潢公司会更重视细节,我也等着看效果,到时还要参观。
    哈哈,谢谢




    • 来自 江苏省
    • 精华 0
    • 注册 2010-5-8
    • 行业 其它
    •  

    恭喜楼主,方总大作




    • 来自 江苏省
    • 精华 0
    • 注册 2017-4-20
    •  

    加油,坚持下去




    • 来自 江苏省
    • 精华 9
    • 注册 2005-10-29
    • 晒家
    •  

    印象中方总设计的第一个台湾风日记?期待lz的更新




    • 来自 江苏省
    • 精华 0
    • 注册 2010-8-19
    • 行业 教育科研
    •  

    我会坚持写下去的




    • 来自 江苏省
    • 精华 4
    • 注册 2008-7-25
    • 行业 房产建筑
    • 我是车主 家装达人
    •  

    加油加油,大家互相学习




    • 来自 江苏省
    • 精华 0
    • 注册 2017-5-19
    •  

    加油,

    [ 本帖最后由 双羽木门专卖 于 17-7-3 14:51 编辑 ]




    • 来自 江苏省
    • 精华 0
    • 注册 2016-6-23
    •  

    恭喜




    • 来自 江苏省
    • 精华 0
    • 注册 2015-10-9
    •  

    先学习验收标准,我家都是装修完了,公司发份验收标准,结果发现很多细节不符合,让他们整改难度太大,还会显得我们太苛刻,不近人情,只好都算了。还是在前面知道比较好,这样在施工中你们也好监督。




    • 来自 江苏省
    • 精华 0
    • 注册 2010-8-19
    • 行业 教育科研
    •  


    QUOTE:
    原帖由 伍曙霞 于 17-6-27 12:42 发表
    先学习验收标准,我家都是装修完了,公司发份验收标准,结果发现很多细节不符合,让他们整改难度太大,还会显得我们太苛刻,不近人情,只好都算了。还是在前面知道比较好,这样在施工中你们也好监督。
    验收标准找装修公司要?




    • 来自 江苏省
    • 精华 0
    • 注册 2010-8-19
    • 行业 教育科研
    •  


    QUOTE:
    原帖由 老友记装饰黄 于 17-6-27 11:50 发表
    恭喜
    谢谢




    • 来自 江苏省
    • 精华 0
    • 注册 2010-8-19
    • 行业 教育科研
    •  


    QUOTE:
    原帖由 双羽木门专卖 于 17-6-27 11:46 发表
    加油,
    谢谢,我会的




    • 来自 江苏省
    • 精华 0
    • 注册 2017-4-20
    •  


    QUOTE:
    原帖由 伍曙霞 于 2017-6-27 12:42 发表
    先学习验收标准,我家都是装修完了,公司发份验收标准,结果发现很多细节不符合,让他们整改难度太大,还会显得我们太苛刻,不近人情,只好都算了。还是在前面知道比较好,这样在施工中你们也好监督。
    有道理




    • 来自 江苏省
    • 精华 0
    • 注册 2010-8-19
    • 行业 教育科研
    •  


    QUOTE:
    原帖由 delarge 于 17-6-26 21:31 发表
    加油加油,大家互相学习
    希望前辈不吝赐教哦




    • 来自 江苏省
    • 精华 0
    • 注册 2010-8-19
    • 行业 教育科研
    •  


    QUOTE:
    原帖由 my0511小妖 于 17-6-26 14:54 发表
    印象中方总设计的第一个台湾风日记?期待lz的更新
    我写的家装日记怎么还没有参赛申请通过呢?我提交成功了吗?




    • 来自 江苏省
    • 精华 4
    • 注册 2008-7-25
    • 行业 房产建筑
    • 我是车主 家装达人
    •  


    QUOTE:
    原帖由 妞妞112317 于 17-6-27 14:06 发表

    希望前辈不吝赐教哦
    前辈不敢当,大家互相学习吧。乙品的设计和施工都是很好的。




    • 来自 江苏省
    • 精华 0
    • 注册 2010-8-19
    • 行业 教育科研
    •  
    敲墙

    敲墙、敲楼梯,2017.7.1-7.2

    开工以后由于阳光房和楼上下的窗户需要安装,楼梯一直迟迟不能敲掉。这段时间镇江已经正式入梅,进入了阴雨连绵、湿答答的日子,防水与阳光房要搁置一段时间才能进行,今天装修公司安排工人敲墙、敲楼梯,敲的地方比较多,估计要两天才能完成。今天去新房看了一下,工人师傅们很辛苦,楼梯和厨房已经基本敲完了,明天还要继续,先上几张图片。









    [ 本帖最后由 妞妞112317 于 17-7-2 21:43 编辑 ]




    • 来自 江苏省
    • 精华 0
    • 注册 2010-8-19
    • 行业 教育科研
    •  

    感谢依慕装饰和双羽木门对我的打赏,虽然本次没有机会合作,但还是很感谢,希望有需要的客户多多考虑哦




    • 来自 江苏省
    • 精华 4
    • 注册 2008-7-25
    • 行业 房产建筑
    • 我是车主 家装达人
    •  

    敲墙大工程




    • 来自 江苏省
    • 精华 0
    • 注册 2010-8-19
    • 行业 教育科研
    •  


    QUOTE:
    原帖由 delarge 于 17-7-2 23:44 发表
    敲墙大工程
    一敲一起都是哗哗的钱呀




    • 来自 江苏省
    • 精华 0
    • 注册 2014-3-29
    •  

    台湾风很清爽哦




    • 来自 江苏省
    • 精华 0
    • 注册 2010-8-19
    • 行业 教育科研
    •  

    我们家主要是往简单清爽,温馨舒适的方向努力的




    • 来自 江苏省
    • 精华 0
    • 注册 2010-8-19
    • 行业 教育科研
    •  

    7月4日,敲墙结束并且清理结束
    楼梯改了方向,空间利用更加紧凑但不失开阔感,原来的楼梯从客厅上去,需要穿过2楼才能到达露台,因此和设计师商量之后,改了方向,平面图见第二张图



    将原来的厨房和餐厅隔墙敲掉,做了一个带中岛的开放式厨房,有人会说开放式厨房油烟大需要加个移门,但是我们否决了这个方案,原因就是加了移门之后从空间效果来讲不够开阔,另外一个重要的原因就是:我们住的第一套房子,厨房和餐厅加了移门,但是用的并不多,一年之中用10次就算多的了,因此就做了这个纯开放式的方案。



    将卫生间的墙敲掉,往里移了一段,做了个干湿分离,利用了过道一部分,做了个双台盆设计,见第二张图



    设计师给我们设计的是到顶的房门,效果不错,所以将门顶部的砖敲掉,门的效果图见第二张图




    [ 本帖最后由 妞妞112317 于 17-7-3 20:20 编辑 ]




     280  1/6  1  2  3  4  5  6  > 
    查看积分策略说明快速回复主题
    您目前还是游客,请 登录注册
    您目前是游客,本帖已被系统设置了自动关闭,不可回复!

    0/5000字

     
    < >
     

    Powered by Discuz! X 2 0.098239 s 清除 Cookies - 镇江网友之家 - 手机版
    论坛导航 关闭