| 标题
快捷导航

精彩推荐:MY0511客户端下载

    • 中信银行镇江分行

    • 公益体彩 乐善人生

    • 鹏龙鸿蒙

    • 天然石材·人造石

    » 梦溪论坛 » 家庭装修 » [2017金钢铂林地板杯] -------车水马龙的城市-----------还有家,还有你----------
    家庭装修  >  [装修日记] [2017金钢铂林地板杯] -------车水马龙的城市-----------还有家,还有你----------     
    查看: 25446  回复: 66
     67  1/2  1  2  > 
    [装修日记] [2017金钢铂林地板杯] -------车水马龙的城市-----------还有家,还有你----------      查看: 25446  回复: 66
    • 来自 江苏省
    • 精华 0
    • 注册 2013-7-7
    • 行业 其它
    •  
    [2017金钢铂林地板杯] -------车水马龙的城市-----------还有家,还有你----------

    【小区名称】:新城花园

    【所在楼层】:25
            【建筑面积】:120
            【装修风格】:现代

    【包工方式】:半包

    【装修公司】:江大装饰

    【  设计师  】:潘姐

             【开工日期】:2017年8月18日
             【装修预算】:心里没数,该多少就多少吧


    [ 本帖最后由 腐到深处自然萌 于 17-8-27 10:41 编辑 ]





                      
    • 来自 江苏省
    • 精华 0
    • 注册 2013-7-7
    • 行业 其它
    •  

    露从今夜白,月是故乡明。离家的时候总觉得那条路要走那么长时间,回家的路因为有妈妈的等待而变短。兜兜转转走过好几个城市,再繁华.夜晚再嗨也感受不到温暖。还是回镇江吧,回家!春风十里不如你。






    • 来自 江苏省
    • 精华 0
    • 注册 2016-10-20
    • 行业 其它
    •  
    • 来自 江苏省
    • 精华 0
    • 注册 2013-7-7
    • 行业 其它
    •  






    • 来自 江苏省
    • 精华 0
    • 注册 2013-7-7
    • 行业 其它
    •  

    第一套属于自己的房子开个贴记录装修的点滴,也是成长。说不定以后就换大别墅了呢,给自己整理点经验。

    准备买房子的时候正赶上镇江房市要涨价的时段,周末两天跑了好几个地方果断还是选择了新城花园,地段好,学区划分的也不错,也让人感受到镇江小城的烟火气息,。(买完没多久就涨价了,该出手时就出手,这句话真有道理,诚不欺我。)自己的房子真的是越看越好看。






    • 来自 江苏省
    • 精华 0
    • 注册 2013-7-7
    • 行业 其它
    •  

    拿到钥匙第一件事就是找装修公司,这个可是不能马虎,在这上面我要多花点功夫了,毕竟装修里面的坑还是挺多的,我可要少踩雷。那么对装修公司的选择我可要谨慎再谨慎

    [ 本帖最后由 腐到深处自然萌 于 17-8-26 13:55 编辑 ]




    • 来自 江苏省
    • 精华 30
    • 注册 2015-9-29
    • 行业 房产建筑
    •  

    恭喜开工大吉 金佰威装饰祝您装修愉快




    • 来自 江苏省
    • 精华 0
    • 注册 2016-9-17
    •  

    恭喜楼主开工大吉




    • 来自 江苏省
    • 精华 0
    • 注册 2017-3-13
    •  

    开工大吉一切顺利!




    • 来自 江苏省
    • 精华 0
    • 注册 2013-7-7
    • 行业 其它
    •  

         买房子的时候当机立断,找装修公司的时候我却要考虑再三。     综合对比下来,江大的设计师让我感觉到了专业,有很多我自己都没有考虑到的问题,她都想到了。设计的图纸我也挺满意的。最重要的是啥?良心价格!没有增项!相比较镇江比较有名气的公司搞出来的噱头,实实在在才是真。
         不过江大装饰你们这个宣传工作真不到位,平时连个广告都不打打。




    • 来自 江苏省
    • 精华 0
    • 注册 2013-7-7
    • 行业 其它
    •  






    • 来自 江苏省
    • 精华 0
    • 注册 2013-7-7
    • 行业 其它
    •  





    [ 本帖最后由 腐到深处自然萌 于 17-8-27 09:39 编辑 ]




    • 来自 江苏省
    • 精华 0
    • 注册 2013-7-7
    • 行业 其它
    •  

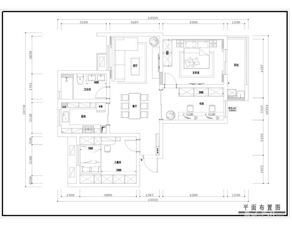
    上让我非常喜欢的设计图




    • 来自 江苏省
    • 精华 0
    • 注册 2013-7-7
    • 行业 其它
    •  






    • 来自 江苏省
    • 精华 0
    • 注册 2013-7-7
    • 行业 其它
    •  






    • 来自 江苏省
    • 精华 0
    • 注册 2013-7-7
    • 行业 其它
    •  






    • 来自 江苏省
    • 精华 0
    • 注册 2013-7-7
    • 行业 其它
    •  






    • 来自 江苏省
    • 精华 0
    • 注册 2013-7-7
    • 行业 其它
    •  

    很喜欢这种高级灰,加镜面的感觉。视觉效果真的很好。感谢设计师潘姐效果图我很满意




    • 来自 江苏省
    • 精华 0
    • 注册 2013-7-7
    • 行业 其它
    •  

    开工那天,太激动,激动到照片都没有拍8月开工,我要发




    • 来自 江苏省
    • 精华 0
    • 注册 2013-7-7
    • 行业 其它
    •  

    春困,夏乏,秋无力,冬眠。太懒不怎么去工地,每天干完还给我打扫干净,谢谢师傅们啦。天气这么热明天给你们带冰棍




    • 来自 江苏省
    • 精华 0
    • 注册 2009-8-11
    • 行业 医疗卫生
    •  






    • 来自 江苏省
    • 精华 0
    • 注册 2013-7-7
    • 行业 其它
    •  

    等会还要去看看瓷砖,好懒啊。想在网上买,又担心有色差。动起来还是先去看看,水电还没有结束,还有时间。我先去看。看完再让设计师给我参谋参谋。装修小白的学习(花钱)之路。日立风管机的安装人员速度是真快。




    • 来自 江苏省
    • 精华 0
    • 注册 2016-3-25
    •  

    这是做广告呢




    • 来自 江苏省
    • 精华 8
    • 注册 2006-12-25
    • 行业 信息咨询
    • 家装达人
    •  

    这个效果图跟平面图不太一样,餐桌旁边展示柜在哪




    • 来自 江苏省
    • 精华 4
    • 注册 2008-7-25
    • 行业 房产建筑
    • 我是车主 家装达人
    •  


    QUOTE:
    原帖由 οΟ星光︶ㄣ 于 17-8-27 19:22 发表
    这个效果图跟平面图不太一样,餐桌旁边展示柜在哪
    那个是书房的移门,估计画图的时候大意画错了




    • 来自 江苏省
    • 精华 4
    • 注册 2008-7-25
    • 行业 房产建筑
    • 我是车主 家装达人
    •  

    主卧房门在地台上面?进房间先踩一级台阶?




    • 来自 江苏省
    • 精华 0
    • 注册 2016-7-20
    •  

    坐等效果图




    • 来自 江苏省
    • 精华 0
    • 注册 2012-2-16
    • 行业 工业制造
    •  

    恭喜恭喜




    • 来自 江苏省
    • 精华 0
    • 注册 2013-11-20
    •  


    QUOTE:
    原帖由 οΟ星光︶ㄣ 于 17-8-27 19:22 发表
    这个效果图跟平面图不太一样,餐桌旁边展示柜在哪
    好眼力




    • 来自 江苏省
    • 精华 0
    • 注册 2013-7-7
    • 行业 其它
    •  


    QUOTE:
    原帖由 οΟ星光︶ㄣ 于 17-8-27 19:22 发表
    这个效果图跟平面图不太一样,餐桌旁边展示柜在哪
    后期做了改动,还是直接进卧室好。改的图纸忘和设计师要了。同学好眼力

    [ 本帖最后由 腐到深处自然萌 于 17-8-28 14:55 编辑 ]




    • 来自 江苏省
    • 精华 0
    • 注册 2013-7-7
    • 行业 其它
    •  


    QUOTE:
    原帖由 delarge 于 17-8-27 20:47 发表
    主卧房门在地台上面?进房间先踩一级台阶?
    喜欢这种,看起来挺有层次




    • 来自 江苏省
    • 精华 0
    • 注册 2013-7-7
    • 行业 其它
    •  

          刚定下来了大门,换了密码锁,瞬间感觉好高级啊,以后出门可以不用带钥匙了密码锁还是在韩剧上看到的,这回自己家用上了。      大门是万嘉旗下的德诺特,质量挺好的。我买东西速度还是挺快的,看中了就下手,钱花出去还是相当心疼,只能默念自己家的,给自己用的。预算?不存在的就是用来超支的。装修不易,且行且珍惜。瓷砖还在纠结中,看中了两个花色都挺喜欢的,继续纠结




    • 来自 江苏省
    • 精华 0
    • 注册 2013-7-7
    • 行业 其它
    •  










    • 来自 江苏省
    • 精华 0
    • 注册 2013-7-7
    • 行业 其它
    •  

    哪个好呢?






    • 来自 江苏省
    • 精华 0
    • 注册 2013-7-7
    • 行业 其它
    •  



    [ 本帖最后由 腐到深处自然萌 于 17-9-11 19:09 编辑 ]




    • 来自 江苏省
    • 精华 0
    • 注册 2013-7-7
    • 行业 其它
    •  



    [ 本帖最后由 腐到深处自然萌 于 17-8-28 15:40 编辑 ]




    • 来自 江苏省
    • 精华 7
    • 注册 2005-9-7
    • 行业 其它
    • 家装达人
    •  

    看效果图房顶做镜面啊?怎么做啊?




    • 来自 江苏省
    • 精华 4
    • 注册 2008-7-25
    • 行业 房产建筑
    • 我是车主 家装达人
    •  


    QUOTE:
    原帖由 腐到深处自然萌 于 17-8-28 08:56 发表

    喜欢这种,看起来挺有层次
    那么房间是整个地面抬高,做的和客厅的地台高度一样吗?如果房间不抬高,岂不是把地台当成了门槛,这样日后生活会有诸多不便。




    • 来自 江苏省
    • 精华 4
    • 注册 2008-7-25
    • 行业 房产建筑
    • 我是车主 家装达人
    •  


    QUOTE:
    原帖由 泰山 于 17-8-28 22:33 发表
    看效果图房顶做镜面啊?怎么做啊?
    顶面直接嵌玻璃应该就可以做到




    • 来自 江苏省
    • 精华 0
    • 注册 2013-7-7
    • 行业 其它
    •  

    今天中午又和设计师沟通了一下,顶面有了变化,我爸说镜子的太冷了,好吧好吧,听我老头子的。最近工作比较忙,有空我会多上点图的。




    • 来自 江苏省
    • 精华 0
    • 注册 2013-7-7
    • 行业 其它
    •  

    早上好




    • 来自 江苏省
    • 精华 0
    • 注册 2017-5-5
    • 行业 房产建筑
    •  

    开工大吉,




    • 来自 江苏省
    • 精华 0
    • 注册 2013-7-7
    • 行业 其它
    •  

    终于到周五了,好休息喽




    • 来自 江苏省
    • 精华 4
    • 注册 2008-7-25
    • 行业 房产建筑
    • 我是车主 家装达人
    •  

    装修的时候周末才是最忙的,因为平时五天没空跑市场




    • 来自 江苏省
    • 精华 0
    • 注册 2013-7-7
    • 行业 其它
    •  


    QUOTE:
    原帖由 delarge 于 17-9-1 22:29 发表
    装修的时候周末才是最忙的,因为平时五天没空跑市场
    那也要睡到自然醒




    • 来自 江苏省
    • 精华 4
    • 注册 2008-7-25
    • 行业 房产建筑
    • 我是车主 家装达人
    •  


    QUOTE:
    原帖由 腐到深处自然萌 于 17-9-2 11:09 发表

    那也要睡到自然醒
    自从装修了,周末的时候基本就没有睡到自然醒的时候了




    • 来自 江苏省
    • 精华 0
    • 注册 2013-7-7
    • 行业 其它
    •  

    水电验收啦,这帖子能传视屏不




    • 来自 江苏省
    • 精华 0
    • 注册 2013-7-7
    • 行业 其它
    •  

    瓦工进来了,下午去工地看看,这次一定要记得拍点照片




     67  1/2  1  2  > 
    查看积分策略说明快速回复主题
    您目前还是游客,请 登录注册
    您目前是游客,本帖已被系统设置了自动关闭,不可回复!

    0/5000字

     
    < >
     

    Powered by Discuz! X 2 0.080113 s 清除 Cookies - 镇江网友之家 - 手机版
    论坛导航 关闭