| 标题
快捷导航

精彩推荐:MY0511客户端下载

    • 中信银行镇江分行

    • 公益体彩 乐善人生

    • 鹏龙鸿蒙

    • 天然石材·人造石

    » 梦溪论坛 » 家庭装修 » 无体验、不装修!——万家基和装饰10月22号——样板房参观——装修大讲堂开始报名啦
    家庭装修  >  [品牌广告] 无体验、不装修!——万家基和装饰10月22号——样板房参观——装修大讲堂开始报名啦     
    查看: 14430  回复: 21
    [品牌广告] 无体验、不装修!——万家基和装饰10月22号——样板房参观——装修大讲堂开始报名啦      查看: 14430  回复: 21
    • 来自 江苏省
    • 精华 216
    • 注册 2011-7-1
    • 行业 其它
    •  
    无体验、不装修!——万家基和装饰10月22号——样板房参观——装修大讲堂开始报名啦

    万家基和装饰第二十期样板房直通车&装修大讲堂就在22号



    家装去哪儿?
    无体验,不装修!
    想零距离参观正在装修或装修好的样板房?
    想了解施工知识,解决装修疑问、体验装修实录?
    请到这里来:

    万家基和装饰样板房直通车系列活动,为您的装修长途一路护航,引你遇见未来的家!
    细致造就差别
    真诚打动人心
    每一个工地都凝结了设计师和施工人员的智慧和汗水
    进步就是永不停步!


    样板房活动详情如下
    集合时间】:2017年10月22号上午9点(星期日)
    集合地点】:万家基和装饰公司(学府路欧尚超市旁中国银行楼上)
    活动流程】:
    9:00公司签到
    9:30出发参观样板房
    9:45参观水电工艺:梦溪嘉苑69-1804
    10:30参观成品:朴园竹山院78-105

    11:30用餐
    12:30装修大课堂
    13:30设计咨询

    报名方式】:

    QQ报名:   
    电话报名:0511—88985388  18061185108
    微信报名:

    为了保证参观和学习的效果,限20户,以先报名为先
    装修课堂主讲人张总


    课堂主题:六大预防核心工艺分享


    往届样板房活动展示






    公司地址:


    关注我们了解更多



    [ 本帖最后由 万家基和客服 于 17-10-16 11:24 编辑 ]





                      
    • 来自 江苏省
    • 精华 14
    • 注册 2005-8-18
    •  

    [ourfmit=600,450]www,3710hg4ol1b5[/ourfmit]

    [ 本帖最后由 My0511清爽 于 17-10-14 17:34 编辑 ]




    • 来自 江苏省
    • 精华 216
    • 注册 2011-7-1
    • 行业 其它
    •  

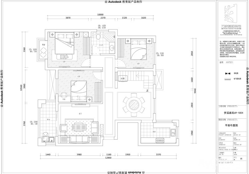
    水电半成品参观:梦溪嘉苑69-1804

    【设计风格】:新中式
    【设计师】:杨越

    【工程部负责人】:袁成林
    【项目经理】:相荣贵

    户型展示
    一层原始户型图


    一层平面设计图


    二层原始户型图


    二层平面设计图


    厅效果图


    门厅、餐厅厅效果图



    成品:
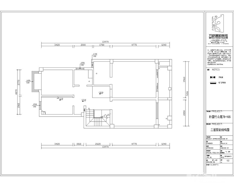
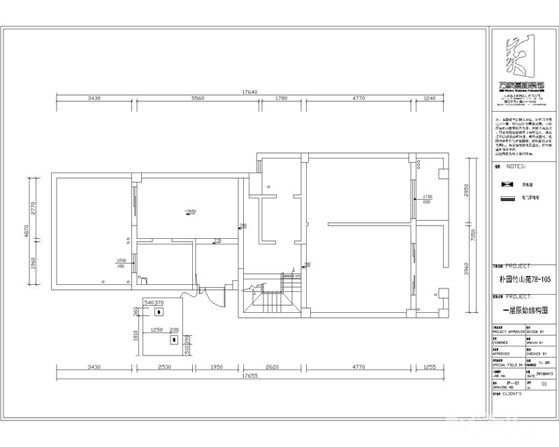
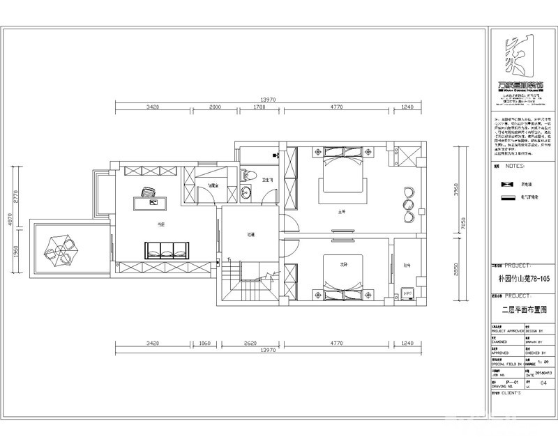
    朴园竹山院78-105

    【装修风格】:现代中式
    【设计师】:刘雪峰



    【工程部负责人】:袁成林
    【项目经理】:

    【户型展示】
    一层原始户型图



    二层原始户型图



    一层平面设计图



    二层平面设计图



    客厅效果图


    餐厅效果图



    客、餐厅效果图



    [ 本帖最后由 万家基和客服 于 17-10-16 11:30 编辑 ]




    • 来自 江苏省
    • 精华 216
    • 注册 2011-7-1
    • 行业 其它
    •  

    十九期样板房活动已经出发,感谢大家的支持,22号的第二十期样板房已准备完毕,大家可以开始报名了哦













    上届样板房活动装修大课堂











    [ 本帖最后由 万家基和客服 于 17-10-16 09:26 编辑 ]




    • 来自 江苏省
    • 精华 0
    • 注册 2017-8-30
    •  

    想知道家里装修要多少钱吗?微信扫一扫十秒出镇江最新标准报价。








    • 来自 江苏省
    • 精华 216
    • 注册 2011-7-1
    • 行业 其它
    •  










    • 来自 江苏省
    • 精华 216
    • 注册 2011-7-1
    • 行业 其它
    •  

    欢迎大家咨询、报名




    • 来自 四川省
    • 精华 216
    • 注册 2011-7-1
    • 行业 其它
    •  

    占楼




    • 来自 四川省
    • 精华 216
    • 注册 2011-7-1
    • 行业 其它
    •  

    占楼




    • 来自 江苏省
    • 精华 216
    • 注册 2011-7-1
    • 行业 其它
    •  

    :欢迎参观样板房装修大讲堂,限20户,名额有限,抓紧报名,




    • 来自 江苏省
    • 精华 216
    • 注册 2011-7-1
    • 行业 其它
    •  

    《木棉花》--------朱赟设计













    • 来自 江苏省
    • 精华 216
    • 注册 2011-7-1
    • 行业 其它
    •  

    下午在公司举行的工人工艺培训,只为给我们的客户带来更好的服务!












    [ 本帖最后由 万家基和客服 于 17-10-17 16:34 编辑 ]




    • 来自 江苏省
    • 精华 216
    • 注册 2011-7-1
    • 行业 其它
    •  

    恭喜旭辉东壹区客户开工大吉









    • 来自 江苏省
    • 精华 216
    • 注册 2011-7-1
    • 行业 其它
    •  

    恭喜江山名洲客户开工大吉!





    • 来自 江苏省
    • 精华 216
    • 注册 2011-7-1
    • 行业 其它
    •  

    《本然》-------胡强设计












    • 来自 江苏省
    • 精华 216
    • 注册 2011-7-1
    • 行业 其它
    •  

    《典雅如诗•悠悠慢时光》-------刘雪峰设计











    • 来自 江苏省
    • 精华 34
    • 注册 2004-8-30
    • 行业 其它
    • 五一劳动节 功勋会员 我是车主
    •  

    支持!




    • 来自 江苏省
    • 精华 216
    • 注册 2011-7-1
    • 行业 其它
    •  


    QUOTE:
    原帖由 拽毛 于 17-10-20 15:33 发表
    支持!
    谢谢!




    • 来自 江苏省
    • 精华 216
    • 注册 2011-7-1
    • 行业 其它
    •  

    样板房直通车已经蓄势待发,我们在万家基和(学府路66-208号,欧尚超市旁中国银行楼上)敬候您的到来哦




    • 来自 江苏省
    • 精华 216
    • 注册 2011-7-1
    • 行业 其它
    •  

    出发前张总给大家做行程讲解,感谢大家的支持和关注!












    查看积分策略说明快速回复主题
    您目前还是游客,请 登录注册
    您目前是游客,本帖已被系统设置了自动关闭,不可回复!

    0/5000字

     
    < >
     

    Powered by Discuz! X 2 0.085116 s 清除 Cookies - 镇江网友之家 - 手机版
    论坛导航 关闭