收藏本站
客户端
扫码下载客户端
官方微信
打开微信扫一扫
登录
|
注册
|
标题
标题
用户
全站首页
|
论坛导航
|
网络问政
|
招聘求职
|
买房租房
|
装修频道
|
生活服务
|
教育
|
相亲
|
亲子
|
美食
|
婚嫁
|
手机客户端
家有学子
|
母婴乐园
快捷导航
精彩推荐:
MY0511客户端下载
中信银行镇江分行
公益体彩 乐善人生
鹏龙鸿蒙
天然石材·人造石
»
梦溪论坛
»
家庭装修
» 绿城东方诚园我的家,期待的简约风格,打造中......
家庭装修
>
[装修日记]
绿城东方诚园我的家,期待的简约风格,打造中......
查看: 18036 回复: 28
快速回复
返回家庭装修
[装修日记]
绿城东方诚园我的家,期待的简约风格,打造中......
查看: 18036 回复: 28
上一主题
|
下一主题
杭杭1983
来自 江苏省
精华 0
注册 2017-10-11
绿城东方诚园我的家,期待的简约风格,打造中......
终于拿房天气很好,装修也早早启动,希望家人可以早点入住
约了设计师上门测量
已有 老友记装饰客服, 双羽木门专卖
2
人打赏
2017-10-18 16:28
1楼
MY0511相亲,一分钟注册,享一辈子幸福!
只看该作者
分享本楼
我爱橡皮树
来自 江苏省
精华 0
注册 2017-3-27
---发自iPhone 6 Plus---
2017-10-18 16:30
2楼
买房、卖房、租房上镇江房产网!
只看该作者
分享本楼
chenliang002.
来自 江苏省
精华
1
注册 2010-10-13
行业 商业贸易
恭喜
2017-10-18 16:32
3楼
MY0511相亲,一分钟注册,享一辈子幸福!
只看该作者
分享本楼
yyaaoopp
来自 江苏省
精华 0
注册 2009-11-23
行业 其它
多大的?245的?
---发自iPhone 6S---
2017-10-18 16:39
4楼
[联宇电脑] 电脑组装\维修\升级\企业单位电脑维护!
只看该作者
分享本楼
污王
来自 江苏省
精华 0
注册 2017-5-20
装硅藻泥的可以联系我
---发自小米MIX---
2017-10-18 16:42
5楼
MY0511相亲,一分钟注册,享一辈子幸福!
只看该作者
分享本楼
杭杭1983
来自 江苏省
精华 0
注册 2017-10-11
大镇江新地标
苏宁商圈
来到诚园
6楼,采光也是棒棒的
客厅和餐厅,感觉超长
南卧室的飘窗,实在是影响采光
小区后面的联排,好像采光一般啊
装修的邻居不多,期待大变样
[
本帖最后由 杭杭1983 于 17-10-19 17:46 编辑
]
2017-10-18 16:44
6楼
MY0511相亲,一分钟注册,享一辈子幸福!
只看该作者
分享本楼
杭杭1983
来自 江苏省
精华 0
注册 2017-10-11
操作不熟练啊大家多担待
下面设计师给我出了很多设计方案
看的眼花
纠结中
2017-10-18 16:46
7楼
[联宇电脑] 电脑组装\维修\升级\企业单位电脑维护!
只看该作者
分享本楼
一笑灬奈何
来自 江苏省
精华
1
注册 2013-1-28
行业 政府行政
恭喜恭喜,又一个装友
2017-10-18 19:39
8楼
买房、卖房、租房上镇江房产网!
只看该作者
分享本楼
万达壁纸软装
来自 江苏省
精华 0
注册 2017-5-5
行业 房产建筑
恭喜恭喜,房子位置绝对要,空闲时欢迎来店驻足品茶哦。
---发自iPhone 7 Plus---
2017-10-18 20:27
9楼
[联宇电脑] 电脑组装\维修\升级\企业单位电脑维护!
只看该作者
分享本楼
wm545193050
来自 江苏省
精华 0
注册 2014-11-25
恭喜恭喜
---发自iPhone 6 Plus---
2017-10-18 21:21
10楼
0511家装频道:本地家居服务平台,数万业主共同选择
只看该作者
分享本楼
柏尔地板
来自 江苏省
精华 0
注册 2017-3-13
恭喜开工大吉一切顺利!
---发自梦溪论坛手机客户端---
2017-10-18 21:42
11楼
MY0511相亲,一分钟注册,享一辈子幸福!
只看该作者
分享本楼
燕宝的春天
来自 江苏省
精华 0
注册 2013-10-29
在哪啊?诚园
---发自iPhone 6 Plus---
2017-10-18 22:38
12楼
[联宇电脑] 电脑组装\维修\升级\企业单位电脑维护!
只看该作者
分享本楼
delarge
来自 江苏省
精华
4
注册 2008-7-25
行业 房产建筑
QUOTE:
原帖由
燕宝的春天
于 17-10-18 22:38 发表
在哪啊?诚园
兆和皇冠酒店南边就是诚园
2017-10-19 00:29
13楼
找工作,就上MY0511!
只看该作者
分享本楼
ck66504
禁止发言
来自 江苏省
精华 0
注册 2006-12-28
行业 政府行政
*** 作者因违反论坛规定,禁言处理,内容自动屏蔽 ***
详情参阅论坛注册条款:
http://bbs.my0511.com/f11b-t2789156z
2017-10-19 10:09
14楼
找工作,就上MY0511!
只看该作者
分享本楼
杭杭1983
来自 江苏省
精华 0
注册 2017-10-11
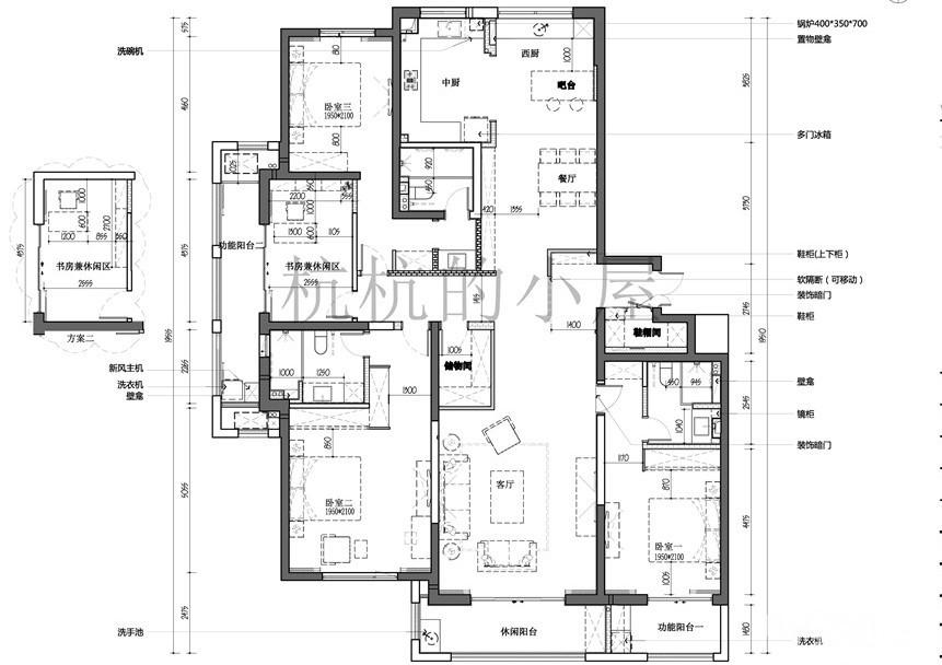
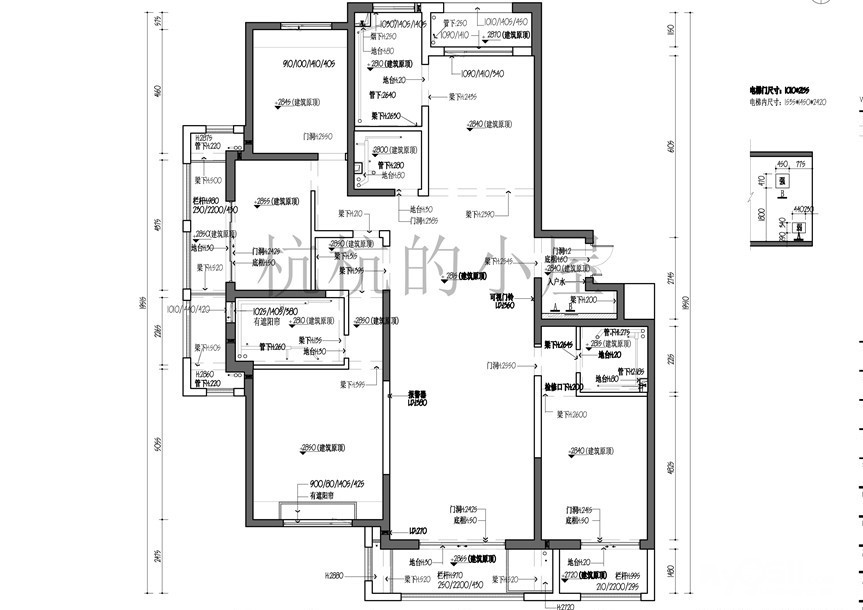
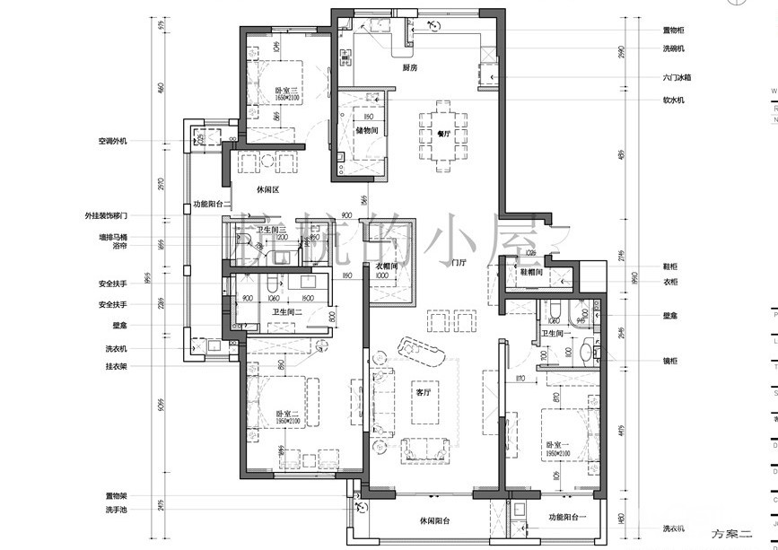
原始结构图如下
对房子要求三个套间,还要有一个书房兼客房,尽量多些储藏室,过道等区域尽量大一些,看起来大气一些
设计方案一如下:
设计方案二如下:
设计方案三如下:
设计方案四如下:
[
本帖最后由 杭杭1983 于 17-10-19 17:35 编辑
]
2017-10-19 12:56
15楼
0511家装频道:本地家居服务平台,数万业主共同选择
只看该作者
分享本楼
杭杭1983
来自 江苏省
精华 0
注册 2017-10-11
设计师让我大开眼界,居然给我这么多方案,
随之问题也来了,
好像每个方案都很好,
结合我们的情况又好像每个都有利与弊,
这几日无比纠结中
2017-10-19 12:59
16楼
0511家装频道:本地家居服务平台,数万业主共同选择
只看该作者
分享本楼
wxlhdnz
来自 江苏省
精华 0
注册 2015-7-15
三最好,其他都不行
2017-10-19 13:20
17楼
0511家装频道:本地家居服务平台,数万业主共同选择
只看该作者
分享本楼
wxlhdnz
来自 江苏省
精华 0
注册 2015-7-15
其它三个方案客卫封闭式的,不通风不行;方案四厨房竟然离入户那么远太不合理,所有只有三合适
[
本帖最后由 wxlhdnz 于 17-10-19 13:29 编辑
]
2017-10-19 13:27
18楼
买房、卖房、租房上镇江房产网!
只看该作者
分享本楼
莫干山衣柜
来自 江苏省
精华 0
注册 2012-8-13
行业 其它
恭喜楼主开工大吉,
---发自梦溪论坛手机客户端---
2017-10-19 13:32
19楼
找工作,就上MY0511!
只看该作者
分享本楼
伊博莱门窗
来自 江苏省
精华 0
注册 2016-11-14
房子很漂亮
2017-10-19 13:43
20楼
MY0511相亲,一分钟注册,享一辈子幸福!
只看该作者
分享本楼
佳安舒适家
来自 江苏省
精华
55
注册 2017-2-10
恭喜开工~
2017-10-19 14:25
21楼
找工作,就上MY0511!
只看该作者
分享本楼
delarge
来自 江苏省
精华
4
注册 2008-7-25
行业 房产建筑
方案三有个缺陷就是客位的是原本不是卫生间的地方做的,所以需要考虑好各种下水位置,而且改造起来会比较困难啊,楼楼最好有个心理准备。还有就是这个休闲区正对卫生间是不是有点怪怪的?
2017-10-19 20:55
22楼
MY0511相亲,一分钟注册,享一辈子幸福!
只看该作者
分享本楼
智能化时代
来自 江苏省
精华 0
注册 2017-9-24
恭喜恭喜
---发自OPPO R9---
2017-10-20 11:52
23楼
0511家装频道:本地家居服务平台,数万业主共同选择
只看该作者
分享本楼
洛克华菲.滑动门
来自 江苏省
精华 0
注册 2016-2-26
行业 房产建筑
先恭喜你开工大吉,装出好效果,装出所于楼主的个性化有品味温馨的家,好事多磨。
---发自梦溪论坛手机客户端---
2017-10-20 13:09
24楼
[联宇电脑] 电脑组装\维修\升级\企业单位电脑维护!
只看该作者
分享本楼
BBL贝尔地板
来自 江苏省
精华 0
注册 2017-3-31
恭喜开工,设计给了好多方案呀
,最主要还要考虑到生活习惯跟自己最喜欢的定
2017-10-20 13:53
25楼
找工作,就上MY0511!
只看该作者
分享本楼
wm545193050
来自 江苏省
精华 0
注册 2014-11-25
恭喜恭喜
---发自iPhone 6 Plus---
2017-10-20 21:32
26楼
0511家装频道:本地家居服务平台,数万业主共同选择
只看该作者
分享本楼
杭杭1983
来自 江苏省
精华 0
注册 2017-10-11
许久没有上来,最近在看家具ING,
想想钞票就要没有了,
顿时心情也不好了
2017-10-25 10:42
27楼
MY0511相亲,一分钟注册,享一辈子幸福!
只看该作者
分享本楼
yana
来自 江苏省
精华
42
注册 2004-2-22
行业 政府行政
楼主觉得物业费贵吗他家的
---发自iPhone 7 Plus---
2017-11-7 00:43
28楼
[联宇电脑] 电脑组装\维修\升级\企业单位电脑维护!
只看该作者
分享本楼
灰羽星梦
来自 江苏省
精华 0
注册 2010-9-10
行业 商业贸易
方案3污水管怎么拉过来?不会堵吗?
---发自iPhone 7 Plus---
2018-12-17 11:13
29楼
MY0511相亲,一分钟注册,享一辈子幸福!
只看该作者
分享本楼
返回家庭装修
快速回复主题
游客
您目前还是游客,请
登录
或
注册
您目前是游客,本帖已被系统设置了自动关闭,不可回复!
文明交流,理性发言
0/5000字
<
>
请在打开的新窗口中支付完成打赏
我已完成支付打赏
支付失败重新支付
其他金额
打赏金额:
元
确定
支付打赏
提 现
打赏人
打赏金额(元)
打赏时间
老友记装饰客服
1.00
2017-10-22 12:11
双羽木门专卖
1.00
2017-10-22 14:14
Powered by
Discuz! X 2
0.079265 s
清除 Cookies
-
镇江网友之家
-
手机版
论坛导航
关闭
吃喝玩乐
饮食男女
镇江钓友之家
菜菜鸟户外
镇江单车俱乐部
镜头里的镇江
畅游天下
猫狗总动员
视觉Coffeeshop摄影部落
花鸟鱼虫
婚姻.亲子.家庭
家有学子
谈婚论嫁
女性天地
母婴乐园
婚姻生活
梦溪佳缘
装修
家庭装修
装修招标
镇江室内设计师交流
装修商家直通车
你好,镇江!
百姓话题
我要买房
0511爱心家园
市场监管•12315热线
分类信息
生活服务
闲置转让
镇江二手房/镇江租房
镇江招聘求职
教育培训
镇江二手车
商铺厂房写字楼租售
宠物市场
运动健身
卡券交易
电脑维修升级
杂货铺
其他分类信息区
兴趣爱好
HiFi音响江城沙龙
镇江市美术家协会
我爱模型
车友俱乐部
车迷之家
汽车驾培中心
运动俱乐部
镇江市冬泳、铁人三项协会
聚焦足球
镇江羽毛球
镇江乒乓球协会
镇江网球协会
镇江市自行车运动协会
热爱篮球
动力机车
合作栏目
维权热线
天翼时代
色觉影像摄影工作室
站务区
疑问与建议
网络问政
市政府工作部门
垂直管理部门
党群工作部门
其他重点单位
辖市(区)