| 标题
快捷导航

精彩推荐:MY0511客户端下载

    • 中信银行镇江分行

    • 公益体彩 乐善人生

    • 鹏龙鸿蒙

    • 天然石材·人造石

    » 梦溪论坛 » 家庭装修 » 140㎡里的现代风,以质朴的人文温度和轻盈步调诉说小日子实景毕业照
    家庭装修  >  [完工毕业照] 140㎡里的现代风,以质朴的人文温度和轻盈步调诉说小日子实景毕业照     
    查看: 21410  回复: 44
    [完工毕业照] 140㎡里的现代风,以质朴的人文温度和轻盈步调诉说小日子实景毕业照      查看: 21410  回复: 44
    • 来自 江苏省
    • 精华 0
    • 注册 2018-6-15
    •  
    140㎡里的现代风,以质朴的人文温度和轻盈步调诉说小日子实景毕业照

    ■项目简介

    ■面积 / 140㎡

    ■风格 / 现代

    设计公司:鸿鹄设计

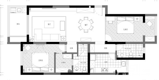
    平面图



    很多人都会问“幸福是什么?”小时候,幸福对于我来说也许就是一只冰棍。

    长大了幸福,也许是你喜欢的人一个明媚的微笑。再后来,幸福却越来越模糊......

    其实幸福是生活的点点滴,是我们每天的小日子。








    [ 本帖最后由 花神咖啡 于 18-6-15 17:27 编辑 ]





                      
    • 来自 江苏省
    • 精华 0
    • 注册 2018-6-15
    •  
    客厅


    本案在设计风格上女主要求简洁,大方,舒适为主.





    客厅选择了比较明亮的白色作为主色调,


    阳台用了折叠门 更好的增加了这个空间的长度 。




    灰色布艺沙发与黄色皮质沙发相互映衬

    互相点缀,给人一种暖意融融的家庭氛围






    [ 本帖最后由 花神咖啡 于 18-6-15 17:34 编辑 ]




    • 来自 江苏省
    • 精华 0
    • 注册 2018-6-15
    •  
    餐厅

    餐厅和客厅相连,使得空间得以延伸,造型上面没有采用复杂的设计手法,以简洁的现代风为主。





    • 来自 江苏省
    • 精华 0
    • 注册 2018-6-15
    •  
    厨房

    考虑到厨房的实用性,门板材质换成了灰色, 耐脏 易擦洗!





    • 来自 江苏省
    • 精华 0
    • 注册 2018-6-15
    •  
    卧室




    卧室的背景墙上没有选择常规的床头装饰或者落地灯,取而代之的是在原始的墙体上 做了些暗藏灯带的处理 为氛围进行点缀。
    [attach]24054462[/attach]

    [ 本帖最后由 花神咖啡 于 18-6-15 17:37 编辑 ]




    • 来自 江苏省
    • 精华 0
    • 注册 2018-6-15
    •  
    卫生间




    卫生间是整个空间中我个人而言最喜欢的部门,不规则的多边形贴砖很惹人眼,

    黑白相间之中,用金边的圆形镜子作为点缀,颇具设计感。






    • 来自 江苏省
    • 精华 1
    • 注册 2008-1-22
    • 行业 其它
    •  
    • 来自 江苏省
    • 精华 0
    • 注册 2016-5-5
    •  


    QUOTE:
    原帖由 埃及王子 于 2018-6-15 18:09 发表
    你脑子有




    • 来自 江苏省
    • 精华 0
    • 注册 2018-6-15
    •  

    每个人有自己的审美,自己喜欢就足够。




    • 来自 0
    • 精华 0
    • 注册 2018-5-3
    • 行业 其它
    •  






    • 来自 0
    • 精华 0
    • 注册 2018-5-3
    • 行业 其它
    •  






    • 来自 江苏省
    • 精华 8
    • 注册 2010-9-13
    • 行业 房产建筑
    •  

    毕业照不错呢




    • 来自 0
    • 精华 0
    • 注册 2018-5-3
    • 行业 其它
    •  






    • 来自 江苏省
    • 精华 0
    • 注册 2018-6-8
    •  

    效果棒棒的




    • 来自 江苏省
    • 精华 222
    • 注册 2016-11-15
    • 行业 广告媒体
    •  
    • 来自 江苏省
    • 精华 53
    • 注册 2016-5-6
    •  

    不错帮顶




    • 来自 江苏省
    • 精华 0
    • 注册 2018-6-29
    •  

    简单却透这一股时尚气息




    • 来自 江苏省
    • 精华 0
    • 注册 2011-12-27
    • 行业 政府行政
    •  

    锐驰的沙发茶几




    • 来自 0
    • 精华 0
    • 注册 2018-5-3
    • 行业 其它
    •  






    • 来自 0
    • 精华 0
    • 注册 2018-5-3
    • 行业 其它
    •  






    • 来自 江苏省
    • 精华 0
    • 注册 2018-6-29
    •  

    清清爽爽的看着舒服




    • 来自 江苏省
    • 精华 222
    • 注册 2016-11-15
    • 行业 广告媒体
    •  






    • 来自 0
    • 精华 0
    • 注册 2017-8-29
    • 行业 房产建筑
    •  






    • 来自 江苏省
    • 精华 222
    • 注册 2016-11-15
    • 行业 广告媒体
    •  






    • 来自 江苏省
    • 精华 0
    • 注册 2012-9-1
    • 行业 其它
    •  

    140平???




    • 来自 江苏省
    • 精华 222
    • 注册 2016-11-15
    • 行业 广告媒体
    •  

    鸿鹄设计            


                  在建工地               


         公司主页


                              北欧风格 现代风格实景案例


                       美式风格  法式风格实景案例



    [url=http://bbs.my0511.com/f848b]






    • 来自 江苏省
    • 精华 222
    • 注册 2016-11-15
    • 行业 广告媒体
    •  

    鸿鹄设计水电[url]http://bbs.my0511.com/f848b-t6751841z-1-1[/url]鸿鹄设计更多风格实景案例 http://bbs.my0511.com/f848b-t6900527z-1-1




    • 来自 江苏省
    • 精华 222
    • 注册 2016-11-15
    • 行业 广告媒体
    •  

    整体装修简单时尚  质朴的品质   

    鸿鹄设计个性设计属于您的家




    • 来自 江苏省
    • 精华 222
    • 注册 2016-11-15
    • 行业 广告媒体
    •  

    最新吾悦广场案例空间立体表现图












    • 来自 江苏省
    • 精华 222
    • 注册 2016-11-15
    • 行业 广告媒体
    •  

    鸿鹄设计
    吾悦广场
    最新案例
    空间立体表现图












    • 来自 江苏省
    • 精华 222
    • 注册 2016-11-15
    • 行业 广告媒体
    •  






    • 来自 江苏省
    • 精华 0
    • 注册 2018-4-7
    •  

    风格不错,以后我家也想装这种风格




    • 来自 江苏省
    • 精华 222
    • 注册 2016-11-15
    • 行业 广告媒体
    •  

    鸿鹄设计实景案例专版:http://bbs.my0511.com/f848b-y499p




    • 来自 江苏省
    • 精华 222
    • 注册 2016-11-15
    • 行业 广告媒体
    •  






    • 来自 江苏省
    • 精华 0
    • 注册 2018-9-20
    • 行业 广告媒体
    •  






    • 来自 江苏省
    • 精华 0
    • 注册 2012-9-1
    • 行业 其它
    •  

    140平,只有2房吗




    • 来自 江苏省
    • 精华 0
    • 注册 2018-9-20
    • 行业 广告媒体
    •  






    • 来自 江苏省
    • 精华 222
    • 注册 2016-11-15
    • 行业 广告媒体
    •  






    • 来自 江苏省
    • 精华 222
    • 注册 2016-11-15
    • 行业 广告媒体
    •  






    • 来自 江苏省
    • 精华 0
    • 注册 2018-9-20
    • 行业 广告媒体
    •  






    • 来自 江苏省
    • 精华 222
    • 注册 2016-11-15
    • 行业 广告媒体
    •  






    查看积分策略说明快速回复主题
    您目前还是游客,请 登录注册
    您目前是游客,本帖已被系统设置了自动关闭,不可回复!

    0/5000字

     
    < >
     

    Powered by Discuz! X 2 0.091975 s 清除 Cookies - 镇江网友之家 - 手机版
    论坛导航 关闭