| 标题
快捷导航

精彩推荐:MY0511客户端下载

    • 中信银行镇江分行

    • 公益体彩 乐善人生

    • 鹏龙鸿蒙

    • 天然石材·人造石

    » 梦溪论坛 » 家庭装修 » 网友“到处闲逛的馬”家完工毕业照,永隆骏景苑106㎡美式风格
    家庭装修  >  [完工毕业照] 网友“到处闲逛的馬”家完工毕业照,永隆骏景苑106㎡美式风格     
    查看: 17310  回复: 26
    [完工毕业照] 网友“到处闲逛的馬”家完工毕业照,永隆骏景苑106㎡美式风格      查看: 17310  回复: 26
    • 来自 江苏省
    • 精华 9
    • 注册 2005-10-29
    • 晒家
    •  
    网友“到处闲逛的馬”家完工毕业照,永隆骏景苑106㎡美式风格


    楼盘:永隆俊景苑

    面积:106㎡

    风格:美式风格

    设计:贾云飞

    网友装修日记http://bbs.my0511.com/f95b-t6578446z



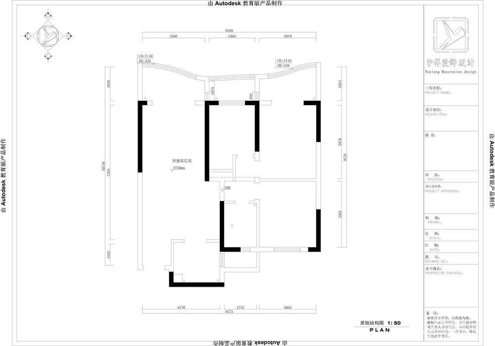
    【原始结构图】




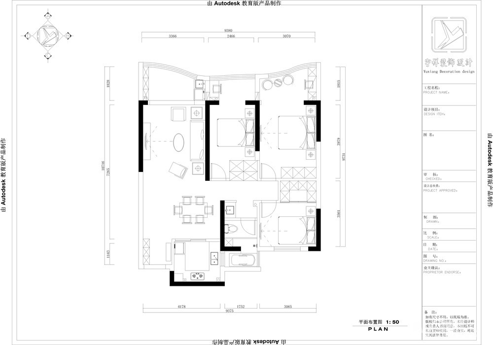
    【平面布置图】








    [ 本帖最后由 my0511小妖 于 18-7-4 17:30 编辑 ]





                      
    • 来自 江苏省
    • 精华 9
    • 注册 2005-10-29
    • 晒家
    •  

    【客厅】

    装修风格整体呈现美式风格,条纹的沙发与地毯相得益彰。

    小沙发的花卉图案、电视背景墙上的花卉和客厅茶几上的一束黄色花卉更是增添了几分生机与活力。









    [ 本帖最后由 my0511小妖 于 18-7-4 16:42 编辑 ]




    • 来自 江苏省
    • 精华 9
    • 注册 2005-10-29
    • 晒家
    •  

    【卧室】

    一天中三分之一的时间都会在卧室里度过。

    蓝色系的窗帘、靠枕和床旗,阳光柔和地照进室内








    [ 本帖最后由 my0511小妖 于 18-7-4 16:44 编辑 ]




    • 来自 江苏省
    • 精华 9
    • 注册 2005-10-29
    • 晒家
    •  

    【餐厅】


    餐桌上的花卉和墙上的壁画与您一起迎接新的一天。

    在每天早上,看看这些花卉,用过早餐后去工作或学习,一天都会充满精神。

    在结束了一天的工作或学习后,一家人聚在一起共进晚餐,谈论着一天的经历见闻、讲讲趣事。

    这便是平凡而又幸福的生活。








    [ 本帖最后由 my0511小妖 于 18-7-4 16:46 编辑 ]




    • 来自 江苏省
    • 精华 9
    • 注册 2005-10-29
    • 晒家
    •  

    【关于宇祥装饰】

    add:镇江市京口区学府路288号好吃街1号楼301

    tel:84426678 /15952899333

    扫下方微信,和本案设计师聊一聊


    更多宇祥装饰实景案例请点击:

    http://bbs.my0511.com/f328b



    [ 本帖最后由 my0511小妖 于 18-7-4 16:53 编辑 ]




    • 来自 江苏省
    • 精华 0
    • 注册 2017-12-20
    •  

    感觉不错




    • 来自 江苏省
    • 精华 6
    • 注册 2004-5-30
    • 行业 其它
    •  
    • 来自 江苏省
    • 精华 0
    • 注册 2018-4-1
    •  
    • 来自 江苏省
    • 精华 0
    • 注册 2012-7-9
    • 行业 其它
    •  

    赞一个!




    • 来自 江苏省
    • 精华 8
    • 注册 2010-9-13
    • 行业 房产建筑
    •  


    QUOTE:
    原帖由 塞纳春天客服 于 18-7-4 17:08 发表
    感觉不错
    谢谢




    • 来自 江苏省
    • 精华 8
    • 注册 2010-9-13
    • 行业 房产建筑
    •  


    QUOTE:
    原帖由 水幽伶 于 18-7-4 17:33 发表
    蛮温馨的
    谢谢




    • 来自 江苏省
    • 精华 53
    • 注册 2016-5-6
    •  

    不错




    • 来自 江苏省
    • 精华 8
    • 注册 2010-9-13
    • 行业 房产建筑
    •  


    QUOTE:
    原帖由 时立美缝 于 18-7-4 18:23 发表
    谢谢支持




    • 来自 江苏省
    • 精华 0
    • 注册 2017-4-17
    •  

    这个可以




    • 来自 江苏省
    • 精华 8
    • 注册 2010-9-13
    • 行业 房产建筑
    •  


    QUOTE:
    原帖由 jumping000 于 18-7-4 20:49 发表
    赞一个!
    谢谢




    • 来自 江苏省
    • 精华 8
    • 注册 2010-9-13
    • 行业 房产建筑
    •  


    QUOTE:
    原帖由 海文装饰客服 于 18-7-5 14:43 发表
    不错
    谢谢支持




    • 来自 江苏省
    • 精华 2
    • 注册 2016-12-14
    • 行业 房产建筑
    •  






    • 来自 江苏省
    • 精华 8
    • 注册 2010-9-13
    • 行业 房产建筑
    •  


    QUOTE:
    原帖由 中营巷子 于 18-7-6 22:35 发表
    这个可以
    谢谢支持




    • 来自 江苏省
    • 精华 0
    • 注册 2017-9-1
    •  

    装修的蛮好的




    • 来自 江苏省
    • 精华 8
    • 注册 2010-9-13
    • 行业 房产建筑
    •  


    QUOTE:
    原帖由 夜雨声烦1 于 18-7-11 08:58 发表
    装修的蛮好的
    谢谢支持!




    • 来自 江苏省
    • 精华 8
    • 注册 2010-9-13
    • 行业 房产建筑
    •  


    QUOTE:
    原帖由 孟元妈 于 18-7-11 21:10 发表
    谢谢支持!




    • 来自 江苏省
    • 精华 0
    • 注册 2017-9-1
    •  


    QUOTE:
    原帖由 jumping000 于 18-7-4 20:49 发表
    赞一个!
    好像看到你家也是宇祥装的吧?




    • 来自 江苏省
    • 精华 8
    • 注册 2010-9-13
    • 行业 房产建筑
    •  






    • 来自 江苏省
    • 精华 0
    • 注册 2017-7-13
    •  

    麻烦问下沙发后面那种线条在哪里做的啊?




    • 来自 江苏省
    • 精华 8
    • 注册 2010-9-13
    • 行业 房产建筑
    •  


    QUOTE:
    原帖由 寂寞不季寞 于 18-7-15 15:54 发表
    麻烦问下沙发后面那种线条在哪里做的啊?
    亿都




    • 来自 江苏省
    • 精华 8
    • 注册 2010-9-13
    • 行业 房产建筑
    •  






    查看积分策略说明快速回复主题
    您目前还是游客,请 登录注册
    您目前是游客,本帖已被系统设置了自动关闭,不可回复!

    0/5000字

     
    < >
     

    Powered by Discuz! X 2 0.075378 s 清除 Cookies - 镇江网友之家 - 手机版
    论坛导航 关闭