突然提笔写装修日记,还真不知道该从何说起了。回忆了一下,大概是今年7月开始寻找设计的,之前准备工作真的是啥也没做,也不太清楚自己的需求,这里要夸赞一下和我们家一起装修的一对盆友(简称R夫妇),他们那需求都写成个需求文档了,身为产品经理的我真是自愧不如,一个字:服!两个字:大写的服!
好了,一开始就随意了解嘛,问同事问朋友,然后实地去几家装修公司聊聊,一般他们都会给一份调查问卷,让我们写写自己的一些情况,比如家里人口啊、生活习惯啊、爱好啊、对设计的需求啊之类的,说实话写的时候才开始思考自己家想装成什么样,也开始了解各种装修风格,美式啊,日式啊,北欧啊之类的。。一开始接触的几家是比较大牌比较有名气的几家,说实话有的真的是接触了一次不想再接触第二次,设计师本人都那么不修边幅的,还能相信他能出什么好设计??也接触到比较勤奋认真的设计师,人也超app比如土巴兔、窝牛、好好住学到了很多,更加坚定了我们对于找一个好设计师的重要性。R夫妇在~)于是,我们也打算去了解一下。果不其然,他们的思维确实很活跃,解决了我们之前接触过的设计师都无法解决的难题,因为我们的户型吧,实在是太不好了,要想满足各种需求,也是不容易,不过这次不是张设计师(对了,我们设计师是周工,不过汤设计师也不闲着,全场参与讨论并给出很好的建议,给汤工点赞!)依然给出了我们比较满意的设计。后来也还接触了其他设计师,不过给出的最好的设计也和汤工差不多,细节还不如汤工设计的好。于是,嗯,你们懂得
平面设计定的差不多之后,就签约让周工出立面设计啦,就几百的押金签了啦。此时,本来还没有打算装修也找他们家,但后来了解了解吧,觉得前程的张老板很负责很靠谱,我们要是自己单独出去找装修,也不一定能和他们家设计配合的很好,而且他们家现在做整装,我们选择了
立面设计出了厚厚的一大本,深入沟通了很多细节,稍微需要做点修改。所以后来又修改了一版之后,再去签的合同。总之,合同是愉快的签了,先交了一部分前期的费用。接下来就是开工咯!!
【小区名称】复星国际半岛
【所在楼层】15
【建筑面积】95m2
【包工方式】799套餐
【装修公司】前程装饰整装
【开工日期】9月
【装修预算】硬装
墙漆:立邦
踢脚线:东鹏
木板:大自然田园橡木强化地板
马桶:恒洁
龙头:恒洁
门:优冠

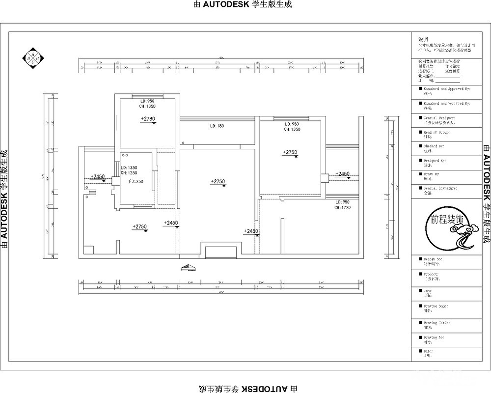
原始户型图

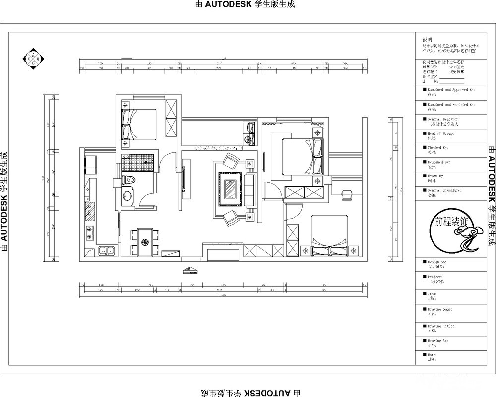
平面布置图



好久不来了,现在做到卫生间回填,前程装饰给我们家用了最新的卫生间回填工艺,叫“卫填宝”,是新研发出来的一种卫生间回填材料,比传统的回填方式要快还要省事又坚固,大家看下面的视频吧










效果不错,地面己干了,人走上去硬邦邦的,还没有沙尘,期待下面的施工越来越好!
[ 本帖最后由 凤凰来仪 于 2018-11-19 09:20 编辑 ]












