| 标题
快捷导航

精彩推荐:MY0511客户端下载

    • 中信银行镇江分行

    • 公益体彩 乐善人生

    • 鹏龙鸿蒙

    • 天然石材·人造石

    » 梦溪论坛 » 家庭装修 » 「简约」是一种生活态度
    家庭装修  >  [装修日记] 「简约」是一种生活态度     
    查看: 15118  回复: 75
     76  1/2  1  2  > 
    [装修日记] 「简约」是一种生活态度      查看: 15118  回复: 75
    • 来自 江苏省
    • 精华 0
    • 注册 2018-9-7
    •  
    「简约」是一种生活态度

    人生幸福的事莫过于和一个能陪你,爱你,宠你的男人白头到老,和他拥有一个属于自己的家,看着孩子逐渐成长,一家人温馨的生活在一起。随着孩子到来,买房成了我们头等大事,我和老公跑了不少小区,楼盘,也问过很多朋友,经过和家里人多次商议,最后决定就选京岘山庄了,小区整体绿化不错,设施也齐全,最主要的离上班地点也近。



    我是一名美术老师,本想着和老公两个人把尺寸量了,自己设计一番。然后找施工队自己装修,可是后来发现装修并非我俩想的那么简单,里面很多东西我俩压根不是特别懂。还是交给专业的装修公司,这样也比较放心一点,我和老公就开启了寻找装修之旅。



    老公找的是前程装饰,是一家老牌子公司。我们去看了他们的展厅,他们展厅挺大的,材料品牌也挺多的,但是因为家里有点事情,把装修给耽搁了一段时间。后来我们去看了他们的方案及设计师报给我们的一个预算,方案还可以,但是价格有点超出了我们的预算;



    听楼下有邻居在前程装饰装修过,邻居和我说他们公司价格比较实惠,然后我们就去了解,他们的价格确实相对于我了解过的公司来说算不高,但还是有点超我们的心理预算;不过幸好赶上他们公司转型跟整装云合作成功转型为一家整装公司(套餐模式),这样价格一下子就能便宜好多啦,设计师推荐我们选个999的套餐,性价比高,材料都是一线品牌。



    自己在网上也找了几家装修公司对比,本来是有考虑签他们的,但一直催我交个定金,考虑了下就没签,回去商量一下再做决定。



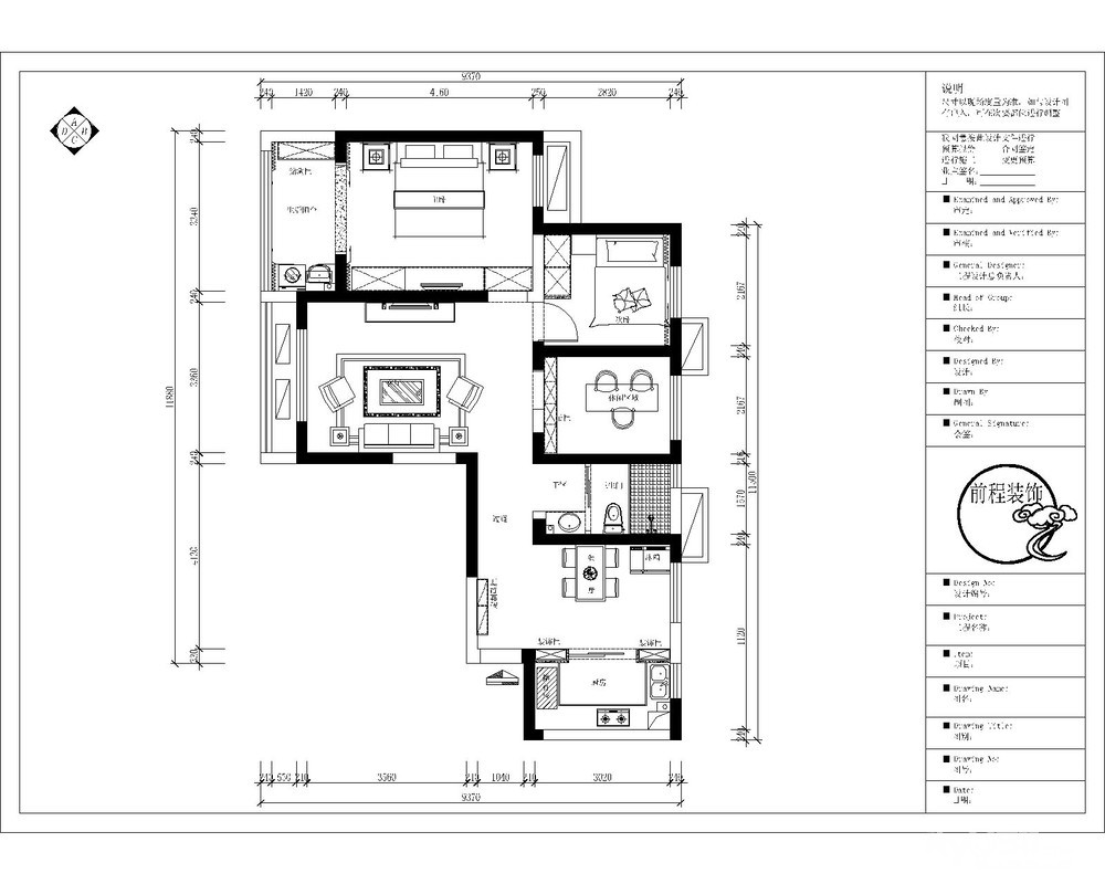
    看了四家公司就两家比较符合我和我老公的胃口,前程装饰和yihua装饰,当天晚上我们又在0511网上查了一下这两家公司,看看这两家公司的口碑如何。最终我们决定选择前程,因为镇江有很多小区都是他们家装的,现在整装里面有多个套餐可以选择,套餐内的材料还可以进行升级,好了不多说了来看照片吧~^_^






    [ 本帖最后由 罗汉果泡茶 于 2018-10-26 20:02 编辑 ]

































                      
    • 来自 江苏省
    • 精华 0
    • 注册 2010-6-15
    • 行业 房产建筑
    •  

    恭喜开贴




    • 来自 江苏省
    • 精华 0
    • 注册 2012-8-15
    • 行业 工业制造
    •  

    恭喜恭喜




    • 来自 江苏省
    • 精华 0
    • 注册 2010-6-15
    • 行业 房产建筑
    •  

    其实我从小就特别喜欢美术女老师,一上她的课眼镜都擦的特别亮!可用心的画画了




    • 来自 江苏省
    • 精华 0
    • 注册 2018-9-3
    •  
    • 来自 江苏省
    • 精华 0
    • 注册 2018-9-7
    •  

    开工大吉  温暖舒适的家就要装修好了   哈哈




    • 来自 江苏省
    • 精华 4
    • 注册 2010-3-19
    • 行业 房产建筑
    •  






    • 来自 江苏省
    • 精华 0
    • 注册 2018-9-26
    • 行业 房产建筑
    •  






    • 来自 江苏省
    • 精华 0
    • 注册 2018-10-26
    •  

    恭喜开贴




    • 来自 江苏省
    • 精华 0
    • 注册 2018-9-9
    •  

    恭喜恭喜




    • 来自 江苏省
    • 精华 4
    • 注册 2010-3-19
    • 行业 房产建筑
    •  

    谢谢楼主分享   期待完工




    • 来自 江苏省
    • 精华 4
    • 注册 2010-3-19
    • 行业 房产建筑
    •  

    谢谢楼主分享   期待完工




    • 来自 江苏省
    • 精华 0
    • 注册 2014-1-1
    • 行业 房产建筑
    •  






    • 来自 江苏省
    • 精华 4
    • 注册 2010-3-19
    • 行业 房产建筑
    •  

    谢谢楼主分享   期待完工




    • 来自 江苏省
    • 精华 53
    • 注册 2016-5-6
    •  

     恭喜开贴




    • 来自 江苏省
    • 精华 4
    • 注册 2010-3-19
    • 行业 房产建筑
    •  

    期待期待  




    • 来自 江苏省
    • 精华 4
    • 注册 2010-3-19
    • 行业 房产建筑
    •  

    期待期待




    • 来自 江苏省
    • 精华 0
    • 注册 2018-10-8
    •  

    优秀的美术老师




    • 来自 江苏省
    • 精华 4
    • 注册 2010-3-19
    • 行业 房产建筑
    •  

    温馨幸福的家     




    • 来自 江苏省
    • 精华 0
    • 注册 2018-10-26
    •  

    谢谢楼主分享




    • 来自 江苏省
    • 精华 4
    • 注册 2010-3-19
    • 行业 房产建筑
    •  






    • 来自 江苏省
    • 精华 4
    • 注册 2010-3-19
    • 行业 房产建筑
    •  

    期待期待




    • 来自 江苏省
    • 精华 4
    • 注册 2010-3-19
    • 行业 房产建筑
    •  






    • 来自 江苏省
    • 精华 4
    • 注册 2010-3-19
    • 行业 房产建筑
    •  






    • 来自 江苏省
    • 精华 4
    • 注册 2010-3-19
    • 行业 房产建筑
    •  

    期待期待




    • 来自 江苏省
    • 精华 4
    • 注册 2010-3-19
    • 行业 房产建筑
    •  






    • 来自 江苏省
    • 精华 108
    • 注册 2015-11-2
    •  






    • 来自 江苏省
    • 精华 4
    • 注册 2010-3-19
    • 行业 房产建筑
    •  






    • 来自 江苏省
    • 精华 4
    • 注册 2010-3-19
    • 行业 房产建筑
    •  






    • 来自 江苏省
    • 精华 4
    • 注册 2010-3-19
    • 行业 房产建筑
    •  






    • 来自 江苏省
    • 精华 4
    • 注册 2010-3-19
    • 行业 房产建筑
    •  

    价格选材都是很实惠的  谢谢分享




    • 来自 江苏省
    • 精华 4
    • 注册 2010-3-19
    • 行业 房产建筑
    •  






    • 来自 江苏省
    • 精华 4
    • 注册 2010-3-19
    • 行业 房产建筑
    •  






    • 来自 江苏省
    • 精华 4
    • 注册 2010-3-19
    • 行业 房产建筑
    •  






    • 来自 江苏省
    • 精华 4
    • 注册 2010-3-19
    • 行业 房产建筑
    •  






    • 来自 江苏省
    • 精华 4
    • 注册 2010-3-19
    • 行业 房产建筑
    •  

    谢谢大家




    • 来自 江苏省
    • 精华 4
    • 注册 2010-3-19
    • 行业 房产建筑
    •  






    • 来自 江苏省
    • 精华 4
    • 注册 2010-3-19
    • 行业 房产建筑
    •  

    谢谢大家




    • 来自 江苏省
    • 精华 4
    • 注册 2010-3-19
    • 行业 房产建筑
    •  






    • 来自 江苏省
    • 精华 4
    • 注册 2010-3-19
    • 行业 房产建筑
    •  






    • 来自 江苏省
    • 精华 4
    • 注册 2010-3-19
    • 行业 房产建筑
    •  






    • 来自 江苏省
    • 精华 4
    • 注册 2010-3-19
    • 行业 房产建筑
    •  

    温馨幸福的家




    • 来自 江苏省
    • 精华 4
    • 注册 2010-3-19
    • 行业 房产建筑
    •  






    • 来自 江苏省
    • 精华 4
    • 注册 2010-3-19
    • 行业 房产建筑
    •  






    • 来自 江苏省
    • 精华 222
    • 注册 2016-11-15
    • 行业 广告媒体
    •  

    恭喜开贴




    • 来自 江苏省
    • 精华 4
    • 注册 2010-3-19
    • 行业 房产建筑
    •  






    • 来自 江苏省
    • 精华 0
    • 注册 2010-5-8
    • 行业 其它
    •  






     76  1/2  1  2  > 
    查看积分策略说明快速回复主题
    您目前还是游客,请 登录注册
    您目前是游客,本帖已被系统设置了自动关闭,不可回复!

    0/5000字

     
    < >
     

    Powered by Discuz! X 2 0.085714 s 清除 Cookies - 镇江网友之家 - 手机版
    论坛导航 关闭