收藏本站
客户端
扫码下载客户端
官方微信
打开微信扫一扫
登录
|
注册
|
标题
标题
用户
全站首页
|
论坛导航
|
网络问政
|
招聘求职
|
买房租房
|
装修频道
|
生活服务
|
教育
|
相亲
|
亲子
|
美食
|
婚嫁
|
手机客户端
家有学子
|
母婴乐园
快捷导航
精彩推荐:
MY0511客户端下载
中信银行镇江分行
公益体彩 乐善人生
鹏龙鸿蒙
天然石材·人造石
»
梦溪论坛
»
家庭装修
» 户型图上的小符号暗藏玄机?学会只需一眼就能看穿
家庭装修
>
[经验分享]
户型图上的小符号暗藏玄机?学会只需一眼就能看穿
查看: 11940 回复: 4
快速回复
返回家庭装修
[经验分享]
户型图上的小符号暗藏玄机?学会只需一眼就能看穿
查看: 11940 回复: 4
上一主题
|
下一主题
my0511唐老鸭
论坛小编
来自 江苏省
精华
3
注册 2013-8-6
行业 IT 通信
户型图上的小符号暗藏玄机?学会只需一眼就能看穿
“买套房子穷三代,选错户型悔一生。”
买房族如果看不懂户型图,那可要真的抓!瞎!了!
明明是外开门却买回了内开式,
没提前看尺寸,结果浴室柜买大了放不下……
发生这些糟心事的原因几乎都是没有好好看户型图
到手一张户型图,你看懂的内容有多少?
[
本帖最后由 my0511唐老鸭 于 2018-10-29 15:37 编辑
]
已有
0
人打赏
2018-10-29 15:36
1楼
买房、卖房、租房上镇江房产网!
只看该作者
分享本楼
my0511唐老鸭
论坛小编
来自 江苏省
精华
3
注册 2013-8-6
行业 IT 通信
户型图上有哪些小图标?
1、大门:外开门/内开门
扇形向外开的是外开门,向内开的是内开门。现在的房子基本上都是大门外开,卧室门内开。
购买防盗门时一定要跟商家备注清楚开门方式,因为一般都是量尺定做的
。
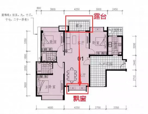
2、窗户
窗户可以分为窗户,飘窗,落地窗等等。
窗户一般是三线连接,无凸出;
飘窗是一段凸出的矩形,上端也是三根线,下端是虚线;
落地窗画法和飘窗是差不多的,但是看上去更大,一般户型图也会标注出来。
飘窗也分可砸和不可砸飘窗,如果在户型图上没有直接显示,那施工前要提前确认清楚。
3、承重墙
黑粗的线条就是承重墙。对于承重墙,原则就是千万不要动。
不要轻易相信设计师说这里也能改那里也能改,
学会看懂大致的承重墙位置,对后期的装修也可以了然于心,也能更好地跟设计师沟通。
4、活墙
一般是呈现空的矩形,仅用于间隔空间用,可以拆除并灵活改造户型。
5、空调外机位
一般客厅和卧室外墙都应该留有统一的空调机位置,一个矩形中间一个×的就是空调外机位。
有的小区空调机位是挨着的,一定要找对位置。
还有的小区是两户共享一个机位,安装之前记得确认清楚。
6、衣柜位置
房间墙上一个长方形上加很多横杠的就是衣柜位置,看户型图可以大概计算衣柜可以有多大。
7、标尺
户型图里的标尺也不容忽视,有助于帮助我们了解各个功能区的大小,
根据数字相乘计算,用眼睛直接看并不直观。
有些房子三居室四居室,看起来很丰满,其实每个空间都极其小。
买家电或洁具时,一定要提前在户型图上确定空间尺寸,避免出现最后买回来放不下的情况。
8、指北针
户型图旁边,一般会有一个总平图,会明确标注小区的楼栋分布,本户型所在位置。
可以根据这个总平图判断房子的具体方位。
总平图上还会有一个指北针,没有标注的话,就默认是上北下南左西右东。有助于买房时看朝向和采光。
[
本帖最后由 my0511唐老鸭 于 2018-10-30 15:29 编辑
]
2018-10-29 16:21
2楼
[联宇电脑] 电脑组装\维修\升级\企业单位电脑维护!
只看该作者
分享本楼
my0511唐老鸭
论坛小编
来自 江苏省
精华
3
注册 2013-8-6
行业 IT 通信
户型布局
住宅的户型布局相当重要,关系到我们入住后的舒适程度和方便程度。
布局如果不合理,就要改动,那都是明晃晃的金钱要撒出去了。
一般意义上,满足了以下条件的才是好布局——
明厨明卫/动静分区/干湿分离/南北通透
明厨明卫
厨房和卫生间都要有窗户,光线条件比较好。相反的是暗厨暗卫,两者都没有窗户。
动静分区
动区是指客厅、厨房。阳台等活动区。静区是指卧室、书房等休息区。
动静分区就是把这两类场所分开,互不干扰。
不是一块一块琐碎分割开来的,而是两个大块。
干湿分离
就是把保持干燥空间与常用水的区域分离。就是卧室、客厅和厨房、卫生间是要分开的。
动静分区和干湿分离结合一下,就是以下这张图
南北通透
大部分房子的格局是坐北朝南。
所谓的南北通透,指的是贯穿客厅,南北都有窗户,能够保证空气对流。
一方面是住起来亮堂,另一方面是南北通风。这样才可以说是布局好的房子。
相邻两面有窗户可以通风和采光,次之。
[
本帖最后由 my0511唐老鸭 于 2018-10-30 14:58 编辑
]
2018-10-30 14:58
3楼
买房、卖房、租房上镇江房产网!
只看该作者
分享本楼
my0511唐老鸭
论坛小编
来自 江苏省
精华
3
注册 2013-8-6
行业 IT 通信
户型规避
卫生间正对卧室
卫生间在住宅里是最为潮湿,也最有味道的。
如果卫生间的大门正对卧室,空气直接通过卧室散发出去,妥妥的影响身体和心理健康啊。
户型缺角
无论是刀把型户型,还是三角形户型,
或者什么奇葩户型,都缺角严重,都不是什么方正的优秀的户型。
要么浪费空间,要么采光通风不佳。
户型图上的房间四忌
1. 厨房忌正对大门、卧室门、厕所门等。
2. 外门忌直通型,尽量避免穿堂风。
3. 卫生间忌设在房、厨房内、靠近大门和正对卧室的地方。
4. 卧室里的床忌正对储藏间和卫生间的门。
[
本帖最后由 my0511唐老鸭 于 2018-10-30 15:21 编辑
]
2018-10-30 15:05
4楼
0511家装频道:本地家居服务平台,数万业主共同选择
只看该作者
分享本楼
my0511唐老鸭
论坛小编
来自 江苏省
精华
3
注册 2013-8-6
行业 IT 通信
户型图上的数字
合理的开间和进深关系到一个舒适性高的居住环境。
从这些数字可以看出房屋的开间和进深比,同时算出房屋的相对应区域的面积大小。
一般房间的采光面为南北向,所以简单点来理解,
开间是指的是东西向长度,进深指的是南北向长度。
规定的住宅建筑的开间通常采用这些参数:2.1m、2.4m、2.7m、3.0m、3.3m、3.6m、3.9m、4.2m。
购房者通常会根据户型进深和开间的比作为衡量户型是否方正的指标,
正常比值应该在1~1.5之间。
如果比值过大,即进深大开间小,就会影响采光通风,房屋会过于昏暗。
如果比值过小,即进深小开间大,就会影响室内的保温效果,冬天和夏天自然需要消耗的能源来保持一定的温度。
学会看户型图,掌握了房子的细节,才能在装修的时候做个明白人。
[
本帖最后由 my0511唐老鸭 于 2018-12-12 14:15 编辑
]
2018-10-30 15:21
5楼
0511家装频道:本地家居服务平台,数万业主共同选择
只看该作者
分享本楼
返回家庭装修
快速回复主题
游客
您目前还是游客,请
登录
或
注册
您目前是游客,本帖已被系统设置了自动关闭,不可回复!
文明交流,理性发言
0/5000字
<
>
请在打开的新窗口中支付完成打赏
我已完成支付打赏
支付失败重新支付
其他金额
打赏金额:
元
确定
支付打赏
提 现
打赏人
打赏金额(元)
打赏时间
Powered by
Discuz! X 2
0.064501 s
清除 Cookies
-
镇江网友之家
-
手机版
论坛导航
关闭
吃喝玩乐
饮食男女
镇江钓友之家
菜菜鸟户外
镇江单车俱乐部
镜头里的镇江
畅游天下
猫狗总动员
视觉Coffeeshop摄影部落
花鸟鱼虫
婚姻.亲子.家庭
家有学子
谈婚论嫁
女性天地
母婴乐园
婚姻生活
梦溪佳缘
装修
家庭装修
装修招标
镇江室内设计师交流
装修商家直通车
你好,镇江!
百姓话题
我要买房
0511爱心家园
市场监管•12315热线
分类信息
生活服务
闲置转让
镇江二手房/镇江租房
镇江招聘求职
教育培训
镇江二手车
商铺厂房写字楼租售
宠物市场
运动健身
卡券交易
电脑维修升级
杂货铺
其他分类信息区
兴趣爱好
HiFi音响江城沙龙
镇江市美术家协会
我爱模型
车友俱乐部
车迷之家
汽车驾培中心
运动俱乐部
镇江市冬泳、铁人三项协会
聚焦足球
镇江羽毛球
镇江乒乓球协会
镇江网球协会
镇江市自行车运动协会
热爱篮球
动力机车
合作栏目
维权热线
天翼时代
色觉影像摄影工作室
站务区
疑问与建议
网络问政
市政府工作部门
垂直管理部门
党群工作部门
其他重点单位
辖市(区)