2019新的一年,圆梦湖旁,新一外学子楼边,我的轻奢风帆即将起航!
【小区名称】:首创悦府悦澜苑
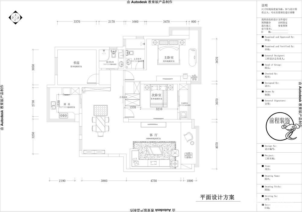
【所在楼层】:4楼
【建筑面积】:施工面积127平
【装修风格】:现代轻奢
【包工方式】:半包
【装修公司】:前程装饰
【装修设计】:陈桂玲
【开工日期】:2019年03月04日
【装修预算】:26万(含整屋家具定制和阳光房)
[ 本帖最后由 笑看沧海 于 2019-4-16 21:21 编辑 ]
- 来自 江苏省
- 精华 0
- 注册 2004-12-30
- 来自 江苏省
- 精华 0
- 注册 2004-12-30
装潢公司的选择历程:
房子已经买了四年多了,由于不急着住,一直没有装潢。八月份的时候眼看装修材料不断上涨,我也开始着手房屋的装修了。选装修公司是件令人头疼的事情,装修公司鱼龙混杂,有外地加盟一站式的,有街边作坊式小型的,也有镇江本土大中小各型的。我在0511家庭装修版也浏览了近百条装修日记,发现不管大小装修公司,都各有各的亮点,也有自身的不足。我尝试着先找了一家公司,说明了我先看设计未必确定。公司服务倒也非常热情,让我看了设计师的部分作品,并到装修主家看了,作品和真实场景相似度很高。于是我让设计师量房,并说了我的一些装修意见。设计师在后续修改我房屋设计的时候,我明显感到他对一些地方的改造经验不足。等问具体半包价格的时候,回我必须交了定金才能做详细报表。也是很偶然吧,我在装版看到前程装饰的一个关于卫生间地坪材料的广告,就电话联系了一下。陈桂玲设计师接待了我,我也对她实事求是表明了我的意思,货比三家嘛。我要看看她的设计以及她的作品,说实在的,在装修板块我没有看到过有关前程装饰的装修日记,对这个公司还真没有什么感觉。陈桂玲设计师也是十分热情的帮我量了房,也和我进行了沟通,也带我看了她们公司正在装的房子。一个星期后,陈桂玲设计师电话告诉我结构设计图她已经做好让去她们公司看看。让我惊讶的是,她不仅设计好了结构图,连装修的详细报表都做好并打印出来了。我跟她说,我不一定选你家公司啊,你做这么详细,可能是在浪费时间啊。我嘴上这么说,其实心里觉得陈工还是很踏实细致并有诚意的。她说没关系的,你也可以和别家做个对比。后来禁不住另外一家热情的电话,又让一家量了房,但是却发现这家量的每一个长度都比陈工长约一厘米。或许是陈桂玲设计师的诚意打动了我,我又让她带着我和她们公司老板张总交流了一次。得知前程装饰公司在镇江已经发展十几年了,公司在新材料新技术方面肯下功夫,工人相对稳定。这一次交流我感觉到前程的张总诚恳坦率,对自己公司的弱点毫不避讳,让我留下深刻的印象,于是我决定选择前程装饰公司。在此我也祝愿前程装饰公司在新的一年里前程更加远大,也希望我和前程公司的合作愉快美满!
[ 本帖最后由 笑看沧海 于 2019-1-2 13:04 编辑 ]
房子已经买了四年多了,由于不急着住,一直没有装潢。八月份的时候眼看装修材料不断上涨,我也开始着手房屋的装修了。选装修公司是件令人头疼的事情,装修公司鱼龙混杂,有外地加盟一站式的,有街边作坊式小型的,也有镇江本土大中小各型的。我在0511家庭装修版也浏览了近百条装修日记,发现不管大小装修公司,都各有各的亮点,也有自身的不足。我尝试着先找了一家公司,说明了我先看设计未必确定。公司服务倒也非常热情,让我看了设计师的部分作品,并到装修主家看了,作品和真实场景相似度很高。于是我让设计师量房,并说了我的一些装修意见。设计师在后续修改我房屋设计的时候,我明显感到他对一些地方的改造经验不足。等问具体半包价格的时候,回我必须交了定金才能做详细报表。也是很偶然吧,我在装版看到前程装饰的一个关于卫生间地坪材料的广告,就电话联系了一下。陈桂玲设计师接待了我,我也对她实事求是表明了我的意思,货比三家嘛。我要看看她的设计以及她的作品,说实在的,在装修板块我没有看到过有关前程装饰的装修日记,对这个公司还真没有什么感觉。陈桂玲设计师也是十分热情的帮我量了房,也和我进行了沟通,也带我看了她们公司正在装的房子。一个星期后,陈桂玲设计师电话告诉我结构设计图她已经做好让去她们公司看看。让我惊讶的是,她不仅设计好了结构图,连装修的详细报表都做好并打印出来了。我跟她说,我不一定选你家公司啊,你做这么详细,可能是在浪费时间啊。我嘴上这么说,其实心里觉得陈工还是很踏实细致并有诚意的。她说没关系的,你也可以和别家做个对比。后来禁不住另外一家热情的电话,又让一家量了房,但是却发现这家量的每一个长度都比陈工长约一厘米。或许是陈桂玲设计师的诚意打动了我,我又让她带着我和她们公司老板张总交流了一次。得知前程装饰公司在镇江已经发展十几年了,公司在新材料新技术方面肯下功夫,工人相对稳定。这一次交流我感觉到前程的张总诚恳坦率,对自己公司的弱点毫不避讳,让我留下深刻的印象,于是我决定选择前程装饰公司。在此我也祝愿前程装饰公司在新的一年里前程更加远大,也希望我和前程公司的合作愉快美满!
[ 本帖最后由 笑看沧海 于 2019-1-2 13:04 编辑 ]
- 来自 江苏省
- 精华 0
- 注册 2004-12-30
- 来自 江苏省
- 精华 0
- 注册 2004-12-30
- 来自 江苏省
- 精华 0
- 注册 2018-10-14
- 来自 江苏省
- 精华 0
- 注册 2004-12-30











