| 标题
快捷导航

精彩推荐:MY0511客户端下载

    • 中信银行镇江分行

    • 公益体彩 乐善人生

    • 鹏龙鸿蒙

    • 天然石材·人造石

    » 梦溪论坛 » 家庭装修 » 静谧——永隆城市广场完工实景毕业照
    家庭装修  >  [完工毕业照] 静谧——永隆城市广场完工实景毕业照     
    查看: 20660  回复: 25
    [完工毕业照] 静谧——永隆城市广场完工实景毕业照      查看: 20660  回复: 25
    • 来自 江苏省
    • 精华 3
    • 注册 2013-8-6
    • 行业 IT 通信
    •  
    静谧——永隆城市广场完工实景毕业照

    项目地址 /   镇江永隆城市广场

    项目面积 /   190㎡

    项目风格 /   现代

    设计单位 /   佰壹营造

    施工单位/    佰壹施工



    "这个人也许永远不回来了,

      也许明天回来!“

              —— 沈从文《边城》


    这是喜欢的一部小说的结尾

    让人遐想、牵挂

    留白是诗文画作中常用手法

    而在极简主义的家居风格中也被大量运用

    抛弃繁杂的设计

    留出更多空间和可能性


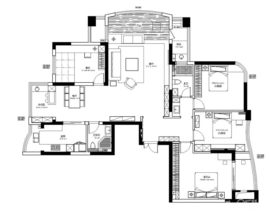
    — 原始结构图 —


    — 平面布置图 —




    [ 本帖最后由 my0511唐老鸭 于 2019-10-24 10:04 编辑 ]





                      
    • 来自 江苏省
    • 精华 3
    • 注册 2013-8-6
    • 行业 IT 通信
    •  

    — 门厅 —



    — 客厅 —



    客厅无需物件的赘饰,

    是褪去疲倦舒缓身心的一方天地,是与亲情在无尽的空间悄悄绽放,是那一刻不想被打扰的恬静悠然时光。



    [ 本帖最后由 my0511唐老鸭 于 2019-10-24 09:56 编辑 ]




    • 来自 江苏省
    • 精华 3
    • 注册 2013-8-6
    • 行业 IT 通信
    •  

      — 餐厅 —



    大理石桌面,绿植精心点缀,质感、烟火味,才是家的生活轨迹。


    — 厨房 —




    [ 本帖最后由 my0511唐老鸭 于 2019-10-24 09:57 编辑 ]




    • 来自 江苏省
    • 精华 3
    • 注册 2013-8-6
    • 行业 IT 通信
    •  

    — 书房 —



    — 客卫 —




    [ 本帖最后由 my0511唐老鸭 于 2019-10-24 09:58 编辑 ]




    • 来自 江苏省
    • 精华 3
    • 注册 2013-8-6
    • 行业 IT 通信
    •  

    — 卧室 —



    卧室不被物质围绕拥挤,空间内只有极少量的必需品。

    再累的工作,做繁琐的安排,也不敌走进卧室的吸引力


    — 儿童房 —



    儿童房趋向于孩子拥有更多的活动空间。


    — 主卫 —




    [ 本帖最后由 my0511唐老鸭 于 2019-10-24 10:00 编辑 ]




    • 来自 江苏省
    • 精华 3
    • 注册 2013-8-6
    • 行业 IT 通信
    •  


    更多佰壹营造案例请点击:

    http://bbs.my0511.com/f1293b



    [ 本帖最后由 my0511唐老鸭 于 2019-10-24 10:02 编辑 ]




    • 来自 江苏省
    • 精华 1
    • 注册 2009-4-11
    • 行业 其它
    •  



    [ 本帖最后由 雅¢雅 于 2019-10-24 11:11 编辑 ]




    • 来自 江苏省
    • 精华 5
    • 注册 2019-3-30
    • 行业 基础设施
    •  






    • 来自 江苏省
    • 精华 0
    • 注册 2013-10-21
    •  

    墙上的钟是在哪买的呀?




    • 来自 江苏省
    • 精华 1
    • 注册 2019-8-30
    • 行业 房产建筑
    •  
    • 来自 江苏省
    • 精华 5
    • 注册 2019-3-30
    • 行业 基础设施
    •  






    • 来自 江苏省
    • 精华 19
    • 注册 2019-4-30
    • 行业 房产建筑
    •  


    QUOTE:
    原帖由 维尼饭 于 2019-10-25 14:47 发表
    墙上的钟是在哪买的呀?
    淘宝网购  搜索西班牙极简钟




    • 来自 江苏省
    • 精华 0
    • 注册 2019-3-13
    •  






    • 来自 江苏省
    • 精华 0
    • 注册 2011-5-13
    • 行业 其它
    •  

    橱柜门板什么材质的啊




    • 来自 江苏省
    • 精华 18
    • 注册 2007-8-31
    • 行业 房产建筑
    •  


    QUOTE:
    原帖由 稳稳 于 2019-10-29 13:51 发表
    橱柜门板什么材质的啊
    高分子




    • 来自 江苏省
    • 精华 1
    • 注册 2006-6-2
    • 行业 货代物流
    •  

    就想知道花费了多少钱




    • 来自 江苏省
    • 精华 5
    • 注册 2019-3-30
    • 行业 基础设施
    •  






    • 来自 江苏省
    • 精华 19
    • 注册 2019-4-30
    • 行业 房产建筑
    •  


    QUOTE:
    原帖由 风雨轩主 于 2019-10-31 21:01 发表
    就想知道花费了多少钱
    半包11.2W(无增项)
    整体落地价格52W(包含所有软装配饰,家电)

    [ 本帖最后由 佰壹营造 于 2019-11-1 11:02 编辑 ]




    • 来自 江苏省
    • 精华 0
    • 注册 2013-2-26
    • 行业 商业贸易
    •  

    *** 作者因违反论坛规定,禁言处理,内容自动屏蔽 ***

    详情参阅论坛注册条款:
    http://bbs.my0511.com/f11b-t2789156z


    • 来自 江苏省
    • 精华 5
    • 注册 2019-3-30
    • 行业 基础设施
    •  






    • 来自 江苏省
    • 精华 1
    • 注册 2017-8-10
    • 行业 其它
    •  
    • 来自 江苏省
    • 精华 0
    • 注册 2011-9-13
    • 行业 其它
    •  

    楼主家具在哪买的啊?沙发和床等我蛮喜欢的,麻烦告知一下被




    • 来自 江苏省
    • 精华 19
    • 注册 2019-4-30
    • 行业 房产建筑
    •  


    QUOTE:
    原帖由 阿兔兔兔 于 2019-11-14 13:30 发表
    楼主家具在哪买的啊?沙发和床等我蛮喜欢的,麻烦告知一下被
    红星美凯龙华意空间




    • 来自 江苏省
    • 精华 5
    • 注册 2019-3-30
    • 行业 基础设施
    •  






    查看积分策略说明快速回复主题
    您目前还是游客,请 登录注册
    您目前是游客,本帖已被系统设置了自动关闭,不可回复!

    0/5000字

     
    < >
     

    Powered by Discuz! X 2 0.079810 s 清除 Cookies - 镇江网友之家 - 手机版
    论坛导航 关闭