收藏本站
客户端
扫码下载客户端
官方微信
打开微信扫一扫
登录
|
注册
|
标题
标题
用户
全站首页
|
论坛导航
|
网络问政
|
招聘求职
|
买房租房
|
装修频道
|
生活服务
|
教育
|
相亲
|
亲子
|
美食
|
婚嫁
|
手机客户端
家有学子
|
母婴乐园
快捷导航
精彩推荐:
MY0511客户端下载
中信银行镇江分行
公益体彩 乐善人生
鹏龙鸿蒙
天然石材·人造石
»
梦溪论坛
»
家庭装修
» 路漫漫其修远兮,吾将上下而求索----装修
家庭装修
>
[装修日记]
路漫漫其修远兮,吾将上下而求索----装修
查看: 22490 回复: 72
快速回复
返回家庭装修
73
1/2
1
2
>
[装修日记]
路漫漫其修远兮,吾将上下而求索----装修
查看: 22490 回复: 72
上一主题
|
下一主题
小鹿丁丁
来自 江苏省
精华 0
注册 2019-11-17
路漫漫其修远兮,吾将上下而求索----装修
路漫漫其修远兮,吾将上下而求索----装修
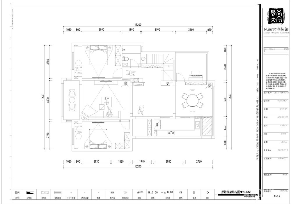
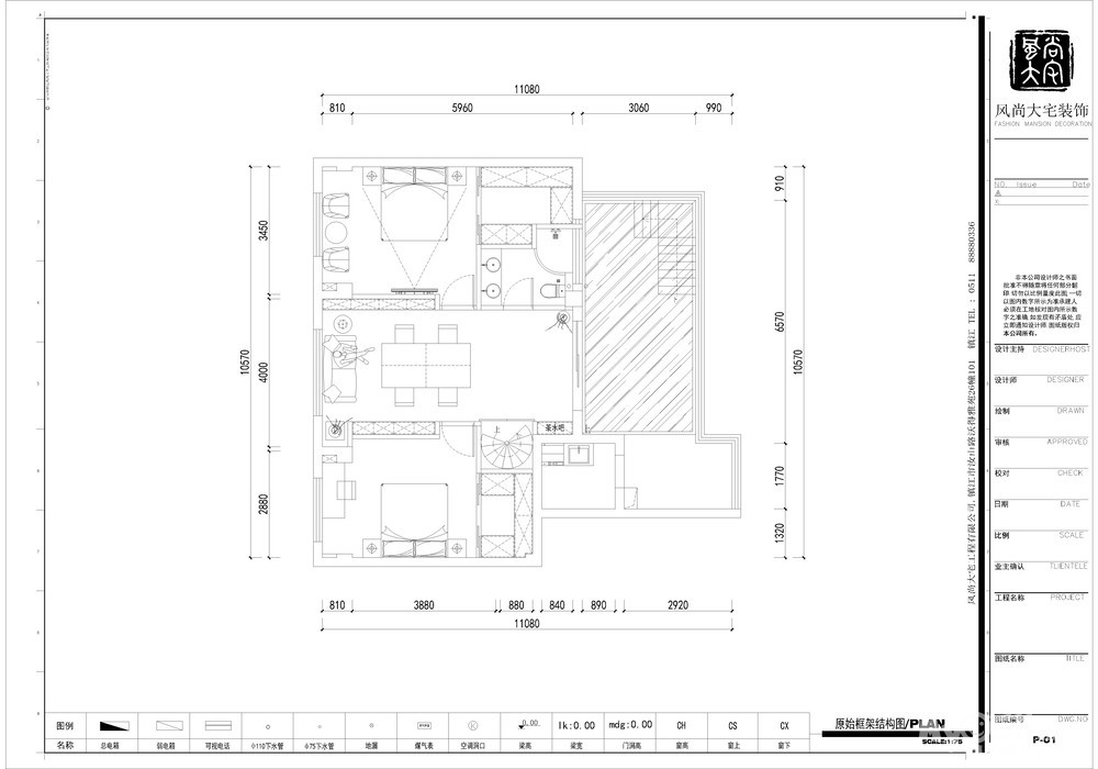
【小区名称】:中建大观洋房
【建筑面积】:240平
【所在楼层】
:5层
【装修风格】:现代风格
【包工方式】:半包
【装修公司】:镇江风尚大宅
李长鑫
【开工日期】:2019年11月13日
【装修预算】:
未来可期
【户型图片】:
如下
欢迎加入家装官方VIP大宅QQ群 群号:565444352
[
本帖最后由 my0511菲雪 于 2019-11-18 09:16 编辑
]
已有 镇江风尚大宅, 红居装饰, 飞流直上, 卓美软装
4
人打赏
2019-11-17 15:24
1楼
找工作,就上MY0511!
只看该作者
分享本楼
小鹿丁丁
来自 江苏省
精华 0
注册 2019-11-17
买房\装修
就想买一梯一户的,如愿以偿。
抖音中毒太深,大数据天天给我推送,电梯门一开,家里有娃等着,多好多幸福!
装修情怀,哈哈哈哈
都是骗人的!
只想要个合理的区域规划和恰到好处的收纳,装饰一个全家人都喜欢的家。
确认过眼神,遇上了对的人!
未完待续
[
本帖最后由 小鹿丁丁 于 2019-11-17 16:16 编辑
]
2019-11-17 15:27
2楼
买房、卖房、租房上镇江房产网!
只看该作者
分享本楼
小鹿丁丁
来自 江苏省
精华 0
注册 2019-11-17
效果图
[
本帖最后由 小鹿丁丁 于 2019-12-3 17:38 编辑
]
2019-11-17 15:28
3楼
[联宇电脑] 电脑组装\维修\升级\企业单位电脑维护!
只看该作者
分享本楼
伊慕装饰
专版版主
来自 江苏省
精华 0
注册 2014-10-16
欢迎新同学
2019-11-17 15:31
4楼
买房、卖房、租房上镇江房产网!
只看该作者
分享本楼
佰丽爱家
来自 江苏省
精华 0
注册 2019-4-8
行业 其它
欢迎
---发自梦溪论坛手机客户端---
2019-11-17 15:31
5楼
MY0511相亲,一分钟注册,享一辈子幸福!
只看该作者
分享本楼
青田门业
来自 江苏省
精华 0
注册 2011-9-16
行业 商业贸易
2019-11-17 15:40
6楼
买房、卖房、租房上镇江房产网!
只看该作者
分享本楼
皮皮霞
来自 江苏省
精华 0
注册 2018-9-13
开工大吉
---发自华为---
2019-11-17 15:42
7楼
找工作,就上MY0511!
只看该作者
分享本楼
我就是天堂
来自 江苏省
精华
24
注册 2006-7-1
行业 其它
---发自梦溪论坛手机客户端---
2019-11-17 15:58
8楼
0511家装频道:本地家居服务平台,数万业主共同选择
只看该作者
分享本楼
sunsulin850506
来自 江苏省
精华 0
注册 2018-11-8
恭喜恭喜
---发自华为---
2019-11-17 16:02
9楼
0511家装频道:本地家居服务平台,数万业主共同选择
只看该作者
分享本楼
森香木门楼梯
来自 江苏省
精华 0
注册 2018-4-17
---发自iPhone XR---
2019-11-17 16:12
10楼
[联宇电脑] 电脑组装\维修\升级\企业单位电脑维护!
只看该作者
分享本楼
红居装饰
专版版主
来自 江苏省
精华
415
注册 2016-10-30
行业 房产建筑
开工大吉哦
2019-11-17 16:26
11楼
找工作,就上MY0511!
只看该作者
分享本楼
飞流直上
来自 江苏省
精华 0
注册 2019-11-17
持续关注
---发自梦溪论坛手机客户端---
2019-11-17 17:10
12楼
0511家装频道:本地家居服务平台,数万业主共同选择
只看该作者
分享本楼
牛牛的妈
来自 江苏省
精华 0
注册 2010-8-21
行业 其它
我家前面一排顶楼有家玻璃上贴着这家装修公司的名字,不会是楼主家吧?
---发自华为---
2019-11-17 21:30
13楼
0511家装频道:本地家居服务平台,数万业主共同选择
只看该作者
分享本楼
泽一设计
专版版主
来自 江苏省
精华
72
注册 2018-3-2
行业 房产建筑
开工大吉
2019-11-18 08:46
14楼
MY0511相亲,一分钟注册,享一辈子幸福!
只看该作者
分享本楼
syhsopo
来自 江苏省
精华 0
注册 2006-6-12
[quote]原帖由
小鹿丁丁
于 2019-11-17 15:24 发表
小区名称】:中建大观洋房
【建筑面积】:240平
【所在楼层】
:5层
【装修风格】:现代风格
【包工方式】:半包
【装修公司】:镇江风尚大宅
李长鑫
【开工日期】:2019年11月13日
[quote]
大大房
2019-11-18 09:27
15楼
买房、卖房、租房上镇江房产网!
只看该作者
分享本楼
syhsopo
来自 江苏省
精华 0
注册 2006-6-12
QUOTE:
原帖由
小鹿丁丁
于 2019-11-17 15:27 发表
买房\装修 就想买一梯一户的,如愿以偿。
抖音中毒太深,大数据天天给我推送,电梯门一开,家里有娃等着,多好多幸福!
装修情怀,哈哈哈哈
都是骗人的!
只想 ...
独门
2019-11-18 09:28
16楼
MY0511相亲,一分钟注册,享一辈子幸福!
只看该作者
分享本楼
诗尼曼
家装认证商户
来自 江苏省
精华 0
注册 2009-10-7
行业 基础设施
2019-11-18 09:36
17楼
0511家装频道:本地家居服务平台,数万业主共同选择
只看该作者
分享本楼
波涛装饰客服1
来自 江苏省
精华
5
注册 2018-4-18
开工大吉
2019-11-18 09:48
18楼
MY0511相亲,一分钟注册,享一辈子幸福!
只看该作者
分享本楼
酸橙辣椒
来自 江苏省
精华 0
注册 2019-8-27
开工大吉
---发自vivo---
2019-11-18 10:10
19楼
MY0511相亲,一分钟注册,享一辈子幸福!
只看该作者
分享本楼
莫干山衣柜
来自 江苏省
精华 0
注册 2012-8-13
行业 其它
开工大吉
2019-11-18 10:14
20楼
买房、卖房、租房上镇江房产网!
只看该作者
分享本楼
莫干山衣柜
来自 江苏省
精华 0
注册 2012-8-13
行业 其它
开工大吉
2019-11-18 10:14
21楼
找工作,就上MY0511!
只看该作者
分享本楼
莫干山衣柜
来自 江苏省
精华 0
注册 2012-8-13
行业 其它
开工大吉
2019-11-18 10:14
22楼
买房、卖房、租房上镇江房产网!
只看该作者
分享本楼
怡然家装饰
来自 江苏省
精华
7
注册 2019-5-9
开工大吉
2019-11-18 11:31
23楼
MY0511相亲,一分钟注册,享一辈子幸福!
只看该作者
分享本楼
关亨木门
来自 江苏省
精华 0
注册 2010-5-8
行业 其它
2019-11-18 12:18
24楼
0511家装频道:本地家居服务平台,数万业主共同选择
只看该作者
分享本楼
镇江德国都芳漆
来自 江苏省
精华 0
注册 2014-5-17
行业 商业贸易
开工大吉
2019-11-18 12:33
25楼
[联宇电脑] 电脑组装\维修\升级\企业单位电脑维护!
只看该作者
分享本楼
卓美软装
专版版主
来自 江苏省
精华
13
注册 2016-5-19
恭喜楼主开工大吉
---发自华为---
2019-11-18 12:38
26楼
MY0511相亲,一分钟注册,享一辈子幸福!
只看该作者
分享本楼
prettytiger1
来自 江苏省
精华 0
注册 2006-9-11
行业 商业贸易
恭喜恭喜
2019-11-18 13:27
27楼
找工作,就上MY0511!
只看该作者
分享本楼
yadilo雅帝乐
来自 江苏省
精华 0
注册 2018-12-12
行业 其它
开工大吉,一梯一户不错,上次去过那边
---发自iPhone 7 Plus---
2019-11-18 13:39
28楼
[联宇电脑] 电脑组装\维修\升级\企业单位电脑维护!
只看该作者
分享本楼
小鹿丁丁
来自 江苏省
精华 0
注册 2019-11-17
QUOTE:
原帖由
牛牛的妈
于 2019-11-17 21:30 发表
我家前面一排顶楼有家玻璃上贴着这家装修公司的名字,不会是楼主家吧?
应该是我家
---发自梦溪论坛手机客户端---
2019-11-18 15:42
29楼
买房、卖房、租房上镇江房产网!
只看该作者
分享本楼
小鹿丁丁
来自 江苏省
精华 0
注册 2019-11-17
QUOTE:
原帖由
prettytiger1
于 2019-11-18 13:27 发表
恭喜恭喜
谢谢
---发自梦溪论坛手机客户端---
2019-11-18 15:43
30楼
MY0511相亲,一分钟注册,享一辈子幸福!
只看该作者
分享本楼
小鹿丁丁
来自 江苏省
精华 0
注册 2019-11-17
QUOTE:
原帖由
syhsopo
于 2019-11-18 09:28 发表
独门
---发自梦溪论坛手机客户端---
2019-11-18 15:43
31楼
[联宇电脑] 电脑组装\维修\升级\企业单位电脑维护!
只看该作者
分享本楼
小鹿丁丁
来自 江苏省
精华 0
注册 2019-11-17
QUOTE:
原帖由
飞流直上
于 2019-11-17 17:10 发表
持续关注
谢谢你
---发自梦溪论坛手机客户端---
2019-11-18 15:44
32楼
[联宇电脑] 电脑组装\维修\升级\企业单位电脑维护!
只看该作者
分享本楼
小鹿丁丁
来自 江苏省
精华 0
注册 2019-11-17
2019年11月13日 上午9:08开工
新的开始,一切大吉大利!
[
本帖最后由 小鹿丁丁 于 2019-11-18 17:46 编辑
]
2019-11-18 17:46
33楼
MY0511相亲,一分钟注册,享一辈子幸福!
只看该作者
分享本楼
小鹿丁丁
来自 江苏省
精华 0
注册 2019-11-17
客服小姐姐,暖心提示。好的服务是值得表扬的
2019-11-18 17:49
34楼
找工作,就上MY0511!
只看该作者
分享本楼
小鹿丁丁
来自 江苏省
精华 0
注册 2019-11-17
明天签约土建,一步步来吧!话说装修日记不是随便写写的,不会修图真的不知道怎么写
文字不够,图片来凑!
2019-11-18 17:51
35楼
0511家装频道:本地家居服务平台,数万业主共同选择
只看该作者
分享本楼
大唐合盛瓷砖
来自 江苏省
精华 0
注册 2014-8-14
行业 商业贸易
恭喜开工
2019-11-19 08:59
36楼
买房、卖房、租房上镇江房产网!
只看该作者
分享本楼
牛牛的妈
来自 江苏省
精华 0
注册 2010-8-21
行业 其它
我家80栋
---发自华为---
2019-11-19 12:31
37楼
0511家装频道:本地家居服务平台,数万业主共同选择
只看该作者
分享本楼
小鹿丁丁
来自 江苏省
精华 0
注册 2019-11-17
QUOTE:
原帖由
牛牛的妈
于 2019-11-19 12:31 发表
我家80栋
你家怎么样?动了嘛
---发自梦溪论坛手机客户端---
2019-11-19 20:47
38楼
[联宇电脑] 电脑组装\维修\升级\企业单位电脑维护!
只看该作者
分享本楼
小鹿丁丁
来自 江苏省
精华 0
注册 2019-11-17
QUOTE:
原帖由
大唐合盛瓷砖
于 2019-11-19 08:59 发表
恭喜开工
谢谢
---发自梦溪论坛手机客户端---
2019-11-19 20:48
39楼
找工作,就上MY0511!
只看该作者
分享本楼
牛牛的妈
来自 江苏省
精华 0
注册 2010-8-21
行业 其它
QUOTE:
原帖由
小鹿丁丁
于 2019-11-19 20:47 发表
你家怎么样?动了嘛
正在做水电
---发自华为---
2019-11-19 20:56
40楼
MY0511相亲,一分钟注册,享一辈子幸福!
只看该作者
分享本楼
诗尼曼
家装认证商户
来自 江苏省
精华 0
注册 2009-10-7
行业 基础设施
2019-11-20 10:07
41楼
[联宇电脑] 电脑组装\维修\升级\企业单位电脑维护!
只看该作者
分享本楼
小鹿丁丁
来自 江苏省
精华 0
注册 2019-11-17
QUOTE:
原帖由
牛牛的妈
于 2019-11-19 20:56 发表
正在做水电
比我家快,有时间去你家瞅瞅
---发自梦溪论坛手机客户端---
2019-11-20 10:08
42楼
0511家装频道:本地家居服务平台,数万业主共同选择
只看该作者
分享本楼
中冠建筑客服
来自 江苏省
精华
5
注册 2019-3-30
行业 基础设施
开工大吉
2019-11-20 11:00
43楼
MY0511相亲,一分钟注册,享一辈子幸福!
只看该作者
分享本楼
关亨木门
来自 江苏省
精华 0
注册 2010-5-8
行业 其它
恭喜恭喜楼主豪宅
2019-11-20 15:52
44楼
0511家装频道:本地家居服务平台,数万业主共同选择
只看该作者
分享本楼
小鹿丁丁
来自 江苏省
精华 0
注册 2019-11-17
方案大方向差不多了,就是细节沟通,设计师很有耐心,不知道带我改了多少遍,就现场沟通就6次。后面估计还要改,细节做好了,尽量做到装修没有太多遗憾。
带我做的立体的效果,感受一下空间。
2019-11-20 17:11
45楼
0511家装频道:本地家居服务平台,数万业主共同选择
只看该作者
分享本楼
小鹿丁丁
来自 江苏省
精华 0
注册 2019-11-17
随手拍摄,光线真好
装修流水账,自己开心就好。
昨天现浇到现场,樊师傅现场看了下,
坐等现浇。
[
本帖最后由 小鹿丁丁 于 2019-11-20 17:23 编辑
]
2019-11-20 17:22
46楼
MY0511相亲,一分钟注册,享一辈子幸福!
只看该作者
分享本楼
星月神防盗门A
来自 江苏省
精华 0
注册 2019-11-21
行业 基础设施
楼主文采
{:鼓掌:
---发自iPhone XS Max---
2019-11-22 07:07
47楼
0511家装频道:本地家居服务平台,数万业主共同选择
只看该作者
分享本楼
卓美软装
专版版主
来自 江苏省
精华
13
注册 2016-5-19
进来参观学习下
2019-11-22 11:39
48楼
MY0511相亲,一分钟注册,享一辈子幸福!
只看该作者
分享本楼
可可虎家装监理
来自 江苏省
精华 0
注册 2018-3-31
行业 其它
恭喜恭喜
2019-11-22 15:03
49楼
MY0511相亲,一分钟注册,享一辈子幸福!
只看该作者
分享本楼
赵婷婷0513
来自 江苏省
精华
1
注册 2015-8-29
邻居
2019-11-22 16:37
50楼
0511家装频道:本地家居服务平台,数万业主共同选择
只看该作者
分享本楼
返回家庭装修
73
1/2
1
2
>
快速回复主题
游客
您目前还是游客,请
登录
或
注册
您目前是游客,本帖已被系统设置了自动关闭,不可回复!
文明交流,理性发言
0/5000字
<
>
请在打开的新窗口中支付完成打赏
我已完成支付打赏
支付失败重新支付
其他金额
打赏金额:
元
确定
支付打赏
提 现
打赏人
打赏金额(元)
打赏时间
镇江风尚大宅
6.66
2019-11-17 15:36
红居装饰
1.00
2019-11-17 16:26
飞流直上
1.11
2019-11-17 17:10
卓美软装
1.11
2019-11-18 12:39
Powered by
Discuz! X 2
0.078658 s
清除 Cookies
-
镇江网友之家
-
手机版
论坛导航
关闭
吃喝玩乐
饮食男女
镇江钓友之家
菜菜鸟户外
镇江单车俱乐部
镜头里的镇江
畅游天下
猫狗总动员
视觉Coffeeshop摄影部落
花鸟鱼虫
婚姻.亲子.家庭
家有学子
谈婚论嫁
女性天地
母婴乐园
婚姻生活
梦溪佳缘
装修
家庭装修
装修招标
镇江室内设计师交流
装修商家直通车
你好,镇江!
百姓话题
我要买房
0511爱心家园
市场监管•12315热线
分类信息
生活服务
闲置转让
镇江二手房/镇江租房
镇江招聘求职
教育培训
镇江二手车
商铺厂房写字楼租售
宠物市场
运动健身
卡券交易
电脑维修升级
杂货铺
其他分类信息区
兴趣爱好
HiFi音响江城沙龙
镇江市美术家协会
我爱模型
车友俱乐部
车迷之家
汽车驾培中心
运动俱乐部
镇江市冬泳、铁人三项协会
聚焦足球
镇江羽毛球
镇江乒乓球协会
镇江网球协会
镇江市自行车运动协会
热爱篮球
动力机车
合作栏目
维权热线
天翼时代
色觉影像摄影工作室
站务区
疑问与建议
网络问政
市政府工作部门
垂直管理部门
党群工作部门
其他重点单位
辖市(区)