| 标题
快捷导航

精彩推荐:MY0511客户端下载

    • 中信银行镇江分行

    • 公益体彩 乐善人生

    • 鹏龙鸿蒙

    • 天然石材·人造石

    » 梦溪论坛 » 家庭装修 » 倚光而居——香格里拉庄园现代实景
    家庭装修  >  [完工毕业照] 倚光而居——香格里拉庄园现代实景     
    查看: 45162  回复: 45
    [完工毕业照] 倚光而居——香格里拉庄园现代实景      查看: 45162  回复: 45
    • 来自 江苏省
    • 精华 3
    • 注册 2013-8-6
    • 行业 IT 通信
    •  
    倚光而居——香格里拉庄园现代实景

    一个人做梦,就只是个梦;一群人怀着同一个梦,便会真实。

                                                                   ——约翰•蓝侬



    正如本案

    成长

    看似简单

    背后却有太多的支持和付出

    作品

    呈现与落地

    背后也有太多的打磨和经历

    这是梵木成长中非常重要的一步


    630㎡香格里拉庄园

    ——企屋设计团队



    [ 本帖最后由 my0511唐老鸭 于 2019-12-18 09:40 编辑 ]





                      
    • 来自 江苏省
    • 精华 3
    • 注册 2013-8-6
    • 行业 IT 通信
    •  

    设计项目 • 香格里拉庄园

    项目性质 ▏全案定制

    设计风格 ▏现代时尚

    主创设计 ▏杨涛、胡坚

    施工单位 ▏企屋设计


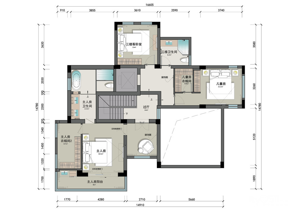
    一层平面布置图

    二层平面布置图

    三层平面布置图



    [ 本帖最后由 my0511唐老鸭 于 2019-12-18 09:38 编辑 ]




    • 来自 江苏省
    • 精华 3
    • 注册 2013-8-6
    • 行业 IT 通信
    •  

    门厅


    线条是空间风格的架构

    简洁线条最能体现出现代风格的精神

    要塑造现代风格一定要先将空间线条重新整理

    整合空间垂直水平线条

    讲求对称与平衡 不做无用装饰

    呈现出利落的线条 让视觉不受阻碍在空间延伸


    客厅


    我们常常很难回答关于风格的问题

    比起定义一个居室的风格 我们更愿意去描述

    住在那里面的是怎样的一家人有着怎样的爱好、经历、关系




    [ 本帖最后由 my0511唐老鸭 于 2019-12-18 09:28 编辑 ]




    • 来自 江苏省
    • 精华 3
    • 注册 2013-8-6
    • 行业 IT 通信
    •  

    休闲娱乐区


    留有足够空间用来家庭活动 温馨的三代同堂



    厨房 餐厅

    Gourmet breakfast

    Gourmet dinner


    这个过程会很像完成一部小说

    一开始 你塑造他的面目、轮廓

    组织他的爱好 揣摩他说话的方式、独处的样子

    就这么一点点勾勒出他的个性、日常

    然后用每一本书、每一部电影、一首恰到好处的音乐

    和那些带着偏见的艺术品、去丰满他的血肉脉搏




    [ 本帖最后由 my0511唐老鸭 于 2019-12-18 09:31 编辑 ]




    • 来自 江苏省
    • 精华 3
    • 注册 2013-8-6
    • 行业 IT 通信
    •  

    卧室


    这些原始素材的采纳过程

    我们称之为生活的加法

    之后 我们要有所取舍 锤炼每一个细节

    最终提炼出最适合的话语方式

    来面对个性化和群体共鸣之间的平衡

    也就是设计的减法



    书房


    影音室


    所有的甜蜜都与成长的忧伤有着千丝万缕的联系

    大人说没发生过的都是梦

    童话里的独角兽说

    相信梦就会得到幸运



    [ 本帖最后由 my0511唐老鸭 于 2019-12-18 09:33 编辑 ]




    • 来自 江苏省
    • 精华 3
    • 注册 2013-8-6
    • 行业 IT 通信
    •  

    卫生间


    一所好的住宅空间

    设计要实现的不止是生活功能上的舒适

    更重要的是契合业主的精神需求

    业主注重内在精神感受希望在家可以放松做自己

    企屋在空间设计中抛开限制式的形式美

    更多的是回归到空间与人在氛围上的感受力


    楼梯


    用这些带着他的精神的物件

    去构成一个个生活的片面

    最后的最后

    当你赋予了空间足够鲜活的情绪、好恶和情感之后

    它会自己说出故事来




    [ 本帖最后由 my0511唐老鸭 于 2019-12-18 09:35 编辑 ]




    • 来自 江苏省
    • 精华 3
    • 注册 2013-8-6
    • 行业 IT 通信
    •  

    -企屋设计-

    KEEWOE DESIGN



    地址:镇江市旭辉时代华府1栋101室

    电话:0511-88811366

    微信:keewoe88811366


    更多企屋设计案例请点击:

    http://bbs.my0511.com/f649b



    [ 本帖最后由 my0511唐老鸭 于 2019-12-18 09:37 编辑 ]




    • 来自 江苏省
    • 精华 19
    • 注册 2019-4-30
    • 行业 房产建筑
    •  






    • 来自 江苏省
    • 精华 5
    • 注册 2019-3-30
    • 行业 基础设施
    •  

    厉害




    • 来自 江苏省
    • 精华 2
    • 注册 2004-3-16
    •  






    • 来自 江苏省
    • 精华 0
    • 注册 2003-3-29
    •  

    为什么现实中总是很难看到“寄生虫”那种风格的装修?




    • 来自 江苏省
    • 精华 2
    • 注册 2009-11-29
    • 行业 工业制造
    •  

    豪宅,真有风格




    • 来自 江苏省
    • 精华 0
    • 注册 2014-9-18
    •  

    豪是没话说,就是没有家的感觉,冷冰冰的样子




    • 来自 江苏省
    • 精华 0
    • 注册 2004-7-31
    •  

    这么大的房子,设计成这个色调,冬天咋过,看着都冷




    • 来自 江苏省
    • 精华 1
    • 注册 2009-6-19
    • 行业 其它
    •  
    • 来自 江苏省
    • 精华 0
    • 注册 2015-4-14
    •  


    QUOTE:
    原帖由 zbson 于 2019-12-19 23:05 发表
    这么大的房子,设计成这个色调,冬天咋过,看着都冷
    这个档次 冬天肯定全屋地暖+散热片的!不差钱!




    • 来自 江苏省
    • 精华 0
    • 注册 2019-8-13
    •  

    漂亮想参观参观可以吗?不知道这么装下来多少钱?




    • 来自 江苏省
    • 精华 0
    • 注册 2008-9-1
    • 行业 商业贸易
    •  






    • 来自 江苏省
    • 精华 0
    • 注册 2019-6-18
    •  

    *** 作者因违反论坛规定,禁言处理,内容自动屏蔽 ***

    详情参阅论坛注册条款:
    http://bbs.my0511.com/f11b-t2789156z


    • 来自 江苏省
    • 精华 5
    • 注册 2019-3-30
    • 行业 基础设施
    •  






    • 来自 江苏省
    • 精华 0
    • 注册 2011-9-30
    • 行业 教育科研
    •  

    两年不用开工了




    • 来自 江苏省
    • 精华 0
    • 注册 2007-9-29
    • 行业 政府行政
    •  

    喜欢这个厕所还有吧台




    • 来自 江苏省
    • 精华 0
    • 注册 2017-5-21
    •  

    没家庭影院。活动中心?




    • 来自 江苏省
    • 精华 0
    • 注册 2009-5-7
    • 行业 教育科研
    •  

    阴森的呢 




    • 来自 江苏省
    • 精华 0
    • 注册 2012-3-5
    • 行业 IT 通信
    • 我是车主
    •  

    太冷了,不喜欢




    • 来自 江苏省
    • 精华 0
    • 注册 2010-9-5
    • 行业 其它
    •  

    太漂亮了,上品!




    • 来自 江苏省
    • 精华 0
    • 注册 2019-8-13
    •  

    好漂亮




    • 来自 江苏省
    • 精华 105
    • 注册 2009-9-4
    • 行业 房产建筑
    •  

    欢迎咨询,17768758739(微信同号)




    • 来自 江苏省
    • 精华 105
    • 注册 2009-9-4
    • 行业 房产建筑
    •  

    欢迎咨询,17768758739(微信同号)




    • 来自 江苏省
    • 精华 105
    • 注册 2009-9-4
    • 行业 房产建筑
    •  

    欢迎咨询,17768758739(微信同号)




    • 来自 江苏省
    • 精华 105
    • 注册 2009-9-4
    • 行业 房产建筑
    •  

    欢迎咨询,17768758739(微信同号)




    • 来自 江苏省
    • 精华 105
    • 注册 2009-9-4
    • 行业 房产建筑
    •  

    欢迎咨询,17768758739(微信同号)




    • 来自 江苏省
    • 精华 105
    • 注册 2009-9-4
    • 行业 房产建筑
    •  

    欢迎咨询,17768758739(微信同号)




    • 来自 江苏省
    • 精华 105
    • 注册 2009-9-4
    • 行业 房产建筑
    •  

    欢迎咨询,17768758739(微信同号)





    • 来自 江苏省
    • 精华 105
    • 注册 2009-9-4
    • 行业 房产建筑
    •  

    欢迎咨询,17768758739(微信同号)




    • 来自 江苏省
    • 精华 105
    • 注册 2009-9-4
    • 行业 房产建筑
    •  

    欢迎咨询,17768758739(微信同号)





    • 来自 江苏省
    • 精华 105
    • 注册 2009-9-4
    • 行业 房产建筑
    •  

    欢迎咨询,17768758739(微信同号)




    • 来自 江苏省
    • 精华 105
    • 注册 2009-9-4
    • 行业 房产建筑
    •  

    欢迎咨询,17768758739(微信同号)




    • 来自 江苏省
    • 精华 105
    • 注册 2009-9-4
    • 行业 房产建筑
    •  

    欢迎咨询,17768758739(微信同号)




    • 来自 江苏省
    • 精华 105
    • 注册 2009-9-4
    • 行业 房产建筑
    •  

    欢迎咨询,17768758739(微信同号)




    • 来自 江苏省
    • 精华 105
    • 注册 2009-9-4
    • 行业 房产建筑
    •  

    欢迎咨询,17768758739(微信同号)




    • 来自 江苏省
    • 精华 105
    • 注册 2009-9-4
    • 行业 房产建筑
    •  

    欢迎咨询,17768758739(微信同号)




    查看积分策略说明快速回复主题
    您目前还是游客,请 登录注册
    您目前是游客,本帖已被系统设置了自动关闭,不可回复!

    0/5000字

     
    < >
     

    Powered by Discuz! X 2 0.089383 s 清除 Cookies - 镇江网友之家 - 手机版
    论坛导航 关闭