| 标题
快捷导航

精彩推荐:MY0511客户端下载

    • 中信银行镇江分行

    • 公益体彩 乐善人生

    • 鹏龙鸿蒙

    • 天然石材·人造石

    » 梦溪论坛 » 家庭装修 » 宝龙国际花园二期,开个帖,简单记录下
    家庭装修  >  [装修日记] 宝龙国际花园二期,开个帖,简单记录下     
    查看: 62290  回复: 142
     143  1/3  1  2  3  > 
    [装修日记] 宝龙国际花园二期,开个帖,简单记录下      查看: 62290  回复: 142
    • 来自 江苏省
    • 精华 0
    • 注册 2020-4-12
    •  
    宝龙国际花园二期,开个帖,简单记录下



    【小区名称】:宝龙国际花园二期

    【所在楼层】:高层

    【建筑面积】:130平

    【装修风格】:现代简约

    【包工方式】:半包

    【装修公司】:红居装饰公司        设计师:糜静     项目经理:孙工

    【开工日期】:2020年4月10日

    【装修预算】:30万

    【户型图片】:东边户型










    [ 本帖最后由 jemmyD 于 2020-10-1 23:32 编辑 ]





                      
    • 来自 江苏省
    • 精华 0
    • 注册 2020-4-12
    •  




    [ 本帖最后由 jemmyD 于 2021-1-2 00:20 编辑 ]




    • 来自 江苏省
    • 精华 0
    • 注册 2020-4-12
    •  



    [ 本帖最后由 jemmyD 于 2021-1-2 00:00 编辑 ]




    • 来自 江苏省
    • 精华 0
    • 注册 2020-4-12
    •  

    非宣传帖
    纯纪实
    肯定有价高的,也别在意,仅供参考

    [ 本帖最后由 jemmyD 于 2021-1-2 00:03 编辑 ]




    • 来自 江苏省
    • 精华 0
    • 注册 2020-4-12
    •  

    非宣传帖
    纯纪实
    肯定有价高的,也别在意,仅供参考

    [ 本帖最后由 jemmyD 于 2021-1-2 00:04 编辑 ]




    • 来自 江苏省
    • 精华 0
    • 注册 2020-4-12
    •  

    非宣传帖
    纯纪实
    肯定有价高的,也别在意,仅供参考

    [ 本帖最后由 jemmyD 于 2021-1-2 00:04 编辑 ]




    • 来自 江苏省
    • 精华 0
    • 注册 2020-4-12
    •  

    非宣传帖
    纯纪实
    肯定有价高的,也别在意,仅供参考

    [ 本帖最后由 jemmyD 于 2021-1-2 00:04 编辑 ]




    • 来自 江苏省
    • 精华 0
    • 注册 2020-4-12
    •  

    非宣传帖
    纯纪实
    肯定有价高的,也别在意,仅供参考

    [ 本帖最后由 jemmyD 于 2021-1-2 00:04 编辑 ]




    • 来自 江苏省
    • 精华 0
    • 注册 2020-4-12
    •  


    QUOTE:
    原帖由 红居装饰 于 2020-4-12 21:54 发表
    你这是光速盖楼啊...




    • 来自 江苏省
    • 精华 405
    • 注册 2016-10-30
    • 行业 房产建筑
    •  


    QUOTE:
    原帖由 jemmyD 于 2020-4-12 21:58 发表
    你这是光速盖楼啊...
    一切就是这么机缘巧合,打开0511就看见客户开帖




    • 来自 江苏省
    • 精华 0
    • 注册 2020-4-12
    •  

    买房经历:略



    简单说说选择装修公司的原因:

    1/设计师给的设计图比较符合心意

    2/同小区有多家邻居选择红居

    3/一分钱一分货




    • 来自 江苏省
    • 精华 0
    • 注册 2020-4-12
    •  




    已经开始铲墙了,动作很快




    • 来自 江苏省
    • 精华 0
    • 注册 2020-4-12
    •  

    最近跑月星,亿都,跑得腿软,一想到后面有几个月还要跑,就感觉头疼.

    个人的选择,希望能为后面装修的同小区业主有点帮助



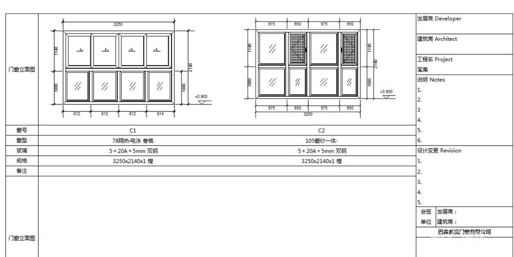
    第一项是要选择封阳台,看了几位邻居的选择,我也实地去看了,比较了一下

    最后敲定"巴森系统门窗",已经联系过两天来量尺寸

    =弄好以后我再上图




    • 来自 江苏省
    • 精华 0
    • 注册 2014-10-16
    •  

    欢迎新同学




    • 来自 江苏省
    • 精华 0
    • 注册 2018-4-27
    • 行业 基础设施
    •  

    恭喜楼主




    • 来自 江苏省
    • 精华 0
    • 注册 2019-6-11
    •  

    开工大吉




    • 来自 江苏省
    • 精华 0
    • 注册 2020-3-13
    •  

    同小区,同红居学校生比你家早十天开工!!




    • 来自 江苏省
    • 精华 0
    • 注册 2011-8-9
    • 行业 其它
    •  

    开工大吉!




    • 来自 江苏省
    • 精华 0
    • 注册 2018-12-12
    • 行业 其它
    •  
    • 来自 江苏省
    • 精华 0
    • 注册 2020-4-12
    •  

    感谢各位顶帖




    • 来自 江苏省
    • 精华 0
    • 注册 2020-4-12
    •  


    QUOTE:
    原帖由 冰点小枫 于 2020-4-13 21:55 发表
    同小区,同红居学校生比你家早十天开工!!
    互相交流,,最近选择困难症犯了

    橱柜选的哪家.




    • 来自 江苏省
    • 精华 0
    • 注册 2020-4-12
    •  

    第二项是橱柜定制

    亿都那边跑了威仕,,丽博,,欧派

    月星那边还看了金牌,志邦,欧派

    欧派的店是真多,运河路那边也有

    优惠点的是套餐,可是只有3.6,3.0的,主要是杂七杂八算下来,总价算的头疼



    目前心中倾向于威仕,老板很直爽,价格一步到位,没那么多"增项"




    • 来自 江苏省
    • 精华 0
    • 注册 2014-5-17
    • 行业 商业贸易
    •  

    恭喜开贴




    • 来自 安徽省
    • 精华 0
    • 注册 2011-9-16
    • 行业 商业贸易
    •  

    开工大吉




    • 来自 江苏省
    • 精华 0
    • 注册 2019-3-22
    • 行业 房产建筑
    •  

    哇哦,好像知道您是谁了!过来顶过!加油加油!




    • 来自 江苏省
    • 精华 0
    • 注册 2020-4-12
    •  


    QUOTE:
    原帖由 青田门业 于 2020-4-14 16:22 发表
    开工大吉
    这么有名的青田门业,

    我找了几圈都没找到....




    • 来自 江苏省
    • 精华 0
    • 注册 2020-4-12
    •  


    QUOTE:
    原帖由 1987.威仕 于 2020-4-14 19:55 发表
    哇哦,好像知道您是谁了!过来顶过!加油加油!
    后天来帮我量尺寸吧....




    • 来自 江苏省
    • 精华 0
    • 注册 2020-4-12
    •  










    • 来自 江苏省
    • 精华 0
    • 注册 2020-4-12
    •  

    拆墙结束




    • 来自 江苏省
    • 精华 0
    • 注册 2020-4-12
    •  

    话说宝龙房子墙上的空鼓真是多

    我前后找了两次物业,修补得满墙都是补丁



    那些未修补的邻居们是怎么处理的?




    • 来自 江苏省
    • 精华 0
    • 注册 2017-10-22
    •  

    同小区,同户型,同装修公司,握个手。怎么感觉开头跟我的帖子差不多呢?




    • 来自 江苏省
    • 精华 0
    • 注册 2020-4-12
    •  


    QUOTE:
    原帖由 爱晴柔咪咪兔 于 2020-4-15 15:58 发表
    同小区,同户型,同装修公司,握个手。怎么感觉开头跟我的帖子差不多呢?
    帖子拜读了多次,收益良多






    • 来自 江苏省
    • 精华 0
    • 注册 2020-4-12
    •  



    窗户两种造型
    虽然平开的密封性,隔音效果不怎么样
    但是看到内开的,还是不如平开的对称好看,倾向于平开

    [ 本帖最后由 jemmyD 于 2020-4-15 20:57 编辑 ]




    • 来自 江苏省
    • 精华 0
    • 注册 2017-10-22
    •  


    QUOTE:
    原帖由 jemmyD 于 2020-4-15 20:57 发表
    窗户两种造型
    虽然平开的密封性,隔音效果不怎么样
    但是看到内开的,还是不如平开的对称好看,倾向于平开
    我不知道你讲的是不是封阳台。小区要求的是四上四下,我家按要求做的推拉式。但说实话挺后悔没有装系统门窗,因为买房时只考虑避开镇荣公路东边的噪音,没想到镇荣公路南边斜插过来,我家高层阳台有噪音的。




    • 来自 江苏省
    • 精华 0
    • 注册 2018-12-12
    • 行业 其它
    •  
    • 来自 江苏省
    • 精华 0
    • 注册 2020-4-12
    •  


    QUOTE:
    原帖由 爱晴柔咪咪兔 于 2020-4-15 21:35 发表
    我不知道你讲的是不是封阳台。小区要求的是四上四下,我家按要求做的推拉式。但说实话挺后悔没有装系统门窗,因为买房时只考虑避开镇荣公路东边的噪音,没想到镇荣公路南边斜插过来,我家高层阳台有噪音的。
    噪音严重吗.
    白天不谈,晚上呢?




    • 来自 江苏省
    • 精华 0
    • 注册 2017-10-22
    •  


    QUOTE:
    原帖由 jemmyD 于 2020-4-16 00:03 发表
    噪音严重吗.
    白天不谈,晚上呢?
    这是省道,日夜不休的。可能我对噪音敏感。把窗户关上能听到一点,希望移门装上还有两层窗帘能消音。




    • 来自 江苏省
    • 精华 1
    • 注册 2019-8-30
    • 行业 房产建筑
    •  
    • 来自 江苏省
    • 精华 1
    • 注册 2017-8-10
    • 行业 其它
    •  

    装修愉快




    • 来自 江苏省
    • 精华 405
    • 注册 2016-10-30
    • 行业 房产建筑
    •  

    顶一顶,嘿嘿




    • 来自 江苏省
    • 精华 0
    • 注册 2020-3-27
    •  

    开工大吉




    • 来自 江苏省
    • 精华 0
    • 注册 2018-12-12
    • 行业 其它
    •  
    • 来自 江苏省
    • 精华 0
    • 注册 2020-4-12
    •  


    QUOTE:
    原帖由 爱晴柔咪咪兔 于 2020-4-16 09:01 发表
    这是省道,日夜不休的。可能我对噪音敏感。把窗户关上能听到一点,希望移门装上还有两层窗帘能消音。
    晚上去看了一下
    窗户开着声音是吵
    主要是那种大车子烦人

    以后都得关窗,关门睡觉了
    感觉装个密封窗,也没多大用




    • 来自 江苏省
    • 精华 0
    • 注册 2020-4-12
    •  



    这种平开窗上面一排,中间缺少一根柱子
    应该上面分成两部分,分别是2扇窗,这样密封性会好点




    • 来自 江苏省
    • 精华 405
    • 注册 2016-10-30
    • 行业 房产建筑
    •  


    QUOTE:
    原帖由 jemmyD 于 2020-4-16 23:50 发表
    这种平开窗上面一排,中间缺少一根柱子
    应该上面分成两部分,分别是2扇窗,这样密封性会好点
    我住30楼,感觉楼下一台挖掘机,每天早上我都能听到声响




    • 来自 江苏省
    • 精华 0
    • 注册 2020-4-12
    •  


    QUOTE:
    原帖由 红居装饰 于 2020-4-17 10:57 发表
    我住30楼,感觉楼下一台挖掘机,每天早上我都能听到声响


    不过房间的一个窗户
    反正也比不过阳台与移门两个




    • 来自 江苏省
    • 精华 405
    • 注册 2016-10-30
    • 行业 房产建筑
    •  

    红居第一建楼大师小钟同志到达现场,开始建楼~




    • 来自 江苏省
    • 精华 3
    • 注册 2017-2-20
    •  






     143  1/3  1  2  3  > 
    查看积分策略说明快速回复主题
    您目前还是游客,请 登录注册
    您目前是游客,本帖已被系统设置了自动关闭,不可回复!

    0/5000字

     
    < >
     

    Powered by Discuz! X 2 0.092889 s 清除 Cookies - 镇江网友之家 - 手机版
    论坛导航 关闭