| 标题
快捷导航

精彩推荐:MY0511客户端下载

    • 中信银行镇江分行

    • 公益体彩 乐善人生

    • 鹏龙鸿蒙

    • 天然石材·人造石

    » 梦溪论坛 » 家庭装修 » 现代轻奢复式完工实景,质感充盈整个空间
    家庭装修  >  [完工毕业照] 现代轻奢复式完工实景,质感充盈整个空间     
    查看: 51626  回复: 10
    [完工毕业照] 现代轻奢复式完工实景,质感充盈整个空间      查看: 51626  回复: 10
    • 来自 江苏省
    • 精华 3
    • 注册 2013-8-6
    • 行业 IT 通信
    •  
    现代轻奢复式完工实景,质感充盈整个空间

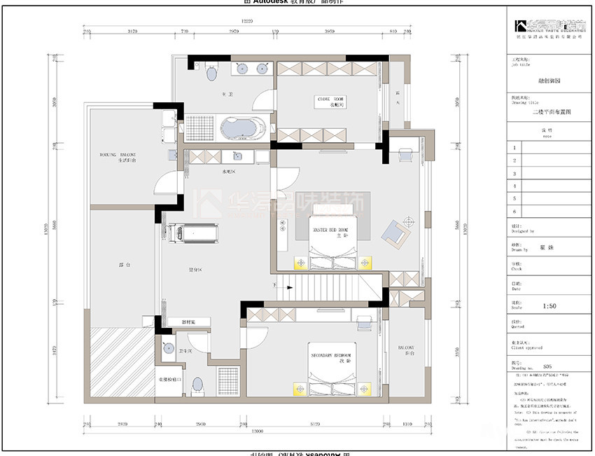
    【工地名称】:融创御园

    【建筑面积】:300㎡

    【建筑类型】:复式

    【设计风格】:现代轻奢

    【设计总监】:夏雨


    客厅

    餐厅

    厨房

    玄关

    主卧

    主卧卫生间


    一楼原件

    二楼原件

    一楼平面

    二楼平面


    如果你也想拥有这样一套品位与品质共存的案例

    请联系我们

    咨询热线:88881389/88881379

    公司地址:丁卯桥路168号江南世家11-13

    更多华浔品味装饰案例请点击:

    http://bbs.my0511.com/f1149b



    [ 本帖最后由 my0511唐老鸭 于 2021-12-6 10:39 编辑 ]





                      
    • 来自 江苏省
    • 精华 0
    • 注册 2006-2-1
    • 行业 工业制造
    •  

    这个楼盘在哪里啊?




    • 来自 江苏省
    • 精华 653
    • 注册 2010-4-5
    • 行业 其它
    •  

    融创御园




    • 来自 江苏省
    • 精华 0
    • 注册 2014-3-8
    •  

    这个好像熊总家




    • 来自 江苏省
    • 精华 25
    • 注册 2004-11-18
    •  

    这是设计的3d图吗?




    • 来自 江苏省
    • 精华 0
    • 注册 2010-4-12
    • 行业 政府行政
    •  

    不是厨房必须要分割的吗?不许开放




    • 来自 江苏省
    • 精华 653
    • 注册 2010-4-5
    • 行业 其它
    •  

    这是实景图,不是效果图




    • 来自 江苏省
    • 精华 0
    • 注册 2005-12-17
    • 行业 广告媒体
    •  

    啥瓷砖呀?




    • 来自 江苏省
    • 精华 0
    • 注册 2019-5-14
    •  

    漂亮




    • 来自 江苏省
    • 精华 0
    • 注册 2006-7-25
    • 行业 工业制造
    •  

    奢华




    • 来自 江苏省
    • 精华 0
    • 注册 2014-9-29
    •  

    瓷砖是萨米特的




    查看积分策略说明快速回复主题
    您目前还是游客,请 登录注册
    您目前是游客,本帖已被系统设置了自动关闭,不可回复!

    0/5000字

     
    < >
     

    Powered by Discuz! X 2 0.064309 s 清除 Cookies - 镇江网友之家 - 手机版
    论坛导航 关闭