收藏本站
客户端
扫码下载客户端
官方微信
打开微信扫一扫
登录
|
注册
|
标题
标题
用户
全站首页
|
论坛导航
|
网络问政
|
招聘求职
|
买房租房
|
装修频道
|
生活服务
|
教育
|
相亲
|
亲子
|
美食
|
婚嫁
|
手机客户端
家有学子
|
母婴乐园
快捷导航
精彩推荐:
MY0511客户端下载
中信银行镇江分行
公益体彩 乐善人生
鹏龙鸿蒙
天然石材·人造石
»
梦溪论坛
»
家庭装修
» 聆江阁装修小记
家庭装修
>
[装修日记]
聆江阁装修小记
查看: 16670 回复: 11
快速回复
返回家庭装修
[装修日记]
聆江阁装修小记
查看: 16670 回复: 11
上一主题
|
下一主题
Dymo
来自 江苏省
精华 0
注册 2021-5-13
聆江阁装修小记
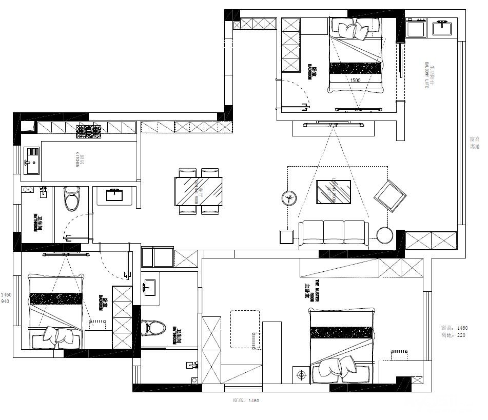
【小区名称】:中南利恩聆江阁
【所在楼层】:6
【建筑面积】:123
【装修风格】:现代简约+日式
【包工方式】:半包
【装修公司】:玛宸装饰
【装修设计】:朱女士
【装修预算】:20-25万
【平面图纸】:和设计师商量后略作修改
上月月底择一吉日开工了
3.4 敲墙完成,昨天去看了打扫也很干净
3.6 今天工人进场准备砌墙
[attach]28809709[/attach]
[
本帖最后由 my0511菲雪 于 2022-3-7 17:25 编辑
]
已有 玛宸精品装饰
1
人打赏
2022-3-6 09:35
1楼
找工作,就上MY0511!
只看该作者
分享本楼
恒暖舒适家
来自 江苏省
精华 0
注册 2021-3-2
你好,空调地暖看过了吗?15052920920微信同号
2022-3-20 10:24
2楼
买房、卖房、租房上镇江房产网!
只看该作者
分享本楼
镇江风尚大宅
来自 江苏省
精华
87
注册 2017-9-7
2022-3-20 13:41
3楼
找工作,就上MY0511!
只看该作者
分享本楼
百合花的春天
来自 江苏省
精华 0
注册 2012-4-17
行业 教育科研
开工大吉,关注中
2022-3-20 22:35
4楼
[联宇电脑] 电脑组装\维修\升级\企业单位电脑维护!
只看该作者
分享本楼
Dymo
来自 江苏省
精华 0
注册 2021-5-13
三月份做完墙体改造就碰上疫情了,一直没有空来更新,今天趁着在车上,浅更一下动态
2022-4-18 10:56
5楼
MY0511相亲,一分钟注册,享一辈子幸福!
只看该作者
分享本楼
Dymo
来自 江苏省
精华 0
注册 2021-5-13
3.8-3.18
这段时间就是最基础的水电改造,平时下班和周末过去看看家里一点一点的变化。
电路做完做水路,水路比较快,一天就排完了,约了第二天打压测试
[
本帖最后由 Dymo 于 2022-4-18 11:32 编辑
]
2022-4-18 11:12
6楼
[联宇电脑] 电脑组装\维修\升级\企业单位电脑维护!
只看该作者
分享本楼
Dymo
来自 江苏省
精华 0
注册 2021-5-13
打压测试结果ok
2022-4-18 11:17
7楼
MY0511相亲,一分钟注册,享一辈子幸福!
只看该作者
分享本楼
Dymo
来自 江苏省
精华 0
注册 2021-5-13
下沉部分做好防水,准备48h测试。
结果没问题后立马回填
同时空调那边也提出要求,阳台太深,要往上抬一部分,在回填的时候同时也做好。
2022-4-18 11:22
8楼
找工作,就上MY0511!
只看该作者
分享本楼
Dymo
来自 江苏省
精华 0
注册 2021-5-13
之后就是抹水泥,两卫找平,可惜疫情愈发严重,联系的外地空调地暖,没法过来安装,地面墙面后续没法施工。。
而封阳台订的窗,也卡在路上,物流送不过来。。只能祈求疫情尽快结束,不要再影响我装修进度了。。
2022-4-18 11:25
9楼
找工作,就上MY0511!
只看该作者
分享本楼
Dymo
来自 江苏省
精华 0
注册 2021-5-13
4.19,阳台延迟了半个月终于开始封了,今天先把南北的框架搭上去,周末玻璃到了再安装
---发自iPhone 12 Pro---
2022-4-19 18:48
10楼
MY0511相亲,一分钟注册,享一辈子幸福!
只看该作者
分享本楼
玛宸精品装饰
来自 江苏省
精华 0
注册 2020-2-12
被疫情担误的外地空调和地暖,让业主和我们公司焦虑万分却无计可施…我们的工期啊…
---发自华为---
2022-4-29 11:48
11楼
MY0511相亲,一分钟注册,享一辈子幸福!
只看该作者
分享本楼
本杰明进口涂料
来自 江苏省
精华 0
注册 2020-8-13
2022-4-29 17:34
12楼
[联宇电脑] 电脑组装\维修\升级\企业单位电脑维护!
只看该作者
分享本楼
返回家庭装修
快速回复主题
游客
您目前还是游客,请
登录
或
注册
您目前是游客,本帖已被系统设置了自动关闭,不可回复!
文明交流,理性发言
0/5000字
<
>
请在打开的新窗口中支付完成打赏
我已完成支付打赏
支付失败重新支付
其他金额
打赏金额:
元
确定
支付打赏
提 现
打赏人
打赏金额(元)
打赏时间
玛宸精品装饰
8.88
2022-3-7 17:16
Powered by
Discuz! X 2
0.067543 s
清除 Cookies
-
镇江网友之家
-
手机版
论坛导航
关闭
吃喝玩乐
饮食男女
镇江钓友之家
菜菜鸟户外
镇江单车俱乐部
镜头里的镇江
畅游天下
猫狗总动员
视觉Coffeeshop摄影部落
花鸟鱼虫
婚姻.亲子.家庭
家有学子
谈婚论嫁
女性天地
母婴乐园
婚姻生活
梦溪佳缘
装修
家庭装修
装修招标
镇江室内设计师交流
装修商家直通车
你好,镇江!
百姓话题
我要买房
0511爱心家园
市场监管•12315热线
分类信息
生活服务
闲置转让
镇江二手房/镇江租房
镇江招聘求职
教育培训
镇江二手车
商铺厂房写字楼租售
宠物市场
运动健身
卡券交易
电脑维修升级
杂货铺
其他分类信息区
兴趣爱好
HiFi音响江城沙龙
镇江市美术家协会
我爱模型
车友俱乐部
车迷之家
汽车驾培中心
运动俱乐部
镇江市冬泳、铁人三项协会
聚焦足球
镇江羽毛球
镇江乒乓球协会
镇江网球协会
镇江市自行车运动协会
热爱篮球
动力机车
合作栏目
维权热线
天翼时代
色觉影像摄影工作室
站务区
疑问与建议
网络问政
市政府工作部门
垂直管理部门
党群工作部门
其他重点单位
辖市(区)