收藏本站
客户端
扫码下载客户端
官方微信
打开微信扫一扫
登录
|
注册
|
标题
标题
用户
全站首页
|
论坛导航
|
网络问政
|
招聘求职
|
买房租房
|
装修频道
|
生活服务
|
教育
|
相亲
|
亲子
|
美食
|
婚嫁
|
手机客户端
家有学子
|
母婴乐园
快捷导航
精彩推荐:
MY0511客户端下载
中信银行镇江分行
公益体彩 乐善人生
鹏龙鸿蒙
天然石材·人造石
»
梦溪论坛
»
家庭装修
» [2023万家基和杯美家养成记]记录王家新苑新家的点滴变化
家庭装修
>
[装修日记]
[2023万家基和杯美家养成记]记录王家新苑新家的点滴变化
查看: 35256 回复: 35
快速回复
返回家庭装修
[装修日记]
[2023万家基和杯美家养成记]记录王家新苑新家的点滴变化
查看: 35256 回复: 35
上一主题
|
下一主题
本主题由
System
于 2023-12-31 16:00 解除限时高亮
半盏孤茶
来自 江苏省
精华 0
注册 2023-4-10
[2023万家基和杯美家养成记]记录王家新苑新家的点滴变化
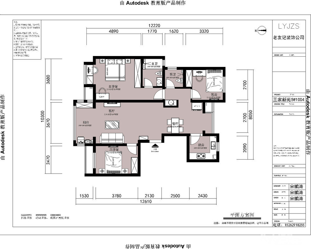
【小区名称】:谏壁.王家新苑
【所在楼层】:10楼
【建筑面积】:100
【装修风格】:简约
【包工方式】:半包
【装修公司】:老友记
【装修设计】:宋鹏涛
【项目经理】:黄经理
【开工日期】:2023年3月
建个号开个贴跟个风记录一下我的装修之路,首先来张我家的户型图:
[
本帖最后由 my0511小妖 于 2023-5-22 15:24 编辑
]
已有
0
人打赏
2023-4-11 15:51
1楼
MY0511相亲,一分钟注册,享一辈子幸福!
只看该作者
分享本楼
半盏孤茶
来自 江苏省
精华 0
注册 2023-4-10
装修公司看了好几家市区的,谏壁的都看过,最后在小区实地看了几家正在装修的发现老友记在我们小区做的蛮多的。工地的卫生,施工工艺都不错当时就比较倾向于他家了,试着联系了老友记的黄总,跟黄总,和设计师谈了几次设计师的方案和黄总给到的价格都还不错就直接签约了。然后开工,意味着我的小家正式开启了装修的时代
[
本帖最后由 半盏孤茶 于 2023-4-11 16:12 编辑
]
2023-4-11 15:52
2楼
找工作,就上MY0511!
只看该作者
分享本楼
半盏孤茶
来自 江苏省
精华 0
注册 2023-4-10
占楼
2023-4-11 15:52
3楼
0511家装频道:本地家居服务平台,数万业主共同选择
只看该作者
分享本楼
半盏孤茶
来自 江苏省
精华 0
注册 2023-4-10
占楼
2023-4-11 15:53
4楼
[联宇电脑] 电脑组装\维修\升级\企业单位电脑维护!
只看该作者
分享本楼
网络苦旅
来自 江苏省
精华
1
注册 2006-6-8
半包5万?
---发自iPhone 13---
2023-4-11 17:04
5楼
[联宇电脑] 电脑组装\维修\升级\企业单位电脑维护!
只看该作者
分享本楼
t12345678
禁止访问
来自 北京
精华 0
注册 2022-4-10
*** 作者因违反论坛规定,禁言处理,内容自动屏蔽 ***
详情参阅论坛注册条款:
http://bbs.my0511.com/f11b-t2789156z
2023-4-11 17:39
6楼
买房、卖房、租房上镇江房产网!
只看该作者
分享本楼
沃斯卡门窗
来自 江苏省
精华 0
注册 2021-12-5
开工大吉
2023-4-12 10:06
7楼
[联宇电脑] 电脑组装\维修\升级\企业单位电脑维护!
只看该作者
分享本楼
老友记装饰客服
专版版主
来自 江苏省
精华
71
注册 2012-8-13
行业 其它
老友记最新活动点击进入
→→
:
https://bbs.my0511.com/f1155b-t7216946z-1
您家帖子已经收藏到公司的主页中 每天关注
http://bbs.my0511.com/f250b-t4032754z
或进入公司专版
http://bbs.my0511.com/f1155b#lid9dbkystke0fj1f1
2023-4-12 16:35
8楼
0511家装频道:本地家居服务平台,数万业主共同选择
只看该作者
分享本楼
半盏孤茶
来自 江苏省
精华 0
注册 2023-4-10
QUOTE:
原帖由
t12345678
于 2023-4-11 17:39 发表
不有增项吗 做下来肯定不止五万
目前来说还没有出现什么增项,我们也仔细看过了他们家报价还算个是比较全面的,后期如果会出现什么不合理的增项我们肯定会在帖子里写的,绝对不会包庇的
2023-4-13 13:54
9楼
[联宇电脑] 电脑组装\维修\升级\企业单位电脑维护!
只看该作者
分享本楼
zy1010726992
来自 江苏省
精华 0
注册 2012-8-6
行业 学生
报价方便发来看看嘛,我也是这个户型
2023-4-14 08:58
10楼
找工作,就上MY0511!
只看该作者
分享本楼
小布xsy
来自 江苏省
精华 0
注册 2013-1-26
行业 其它
QUOTE:
原帖由
半盏孤茶
于 2023-4-11 15:52 发表
装修公司看了好几家市区的,谏壁的都看过,最后在小区实地看了几家正在装修的发现老友记在我们小区做的蛮多的。工地的卫生,施工工艺都不错当时就比较倾向于他家了,试着联系了老友记的黄总,跟黄总,和设计师谈了 ...
恭喜开工
---发自梦溪论坛手机客户端---
2023-4-15 00:32
11楼
买房、卖房、租房上镇江房产网!
只看该作者
分享本楼
半盏孤茶
来自 江苏省
精华 0
注册 2023-4-10
水电工陶师傅速度还是很快的,没几天功夫家里的水电已经结束了,这比我们跑市场看材料的速度可快多了
2023-4-16 17:11
12楼
MY0511相亲,一分钟注册,享一辈子幸福!
只看该作者
分享本楼
半盏孤茶
来自 江苏省
精华 0
注册 2023-4-10
都说内行看门道外行看热闹,说实话咱也看不懂呀,只能说看着很舒服就是不错的,上两张照片给各位内行中人看看如果有什么不好的地方也麻烦各位告知一下
2023-4-16 17:20
13楼
MY0511相亲,一分钟注册,享一辈子幸福!
只看该作者
分享本楼
老友记装饰客服
专版版主
来自 江苏省
精华
71
注册 2012-8-13
行业 其它
水电陶师傅是很不错的也是我们公司的老员工了
2023-4-17 16:53
14楼
[联宇电脑] 电脑组装\维修\升级\企业单位电脑维护!
只看该作者
分享本楼
小李一刀
来自 江苏省
精华 0
注册 2019-12-29
恭喜恭喜开工
---发自梦溪论坛手机客户端---
2023-4-19 00:59
15楼
MY0511相亲,一分钟注册,享一辈子幸福!
只看该作者
分享本楼
弥he
来自 江苏省
精华 0
注册 2023-2-26
QUOTE:
原帖由
半盏孤茶
于 2023-4-16 17:20 发表
都说内行看门道外行看热闹,说实话咱也看不懂呀,只能说看着很舒服就是不错的,上两张照片给各位内行中人看看如果有什么不好的地方也麻烦各位告知一下
2023-4-19 16:44
16楼
找工作,就上MY0511!
只看该作者
分享本楼
半盏孤茶
来自 江苏省
精华 0
注册 2023-4-10
我家色装修速度很给力,以至于我买的砖送货速度没来得及跟上,瓦工师傅先进场包水管,分线槽等,现场清清爽爽的
2023-4-22 17:27
17楼
MY0511相亲,一分钟注册,享一辈子幸福!
只看该作者
分享本楼
老友记装饰客服
专版版主
来自 江苏省
精华
71
注册 2012-8-13
行业 其它
瓦工师傅进场先做杂事
2023-4-23 14:25
18楼
找工作,就上MY0511!
只看该作者
分享本楼
辰123
来自 江苏省
精华 0
注册 2023-4-22
看见我家项目经理了
2023-4-26 17:00
19楼
找工作,就上MY0511!
只看该作者
分享本楼
NCC123
来自 江苏省
精华
190
注册 2021-3-4
2023-4-28 15:56
20楼
[联宇电脑] 电脑组装\维修\升级\企业单位电脑维护!
只看该作者
分享本楼
半盏孤茶
来自 江苏省
精华 0
注册 2023-4-10
好久不来了,趁着休息上几张卫生间贴砖跟试水照片,跑跑市场
2023-4-30 16:41
21楼
找工作,就上MY0511!
只看该作者
分享本楼
小布xsy
来自 江苏省
精华 0
注册 2013-1-26
行业 其它
QUOTE:
原帖由
半盏孤茶
于 2023-4-30 16:41 发表
好久不来了,趁着休息上几张卫生间贴砖跟试水照片,跑跑市场
瓷砖上的卡子上的挺多
---发自梦溪论坛手机客户端---
2023-5-5 00:09
22楼
找工作,就上MY0511!
只看该作者
分享本楼
火云斜神
来自 江苏省
精华 0
注册 2021-8-7
QUOTE:
原帖由
zy1010726992
于 2023-4-14 08:58 发表
报价方便发来看看嘛,我也是这个户型
半包500/平,问题不大;如果辅材要求高些,略微再涨些
2023-5-5 08:23
23楼
[联宇电脑] 电脑组装\维修\升级\企业单位电脑维护!
只看该作者
分享本楼
小布xsy
来自 江苏省
精华 0
注册 2013-1-26
行业 其它
恭喜开工
---发自梦溪论坛手机客户端---
2023-5-5 23:51
24楼
0511家装频道:本地家居服务平台,数万业主共同选择
只看该作者
分享本楼
半盏孤茶
来自 江苏省
精华 0
注册 2023-4-10
瓦工结束项目经理从前方发来我家的最新近况
2023-5-7 16:19
25楼
MY0511相亲,一分钟注册,享一辈子幸福!
只看该作者
分享本楼
悦流苏
来自 江苏省
精华 0
注册 2023-4-28
你家是哪个瓦工的贴砖呀,手艺看起来还不错,
2023-5-10 17:27
26楼
买房、卖房、租房上镇江房产网!
只看该作者
分享本楼
富兴国际
来自 江苏省
精华 0
注册 2022-8-30
QUOTE:
原帖由
半盏孤茶
于 2023-4-11 15:52 发表
装修公司看了好几家市区的,谏壁的都看过,最后在小区实地看了几家正在装修的发现老友记在我们小区做的蛮多的。工地的卫生,施工工艺都不错当时就比较倾向于他家了,试着联系了老友记的黄总,跟黄总,和设计师谈了 ...
恭喜开工
---发自梦溪论坛手机客户端---
2023-5-12 00:25
27楼
买房、卖房、租房上镇江房产网!
只看该作者
分享本楼
半盏孤茶
来自 江苏省
精华 0
注册 2023-4-10
QUOTE:
原帖由
悦流苏
于 2023-5-10 17:27 发表
你家是哪个瓦工的贴砖呀,手艺看起来还不错,
瓦工曹师傅,手艺不错的
2023-5-13 15:56
28楼
买房、卖房、租房上镇江房产网!
只看该作者
分享本楼
半盏孤茶
来自 江苏省
精华 0
注册 2023-4-10
QUOTE:
原帖由
富兴国际
于 2023-5-12 00:25 发表
恭喜开工
谢谢
2023-5-13 15:56
29楼
[联宇电脑] 电脑组装\维修\升级\企业单位电脑维护!
只看该作者
分享本楼
gaoya999
来自 江苏省
精华 0
注册 2020-3-25
路过帮顶
---发自梦溪论坛手机客户端---
2023-5-13 23:17
30楼
MY0511相亲,一分钟注册,享一辈子幸福!
只看该作者
分享本楼
老友记装饰客服
专版版主
来自 江苏省
精华
71
注册 2012-8-13
行业 其它
QUOTE:
原帖由
半盏孤茶
于 2023-4-11 15:52 发表
装修公司看了好几家市区的,谏壁的都看过,最后在小区实地看了几家正在装修的发现老友记在我们小区做的蛮多的。工地的卫生,施工工艺都不错当时就比较倾向于他家了,试着联系了老友记的黄总,跟黄总,和设计师谈了 ...
感谢对我们的信任
---发自梦溪论坛手机客户端---
2023-5-18 00:35
31楼
找工作,就上MY0511!
只看该作者
分享本楼
brown
来自 江苏省
精华
2
注册 2005-10-7
恭喜开工
2023-5-18 09:18
32楼
买房、卖房、租房上镇江房产网!
只看该作者
分享本楼
悦流苏
来自 江苏省
精华 0
注册 2023-4-28
你家现在做到哪里了吗?
2023-5-20 16:49
33楼
0511家装频道:本地家居服务平台,数万业主共同选择
只看该作者
分享本楼
随意000
来自 江苏省
精华 0
注册 2014-5-8
假期结束可以正常施工了
2023-10-7 17:11
34楼
买房、卖房、租房上镇江房产网!
只看该作者
分享本楼
老友记装饰客服
专版版主
来自 江苏省
精华
71
注册 2012-8-13
行业 其它
有时间可以上点完工照哦
2023-12-5 15:11
35楼
[联宇电脑] 电脑组装\维修\升级\企业单位电脑维护!
只看该作者
分享本楼
淡然倾琉
来自 江苏省
精华 0
注册 2014-5-11
你是106的户型吗 效果怎么样
---发自iPhone 13---
2024-10-14 21:52
36楼
[联宇电脑] 电脑组装\维修\升级\企业单位电脑维护!
只看该作者
分享本楼
返回家庭装修
快速回复主题
游客
您目前还是游客,请
登录
或
注册
您目前是游客,本帖已被系统设置了自动关闭,不可回复!
文明交流,理性发言
0/5000字
<
>
请在打开的新窗口中支付完成打赏
我已完成支付打赏
支付失败重新支付
其他金额
打赏金额:
元
确定
支付打赏
提 现
打赏人
打赏金额(元)
打赏时间
Powered by
Discuz! X 2
0.086491 s
清除 Cookies
-
镇江网友之家
-
手机版
论坛导航
关闭
吃喝玩乐
饮食男女
镇江钓友之家
菜菜鸟户外
镇江单车俱乐部
镜头里的镇江
畅游天下
猫狗总动员
视觉Coffeeshop摄影部落
花鸟鱼虫
婚姻.亲子.家庭
家有学子
谈婚论嫁
女性天地
母婴乐园
婚姻生活
梦溪佳缘
装修
家庭装修
装修招标
镇江室内设计师交流
装修商家直通车
你好,镇江!
百姓话题
我要买房
0511爱心家园
市场监管•12315热线
分类信息
生活服务
闲置转让
镇江二手房/镇江租房
镇江招聘求职
教育培训
镇江二手车
商铺厂房写字楼租售
宠物市场
运动健身
卡券交易
电脑维修升级
杂货铺
其他分类信息区
兴趣爱好
HiFi音响江城沙龙
镇江市美术家协会
我爱模型
车友俱乐部
车迷之家
汽车驾培中心
运动俱乐部
镇江市冬泳、铁人三项协会
聚焦足球
镇江羽毛球
镇江乒乓球协会
镇江网球协会
镇江市自行车运动协会
热爱篮球
动力机车
合作栏目
维权热线
天翼时代
色觉影像摄影工作室
站务区
疑问与建议
网络问政
市政府工作部门
垂直管理部门
党群工作部门
其他重点单位
辖市(区)