| 标题
快捷导航

精彩推荐:MY0511客户端下载

    • 中信银行镇江分行

    • 公益体彩 乐善人生

    • 鹏龙鸿蒙

    • 天然石材·人造石

    » 梦溪论坛 » 家庭装修 » 美的城君兰悦90㎡无设计无风格完工实景照,将美做到极致
    家庭装修  >  [完工毕业照] 美的城君兰悦90㎡无设计无风格完工实景照,将美做到极致     
    查看: 12444  回复: 5
    [完工毕业照] 美的城君兰悦90㎡无设计无风格完工实景照,将美做到极致      查看: 12444  回复: 5
    • 来自 江苏省
    • 精华 9
    • 注册 2005-10-29
    • 晒家
    •  
    美的城君兰悦90㎡无设计无风格完工实景照,将美做到极致

    案例赏析  Case appreciation
    设计风格: 奶油风
    项目小区: 美的城君兰悦
    案例面积: 90㎡
    工程造价: 15万
    设计师:圣都整装镇江店




    人,是美的,是诗意的

    你很辛苦,很累了,那么坐下来

    歇一会儿,喝一杯不凉不烫的清茶

    不纠结、少俗虑,随遇而安

    以一颗初心,安静地慢煮生活





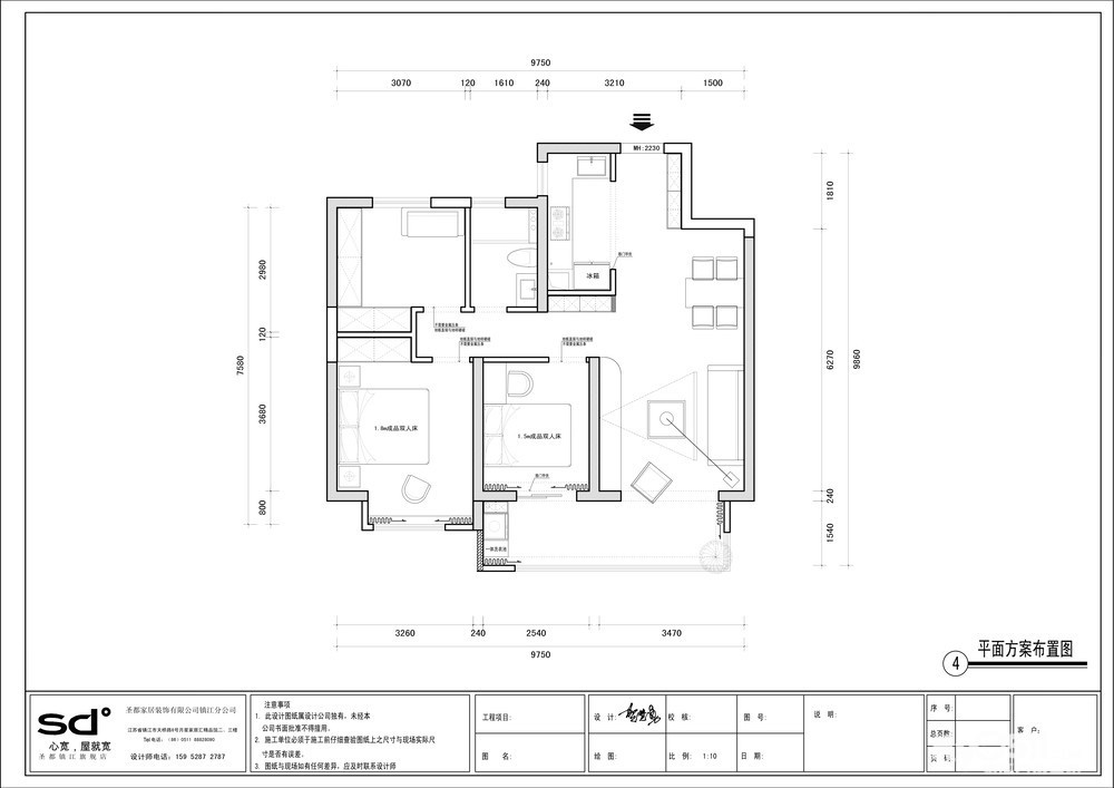
    平面布局图




    沙发、背景墙、电视柜的颜色相近,依靠色彩的延伸,酝酿出醇、静的视感,唤醒了内心对温馨的感知力。在色彩的选择上以自然舒适为主,让人能立刻被它的干净和舒适吸引,墙饰的选择一点也不张扬,但是恰到好处地表现了品味和质感。






    厨房采用了极省空间的U型设计,搭配以定制橱柜。一眼望去,厨房空间不仅颜色干净,并且整洁有序,十分顺畅。





    卧室延续白色的素雅美感,增添了一抹恬静,也让不同的区域之间好似没有阻隔。房间内设计了一排衣柜,再以温润的原木色和柜门把手处进行调和。床头贴心设计了床头灯和壁灯,通过细节的优化让空间更人性化。



    黑白线条的空间显示,完整且立体。卫生间以浅灰为背景,局部以经典黑、白勾勒,给人简洁、克制的精致印象。



    本案设计师

    家装咨询:

    公司地址:镇江市润州区天桥路8号(月星南门向西30米)圣都家装2、3、4F







    [ 本帖最后由 my0511小妖 于 2023-6-26 16:14 编辑 ]





                      
    • 来自 江苏省
    • 精华 0
    • 注册 2020-1-6
    •  

    主卧在西南角




    • 来自 江苏省
    • 精华 0
    • 注册 2018-5-5
    •  

    学习了




    • 来自 江苏省
    • 精华 0
    • 注册 2022-4-24
    •  


    QUOTE:
    原帖由 Aseven7 于 2023-7-13 16:24 发表
    学习了
    欢迎来公司看看啊




    • 来自 江苏省
    • 精华 0
    • 注册 2007-6-13
    • 行业 政府行政
    •  

    总价包括家具吗




    • 来自 江苏省
    • 精华 0
    • 注册 2015-4-8
    •  

    整个房子 被厨房这扇朝西的窗子 打了折扣








    查看积分策略说明快速回复主题
    您目前还是游客,请 登录注册
    您目前是游客,本帖已被系统设置了自动关闭,不可回复!

    0/5000字

     
    < >
     

    Powered by Discuz! X 2 0.064423 s 清除 Cookies - 镇江网友之家 - 手机版
    论坛导航 关闭