【项目概况】
|项目地址:镇江环球花园
|建筑面积:130m²
|主案设计:朱广东
|软装设计:周媛媛
|建筑类型:楼梯洋房
|设计风格:现代北欧原木
|设计施工软装:东墨设计

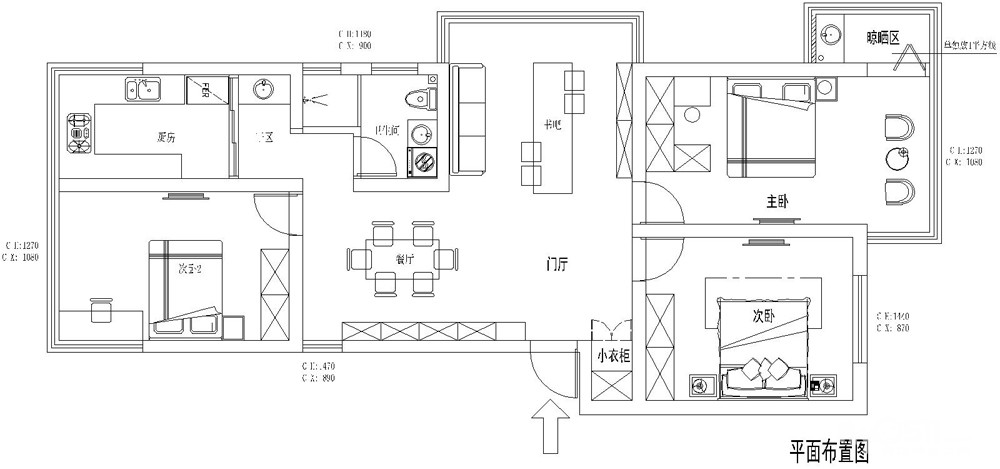
平面设计构思:我们将老房子里原有的装修全部拆除恢复毛坯状,因为是20年的老房子,不能大动拆改,把原先不合理的装饰柜和卫生间厨房合理改动布局,让家不繁琐更加温馨,客厅放弃传统的电视背景墙设计手法,改为既可以阅读学习区,去掉电视屏幕改为投影幕布,又可以一家观音,设计还是要以人为本,利用空间结构,人体工程学,最大化改善空间利用率,首先考虑功能布局的合理性,其次考虑毕竟房子是用来居住的,收纳空间要多考虑些,其次利用环保材料打造空间的连贯性,塑造美的空间效果!
餐厅
餐厅是进门鞋柜和餐边柜做整体设计,充分利用空间,餐厅背景和沙发背景设计了跳色墙布效果上简单清爽,整体门板采用原木色和白色相结合形式,因为老房子墙体容易开裂,整体墙面采用墙布,墙布纹理增加墙面温馨大气协调!沙发选用了三人原木和棉麻款式,,整体空间协调,窗帘也采用白色纱帘和咖色系窗帘!


















客房
床头背景及墙面都是采用温馨的墙布,加上壁灯灯光,床选用原木色系,窗帘也是采用灰咖色暖色系!


主卧
主卧及床头背景采用藏青色墙布跳色,加上吊灯和壁灯,氛围感十足,床选用原木色系,窗帘也是采用咖色系!





儿童房
儿童房床头采用粉色系墙布,床都采用白色皮床,配上成品原木色书桌!



如果你也想拥有这样一套品位与品质共存的案例
请联系我们

地址:旭辉时代大厦20楼2008室
电话:13160209458 / 15162976302 / 15262918655
更多东墨设计案例请点击:
[ 本帖最后由 my0511菲雪 于 2024-9-11 15:05 编辑 ]








