| 标题
快捷导航

精彩推荐:MY0511客户端下载

    • 中信银行镇江分行

    • 公益体彩 乐善人生

    • 鹏龙鸿蒙

    • 天然石材·人造石

    » 梦溪论坛 » 家庭装修 » [2018金钢铂林地板杯]一家人的温馨
    家庭装修  >  [装修日记] [2018金钢铂林地板杯]一家人的温馨     
    查看: 13684  回复: 21
    [装修日记] [2018金钢铂林地板杯]一家人的温馨      查看: 13684  回复: 21
    • 来自 江苏省
    • 精华 0
    • 注册 2013-10-5
    •  
    [2018金钢铂林地板杯]一家人的温馨



    此帖已成功报名
    2018家装日记大赛更多家装信息关注MY0511家装频道

    【小区名称】:金桥花园
    【所在楼层】:3楼
    【建筑面积】:145平方
    【装修风格】:现代
    【包工方式】:半包
    【装修公司】:德馨装饰

    设计师】:张楠卿
    【开工日期】:20181117
    【装修预算】:35万
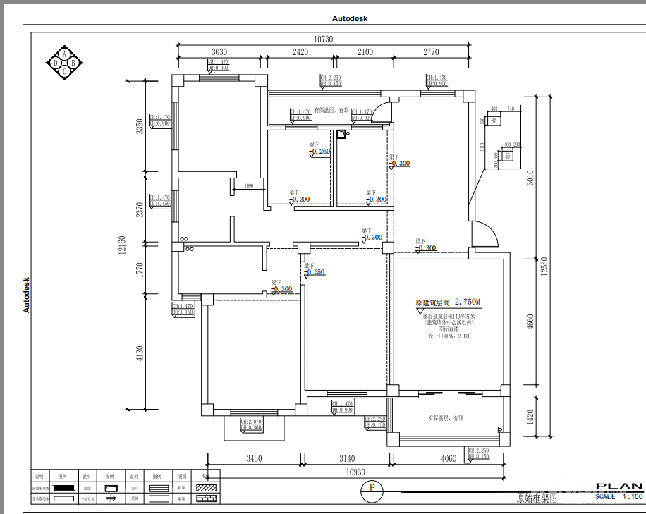
    【户型图片】:附件









    [ 本帖最后由 my0511菲雪 于 2018-12-7 10:37 编辑 ]

























                      
    • 来自 江苏省
    • 精华 4
    • 注册 2010-3-19
    • 行业 房产建筑
    •  

    开工大吉




    • 来自 江苏省
    • 精华 47
    • 注册 2018-5-3
    •  

    恭喜开贴~




    • 来自 江苏省
    • 精华 0
    • 注册 2017-12-11
    • 行业 其它
    •  

    恭喜楼主,开工大吉




    • 来自 江苏省
    • 精华 0
    • 注册 2010-6-15
    • 行业 房产建筑
    •  

    恭喜开贴




    • 来自 江苏省
    • 精华 0
    • 注册 2018-4-19
    •  

    装修愉快




    • 来自 江苏省
    • 精华 0
    • 注册 2018-11-15
    •  

    开工大吉




    • 来自 江苏省
    • 精华 0
    • 注册 2018-8-27
    •  
    • 来自 江苏省
    • 精华 0
    • 注册 2013-10-5
    •  

    开工之前,对比了很多家装修公司,也问过很多朋友各种性价比,几次商量选定了德馨装饰,老板和我同年,都是90后,话题更多了,对老板也是很有信心哒,从设计到开工,德馨装饰给了很多意见,也做了多次修改,尤其是老人房和背景墙,改了又改,最终敲定了设计方案,满足了我们的各种要求。昨天开始敲墙,温馨的小家,正在开始成型,期待~~~~




    • 来自 江苏省
    • 精华 55
    • 注册 2017-2-10
    •  

    恭喜恭喜~




    • 来自 江苏省
    • 精华 0
    • 注册 2013-10-5
    •  
    拆墙工序



    20号开始拆墙工序,扩大了老人房,厨房改向,算是个大工程,今天开始清运啦




    • 来自 江苏省
    • 精华 0
    • 注册 2016-6-23
    •  

    恭喜开工




    • 来自 江苏省
    • 精华 0
    • 注册 2014-10-16
    •  

    欢迎新同学




    • 来自 江苏省
    • 精华 0
    • 注册 2013-10-5
    •  

    进入新的工序啦,瓦工开始砌墙了,小家的格局已经开始初步出来啦








    • 来自 江苏省
    • 精华 0
    • 注册 2010-5-8
    • 行业 其它
    •  






    • 来自 江苏省
    • 精华 0
    • 注册 2015-4-30
    • 行业 房产建筑
    •  
    • 来自 江苏省
    • 精华 0
    • 注册 2010-5-8
    • 行业 其它
    •  

    恭喜楼主房屋好大哦




    • 来自 江苏省
    • 精华 0
    • 注册 2015-4-30
    • 行业 房产建筑
    •  

    恭喜开贴




    • 来自 江苏省
    • 精华 0
    • 注册 2018-8-8
    •  

    开工大吉,装修愉快




    • 来自 江苏省
    • 精华 0
    • 注册 2013-10-5
    •  

    水电工进场,来来来,发电细节图,感觉是做的不错呢








    • 来自 江苏省
    • 精华 0
    • 注册 2013-10-5
    •  















    水电已经完工啦,前天去验收,挺满意的,做的还是蛮精致的,想临时加插座什么的,师傅也很耐心的答应,现在涂得应该是防水材料,下一步就是装地暖了。




    • 来自 江苏省
    • 精华 0
    • 注册 2018-12-15
    •  

    是墙固   




    查看积分策略说明快速回复主题
    您目前还是游客,请 登录注册
    您目前是游客,本帖已被系统设置了自动关闭,不可回复!

    0/5000字

     
    < >
     

    Powered by Discuz! X 2 0.074897 s 清除 Cookies - 镇江网友之家 - 手机版
    论坛导航 关闭