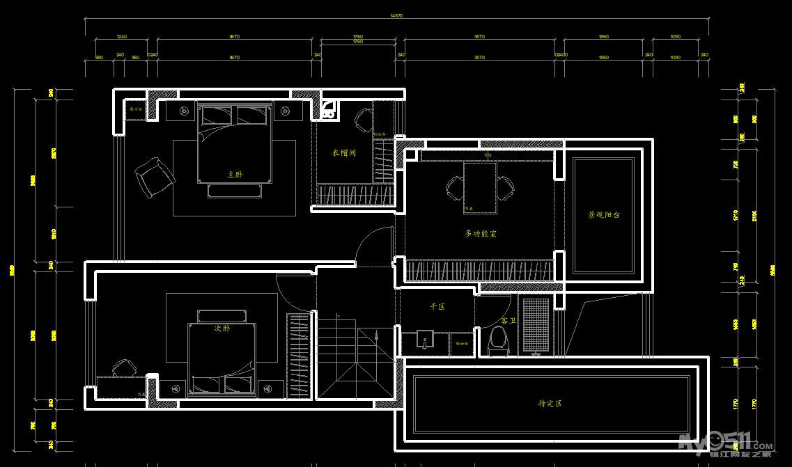
【小区名称】:滴翠园(还是原来的盛唐府听起来霸气)
【所在楼层】:上叠
【装修面积】:214
【装修风格】:现代简约混搭工业风
【包工方式】:半包
【装修公司】:泽一设计(王科富)
【开工日期】:2019年12月
【装修预算】:待定
欢迎加入家装官方VIP大宅QQ群 群号:565444352
之前买的朴园的房子,当时父母给装修的花了不少钱装修,说实话,两个字“土奢”(香逸渔港既视感)。前车之签,所以新房装修风格还是以年轻人黑白灰现代简约的风格为主。
[ 本帖最后由 半度黑 于 2019-11-5 14:23 编辑 ]
- 来自 江苏省
- 精华 0
- 注册 2019-8-6
- 来自 江苏省
- 精华 0
- 注册 2019-8-6
- 来自 江苏省
- 精华 0
- 注册 2019-8-6
- 来自 江苏省
- 精华 0
- 注册 2019-8-6
- 来自 江苏省
- 精华 0
- 注册 2019-8-6
- 来自 江苏省
- 精华 0
- 注册 2019-8-6
- 来自 江苏省
- 精华 0
- 注册 2019-8-6
- 来自 江苏省
- 精华 0
- 注册 2019-8-6
- 来自 江苏省
- 精华 0
- 注册 2019-8-6
- 来自 江苏省
- 精华 0
- 注册 2019-8-6




















