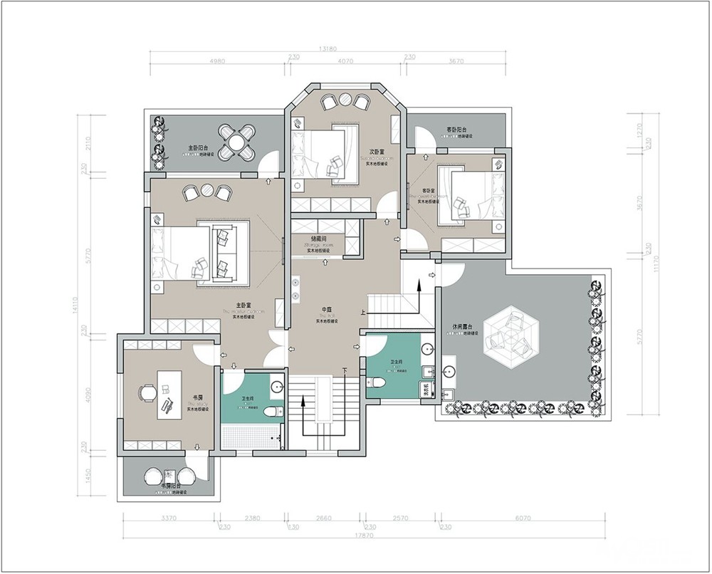
项目地址 | Project Address:仙人湖
项目面积 | Project Area:室内410㎡+庭院550㎡
项目名称 | Project Name:云山雾海
设计师 | Designer:李朋
撰文 | Writing:夏秋萍
设计公司 | Company:万家基和装饰
本案例是位于丹徒仙人湖风景度假区内的双层独栋别墅
周边自然环境优美,山水林溪资源兼备
背依连绵横山,南面天然仙人湖,隔湖远眺十里长山
内有原生黑松林郁郁葱葱,外有有机茶园环伺周边,环境清幽

生活本该如此
不需要在路上花费太多时间
有一方湖光山色可舒缓疲惫
和都市塔尖的繁华
保持一个转身的距离


中国红,在我们的认知中
是朱瓦红墙的富丽堂皇
而在本案的设计中
设计师从东方文化中汲取灵感
重新解读传统与传承
删繁去奢、绘事后素
将红色作为空间的点缀色
以强化背景的装饰效果

通透的玻璃引景入室
自然与住宅共生
与风景不期而遇
听着风声、雨声、虫鸣鸟叫
感知四季的变换

客厅空间整体简洁明净
浅杏色棉麻布艺沙发、祥云图案拼花地砖、深色木质家具、古朴韵味的花瓶、古卷小品等现代形制的家具陈设糅合中式绵绵古意
贯穿于空间的情致中
将俊雅悠然的氛围无声渲染

“家”是一种根植于心的情节与向往
蕴含着诗的想象和光阴的故事
潜藏着天地春秋、家人共欢、内心的豁达与安定

无山不飞云,无云不绕山
水墨写意、行云流水、一气呵成
躺在舒服的沙发上
光是欣赏着放佛有生命般的水墨背景
任千年的故事顺着指尖流淌
已然是一种享受

以木作装饰与石材相结合
其天然质感与自然属性营造出沉静质朴、端方稳重的视觉氛围
暖色的灯光带映衬着木质的造型
一种温暖而慵懒的舒适蔓延在空间中
让人充分感受到家的放松

阅读使人闲适
墨香使人静宁
坐看云起、展卷闲茗
诗意栖居、方寸净明

圆,有圆满之意
确切符合了人内心深处的精神向往
设计师结合顶部贯穿的大梁
做了十字分割
并结合内圆与外圆
分割成四个扇面的形状
创造出了一份别样的美和韵味

素日时光,在温暖的摆盘中凸显浪漫
在充满雅趣的用餐氛围里
一日、三餐、四季
家的仪式感与人间烟火色
凡间的温暖挚爱
在百般滋味间得以修炼

简约的中式实木书桌与摆件散发着古朴的韵味
素年锦时、岁月静好
诉一段心语幽思
流淌于清浅时光
一抹写意、几许禅意
不求半世浮华
但求一份恬淡人生
设计师将书写阅读的场景搭建出婉约闲逸的意境美

云卷云舒上青天
雾聚雾散绕山间
连绵的山形与缥缈的云雾在空间中自然而轻盈的呈现

当我们身处其中
居一隅而知山水的意境如品茶般令人回味无穷
设计师所塑造的既是场景,也是风景

富有沉淀感的木的质感带来一室的安宁
置于案头的那份跃动与鲜亮直入眼帘
让静雅的空间焕发灵动的生机

客卧的布设延续了素净的色调
在这里,东方的韵味是深厚浓郁的
床头的圆月清辉一道光
光影浮动、虚实之间
带着岁月打磨与沉淀的痕迹
尽显独到品味

在传统文化与现代文明的交界之中
我们始终寻找向心而生的唯一注解
设计则是让每一个品位不凡的主人
都得以在心灵的禅意与简约的时尚间
寻找到独属于自己的那一份诗意栖居梦想
【About Us】

如果你也想拥有这样一套品位与品质共存的案例
请联系我们

地址:镇江市学府路66-208 欧尚超市西边中国移动二楼
电话:0511-88985388 18061186603
更多万家基和装饰案例请点击:
[ 本帖最后由 my0511唐老鸭 于 2021-1-27 08:44 编辑 ]








