本人去年购得润康城一套住房,因为在三茅宫住惯了,附近只有这一家带电梯的新楼盘,当时感觉宣传的还行,就放弃了万科南山和红郡西岸,选择了这里。拿房后有种种情绪,在此省略........
本人平时在外地工作,周末回镇,就想着找一家负责任的装修公司帮我装修房子。本打算让同学的装修公司帮我装修,但恰巧碰到她公司升级搬迁,无暇照顾到我这个小项目。经过一个月的调研,选中了一家一线的装修公司,和设计师聊的不错,在签约之前到施工现场看了一下,发现不少问题,对这家公司施工现场的管控不满意。偶然的机会,朋友介绍了一家小公司,去看了正在施工的三个现场,对施工现场的管理还是比较满意的,老板是连云港人,大家聊的也比较愉快,于是当天就签了合同。
昨天是个好日子,到物业办理了开工手续。有个事情要说明一下,物业未经业主同意就在物业中心贴了一个通知,收费,收费 ,收费!!10月18日之前开工的业主不需要缴纳2000元的装修安全保证金。 希望物业是从加强管理角度出发,而不是乱收费的套路!!!装修结束后,就知道事实真相了。
在征得装修公司尹老板的同意后,我会将整个装修过程,不定期的在网上同步直播,也欢迎大家提出意见。
身在外地工作,最大的困难就是采购,采购,采购!!!昨天开工,紧接着就要订中央空调和暖气系统,确定整体房屋装修风格和色系搭配。时间不够用啊!
- 来自 浙江省
- 精华 0
- 注册 2017-6-10
空调及采暖系统的纠结
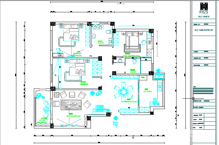
大家可以看到,我这个户型的空调机位占据了每个房间的一个角落,使房间变得不工整且浪费空间。因为最初的打算不想装家用中央空调,因为所谓的家用中央空调是多联机,使用的制冷媒介还是氟 (好像是R410A),那么温度在零度以下,基本就无法制热(这就是为何大家会说中央空调冬天制热效果不好的原因),而且后期的维护以及购买的成本都比挂机和柜机高。反复纠结了两个星期,考虑到空间成本,加上对门已经敲了所有机位(说明物业那边是没有问题的),终于下定决心将所有机位全部敲掉,在北阳台的一侧砌一个平台,放置多联机主机。
因为家中白天有老人,且多联机在三九天制热效果差,打算安装采暖系统。目前有电地暖,水地暖,散热片等选择,考虑到是本地人,地暖一直开着,会觉得房间里太热,所以基本打算选择燃气锅炉+散热片的方式。因为本人是在工业企业工作,从维护和精益的角度,散热片系统明装是最佳选择,可惜镇江的供应商对毛胚房基本都是建议埋管,且明装的效果达不到我的预期(也许我的要求偏高),最终还是选择现实,埋管。
因为家中白天有老人,且多联机在三九天制热效果差,打算安装采暖系统。目前有电地暖,水地暖,散热片等选择,考虑到是本地人,地暖一直开着,会觉得房间里太热,所以基本打算选择燃气锅炉+散热片的方式。因为本人是在工业企业工作,从维护和精益的角度,散热片系统明装是最佳选择,可惜镇江的供应商对毛胚房基本都是建议埋管,且明装的效果达不到我的预期(也许我的要求偏高),最终还是选择现实,埋管。
- 来自 浙江省
- 精华 0
- 注册 2017-6-10
- 来自 江苏省
- 精华 0
- 注册 2017-6-10
- 来自 江苏省
- 精华 0
- 注册 2017-5-17
- 来自 浙江省
- 精华 0
- 注册 2017-6-10
- 来自 浙江省
- 精华 0
- 注册 2017-6-10
- 来自 浙江省
- 精华 0
- 注册 2017-6-10
- 来自 江西省
- 精华 0
- 注册 2017-6-10
- 来自 江西省
- 精华 0
- 注册 2017-6-10
- 来自 江苏省
- 精华 0
- 注册 2016-7-12
- 来自 浙江省
- 精华 0
- 注册 2017-6-10
- 来自 浙江省
- 精华 0
- 注册 2017-6-10
装修公司(2)
现在主角隆重出场!!!
![]()
镇江飞煌装饰工程有限公司是一家集室内外设计、预算、施工、材料于一体的专业化装饰公司。公司从事装饰装修行业多年,有着创新的设计、合理的报价,还有一批独立的专业化的施工队伍,确保施工 绿色环保,安全文明。 公司本着“崇尚自由,追求完美”的设计理念,凭借超前的设计构思、合理的预算 报价、精良的施工工艺,优质的全程服务,真诚的为每一位顾客,量身定制全新、优雅、舒适的居家生 活、文化空间。 自公司成立以来,全体员工一直秉承“以质量求生存,以信誉求发展”的经营理念,始终 坚持以客户的需求和满意为核心,以“诚信”为宗旨,不断的用优质、精美、具有创造力的空间装饰产品 为客户提供更大的价值回报,从而使公司不断发展壮大 。。
老尹,小尹 联系热线:13160201110,18651282925
这是向小尹要的,小伙子太实在了,给我整了满满的套话。其实就一句话,人心是透明的,谁对你好,自己是清楚的。
哈哈,瞬间感觉自己有了湿人的感觉
![]()
怎么样,现场处理的干净吧。 这是群里的业主帮我拍的

镇江飞煌装饰工程有限公司是一家集室内外设计、预算、施工、材料于一体的专业化装饰公司。公司从事装饰装修行业多年,有着创新的设计、合理的报价,还有一批独立的专业化的施工队伍,确保施工 绿色环保,安全文明。 公司本着“崇尚自由,追求完美”的设计理念,凭借超前的设计构思、合理的预算 报价、精良的施工工艺,优质的全程服务,真诚的为每一位顾客,量身定制全新、优雅、舒适的居家生 活、文化空间。 自公司成立以来,全体员工一直秉承“以质量求生存,以信誉求发展”的经营理念,始终 坚持以客户的需求和满意为核心,以“诚信”为宗旨,不断的用优质、精美、具有创造力的空间装饰产品 为客户提供更大的价值回报,从而使公司不断发展壮大 。。
老尹,小尹 联系热线:13160201110,18651282925
这是向小尹要的,小伙子太实在了,给我整了满满的套话。其实就一句话,人心是透明的,谁对你好,自己是清楚的。
哈哈,瞬间感觉自己有了湿人的感觉


怎么样,现场处理的干净吧。 这是群里的业主帮我拍的

- 来自 浙江省
- 精华 0
- 注册 2017-6-10




















,有意向可以联系我。









