设计单位 Designer : 企屋设计
项目名称 project name: 艺启美 · 医疗美容
施工单位 Construction unit: : 企屋装饰
软装陈设 Soft furnishings: 企屋陈设
设计主创 Design chief creator:杨涛 冷倩蕊
设计执行 Design executive: 姚思洁 鲁博文
效果表现 Rendere: 严飞 高崇伟

空间从来不是主角,
它所尽力去表达的,在试图描摹人们的行为、
情绪、感知中所流露出的印迹才是空间的灵魂所在,
围绕着追寻美、塑造美而展开。


本案是医疗美容属性的女性空间,注重功能性的同时带有诗意性的将空间展开, 门前用鹅卵石拍摄部分区域与材质的地板形成材质和线条的对冲,同时落地窗边用圆形作为装饰,拉满艺术感氛围。两侧的载满鲜花的花坛延台阶而上,让公区也可以成为店面的延伸,使得进入店内的客人的在第一眼就会邂逅美,追随美。

整体空间我们以浅米调为主,空间中柔中带力的曲线,让原本固态的空间变得灵动,以此折射出在女性身上独有的特性美,营造出特有的安全感与归属感。

洽谈区内,根据契合空间的极简语言,选择相同色系的家具陈设,强调空间的完整性。弧线与弹性材质形成的柔软感,与材料的利落线条构成一组风格强烈的视觉对比体,隐喻女性内在的坚定强悍与细腻柔和的独有魅力。


基于白色的主色调,大面积的玻璃窗将城市景观纳入视野,同时借景引光拉近人与自然的距离。


精简的形式和共享的功能有效消弭了心理上的陌生感,借以绿植的穿插更增强了空间亲和度。


休闲等候区内,金色的线条金属装饰让空间变得更加精致浪漫,而金属色带来轻奢感,更显档次和品味。


洗手台、镜子、壁灯用高低错落成就美的仪式感,光影交错形成一虚一实的形态关系,让时间变得缓慢柔和,静下心来与身体和心灵进行一场对话。

皮肤检测区,皮质和布面元素设计的桌椅圆融舒缓。垂落的吊灯烘托出专注、放松的房间氛围。


顺楼梯而上,便步入了二楼的主诊疗区,头顶上打磨成弧形的灯带,从细节处强化了室内环境的柔美。大片白色的楼梯给人温柔的包裹感,细腻而有格调,温润而优雅,带给人舒适放松的视觉感知。

化妆区,透明亚克力元素设计的桌椅低调明净,与美容镜上的点状光源相互辉映。

精简即是精炼,曲线感的镜子映衬点睛的造型花瓶,享受灵感的荟聚,在每一处角落都埋下细节之美的伏笔,为整个空间注入宁静温和的力量。

美容功能室的墙壁设计富有层次感,让空间视觉更立体,用灯光带作为主光源,柔和的光线烘托温馨氛围,视觉传导触感,加深感官厚度,让人更放松沉浸,大块面的素色将平衡动态观感极致呈现, 以现代方式重构传统秩序美, 柔和光线提炼天花块面轮廓,将惬意氛围表现得深入细腻。



镜子、 桌面 、凳子、浴缸,无处不在的弧形元素贯穿始终,很好的柔化了空间氛围。除了皮肤管理之外,各种曲线的强烈存在感更是将女性柔美、顺滑质感等关键点作为设计的灵感,意在让整个空间给顾客一种梦幻、流畅、顺滑的体验感。

光与景是来自大自然的最宝贵的设计底色,是美学与功能的融合,更是感性与理性的平衡。

光之于空间,犹如空气之于生命。楼顶的天窗引光入室,还能为纵深空间带来光影更迭,产生特殊的节奏和韵律感。
生活不止有职场与家庭,更有自我。
无论我们经历多少,都值得爱与被爱,在这一方天地里,
久违的温润感浸润身体,
忙碌的心灵得到复苏,与美相伴,与美同行。
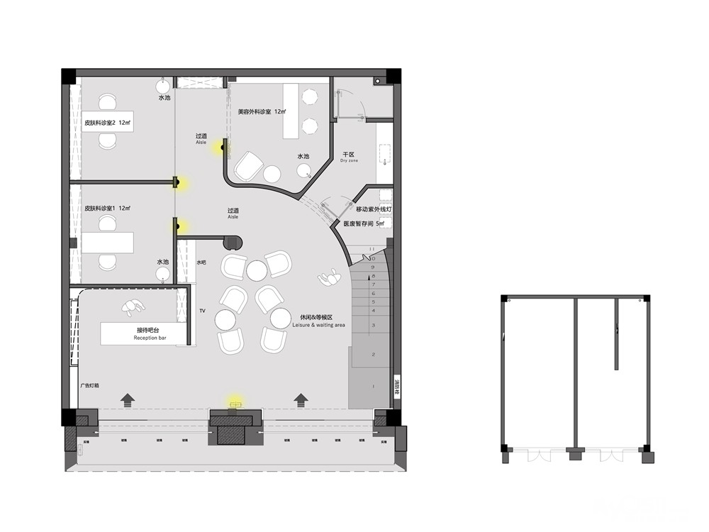
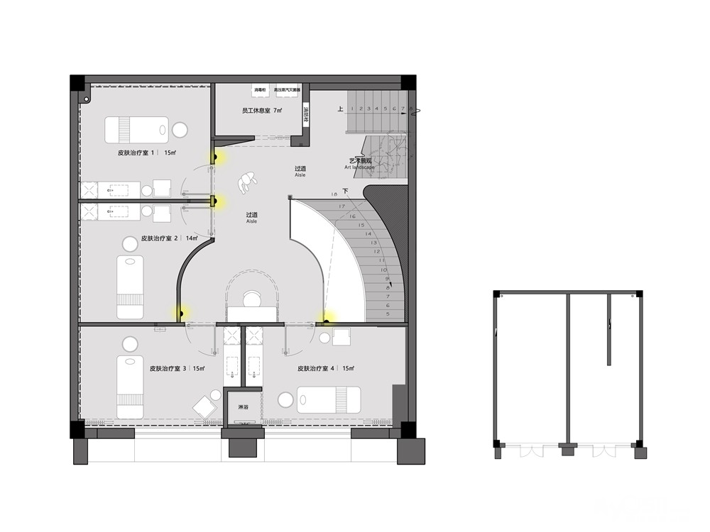
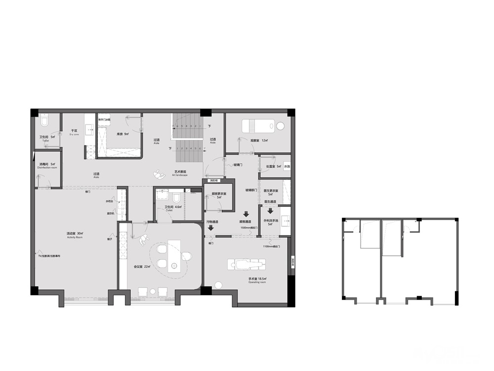
项目户型:
一层

二层

三层

施工现场:



△ 施工现场





△ 拍摄花絮
全案托管服务详情
由企屋设计全程负责整体方案设计、硬装施工
主材采购、家具软装采购、整体预算控制、家政保洁等服务。
Details of whole case custody service
The enterprise housing design is responsible for the overall scheme design and hard installation construction
Main materials procurement, furniture and soft decoration procurement, overall budget control, housekeeping and other services.


更多企屋设计详情及完工案例:http://bbs.my0511.com/f649b
[ 本帖最后由 my0511菲雪 于 2023-3-21 09:50 编辑 ]













