收藏本站
客户端
扫码下载客户端
官方微信
打开微信扫一扫
登录
|
注册
|
标题
标题
用户
全站首页
|
论坛导航
|
网络问政
|
招聘求职
|
买房租房
|
装修频道
|
生活服务
|
教育
|
相亲
|
亲子
|
美食
|
婚嫁
|
手机客户端
家有学子
|
母婴乐园
快捷导航
精彩推荐:
MY0511客户端下载
中信银行镇江分行
公益体彩 乐善人生
鹏龙鸿蒙
天然石材·人造石
»
梦溪论坛
»
家庭装修
» 装修全家总动员,总是想法太多 中式复古的国信上城
家庭装修
>
[装修日记]
装修全家总动员,总是想法太多 中式复古的国信上城
查看: 38926 回复: 20
快速回复
返回家庭装修
[装修日记]
装修全家总动员,总是想法太多 中式复古的国信上城
查看: 38926 回复: 20
上一主题
|
下一主题
波涛装饰
专版版主
来自 江苏省
精华
173
注册 2015-4-10
行业 房产建筑
所有的波涛家人都在支持你
今天开工了哦
已有
0
人打赏
2016-3-15 08:52
1楼
[联宇电脑] 电脑组装\维修\升级\企业单位电脑维护!
查看全部
分享本楼
波涛装饰
专版版主
来自 江苏省
精华
173
注册 2015-4-10
行业 房产建筑
波涛装饰,来自上海的海派家居设计
QUOTE:
原帖由
将来而努力
于 16-3-15 13:30 发表
今天终于开工啦,今天先举办一个仪式,早上全家一大早就赶到房子那边,去的时候负责人已经在那边买好开工用的东西在门口等我们了,当时说实话心里觉得暖暖的;
[attach]20037351[/attach]
[attach]20037352 ...
您放心哦,我们公司的工人都是长期合作的,工艺是绝对会让您满意哦
,希望下午选购开心顺利
2016-3-15 13:36
2楼
买房、卖房、租房上镇江房产网!
查看全部
分享本楼
波涛装饰
专版版主
来自 江苏省
精华
173
注册 2015-4-10
行业 房产建筑
工地我们都是每天有人监管的哦
QUOTE:
原帖由
将来而努力
于 16-3-18 15:28 发表
这两天还没有时间去工地看看呢,有空去一定要拍照纪念一下
随时欢迎来工地审查工作
2016-3-18 15:33
3楼
MY0511相亲,一分钟注册,享一辈子幸福!
查看全部
分享本楼
波涛装饰
专版版主
来自 江苏省
精华
173
注册 2015-4-10
行业 房产建筑
第二套一看就很大气
2016-3-18 16:55
4楼
买房、卖房、租房上镇江房产网!
查看全部
分享本楼
波涛装饰
专版版主
来自 江苏省
精华
173
注册 2015-4-10
行业 房产建筑
第一套其实也不错
2016-3-18 16:55
5楼
找工作,就上MY0511!
查看全部
分享本楼
波涛装饰
专版版主
来自 江苏省
精华
173
注册 2015-4-10
行业 房产建筑
装修日记要记得更新哦,波涛家人为你加油
2016-3-19 16:22
6楼
买房、卖房、租房上镇江房产网!
查看全部
分享本楼
波涛装饰
专版版主
来自 江苏省
精华
173
注册 2015-4-10
行业 房产建筑
恭喜波涛家人的帖子审核通过啦!继续加油哦
2016-3-22 17:46
7楼
0511家装频道:本地家居服务平台,数万业主共同选择
查看全部
分享本楼
波涛装饰
专版版主
来自 江苏省
精华
173
注册 2015-4-10
行业 房产建筑
QUOTE:
原帖由
将来而努力
于 16-3-28 17:55 发表
装修的时候是累的,但是都是为了能够享受到自己满意的家!!!苦尽甘来,加油
2016-3-29 09:09
8楼
找工作,就上MY0511!
查看全部
分享本楼
波涛装饰
专版版主
来自 江苏省
精华
173
注册 2015-4-10
行业 房产建筑
QUOTE:
原帖由
将来而努力
于 16-3-30 09:03 发表
今天水电惊颤,我还以为是验收的呢,心想这速度是起早贪黑做的啊,原来是我看错信息了
,去了工地看他们交底,其实我啥也不懂,就是看看
交底主要是设计师、工长和施工工人交接施工事宜,业主可以去也可以不去。多去工地看看没有坏处的
2016-3-30 15:56
9楼
0511家装频道:本地家居服务平台,数万业主共同选择
查看全部
分享本楼
波涛装饰
专版版主
来自 江苏省
精华
173
注册 2015-4-10
行业 房产建筑
QUOTE:
原帖由
波涛装饰
于 16-3-30 15:56 发表
交底主要是设计师、工长和施工工人交接施工事宜,业主可以去也可以不去。多去工地看看没有坏处的
恩,多看看也是有好处的,也能跟工长、设计师联络联络,保持沟通。
2016-3-30 16:57
10楼
找工作,就上MY0511!
查看全部
分享本楼
波涛装饰
专版版主
来自 江苏省
精华
173
注册 2015-4-10
行业 房产建筑
诚邀您的参加,老客户可以参加买主材
2016-3-31 17:58
11楼
MY0511相亲,一分钟注册,享一辈子幸福!
查看全部
分享本楼
波涛装饰
专版版主
来自 江苏省
精华
173
注册 2015-4-10
行业 房产建筑
[
本帖最后由 波涛装饰 于 16-4-1 10:52 编辑
]
2016-4-1 10:51
12楼
[联宇电脑] 电脑组装\维修\升级\企业单位电脑维护!
查看全部
分享本楼
波涛装饰
专版版主
来自 江苏省
精华
173
注册 2015-4-10
行业 房产建筑
QUOTE:
原帖由
将来而努力
于 16-4-1 10:54 发表
今天和明天都没有时间去逛装饰城,关键为了要搭配还要麻烦曹设计师跟我去逛,还要麻烦他。所以我是想自己先逛几个,然后发几个照片给他看,看哪个合适,就跟上次买家具的时候一样的,这样比较省时省力听说去买瓷砖 ...
还有没买的主材可以来参加我们的活动,一站式搞定,国际一线品牌
2016-4-6 10:56
13楼
买房、卖房、租房上镇江房产网!
查看全部
分享本楼
波涛装饰
专版版主
来自 江苏省
精华
173
注册 2015-4-10
行业 房产建筑
QUOTE:
原帖由
将来而努力
于 16-4-18 11:35 发表
昨天看到那个中国好声音海选!这是镇江首次好声音海选吗?也可以这么高大上
怎么发图啊?手机上
回复里面有个加号就可以添加图片的啊
2016-4-23 11:11
14楼
找工作,就上MY0511!
查看全部
分享本楼
波涛装饰
专版版主
来自 江苏省
精华
173
注册 2015-4-10
行业 房产建筑
最近看不到这位同学更新了嘛,装修日记要坚持更新哦
加油更新哦,平时可以多去工地看看,或者多跟设计师、工长了解,多沟通还是有好处的
2016-4-23 11:13
15楼
0511家装频道:本地家居服务平台,数万业主共同选择
查看全部
分享本楼
波涛装饰
专版版主
来自 江苏省
精华
173
注册 2015-4-10
行业 房产建筑
亲,你的装修日记要及时更新哦,已经一个多月没动静了,及时更新才能更好的记录您的装修过程哦,加油加油加油
:clapping:
2016-6-12 14:41
16楼
0511家装频道:本地家居服务平台,数万业主共同选择
查看全部
分享本楼
波涛装饰
专版版主
来自 江苏省
精华
173
注册 2015-4-10
行业 房产建筑
要加油更新哦,不然就石沉大海了
2016-6-12 14:44
17楼
0511家装频道:本地家居服务平台,数万业主共同选择
查看全部
分享本楼
波涛装饰
专版版主
来自 江苏省
精华
173
注册 2015-4-10
行业 房产建筑
QUOTE:
原帖由
将来而努力
于 16-3-14 17:29 发表
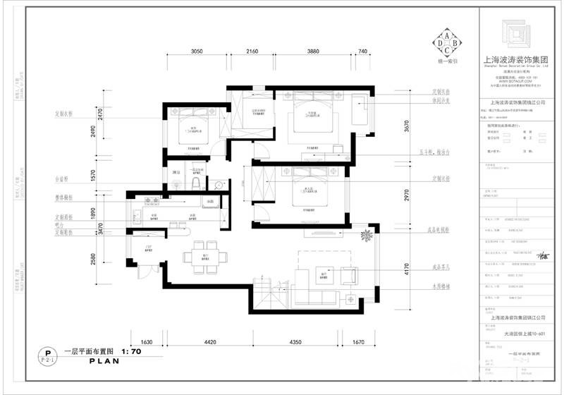
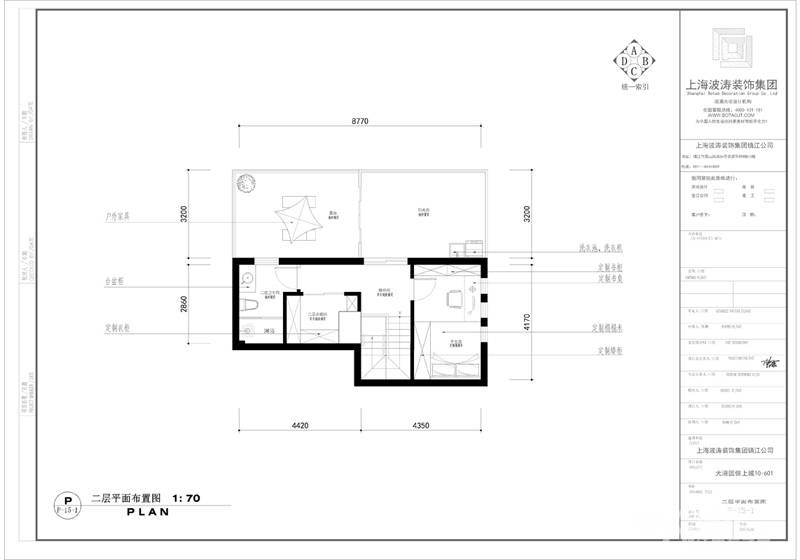
【小区名称】:国信上城
【所在楼层】:6楼
【建筑面积】:复试160平方
【装修风格】:中式
【 ...
亲,户型图说好上传的呢?
您没时间更新的可以让我帮你更新一下的哦,就是传一些图片,说一些感想就行了哦,看来最近比较忙,户型图还是我给你补上吧
真是拿你没辙
一楼平面
二楼平面
记得感谢我哦
2016-6-12 14:50
18楼
买房、卖房、租房上镇江房产网!
查看全部
分享本楼
波涛装饰
专版版主
来自 江苏省
精华
173
注册 2015-4-10
行业 房产建筑
近日入伏户外会持续高温,亲们出行需必备防暑降温工具,谨防中暑!
2016-7-25 10:56
19楼
MY0511相亲,一分钟注册,享一辈子幸福!
查看全部
分享本楼
波涛装饰
专版版主
来自 江苏省
精华
173
注册 2015-4-10
行业 房产建筑
你家已经快结束了,装修日记要加油更新啊
2016-7-25 10:57
20楼
找工作,就上MY0511!
查看全部
分享本楼
波涛装饰
专版版主
来自 江苏省
精华
173
注册 2015-4-10
行业 房产建筑
QUOTE:
原帖由
将来而努力
于 16-8-10 17:31 发表
没人顶就自己顶
我家都快结束了,居然才盖了这么点楼!下次再装修的时候就认真的写吧!这次作品就这样了!后续会补上一些装修的心得
望大家多来顶帖
我来给你顶
2016-8-23 10:36
21楼
[联宇电脑] 电脑组装\维修\升级\企业单位电脑维护!
查看全部
分享本楼
返回家庭装修
快速回复主题
游客
您目前还是游客,请
登录
或
注册
您目前是游客,本帖已被系统设置了自动关闭,不可回复!
文明交流,理性发言
0/5000字
<
>
请在打开的新窗口中支付完成打赏
我已完成支付打赏
支付失败重新支付
其他金额
打赏金额:
元
确定
支付打赏
提 现
打赏人
打赏金额(元)
打赏时间
Powered by
Discuz! X 2
0.062529 s
清除 Cookies
-
镇江网友之家
-
手机版
论坛导航
关闭
吃喝玩乐
饮食男女
镇江钓友之家
菜菜鸟户外
镇江单车俱乐部
镜头里的镇江
畅游天下
猫狗总动员
视觉Coffeeshop摄影部落
花鸟鱼虫
婚姻.亲子.家庭
家有学子
谈婚论嫁
女性天地
母婴乐园
婚姻生活
梦溪佳缘
装修
家庭装修
装修招标
镇江室内设计师交流
装修商家直通车
你好,镇江!
百姓话题
我要买房
0511爱心家园
市场监管•12315热线
分类信息
生活服务
闲置转让
镇江二手房/镇江租房
镇江招聘求职
教育培训
镇江二手车
商铺厂房写字楼租售
宠物市场
运动健身
卡券交易
电脑维修升级
杂货铺
其他分类信息区
兴趣爱好
HiFi音响江城沙龙
镇江市美术家协会
我爱模型
车友俱乐部
车迷之家
汽车驾培中心
运动俱乐部
镇江市冬泳、铁人三项协会
聚焦足球
镇江羽毛球
镇江乒乓球协会
镇江网球协会
镇江市自行车运动协会
热爱篮球
动力机车
合作栏目
维权热线
天翼时代
色觉影像摄影工作室
站务区
疑问与建议
网络问政
市政府工作部门
垂直管理部门
党群工作部门
其他重点单位
辖市(区)