
此帖已成功报名2017家装日记大赛。更多家装信息关注MY0511家装频道

【小区名称】:御珑湖
【所在楼层】:5楼
【建筑面积】:190
【装修风格】:未定
【包工方式】:半包
【装修公司】:未定
【开工日期】:未定
【装修预算】:能少就少咯
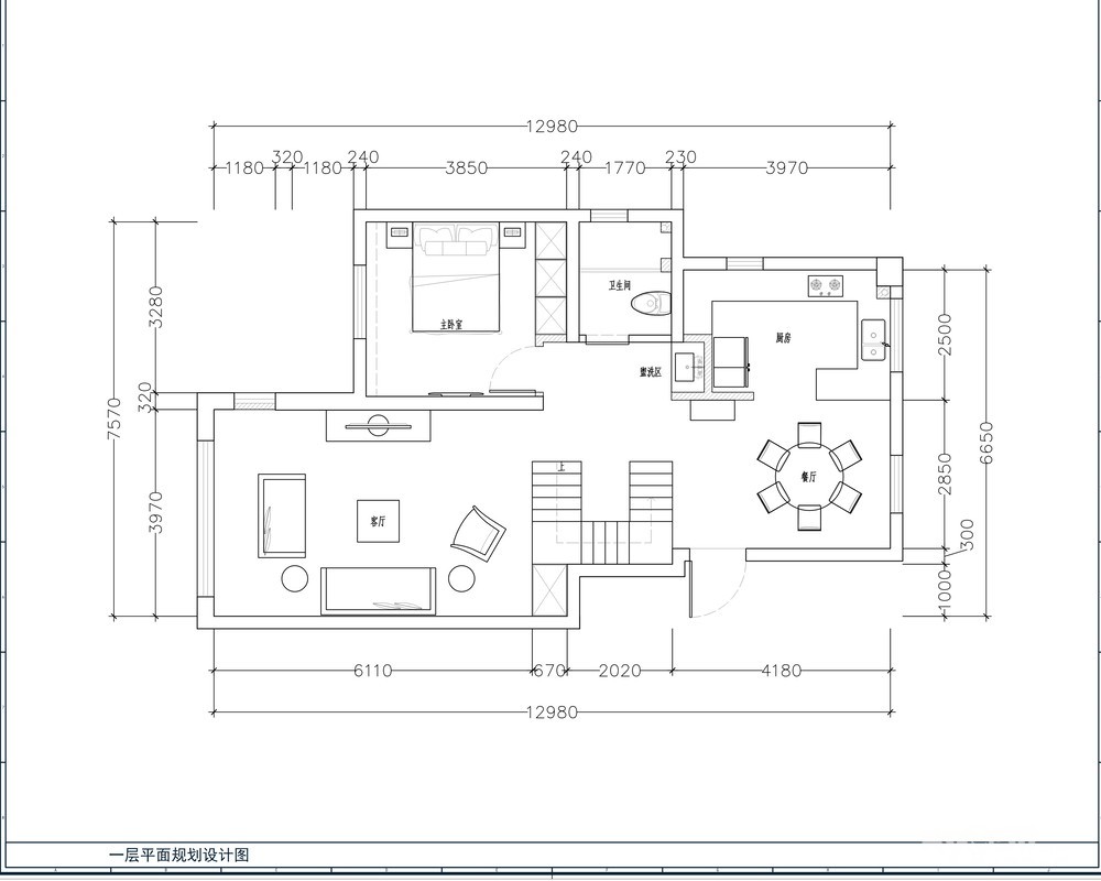
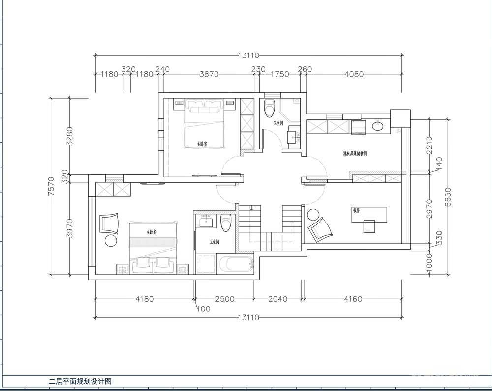
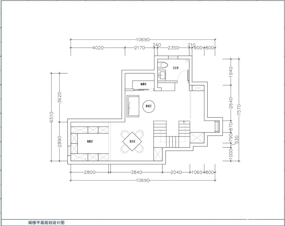
【户型图片】:
欢迎加入家装官方VIP别墅群 群号:565444352

之前一直纠结要不要写日记,第一,自己属于比较懒的,第二,一旦开始了就不能停下来,0511的浏览量也很大,写着写着就不写了就会觉得对不起顶贴支持的网友,纠结了很久,想想还是写吧,这样不管遇到什么问题还能和大家讨论讨论,也能请网友们监督监督我家的施工啥的。
这几天也去小区里转了转,大部分的房子已经好了,就是绿化还有不少没有完善好,还特地挑了好天去,那个灰吹的,出来的时候就跟从沙漠回来一样的,大太阳下面,工人在那里植树浇水也是蛮辛苦的。上两张小区环境图,个人觉得还是挺好看的,满眼绿色~


[ 本帖最后由 风光尽随伊归去 于 17-12-10 10:31 编辑 ]







恭喜开贴。
你准备半包?



个人观点 

































































