收藏本站
客户端
扫码下载客户端
官方微信
打开微信扫一扫
登录
|
注册
|
标题
标题
用户
全站首页
|
论坛导航
|
网络问政
|
招聘求职
|
买房租房
|
装修频道
|
生活服务
|
教育
|
相亲
|
亲子
|
美食
|
婚嫁
|
手机客户端
家有学子
|
母婴乐园
快捷导航
精彩推荐:
MY0511客户端下载
中信银行镇江分行
公益体彩 乐善人生
鹏龙鸿蒙
天然石材·人造石
»
梦溪论坛
»
家庭装修
» [2018金钢铂林地板杯]装修小白修炼手册正式开贴了,致我简约风小窝。
家庭装修
>
[装修日记]
[2018金钢铂林地板杯]装修小白修炼手册正式开贴了,致我简约风小窝。
查看: 64054 回复: 177
快速回复
返回家庭装修
178
1/4
1
2
3
4
>
[装修日记]
[2018金钢铂林地板杯]装修小白修炼手册正式开贴了,致我简约风小窝。
查看: 64054 回复: 177
上一主题
|
下一主题
1234@
来自 江苏省
精华 0
注册 2017-6-12
[2018金钢铂林地板杯]装修小白修炼手册正式开贴了,致我简约风小窝。
此帖已成功报名
2018家装日记大赛
。
更多家装信息关注
MY0511家装频道
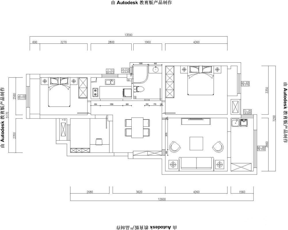
【小区名称】:紫榭丽舍
【所在楼层】:5楼
【建筑面积】:100.2平
【装修风格】:现代简约
【包工方式】:半包
【装修公司】:百年装饰,设计师杨建斌
【开工日期】:2018年8月5日
【装修预算】:越少越好
【户型图片】:
[
本帖最后由 my0511菲雪 于 2018-8-6 10:59 编辑
]
---发自iPhone 6S---
已有 红居装饰, 双羽木门专卖, 放肆的青春1115, 法诗雅移门
4
人打赏
2018-8-2 22:16
1楼
找工作,就上MY0511!
查看全部
分享本楼
1234@
来自 江苏省
精华 0
注册 2017-6-12
---发自iPhone 6S---
2018-8-2 22:18
2楼
0511家装频道:本地家居服务平台,数万业主共同选择
查看全部
分享本楼
1234@
来自 江苏省
精华 0
注册 2017-6-12
---发自iPhone 6S---
2018-8-2 22:19
3楼
找工作,就上MY0511!
查看全部
分享本楼
1234@
来自 江苏省
精华 0
注册 2017-6-12
---发自iPhone 6S---
2018-8-2 22:20
4楼
买房、卖房、租房上镇江房产网!
查看全部
分享本楼
1234@
来自 江苏省
精华 0
注册 2017-6-12
先谈谈购房经历吧,当时就看了中南和紫榭两个楼盘,后来根据地理位置、交通情况及周边设施,果断买了学府路上的紫榭丽舍期房,感谢当时的果断,迟买2个月就要多花10几万大洋,经过2年漫长的等待,在今天终于拿到了,再来谈谈装修公司的选择吧,交房前两个月开始物色装修公司,都是我老公一直在考察,凭借老公的第六感装修公司定在了百年装饰,考察全程我都未参与,到最后为了刷下有我的存在,在我一脸蒙的情况下让我参与了签合同。设计师杨建斌给人的第一感觉就是踏实稳重,相信老公的选择吧,等开工后再来更新。
---发自iPhone 6S---
2018-8-2 22:46
5楼
MY0511相亲,一分钟注册,享一辈子幸福!
查看全部
分享本楼
1234@
来自 江苏省
精华 0
注册 2017-6-12
QUOTE:
原帖由
梦落青枫
于 18-8-2 22:42 发表
哈哈,我都开工了
哈哈,邻居挺速度的呀。恭喜。
---发自iPhone 6S---
2018-8-2 22:48
6楼
[联宇电脑] 电脑组装\维修\升级\企业单位电脑维护!
查看全部
分享本楼
1234@
来自 江苏省
精华 0
注册 2017-6-12
---发自iPhone 6S---
2018-8-2 22:52
7楼
[联宇电脑] 电脑组装\维修\升级\企业单位电脑维护!
查看全部
分享本楼
1234@
来自 江苏省
精华 0
注册 2017-6-12
占楼成功
---发自iPhone 6S---
2018-8-2 22:53
8楼
找工作,就上MY0511!
查看全部
分享本楼
1234@
来自 江苏省
精华 0
注册 2017-6-12
再来一条
---发自iPhone 6S---
2018-8-2 22:53
9楼
[联宇电脑] 电脑组装\维修\升级\企业单位电脑维护!
查看全部
分享本楼
1234@
来自 江苏省
精华 0
注册 2017-6-12
QUOTE:
原帖由
花香蝶舞
于 18-8-2 23:22 发表
邻居,装修好了去参观一下!你买得很便宜吧?现在那老贵了!
我是在没涨价之前买的,当时7K不到
---发自iPhone 6S---
2018-8-3 07:01
10楼
[联宇电脑] 电脑组装\维修\升级\企业单位电脑维护!
查看全部
分享本楼
1234@
来自 江苏省
精华 0
注册 2017-6-12
QUOTE:
原帖由
花香蝶舞
于 18-8-2 23:23 发表
1,2,7,8栋,你是买的哪一栋?
2栋,邻居是多少栋啊。
---发自iPhone 6S---
2018-8-3 07:02
11楼
MY0511相亲,一分钟注册,享一辈子幸福!
查看全部
分享本楼
1234@
来自 江苏省
精华 0
注册 2017-6-12
QUOTE:
原帖由
花香蝶舞
于 18-8-2 23:24 发表
炫富啊!
---发自iPhone 6S---
2018-8-3 07:03
12楼
0511家装频道:本地家居服务平台,数万业主共同选择
查看全部
分享本楼
1234@
来自 江苏省
精华 0
注册 2017-6-12
话不多说来组图先(不会告诉你们小区公众号里面抄的
)
---发自iPhone 6---
2018-8-3 16:06
13楼
[联宇电脑] 电脑组装\维修\升级\企业单位电脑维护!
查看全部
分享本楼
1234@
来自 江苏省
精华 0
注册 2017-6-12
继续、换个角度看镇江(画质不好勿喷哈)
---发自iPhone 6---
2018-8-3 16:08
14楼
MY0511相亲,一分钟注册,享一辈子幸福!
查看全部
分享本楼
1234@
来自 江苏省
精华 0
注册 2017-6-12
今天开始正式的也算看材料了、感觉好累、心塞塞的累,各种眼花缭乱,有图为证
---发自iPhone 6---
2018-8-3 16:11
15楼
0511家装频道:本地家居服务平台,数万业主共同选择
查看全部
分享本楼
1234@
来自 江苏省
精华 0
注册 2017-6-12
QUOTE:
原帖由
老友记装饰黄
于 18-8-3 17:11 发表
材料可以按装修的步骤的先后次序看,这样就没有那么累、那么乱了
是感觉乱死了,今天翻0511发现有记账神器、明天准备去领一份
---发自iPhone 6---
2018-8-3 17:45
16楼
MY0511相亲,一分钟注册,享一辈子幸福!
查看全部
分享本楼
1234@
来自 江苏省
精华 0
注册 2017-6-12
QUOTE:
原帖由
关亨木门
于 18-8-3 16:25 发表
恭喜开贴,
声音兴隆
---发自iPhone 6---
2018-8-3 17:45
17楼
0511家装频道:本地家居服务平台,数万业主共同选择
查看全部
分享本楼
1234@
来自 江苏省
精华 0
注册 2017-6-12
QUOTE:
原帖由
依诺磁砖亿都店
于 18-8-3 20:58 发表
恭喜开帖
生意兴隆
---发自iPhone 6---
2018-8-4 07:00
18楼
[联宇电脑] 电脑组装\维修\升级\企业单位电脑维护!
查看全部
分享本楼
1234@
来自 江苏省
精华 0
注册 2017-6-12
QUOTE:
原帖由
鸿鹄设计镇江站
于 18-8-4 11:23 发表
恭喜楼主
生意兴隆
---发自iPhone 6---
2018-8-4 11:50
19楼
找工作,就上MY0511!
查看全部
分享本楼
1234@
来自 江苏省
精华 0
注册 2017-6-12
QUOTE:
原帖由
巴森系统一体窗
于 18-8-4 09:33 发表
恭喜开贴,开工大吉
生意兴隆
---发自iPhone 6---
2018-8-4 11:50
20楼
0511家装频道:本地家居服务平台,数万业主共同选择
查看全部
分享本楼
1234@
来自 江苏省
精华 0
注册 2017-6-12
装修手册到手、跟着章程走绝壁没有错,Ps0511小妖客服确实靠谱,指哪打哪
---发自iPhone 6---
2018-8-4 13:55
21楼
找工作,就上MY0511!
查看全部
分享本楼
1234@
来自 江苏省
精华 0
注册 2017-6-12
经过半天各种瞎逛胡跑下午终于干件正事了--铲墙皮,撸起袖子干起来
。这家铲墙皮大姐确实实惠,童叟无欺,有有需要的可以联系13236389191
---发自iPhone 6---
2018-8-4 13:58
22楼
买房、卖房、租房上镇江房产网!
查看全部
分享本楼
1234@
来自 江苏省
精华 0
注册 2017-6-12
QUOTE:
原帖由
1234@
于 18-8-4 13:58 发表
经过半天各种瞎逛胡跑下午终于干件正事了--铲墙皮,撸起袖子干起来
。这家铲墙皮大姐确实实惠,童叟无欺,有有需要的可以联系13236389191
大热天的确实不容易呀,都不好意思砍价了,不过人家也是放的市场低价,必须给赞和饮料。但提个建议哈,安全第一
---发自iPhone 6---
2018-8-4 14:00
23楼
MY0511相亲,一分钟注册,享一辈子幸福!
查看全部
分享本楼
1234@
来自 江苏省
精华 0
注册 2017-6-12
QUOTE:
原帖由
镇江京都榻榻米
于 18-8-4 14:57 发表
---发自iPhone 6---
2018-8-4 15:40
24楼
找工作,就上MY0511!
查看全部
分享本楼
1234@
来自 江苏省
精华 0
注册 2017-6-12
大白搞定、光秃秃的啦,明天开工
---发自iPhone 6---
2018-8-4 16:21
25楼
MY0511相亲,一分钟注册,享一辈子幸福!
查看全部
分享本楼
1234@
来自 江苏省
精华 0
注册 2017-6-12
借个晚宴庆祝一下,希望一切顺利,开开心心
---发自iPhone 6---
2018-8-4 18:21
26楼
MY0511相亲,一分钟注册,享一辈子幸福!
查看全部
分享本楼
1234@
来自 江苏省
精华 0
注册 2017-6-12
QUOTE:
原帖由
火紫炎
于 18-8-4 20:57 发表
恭喜邻居开工大吉
同喜同喜
---发自iPhone 6---
2018-8-4 21:06
27楼
[联宇电脑] 电脑组装\维修\升级\企业单位电脑维护!
查看全部
分享本楼
1234@
来自 江苏省
精华 0
注册 2017-6-12
早上好、今日开工,希望一切顺顺利利,
---发自iPhone 6---
2018-8-5 06:17
28楼
买房、卖房、租房上镇江房产网!
查看全部
分享本楼
1234@
来自 江苏省
精华 0
注册 2017-6-12
入乡随俗,一早上找了几条街才找到两条云片糕稀有物种呀
---发自iPhone 6---
2018-8-5 07:40
29楼
0511家装频道:本地家居服务平台,数万业主共同选择
查看全部
分享本楼
1234@
来自 江苏省
精华 0
注册 2017-6-12
QUOTE:
原帖由
巴森系统一体窗
于 2018-8-5 07:37 发表
---发自iPhone 6---
2018-8-5 07:41
30楼
0511家装频道:本地家居服务平台,数万业主共同选择
查看全部
分享本楼
1234@
来自 江苏省
精华 0
注册 2017-6-12
QUOTE:
原帖由
镇江圣德保陶瓷
于 2018-8-5 12:15 发表
---发自iPhone 6---
2018-8-5 12:35
31楼
0511家装频道:本地家居服务平台,数万业主共同选择
查看全部
分享本楼
1234@
来自 江苏省
精华 0
注册 2017-6-12
开工图补发,百年各位顶着大热天来施工、测量、布置,认真到位,非常感谢,也非常感谢钱总现场指导帮忙测量布置,把事情考虑到非常周到。
---发自iPhone 6---
2018-8-5 12:38
32楼
0511家装频道:本地家居服务平台,数万业主共同选择
查看全部
分享本楼
1234@
来自 江苏省
精华 0
注册 2017-6-12
时至中午、来份小面犒劳下自己吧
---发自iPhone 6---
2018-8-5 12:43
33楼
[联宇电脑] 电脑组装\维修\升级\企业单位电脑维护!
查看全部
分享本楼
1234@
来自 江苏省
精华 0
注册 2017-6-12
QUOTE:
原帖由
爱斯特门窗公司
于 2018-8-5 13:42 发表
恭喜楼主开工大吉一切顺利
---发自iPhone 6---
2018-8-5 13:57
34楼
找工作,就上MY0511!
查看全部
分享本楼
1234@
来自 江苏省
精华 0
注册 2017-6-12
补一张设计草图,发现没有发这一张图
---发自iPhone 6---
2018-8-5 15:52
35楼
MY0511相亲,一分钟注册,享一辈子幸福!
查看全部
分享本楼
1234@
来自 江苏省
精华 0
注册 2017-6-12
今天志邦橱柜已定,本来也是厨房不大,定小品牌大品牌都差不了多少钱,细算一下还是志邦比较划算,而且设计也比较好,感觉值了,nice。不过现在有一个感觉预算肯定超呀
---发自iPhone 6---
2018-8-5 20:53
36楼
找工作,就上MY0511!
查看全部
分享本楼
1234@
来自 江苏省
精华 0
注册 2017-6-12
QUOTE:
原帖由
梦落青枫
于 2018-8-5 21:12 发表
超是必然趋势
后期再看吧,能省则省了,不要超太多才好,但一些地方是千万不能省的
---发自iPhone 6---
2018-8-5 21:14
37楼
找工作,就上MY0511!
查看全部
分享本楼
1234@
来自 江苏省
精华 0
注册 2017-6-12
又是一个阳光明媚的大早晨,不要上班的我感觉就是爽歪歪,准备每天泡在工地上
---发自iPhone 6---
2018-8-6 07:20
38楼
MY0511相亲,一分钟注册,享一辈子幸福!
查看全部
分享本楼
1234@
来自 江苏省
精华 0
注册 2017-6-12
适当的顶一下先
---发自iPhone 6S---
2018-8-6 07:21
39楼
[联宇电脑] 电脑组装\维修\升级\企业单位电脑维护!
查看全部
分享本楼
1234@
来自 江苏省
精华 0
注册 2017-6-12
拆拆拆
---发自iPhone 6---
2018-8-6 11:37
40楼
买房、卖房、租房上镇江房产网!
查看全部
分享本楼
1234@
来自 江苏省
精华 0
注册 2017-6-12
QUOTE:
原帖由
诗尼曼
于 2018-8-6 14:23 发表
清爽简洁
---发自iPhone 6---
2018-8-6 15:45
41楼
[联宇电脑] 电脑组装\维修\升级\企业单位电脑维护!
查看全部
分享本楼
1234@
来自 江苏省
精华 0
注册 2017-6-12
QUOTE:
原帖由
红居装饰
于 2018-8-6 15:36 发表
开工大吉哦!
生意兴隆哦
---发自iPhone 6---
2018-8-6 15:46
42楼
找工作,就上MY0511!
查看全部
分享本楼
1234@
来自 江苏省
精华 0
注册 2017-6-12
墙体拆除完毕、户型小速度就是快、一天结束,拆墙师傅收拾的也特别干净。明天开始刷墙了nice
---发自iPhone 6---
2018-8-6 21:09
43楼
找工作,就上MY0511!
查看全部
分享本楼
1234@
来自 江苏省
精华 0
注册 2017-6-12
day2:总结一下,今天主要工作为砸墙,电梯隔音层拆除,一切圆满,明日继续,加油。来一瓶07年的拉斐压压惊
---发自iPhone 6---
2018-8-6 21:35
44楼
[联宇电脑] 电脑组装\维修\升级\企业单位电脑维护!
查看全部
分享本楼
1234@
来自 江苏省
精华 0
注册 2017-6-12
QUOTE:
原帖由
火紫炎
于 2018-8-7 08:40 发表
改天去你家参观下,想装修方案想的脑壳疼~
好的、随时欢迎
---发自iPhone 6---
2018-8-7 09:11
45楼
找工作,就上MY0511!
查看全部
分享本楼
1234@
来自 江苏省
精华 0
注册 2017-6-12
QUOTE:
原帖由
巴森系统一体窗
于 2018-8-7 08:34 发表
楼主好雅兴
生活嘛,
---发自iPhone 6---
2018-8-7 09:11
46楼
[联宇电脑] 电脑组装\维修\升级\企业单位电脑维护!
查看全部
分享本楼
1234@
来自 江苏省
精华 0
注册 2017-6-12
QUOTE:
原帖由
my0511小妖
于 2018-8-7 09:20 发表
我也想压压惊
来撒、昨天没喝完还剩大半瓶
---发自iPhone 6---
2018-8-7 09:22
47楼
0511家装频道:本地家居服务平台,数万业主共同选择
查看全部
分享本楼
1234@
来自 江苏省
精华 0
注册 2017-6-12
day3:总结一下,没看到动在哪里,那就不总结了
---发自iPhone 6---
2018-8-7 18:32
48楼
找工作,就上MY0511!
查看全部
分享本楼
1234@
来自 江苏省
精华 0
注册 2017-6-12
Day4:总结一下,今天主要是墙固粉刷,11号开始水店交底。目前装修市场逛下来表示水真的太深,没事慢慢来吧
---发自iPhone 6---
2018-8-8 18:57
49楼
0511家装频道:本地家居服务平台,数万业主共同选择
查看全部
分享本楼
1234@
来自 江苏省
精华 0
注册 2017-6-12
现在这样的天气装修师傅们在外面作业当真不容易,什么也做不了,只能买些水以及提醒补水的事情了。
---发自iPhone 6---
2018-8-8 18:58
50楼
0511家装频道:本地家居服务平台,数万业主共同选择
查看全部
分享本楼
返回家庭装修
178
1/4
1
2
3
4
>
快速回复主题
游客
您目前还是游客,请
登录
或
注册
您目前是游客,本帖已被系统设置了自动关闭,不可回复!
文明交流,理性发言
0/5000字
<
>
请在打开的新窗口中支付完成打赏
我已完成支付打赏
支付失败重新支付
其他金额
打赏金额:
元
确定
支付打赏
提 现
打赏人
打赏金额(元)
打赏时间
红居装饰
1.00
2018-8-6 15:36
双羽木门专卖
1.00
2018-8-10 15:16
放肆的青春1115
1.00
2018-8-23 22:14
法诗雅移门
1.00
2018-9-18 22:30
Powered by
Discuz! X 2
0.087876 s
清除 Cookies
-
镇江网友之家
-
手机版
论坛导航
关闭
吃喝玩乐
饮食男女
镇江钓友之家
菜菜鸟户外
镇江单车俱乐部
镜头里的镇江
畅游天下
猫狗总动员
视觉Coffeeshop摄影部落
花鸟鱼虫
婚姻.亲子.家庭
家有学子
谈婚论嫁
女性天地
母婴乐园
婚姻生活
梦溪佳缘
装修
家庭装修
装修招标
镇江室内设计师交流
装修商家直通车
你好,镇江!
百姓话题
我要买房
0511爱心家园
市场监管•12315热线
分类信息
生活服务
闲置转让
镇江二手房/镇江租房
镇江招聘求职
教育培训
镇江二手车
商铺厂房写字楼租售
宠物市场
运动健身
卡券交易
电脑维修升级
杂货铺
其他分类信息区
兴趣爱好
HiFi音响江城沙龙
镇江市美术家协会
我爱模型
车友俱乐部
车迷之家
汽车驾培中心
运动俱乐部
镇江市冬泳、铁人三项协会
聚焦足球
镇江羽毛球
镇江乒乓球协会
镇江网球协会
镇江市自行车运动协会
热爱篮球
动力机车
合作栏目
维权热线
天翼时代
色觉影像摄影工作室
站务区
疑问与建议
网络问政
市政府工作部门
垂直管理部门
党群工作部门
其他重点单位
辖市(区)