| 标题
快捷导航

精彩推荐:MY0511客户端下载

    • 中信银行镇江分行

    • 公益体彩 乐善人生

    • 鹏龙鸿蒙

    • 天然石材·人造石

    » 梦溪论坛 » 家庭装修 » [2015拉迷衣柜杯] 乐享装修 有滋有味——简约打造朴园.竹山院我的家(沙发进场)
    家庭装修  >  [装修日记] [2015拉迷衣柜杯] 乐享装修 有滋有味——简约打造朴园.竹山院我的家(沙发进场)     
    查看: 4603870  回复: 1157
     1158  5/24  | <  3  4  5  6  7  8  9  10  11  12  >  >| 
    [装修日记] [2015拉迷衣柜杯] 乐享装修 有滋有味——简约打造朴园.竹山院我的家(沙发进场)      查看: 4603870  回复: 1157
    • 来自 江苏省
    • 精华 8
    • 注册 2004-10-29
    • 行业 其它
    • 我们爱旅行 家装达人
    •  


    QUOTE:
    原帖由 美丽山水河 于 2015-4-13 17:13 发表
    欢迎新一届装大的学弟、学妹们
    谢谢!




    • 来自 江苏省
    • 精华 8
    • 注册 2004-10-29
    • 行业 其它
    • 我们爱旅行 家装达人
    •  


    QUOTE:
    原帖由 轻罗小扇 于 2015-4-13 19:05 发表
    老板的活动折扣大吗??
    28号的活动还可以。




    • 来自 江苏省
    • 精华 8
    • 注册 2004-10-29
    • 行业 其它
    • 我们爱旅行 家装达人
    •  


    QUOTE:
    原帖由 姗姗来池 于 2015-4-13 19:53 发表
    我噶用的也是老板油烟机
    有眼光




    • 来自 江苏省
    • 精华 8
    • 注册 2004-10-29
    • 行业 其它
    • 我们爱旅行 家装达人
    •  


    QUOTE:
    原帖由 飞儿- 于 2015-4-13 20:21 发表
    感觉你好忙,我好闲落后了
    是啊,基本我一个人在跑,在了解,回家再传达 ,谁让你家有个能干的王老板啊,你好幸福的哦!





    • 来自 江苏省
    • 精华 8
    • 注册 2004-10-29
    • 行业 其它
    • 我们爱旅行 家装达人
    •  


    QUOTE:
    原帖由 淘金 于 2015-4-13 20:53 发表
    楼主热心人,向楼主学习学习,很厉害,竹山院第一
    主要我时间多一点所以选择了清包,没什么厉害啦,一起学习!




    • 来自 江苏省
    • 精华 8
    • 注册 2004-10-29
    • 行业 其它
    • 我们爱旅行 家装达人
    •  


    QUOTE:
    原帖由 京江之星 于 2015-4-13 21:21 发表
    楼主,我也是竹山院的邻居,麻烦短个班尔奇价格,谢谢,你家厨房和客厅卫生间不敲掉呀,我们楼上有家敲掉,空间很大哟:
    我家格局基本不变,就准备敲飘窗,不想有过多改动,如果把干区和厨房敲掉外扩,餐厅必然就小,我喜欢大餐厅,各人想法不一样吧,还要根据自己家功能需要,我觉得户型一样装修不必都一样

    [ 本帖最后由 萱叶 于 15-4-15 08:58 编辑 ]




    • 来自 江苏省
    • 精华 8
    • 注册 2004-10-29
    • 行业 其它
    • 我们爱旅行 家装达人
    •  


    QUOTE:
    原帖由 飞儿- 于 2015-4-14 14:24 发表

    都是我在忙研究,然后把研究结果总结汇报,批复后实施 ,还好陪我一起跑市场呢,主要怕我乱买不理智 。你一直比我能干多了 ,小杨有福啊!
    已经是老杨同志了,我不是能干,是爱操心耶!




    • 来自 江苏省
    • 精华 8
    • 注册 2004-10-29
    • 行业 其它
    • 我们爱旅行 家装达人
    •  

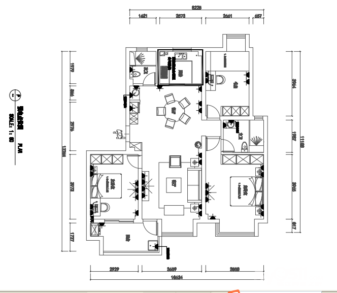
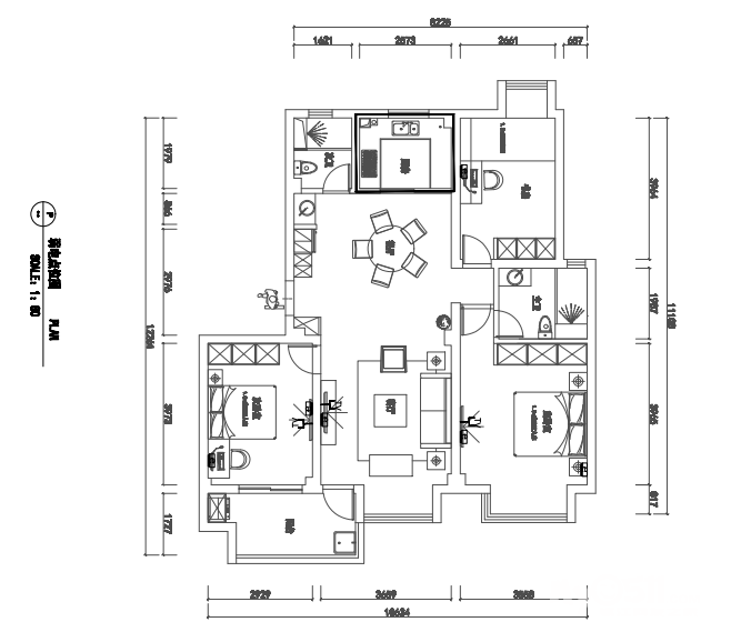
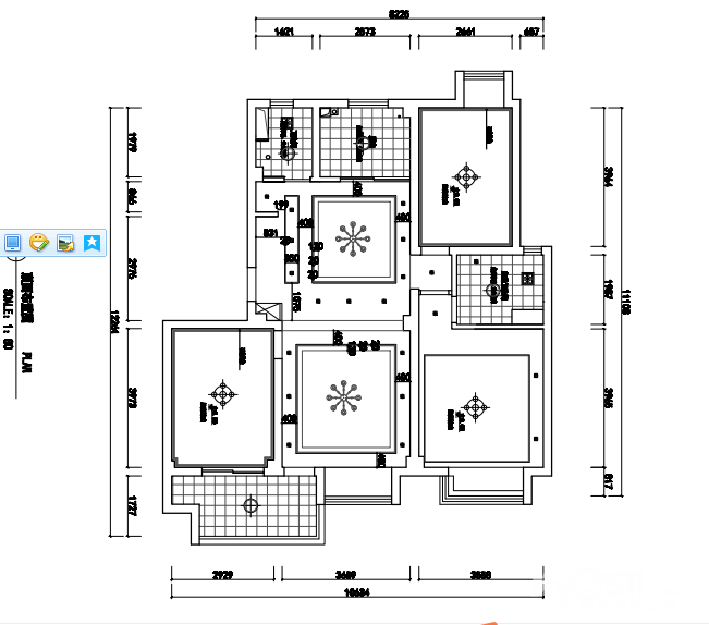
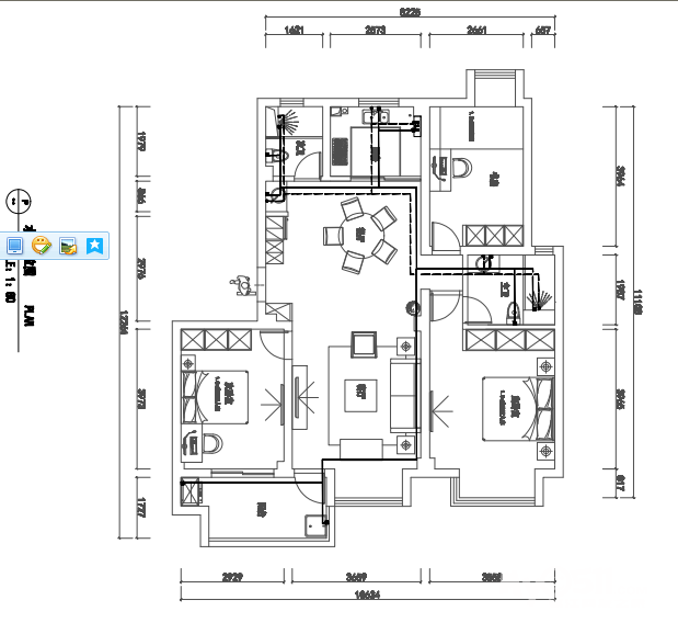
    晚上朋友给我电话,说我家的设计图纸都出来了,然后上线传给了我。朋友帮我出了十几张图,纯属友情帮忙,感谢啊感谢!

    好多图啊!朋友太给力了


    平面布置图

    顶面布置图

    强电点位图

    弱电点位图

    水路点位图






    [ 本帖最后由 萱叶 于 15-4-15 21:51 编辑 ]




    • 来自 江苏省
    • 精华 8
    • 注册 2004-10-29
    • 行业 其它
    • 我们爱旅行 家装达人
    •  

    有了朋友相助,施工人员都已到位,坐等20号开工咯!

    [ 本帖最后由 萱叶 于 15-4-15 21:58 编辑 ]




    • 来自 江苏省
    • 精华 8
    • 注册 2004-10-29
    • 行业 其它
    • 我们爱旅行 家装达人
    •  


    QUOTE:
    原帖由 魔人啾啾1106 于 2015-4-15 23:56 发表

    图图刷不出,先顶一个~
    谢谢哈!

    [ 本帖最后由 萱叶 于 15-4-16 21:36 编辑 ]




    • 来自 江苏省
    • 精华 8
    • 注册 2004-10-29
    • 行业 其它
    • 我们爱旅行 家装达人
    •  


    QUOTE:
    原帖由 轻罗小扇 于 2015-4-16 21:31 发表


    握手,同一天开工。
    祝我们开工大吉!




    • 来自 江苏省
    • 精华 8
    • 注册 2004-10-29
    • 行业 其它
    • 我们爱旅行 家装达人
    •  

    前2天收到小编的信息让我在5月15日前领开工礼,中午下班后就去了双井路的罗莱家纺,礼物是由罗莱家纺赞助的电子秤,在此谢谢0511,谢谢罗莱家纺!
    0511赠送的开工礼





    [ 本帖最后由 萱叶 于 15-4-17 21:16 编辑 ]




    • 来自 江苏省
    • 精华 8
    • 注册 2004-10-29
    • 行业 其它
    • 我们爱旅行 家装达人
    •  

            下午和老公去朴园物业办理了开工手续,然后又去了月星家居的圣象木门。去圣象木门是准备退掉在3月7日喜来登活动中订的木门,去的时候因为心里没底,不知道定金能不能退,所以打算做好慢慢磨的准备,哪知道我们去了之后,和店长说明了当时由于订购匆忙,订的木门不符合现在的设计风格缘由,店长很爽气的说没事,她让我等向厂里申请通过后去退款,这态度着实让我和老公感动,我们一个劲地道歉,并不是圣象的木门不好,而真的是没有缘份了!

    [ 本帖最后由 萱叶 于 15-4-17 21:32 编辑 ]




    • 来自 江苏省
    • 精华 8
    • 注册 2004-10-29
    • 行业 其它
    • 我们爱旅行 家装达人
    •  


    QUOTE:
    原帖由 姗姗来池 于 2015-4-17 21:39 发表
    开工哈有礼品啊  0511给力
    是的耶!




    • 来自 江苏省
    • 精华 8
    • 注册 2004-10-29
    • 行业 其它
    • 我们爱旅行 家装达人
    •  

          昨天下午又驱车去丹徒新区蒋乔考察了一个移门厂,这个移门的老板是我在家装群中认识的,一般对于陌生人我很少聊天,加入家装群之后我大多数也是潜水,基本是关注别人的谈论。偶然一次,群里跳出了好多移门照片,看上去不错,就问了几句,然后老板私聊了我,他很诚恳,邀请我有时间去实地看看,同质的东西可以比价,这句话打动了我!当初订木门就有点草率,其实只要产品质量好,同样的东西只要价格优惠就可以入手,不必过度盲目迷信所谓的品牌。经过一个多月建材市场的了解,我现在订购东西已经理智很多!这个移门厂位于蒋乔润兴路的汉邦科技公司里面,老板是个80后的年轻人,在约定的时间里我们见了面,感觉和80后的创业小伙子很有缘,我订的派诺橱柜、米洛木门都是80年后,他们为人诚恳实在,没有过多的世故,肯吃苦!进入移门厂,看到好多型材,工厂有点规模,小朱说他们厂主要代加工,就是给一些移门店加工,也承接散客生意。他带我们参观了工厂展厅,有各种推拉的厨房移门、阳台移门和衣柜移门,我们试了试推拉手感,小朱就移门型材的厚度、宽度、用料给我们一一作了介绍,对于我们提出的问题也是有问必答,在厂里的好处是我们可以亲眼目睹整个移门的生产过程及用料。我看中一款琥珀色的移门,1.2的80内弧双玻琥珀色是480元1平方,现在外面很多店用1.2充当1.4的来卖,包在里面你也看不到。小朱还把材料厚度对比给我们看,对于这个移门我还是满意的,小朱说我们可以去市场上再去看看了解,同质的东西他不怕比价,他有这份自信。因为家里还没开工,移门也是等墙面处理差不多再下单也不迟,我想没什么变动,移门就订小朱家的了。




    移门展厅


    各种衣柜移门


    小朱拿出三种厚度的给我看,分别是1.0、1.2、1.6的,很明显看出厚度不一,小朱还用钢尺量给我看。


    加工生产车间












    [ 本帖最后由 萱叶 于 15-4-19 10:10 编辑 ]




    • 来自 江苏省
    • 精华 8
    • 注册 2004-10-29
    • 行业 其它
    • 我们爱旅行 家装达人
    •  

    明天开工,一切都准备妥妥地了!




    • 来自 江苏省
    • 精华 8
    • 注册 2004-10-29
    • 行业 其它
    • 我们爱旅行 家装达人
    •  


    QUOTE:
    原帖由 梵唱 于 2015-4-19 20:28 发表
    恭喜开工 移门我也想定呢
    给你电话,你自己联系!13605289975 小朱

    [ 本帖最后由 萱叶 于 15-4-20 20:44 编辑 ]




    • 来自 江苏省
    • 精华 8
    • 注册 2004-10-29
    • 行业 其它
    • 我们爱旅行 家装达人
    •  


    QUOTE:
    原帖由 朝夕 于 2015-4-19 20:46 发表
    明天就要开工啦!祝贺!祝贺!
    谢谢朝夕姐!

    [ 本帖最后由 萱叶 于 15-4-20 20:44 编辑 ]




    • 来自 江苏省
    • 精华 8
    • 注册 2004-10-29
    • 行业 其它
    • 我们爱旅行 家装达人
    •  


    QUOTE:
    原帖由 魔人啾啾1106 于 2015-4-20 19:43 发表



    看到你这个,我突然想起来我还没领,要赶紧去~~~
    对呀!不要白不要!

    [ 本帖最后由 萱叶 于 15-4-20 20:51 编辑 ]




    • 来自 江苏省
    • 精华 8
    • 注册 2004-10-29
    • 行业 其它
    • 我们爱旅行 家装达人
    •  


    QUOTE:
    原帖由 出来看看 于 2015-4-20 13:19 发表
    谢谢!




    • 来自 江苏省
    • 精华 8
    • 注册 2004-10-29
    • 行业 其它
    • 我们爱旅行 家装达人
    •  


    QUOTE:
    原帖由 一安吾爱 于 2015-4-20 15:22 发表
    楼主,可以短我一个班尔奇的报价嘛?谢谢
    ,同时恭祝开工,我家也会紧随其后,正好向你学习了
    谈不上学习,我也是边装边学,班尔奇的报价已短你!




    • 来自 江苏省
    • 精华 8
    • 注册 2004-10-29
    • 行业 其它
    • 我们爱旅行 家装达人
    •  


    QUOTE:
    原帖由 飞儿- 于 2015-4-20 15:42 发表
    恭喜开工大吉
    谢谢!




    • 来自 江苏省
    • 精华 8
    • 注册 2004-10-29
    • 行业 其它
    • 我们爱旅行 家装达人
    •  

    又自己坐楼了

    [ 本帖最后由 萱叶 于 15-4-20 20:50 编辑 ]




    • 来自 江苏省
    • 精华 8
    • 注册 2004-10-29
    • 行业 其它
    • 我们爱旅行 家装达人
    •  


    QUOTE:
    原帖由 爵士信徒 于 2015-4-20 15:47 发表
    恭喜开工大吉
    谢谢!




    • 来自 江苏省
    • 精华 8
    • 注册 2004-10-29
    • 行业 其它
    • 我们爱旅行 家装达人
    •  


    QUOTE:
    原帖由 伽蓝雨 于 2015-4-20 20:47 发表
    佩服、佩服!我87栋的,全包,2个小时在设计师的陪同下跑了亿都月星,把地板、地砖、卫浴、橱柜等等就选好颜色了,我们真的怕烦神。能短个朴园业主群的好给我吗?我想参考下别人的装修,还有墙纸、家具等没挑选呢 ...
    不客气,已短!




    • 来自 江苏省
    • 精华 8
    • 注册 2004-10-29
    • 行业 其它
    • 我们爱旅行 家装达人
    •  

          早在半个月前我就在网上查了黄历,今天是适宜装修的好日子,就定今天了!然后赶紧联系二师兄,让他帮我把敲墙的师傅和水电工都安排好!今早早早地就起来了,心情有点小激动,我的计划正在一步步实施,从购材料、拿房、到现在的准备工作一切都很顺利。到了新房摆好鞭炮、糕和苹果,9点08分老公点燃了鞭炮,意味着我家的装修正式开始咯!
    今天是个好日子


    形式还是要做的,大吉大利!





    吉时由老公点炮。


    火旺财旺运到旺,你旺我旺大家旺



    第一锤当然是给当家的
    挥,老杨同志感觉好好哦


    偶的小徒弟也来了,这个丫头整天瞎皮,看到电钻她也要玩



    还有点架势,可是你干了工人要偷着乐了



    电工小顾在给线路定位。



    按着电工的单子买好线缆又去新房,只见主卫包下水管的墙已经敲掉,这是在现场韦总出的主意,临时决定敲掉,这样洗浴的地方可以多出15公分。





    [ 本帖最后由 萱叶 于 15-4-20 21:25 编辑 ]




    • 来自 江苏省
    • 精华 8
    • 注册 2004-10-29
    • 行业 其它
    • 我们爱旅行 家装达人
    •  


    QUOTE:
    原帖由 伽蓝雨 于 2015-4-20 21:13 发表
    以后就是邻居咯!........
    邻居好晒金宝!




    • 来自 江苏省
    • 精华 8
    • 注册 2004-10-29
    • 行业 其它
    • 我们爱旅行 家装达人
    •  


    QUOTE:
    原帖由 轻罗小扇 于 2015-4-20 21:18 发表
    开工大吉
    谢谢!




    • 来自 江苏省
    • 精华 8
    • 注册 2004-10-29
    • 行业 其它
    • 我们爱旅行 家装达人
    •  


    QUOTE:
    原帖由 鱼之语 于 2015-4-20 21:36 发表




    主卫包下水管的墙敲掉   
    [ ...
    你为啥早上不来?来了不就明白袅!




    • 来自 江苏省
    • 精华 8
    • 注册 2004-10-29
    • 行业 其它
    • 我们爱旅行 家装达人
    •  


    QUOTE:
    原帖由 清香树 于 2015-4-20 21:45 发表
    老杨的大锤,真霸道。
    是工人的大锤,他是狐假虎威,光拿大锤不用力,摆POSS




    • 来自 江苏省
    • 精华 8
    • 注册 2004-10-29
    • 行业 其它
    • 我们爱旅行 家装达人
    •  

    好日子开工的就多了!

    [ 本帖最后由 萱叶 于 15-4-21 20:28 编辑 ]




    • 来自 江苏省
    • 精华 8
    • 注册 2004-10-29
    • 行业 其它
    • 我们爱旅行 家装达人
    •  


    QUOTE:
    原帖由 云夕 于 2015-4-20 23:51 发表
    开工大吉啊
    今天开工的好多
    谢谢!也祝你早日开工!

    [ 本帖最后由 萱叶 于 15-4-21 20:28 编辑 ]




    • 来自 江苏省
    • 精华 8
    • 注册 2004-10-29
    • 行业 其它
    • 我们爱旅行 家装达人
    •  


    QUOTE:
    原帖由 小天天爱吃牛肉 于 2015-4-21 10:26 发表
    你说的那个移门厂去看了一下,确实不错,小伙子有一说一。价格也很到位,就他家做了。谢谢你给我提供了信息恭喜开工
    不谢不谢,同是装修大家都不易的,有好东西给大家共享一下,话说我们不就是为了省钱而又能买到实在的好东西嘛!




    • 来自 江苏省
    • 精华 8
    • 注册 2004-10-29
    • 行业 其它
    • 我们爱旅行 家装达人
    •  


    QUOTE:
    原帖由 姗姗来池 于 2015-4-21 10:41 发表
    都开工啦  速度杠杠滴
    安,你太不关心我了,你天天催开工,我开工了你又不知道!




    • 来自 江苏省
    • 精华 8
    • 注册 2004-10-29
    • 行业 其它
    • 我们爱旅行 家装达人
    •  


    QUOTE:
    原帖由 小番茄 于 2015-4-21 10:52 发表
    期待你的完工作品
    谢谢!




    • 来自 江苏省
    • 精华 8
    • 注册 2004-10-29
    • 行业 其它
    • 我们爱旅行 家装达人
    •  


    QUOTE:
    原帖由 李一一一 于 2015-4-21 15:35 发表
    我是88栋的,麻烦短个业主群的号给我,谢谢
    不谢,已短!




    • 来自 江苏省
    • 精华 8
    • 注册 2004-10-29
    • 行业 其它
    • 我们爱旅行 家装达人
    •  


    QUOTE:
    原帖由 班尔奇pauchie 于 2015-4-21 15:35 发表
    恭喜开工大吉!

    愿好运、好心情一直伴随整个装修过程! ...
    谢谢!




    • 来自 江苏省
    • 精华 8
    • 注册 2004-10-29
    • 行业 其它
    • 我们爱旅行 家装达人
    •  

            今天下午二师兄带我去买电工开出的材料,然后又去新房看敲墙情况,敲墙师傅动作还蛮快,下午4点拆改项目结束。后天水电就好进场了。

    [ 本帖最后由 萱叶 于 15-4-21 21:01 编辑 ]




    • 来自 江苏省
    • 精华 8
    • 注册 2004-10-29
    • 行业 其它
    • 我们爱旅行 家装达人
    •  

    上几张拆改前后对比图(基本结构不变,局部变动增加空间感):
    客厅飘窗敲了。


    主卧飘窗敲了。


    书房飘窗敲了。


    厨房门上沿敲了。


    卫生间包下水管墙敲了。


    阳台瓷砖敲了。





    [ 本帖最后由 萱叶 于 15-4-21 21:09 编辑 ]




    • 来自 江苏省
    • 精华 8
    • 注册 2004-10-29
    • 行业 其它
    • 我们爱旅行 家装达人
    •  

         敲墙验收完毕,又联系了玛仕家居的小周给我初测门的尺寸。

    [ 本帖最后由 萱叶 于 15-4-21 21:20 编辑 ]




    • 来自 江苏省
    • 精华 8
    • 注册 2004-10-29
    • 行业 其它
    • 我们爱旅行 家装达人
    •  


    QUOTE:
    原帖由 姗姗来池 于 2015-4-21 21:14 发表
    对比图一看  更直观了
    我聪明吧




    • 来自 江苏省
    • 精华 8
    • 注册 2004-10-29
    • 行业 其它
    • 我们爱旅行 家装达人
    •  

           在此我要特别感谢住6楼的本家邻居,昨天早上开工特地给我送来纸板做门的保护套,他许诺说只要竹山院清包的邻居都免费赠送装修公司的保护套虽然好看,但那些都要跟主家算钱的,俺这是免费的还耐用

    我很丑但我很耐用!




    [ 本帖最后由 萱叶 于 15-4-21 21:30 编辑 ]




    • 来自 江苏省
    • 精华 8
    • 注册 2004-10-29
    • 行业 其它
    • 我们爱旅行 家装达人
    •  


    QUOTE:
    原帖由 鱼之语 于 2015-4-21 23:08 发表
    邻居好 赛金宝

    入住后的日子一定顺心红火哦
    是的!




    • 来自 江苏省
    • 精华 8
    • 注册 2004-10-29
    • 行业 其它
    • 我们爱旅行 家装达人
    •  


    QUOTE:
    原帖由 李一一一 于 2015-4-22 10:18 发表
      
    我昨晚发你短消息的,好吧我再发一遍!群号码:392486734

    [ 本帖最后由 萱叶 于 15-4-22 19:20 编辑 ]




    • 来自 江苏省
    • 精华 8
    • 注册 2004-10-29
    • 行业 其它
    • 我们爱旅行 家装达人
    •  


    QUOTE:
    原帖由 cnt_bao 于 2015-4-22 10:35 发表
    速度杠杠滴!赞了
    必须的!

    [ 本帖最后由 萱叶 于 15-4-22 19:20 编辑 ]




    • 来自 江苏省
    • 精华 8
    • 注册 2004-10-29
    • 行业 其它
    • 我们爱旅行 家装达人
    •  


    QUOTE:
    原帖由 huashi123 于 2015-4-22 17:41 发表
    看完敲的前后对比图,看来飘窗不敲不行,差距很大!
    想法设法扩大面积




    • 来自 江苏省
    • 精华 8
    • 注册 2004-10-29
    • 行业 其它
    • 我们爱旅行 家装达人
    •  

         昨天买的线材约定今天下午送货,于是下午我又赶去朴园收货、验收!物业的小美女说我天天就在朴园拼了啊
    买的伟星水管和菊花电缆


    [ 本帖最后由 萱叶 于 15-4-22 19:38 编辑 ]




    • 来自 江苏省
    • 精华 8
    • 注册 2004-10-29
    • 行业 其它
    • 我们爱旅行 家装达人
    •  

           验收完水管线材,我又去位于万达广场的玛仕家居交木门定金,说起这个木门还真是歪打正着。前几日上网编辑帖子弄平面图时一不小心发错了群,不一会一个头像跳出来私聊我,问我是不是设计师?我说不是。他接着又问我需不需要门和地板。我委婉地拒绝说不需要,并告诉他门订了圣象的,地板订了久盛的。他还不罢休说他反正闲着也是闲着,帮我参考圣象的门,他说他原先也在月星做品牌门的,后因某种原因撤出了。他说他对圣象很了解,圣象和他家的门都是丹阳的,带着好奇我告诉他我订门的款式,他说你订的平板门啊?装修最出效果的就是立面,也就是墙和木门。我也觉得圣象木门不大好看,当时3月7日喜来登活动现场下单的确有点草率和冲动,其实门可以在设计风格出来后再订。我就问他那你家门有什么款式啊?他发来一款他们家的爆款图片给我看,我觉得还行,我说我要到实体店看看效果,他说他家正在搬家,爆款刚好还在店里没搬。第二天按照他给我的位于华都名城店的店址,我找了过去,店里的确凌乱不堪在搬家,他吃力地搬出爆款给我看,问了门的材质、特点等我有点心动,我说我先去圣象看看能不能退订,要是好退订我就定你家的,他说没问题。好在圣象很爽气,毕竟是大品牌,没什么纠葛就答应给我退款,我也顺理成章的重新选了玛仕家居的,玛仕家居的门品质非常好,关键还给我省了不少钱,价格非常亲民,比原先的预算又少了不少
    玛仕家居在万达A座1308





    他家的爆款,做成白色的非常好看,立体感强,简约也适合。棕色适合美式风格。这款是
    实木复合门, 里面是杉木芯,表面是密度板,最外面是贴天然木皮做油漆。


    白色的可以做成封闭漆和开放漆,开放漆就是有木纹纹路,时间久了不会发黄。封闭漆做白色时间久了会泛黄,但是小周说可以直接做象牙白,不会泛黄。下图左边门白色是封闭漆,右边门白色是开放漆。





    [ 本帖最后由 萱叶 于 15-4-22 21:16 编辑 ]




    • 来自 江苏省
    • 精华 8
    • 注册 2004-10-29
    • 行业 其它
    • 我们爱旅行 家装达人
    •  

    实木复合门(百度科普的)

    1 基本简介
    实木复合门,是指以木材、胶合材等为主要料复合制成的实型体或接近实型体,面层为木质单板贴面或其他覆面材料的门。在实木复合门中,常以普通木材指接材为基材,起结构连接和框架作用,提高抗变形能力;木材纹理装饰性强,以珍贵树种等制作的薄木,用作门的表面装饰材料,能够真实地体现木材的特征;所用的人造板主要是中纤板,其材质均匀,铣削加工性能好,可用作造型构件。因此,实木复合门是充分利用了各种材质的优良特性,避免了采用成本较高的珍贵木材,在不降低门的使用和装饰性能的前提下,有效地降低生产成本。除了良好的视觉效果外,还具有隔音、隔热、强度高、耐久性好等特点,从而被人们所接受。

    新型成套实木复合门是由门扇、门套、门套线三部分组成,这种结构,使木门款式变化多样,并地解决了全实木门存在易变形、开裂等问题。成套实木复合门均采用工厂化制作,安装简便快捷,避免了门套需施工现场喷漆,造成的空气和噪音污染。

    2 制作工艺
    门扇采用杉木集成材组框,需定厚砂光后压贴3l"nn.1厚中纤板,再定厚砂光后热压覆贴薄木善了原工艺中存在的基板不平,导致贴薄木后板面产生波纹。门芯板采用四周端面铣型,使门扇更具有立体感。采用压线条固定门芯板,使门芯板具有可替换厚的性,改善了原工艺生产的门芯板出现问题时,需更换整个门扇的问题。

    门套的制作工艺,采用中纤板双面压贴的平衡结构,增强了抗弯性能,避免了门套变形,门扇关闭不紧,四周缝隙大小不一等问题。薄木饰面,可保证门扇、门套的纹理一致。

    门套线制作采用2块中纤板的垂直胶合,综合利用了中纤板的纵横向抗弯强度高的特点。改进工艺后的木门套,采用实木与人造板结合,成本降低,产品质量得到提高,产品结构合理化、表面美观。此工艺经过实际检验,已经在生产中得到了成熟的应用,实现了批量生产,并得到市场认可。

    贴面:由于实木复合门的内部材料采用普通木材和中纤板,因此,使用实木薄木贴面是实木复合门的最重要工序,对其最终的质量和使用效果具有决定作用。

    木材与中纤板胶合木材与中密度中纤板采用胶黏剂粘结,为确保胶合质量,一定要保证配合面的加工精度,另外要选择胶合强度高的胶种,如脲醛树脂胶和聚醋酸乙烯乳液等。

    原料

    是一些中密度的纤维板,大大减少了木材的使用量,非常符合环保低碳的主题。

    芯材

    实木复合门一般为五层热压复合结构。大多数厂家门芯材料选用杉木集成材,较高档的实木复合门采用松木集成松。

    贴面

    由于实木复合门的内部材料采用普通木材和中纤板,因此,薄木贴面是实木复合门的最重要工序,对其最终的质量和使用效果具有决定作用。

    生产灵活性大

    1、下料一构件加工一构件饰面处理一拼装一封边。工艺特点是首先加工构件和表面处理,然后再组装成门。由于饰面材料很薄,不具备修整条件,因而对构件的加工精度要求较高。

    2、下料一构件加工一拼装一饰面处理一边角处理。工艺特点是复合门整体加工完成后,再进行饰面处理,在贴面之前可以对门坯进行修整。

    3、制作门坯一铣削造型一饰面处理。实木复合门的面板采用18mm厚的中纤板,通过铣刀加工出各种类似实木门的凹凸效果,因而其造型灵活,可选择性强。笔者通过改进以上的常规工艺,提出一种更为实用的实木复合门加工工艺方案。

    3 门品种类
    按面材分

    主要有胡桃木、樱桃木、沙比利、影木、枫木、柚木、水曲柳、黑檀、花梨、紫薇、斑马、科技木、松木、杉木等。

    按功能分

    主要有入户门、卧室门、书房门、厨房门、浴卫门、公寓宾馆的房间门、走廊门、办公商用门、酒店房门等。

    按开启方式分

    1、滑轨门:横向推拉开启,不占用空间。主要用于厨房门、卫生间门、阳台门。

    2、合页门:转向开启,主要用于入户门、卧室门、办公室门。

    按表面处理方式分

    1、白茬门:没有上油漆的门,买回去后需找油工手工刷上油漆,由于手刷油漆,降低了门的品质。

    2、油漆门:也称成品门,在工厂已喷涂油漆的门,可直接安装。

    按门口形式分

    1、平口门:门的边缘是平的,传统的门全部是平口门,由于锁开启的原因,门与门框之间需有3毫米的缝隙。

    2、T型口门:从欧洲引进的新型门,门的边缘是T型口,凸出的部分压在门套上,并配有密封胶条,密闭隔音效果好,整体美观。

    按门型和工艺

    1、板式门:为密闭型,无透视透光点,多用于户门和卧室门,此门可以雕刻凹线和制作凸线,型体美观大方,整体性好。

    2、芯板门:在门中间装有一块或多块芯板,起凸,立体艺术性较强。

    3、全玻门:以玻璃为主体的门扇,全门只有四个边和码头,其余均采用玻璃,具有光线明亮,透体性好的特点,富有较强的艺术性与欣赏性。

    4、半玻门:以上半截为玻璃,下半截为板式,有适当的透明性。

    4 选购说明
    根据材质

    门芯板和面板的材质对整体的品质有着很大的影响。蜂窝纸、大芯板、进口门芯板等不同材质的使用,隔音效果不同,应该根据具体的功用及要求选择是否使用门芯板。面板的品种有几十种,如橡木、胡桃木、枫木、花梨木等不同的木材有着各自天然的纹理及品质,应该根据实际的装修风格和喜好来选择不同类型的面板。

    根据结构

    优质成品门从内部结构上可分为平板结构和实木结构(含拼板结构、嵌板结构)两大类。

    拼板门和嵌板门从外观上看线条的立体感强、造型突出、厚重而彰显文化品质,属于传统工艺生产,做工精良,结构稳定,美中不足的是造价偏高,适合欧式、新古典、新中式、乡村、地中海等多种经过时间沉淀后的经典风格装修中,能够融入整个建筑空间,提升风格装修的纯粹度和历史文化沉淀的厚重感。

    平板门外型简洁、现代感强、材质选择范围广,色彩丰富、可塑性强,易清洁,价格适宜,但视觉冲击力偏弱。适合现代简约、前卫等自由、现代的风格,可为空间增加活力。平板门也可以通过镂铣塑造多变的古典式样,但线条的立体感较差,缺乏厚重感,但造价相对适中。

    根据油漆

    1、看、摸漆膜的丰满程度,这个要多比较几次就会看了。漆膜丰满,说明油漆的质量好,聚合力强,对木材的封闭好,同时说明喷漆工序比较完善,不会有偷工减料的嫌疑;

    2、站到门的斜侧方找到门面的反光角度,看看表面的漆膜是否平整,橘皮现象是否明显,有没有突起的细小颗粒,如果有比较明显的细小颗粒,说明这家工厂的涂装设备比较简陋,至少没有全压无尘的喷烤漆房,这是控制漆面质量的必备设备。如果橘皮现象比较明显,说明漆膜烘烤工艺不过关;

    3、花式造型门,要看产生造型的线条的边缘,尤其是阴角(就是看得到却摸不到的角)有没有漆膜开裂的现象。

    4、再问问油漆的种类,基本会回答是PU漆(聚氨酯漆),PU漆的优点是易打磨,加工过程省时省力,缺点是漆膜软,轻微磕碰极易产生白影凹痕。如果在漆层中至少有一层是PE漆,就会大大减低这种可能。PE漆(聚酯漆)的优点是漆膜硬,遮盖力强,透明度好,能更好地表现木皮纹理,缺点是难于打磨,加工过程费时费力,绝大多数厂家不愿意采用PE涂层。这一点也很能表现一个厂家对待产品的态度。在这里要说明一点,一般促销小姐的培训不会涉及到这方面,所以在这点上她们不太会欺骗消费者,她们自己也更不懂这两种油漆的差别。

    根据平整度

    1、木皮起泡,说明木皮在贴附过程中受热不均,或者涂胶不均匀,平板热压机可以计解决平板门贴皮时受热不均的问题;

    2、木门表面平整度不够,说明板材选用比较廉价,板材的平整度都不够,可想而知环保性能也很难达标,有点一叶知秋的意思吧;

    3、看工艺接缝是否均匀细小

    看工艺接缝是否均匀均匀细小,这点根选汽车差不多,直接反映企业的综合工艺水平;

    4、看安装质量

    成品套装门虽然在工厂完成生产,但真正成为商品交给顾客使用才算产品完成,所以从门品出厂只算是半成品,安装是关键的环节。好的安装流程、好的安装工具、经验丰富的安装技师是安装成败的关键。安装过硬的门品,要横平竖直,缝隙均匀细小,开合顺畅,开启任何角度都不会自动走位(安装闭门器的除外),合页、门锁等五金接合精细、配合流畅、且横平竖直。

    5 清洁保养
    1、不要在门扇上县挂过重的物品或避免锐器物磕碰、划伤开启或关闭门扇时,不要用力过猛,不要撞击木门。

    2、不要用湿手开启门锁,或将含有腐蚀性溶剂溅到实木复合门及门锁上。开启门锁或转动门锁把手时,不要用力过猛。合页、门锁等经常活动的五金配件,发生松动时要立即拧紧。门锁开启不灵时,可以往钥匙孔中加入适量的铅笔芯沫等润滑物进行润滑。

    3、擦拭玻璃时,不要使清洗剂或水渗入玻璃压条缝隙内,以免压条变

    4、清除实木复合门表面污迹时(如手印),可采用哈气打湿后,用软布擦拭。硬布很容易划伤表面,污迹太重时可使用中性清洗剂、牙膏或家具专用清洗剂,去污后,立即擦拭干净。实木复合门的棱角处不要经常磨擦,以免造成棱角处饰面材料褪色破损。在清除木门上的灰尘时,不使用软棉布擦除时,可采用吸尘器进行清除。为保持木门表面光泽和使用寿命,应定期进行清洁、除尘,可使用木制装修产品专用的养护液对其表面进行养护。

    5、春冬季应保持室内通风良好,使实木复合门处于正常的温度及湿度环境,防止实木复合门因湿度、温差过大而变形,金属配件出现蚀秀、封边、饰面材料出现脱落现象。在冬季使用电暖气或其他取暖设备时,要远离实木复合门,以免使其受热变形。

    6、粉刷墙壁时,要对实木复合门进行遮盖,避免粉刷涂料使木门饰面材料剥离、褪色,影响整体美观


    [ 本帖最后由 萱叶 于 15-4-22 21:08 编辑 ]




    • 来自 江苏省
    • 精华 8
    • 注册 2004-10-29
    • 行业 其它
    • 我们爱旅行 家装达人
    •  


    QUOTE:
    原帖由 姗姗来池 于 2015-4-22 21:34 发表
    LZ做事情太认真
    安!




     1158  5/24  | <  3  4  5  6  7  8  9  10  11  12  >  >| 
    查看积分策略说明快速回复主题
    您目前还是游客,请 登录注册
    您目前是游客,本帖已被系统设置了自动关闭,不可回复!

    0/5000字

     
    < >
     

    Powered by Discuz! X 2 0.121855 s 清除 Cookies - 镇江网友之家 - 手机版
    论坛导航 关闭