写的真好
客户满意就是标准——新风管道内粉末汉宸整改完成
昨天汉宸李总联系我,汉宸关于新风PVC管道中存在白色粉末(经证实这PVC管道厂家生产过程中因为静电吸附作用,吸附的PVC粉末)处理方案出来了!准备今天下午进行整改!
和上次我去汉宸时,倪总谈到的处理方案不同,原来他们认为用大风量的风机进行管道的吹扫,如果粉末吹扫出来,就完成了整改,如果吹不出来就说明粉末使用中不会吹下来,也就不用进行处理了!
但是我当时提出了疑问,如果粉末吹不出来,其在管道中会污染新风进风,并且在使用中也可能随时出来,这样都会污染空气,背离了装新风的意义。
今天汉宸的叶工告诉我,对于我和江河汇的装友提出的新风管道内存在白色粉末的事情非常重视,进行了试验,用大风量的风机进行管道的吹扫,粉末没有吹出来!
为了杜绝业主我对其使用中的但心,汉宸决定用湿毛巾裹住海绵,然后通过钢丝将其从新风进风管道走一遍,从而清除管道内的白色粉末。



说起来简单做起来难!裹住海绵的湿毛巾在第一个弯头处就卡住了,无法动弹!



困难难不倒汉宸人,叶工将新风进风管道的接头拆除,一根一根的进行清除!这样裹住海绵的湿毛巾在管道内行走就顺畅了!


在拆除新风进风管道的接头时验证了汉宸施工的规范,费了老大的力气才拆开!
从管道中拖出来的裹住海绵的湿毛巾看上面全是粉末,贴在手上都是的,在拆除现场项目经理不小心吸入了一口抖落的粉末,呛了好一阵子!



经过检查,清扫过的管道,内壁干干净净的,一点杂质都没有了!


汉宸再将拆除的新风进风管道一根根的恢复!整个工作花了3个人,2个多小时的时间!




闻过则喜,这在汉宸人身上真正体现了!对于这么一个烦人的事情,汉宸没有推诿,没有回避,积极面对,设法解决!
客户满意就是标准!汉宸表示以后更新新风施工标准,在管道布设前,将每一根管道内壁进行清扫,确保管道清洁无污染!为客户创造一个满意的体验!
水电施工——施工整改、净水布管2
由于今天上午没有时间,我一早将昨晚整理的水电施工存在的问题及净水施工方案、图纸发给了项目经理,让其一条一条的检查,存在疑问的立即沟通,确保一次整改成功!


据项目经理讲,今天一天就可以将所有的整改项目完成,为了能够当面进行检查,省得影响后面的施工进度,下午我请假到现场进行了检查确认 !


我到现场时,水电工已经将我的净水管路布置好了,水管还差20米!前天和汉斯顿许总现场确认时,计算放管长度约32米,为了确保万无一失,还多放了一点,一共40米。




经过检查才知识,我计算的路径是尽量短,但是施工考虑的方便性,其施工走的路线和我计算的不一样!所以多了出来!

装修施工沟通很重要,如果在前期水电施工时确认到位,最好能够写在纸上一条一条过,后期就减少了整改这一项!
不过装修不整改,好像只是理想!
今天项目经理在现场吊顶施工前的检查中发现了几个问题需要美龙和汉宸进行配合整改!否则影响后期施工:
一是智能的个别地方布线管道太粗,而开槽不够深,管子突出了墙面较多,以后瓦工进场施工容易墙面空鼓,或墙面不平,立即和美龙周总联系,答应尽快处理。


二是一楼阳台的中央空调的冷媒和冷凝水管道布置在阳台中间(离窗户太远),造成我的阳台的回字吊顶方案就不能实施,否则视觉效果太差!如果不整改,我只能阳台满吊顶,一个成本上升,同时视觉上效果差。


正好在现场的汉宸叶工毫不犹豫的答应进行整改,经过和项目经理现场沟通后,制定了一个既省事又方便的整改方案:
因为目前冷媒管道中已经充好了冷媒,如果管道重新布置,需要将冷媒放掉,工作量大,成本高,现将上面两根冷媒管道向上移(只要上移卡箍即可),将下面的冷凝水管向窗户移约15公分(距离窗户25公分,避开窗帘盒)即可。
施工中出现问题不可怕,只要尽量提前发现、积极及时整改!问题的发生、处理,也反映了一个商家的服务精神和专业技术水平!
移门的选择——颜值与实用担当
家庭装修中会有各种的门:入户门、房间木门、移门,其中入户门、房间木门我已经选择好了,还行剩下一个移门。在进行选择前我对移门的相关知识进行了学习,分享如:
一、移门的种类
移门也叫滑动门,一般是两种:一种是隔断门,另一种是柜门。



① 隔断门:常用于厨房隔断、阳台隔断、卫生间隔断等。一般均为玻璃移门,如果隔断有采光需求,那就用白玻或灰玻,如果有阻断视线需求,一般使用磨砂玻璃或长虹玻璃。


② 柜门:做为柜门一般多用于定制衣柜,经常用烤漆玻璃或者木质移门,其他常见还有藤编、绢丝、百叶、皮质等材质的移门。

二、移门的组成
移门的主要部分有:门扇、边框、五金件,五金件主要包括滑轮、滑轮轨道、阻尼及门锁。
三、移门的形式
移门的形式根据轨道(滑轨)分为地轨和吊轨两种:
地轨型移门就是上有导轨下有地轨,在门的下方装暗轮方便滑动。其优点是稳定性较高,故障率低;缺点是,由于地轨在地面上安装,会凸出于地面,容易绊倒人,且容易卡脏;


吊轨型移门,也叫吊趟门。轨道安装在门的上方。优点是没有地轨,地面干干净净很清爽,不会卫生死角。缺点是所有重量都在上轨道,稳定性差,长时间使用故障率较高。由于门的重量均在上轨道上,对门上方的结构有要求,必须是实心的不能是石膏板。


四、移门的优缺点
移门相比与传统的木门其优点是不占用空间,只在轨道中移动;但是其密封性相比与平开的门就稍差,当然也有的移门密封性能是不错的!
四、移门的选择
1、式样必须和风格搭配,由于移门是室内装修的一部分,不同于窗户,对展示效果要求较高,需要融入装修的整体风格,包括式样、颜色……
2、玻璃的形式多样,和窗户不同,一般窗户只在乎玻璃的厚度、中空性质、防爆率等,而为了展示效果,移门的玻璃形式较多,有白玻、灰玻、磨砂玻璃、长虹玻璃、艺术玻璃、夹胶玻璃等,成为了家中装饰的一部分。
3、五金的质量:五金属于金属件,是组件之中比较坚固的部分。五金件的质量与移门的质量还有寿命有着密切的关系。
1)看边框型材
边框型材厚度一般要达到1.2mm – 1.5mm,这样移门最高可以做到2.8米,而且不会摇晃,比较稳固。壁厚如果少于1.2mm,如有些只有0.8 mm或1.0 mm的,则最高只可做到2米,太高会摇晃,极易出现问题。厚度决定了型材的价格,成本也相对较高,也决定了移门的牢固性能。
市场上常见的边框型材大致可分为碳钢材料、铝镁合金、铝钛合金等。碳钢类产品表面胶膜花色丰富,但易生锈;铝镁合金是表面有镁装饰层的铝合金;铝钛合金是一种高强度航空材料,高强度、比重小、高韧性,但价格会比较昂贵。
➤ 提醒:目前比较常见到假冒的铝钛合金,消费者在挑选时可以用手指弹击边框,铝钛合金的材质声音更为清脆,金属感更强。


2)看顶底轨
滑轮导轨是推拉门的核心技术部位,要经受反复的摩擦,所以要选择具有强度高、耐磨损、低噪音等特点的产品,一般以铝镁钛硅合金材质为最佳。
➤ 提醒:一般认为钢轨比铝合金轨道结实耐用,轨道的壁厚越厚越好,其实并不尽然。高质量的滑动门五金体现在轨道与滑轮的完美结合,而不是单纯的某个部件。轨道必须具有与滑轮配合完美的弧度,其次才是材料的问题。
3)看上下滑轮
移门最重要的部件就是承载整扇门重力的滑轮,上下滑轮为移门最重要的配件,一般选用高强度尼龙复合材料,内带滚珠,附有不干性润滑酯,所以能轻松推拉,顺畅灵活,而且承重力大,耐压、耐磨不易变形。家用移门一般要求推拉6万次以上。好的推拉门是上下两组滑轮。 上轮可调节(有时你推着门沉,不代表料子厚,有可能是轮子调的太紧。), 起导向作用。下轮推起来没有跳动感最好。
➤ 提醒:好的滑轮往往设计有两个防跳装置,确保柜门滑行时可靠安全。目前市面上主流的欧派克导轨。
4)看胶条
市场上胶条的主要材料有PVC橡胶、硅胶等。其中硅胶条具有更好的韧性,保证了板材和型材的柔性连接。目前市面上较好的是三元乙丙胶条。
移门的选择——探店了解
做过了移门的功课,对其性能有了一定的了解后,我就开始了移门市场的探店!
一般做窗户的地方都做移门,我定的窗户——轩尼斯家也有移门,但是毕竟不是专业做移门的,材料没有问题,但是在式样和细节上还不是太精细!
专业的人做专业的事!因此我专门跑了做移门的门店!金桥、天桥、铭基、亿都、月星、六空,都进行了探查!
根据所做的功课,在选择移门时,主要看型材材料、型材壁厚、门套宽度、玻璃材质、五金导轨……
可是市场一跑,发现有点迷茫了!型材,几乎所有的移门商家都说自己是钛镁铝合金,原生铝,导轨都是欧派克的……从纸面上没有太多的区别!但是价格却有很大有区别,从便宜的600元/平方到2000元/平方不等!显然这其中是有很大的不同的。











一是型材材质,虽然都说是什么钛镁铝合金,但是其中有很多是回收铝(再生铝),它是通过回收的废铝提炼出来的铝,表面有半点,容易变形生锈,手感粗糙。而原生铝是通过铝矿开采得到的铝矿石和铝矾土,然后经过电解槽等一系列工序提炼出来的纯铝。韧性强,手感舒适,表面光滑。

从型材断面的光泽度和颗粒的细腻度上是能够明显的看出来了是什么铝材,但是问题是在一般移门安装时你是看不到断面的,视觉上并不能够直观的判断出来。只能从商家的信誉度判断了!
二是型材的厚度,大部分人在选择移门时注意的是门套的宽度,往往忽略了型材的厚度,国家标准1.2的可以满 足2.3*2.3做两扇的移门,目前市面上一般的厚度基本上都是在1.4以上,很显然同样的门套的宽度,型材越厚,价格越高。同时注意要问清楚其厚度是非标还是国标,同一系列非标的比国标的薄。



三是玻璃,对于移门一般的人对玻璃不像选择窗户一样在意,但是玻璃却影响移门的价格,正常目前的移门玻璃都是钢化玻璃,上有“3C”标志,对于钢化玻璃存在一定的自爆率,对于大厂工艺控制较好,相对自爆率低。目前中空玻璃中的介质一般是充氩气或真空,相对来说充氩气隔离热、隔音更好!对于室内使用的移门,如厨房,不需要太在意隔音效果,但是是阳台门还是要考虑的!
移门的玻璃还必须要注意其安装的工艺,这往往是区分移门好坏的一个重要因素(因为其比较直观),小的品牌玻璃都是双面打胶,且胶面比较粗糙!长时间胶会脱落!玻璃容易松动。好的品牌一般的一面使用密封条,一面打胶!这样使得玻璃在门套中既牢固又有韧性,适合长时间推拉使用。市面上还有一种镶嵌式玻璃,其两面均看不到密封条或结构胶,直接由门套压实,视觉上还是很好看的,但是不知道长时间使用,会不会玻璃松动。
四是导轨,大部分的移门商家均说自己是欧派克导轨,也有自有品牌的,但是究竟实际中使用的是什么,探店时无法见证(在安装时可以看见),在选择时应该试着推拉、摇晃移门门扇,一看顺滑,二看平稳、三听声音、四晃稳定;好的移门推拉时有分量、很顺滑,移动平稳无跳动,没有异声。用力晃动门扇,很稳固。


五是售后,对于移门这是一个频繁使用的产品,在使用过程中滑轮故障(跳动、脱轨、异声等)、玻璃破碎等均有可能,这时就需要商家的售后,有的商家不肯给予承诺,说是从来没有出现过问题,大多数的商家是门及五金终身质保(注意问清楚是否免费)、玻璃不保,最好的是门、五金、玻璃完全免费终身质保。当然,对客户在选择时还要注意商家经营的年限,有的可能干不了几年,终身质保只是一句空话!
通过对大大小小十多家移门商家的探店发现了一些潜规则,广大客户注意避坑:
1、门的面积计算方法,大多数的客户认为移门的尺寸就是门洞的面积,其实不然,有很多的商家计算的是门扇面积,很明显由于移门的门扇之间有重叠(门套部分),如果门套越宽,门扇联动数越多重叠面积越大。以门套0.06米宽,2米高,两扇移门,则就有0.12平方的重叠面积。因此在定单上必须注意计算方法。
2、配件价格高,大多数的客户探店时一般在意的是门扇的价格,往往忽略了其他配件(导轨、拉手、阻尼、锁、门套)的价格,但是当你需要安装时,这些配件不得不装,并且价格不菲!因此在下单前让其根据你的实际使用情况,将移门配置好,计算出总价,在此基础上进行还价,后期只会因为实际面积的出入而价格不同。

3、终身质保的不同,现在有的商家在定货前均口口声声说是终身质保,中间少了“免费”两个字,真正售后时要收上门费、材料费,价格还不低,售后的质量不能保证。因此在下单时必须将相关的售后说明清楚。
4、玻璃价格不同,在探店时经常被店中产品玻璃的多样形式吸引而下了单,商家订单只注意了型材价格,当你需要安装,付款时,发现玻璃形式不同价格不同,一般灰玻、长虹玻璃、艺术玻璃都会加价。因此在下单时注意其玻璃价格,看是否合理。


5、型材颜色不同价格不同,很多时候客户没有注意移门的颜色不同价格不同,一般金色轻奢风价格要高,在下单时需要了解自己想要的颜色,在定单中注明颜色和价格。


从过往避坑的经历,下单时需要让商家根据家中实际情况,做一个全案设计,什么配件、什么颜色、什么玻璃说清楚,在此基础上谈价格。同时要执行落在纸上,大于落在嘴上的原则,将售后、方案等落到纸上,以后如有麻烦,也利于申诉!
移门的选择——确定颜值与效果担当的大洋移门
经过近2个月的市场探店我终于开始进行移门的最后选择!
我家目前需要安装移门的地方有厨房和二楼去阳光房的门,一楼阳台和二楼阳台,由于我需要和室内融为一体,在效果上没有移门更好!不过为了防止以后可能影响空调的效果,我安装了木门套,以后入住后根据情况可以增加移门。
和同事聊天,他家二楼去平台的门选择了开门,他认为移门的锁都是销子式的,防盗性能差!确实如此,移门的锁具都是上下拨扣式,通过销子锁住的,不防盗!但是我家的阳光房是金钢一体的,门也是有正常锁芯的锁具。并且如果是开门,无论是向外开,还是向内开,都会影响旁边摆放的东西!所以选择了移门!

在选择移门之前,我对自己家中移门的功能性、形式等进行了分析,列出了自己的要求:
一、厨房移门
在门的轨道形式上,我准备不用过门石,为了保证一体性效果,厨房我准备选择吊轨门,地面没有导轨,一是视觉好,人走过去也没有东西跘着;二是轨道容易藏污纳垢!
厨房移门不需要太密封、隔音、隔热,并且处于来人的展示区,因此在门的形式上,对于我家的简约及轻奢的风格,结合现在的流行款,门扇选择窄边框的,并且门套选择直线形,不要弧度的!对于是否双层玻璃无所谓!但玻璃需要通透形的,长虹玻璃和艺术玻璃不适合。
二、平台(阳光房)移门
在门的轨道形式上,由于出去阳光房本来就有一个反水地梁,对整体性没有要求,所以我选择了传统的地轨门,地轨门相对稳定性更强,经久耐用!
由于移门出去就是阳光房,夏天温度高,冬天温度低,因此对移门要求隔热,因此选择双层玻璃的移门。在门的形式上,门套也是选择直线形,不要弧度的,但是门扇不需要极窄边框的!由于此移门无展示作用,所在玻璃是否通透形无所谓,灰玻、长虹玻璃和艺术玻璃均可选。
带着自己的需求结合前期探店情况,我排除了一些商家,有的是做功细节不够,有的品质好,但是风格不适合我家!最后在六空的喜蒂亚、月星大洋、月星欧福莱三家进行了选择。
喜蒂亚滑动门,产品的质量好,做功精细,隔音效果好,风格和我家比较适合,玻璃通透性强,门扇推拉顺畅。销售热情专业。



欧福莱精工门,产品的质量好,轻奢系列的移门比较时尚,玻璃通透性强,进店了解时,销售一般都会将一个窗户直接摔倒,伴随着一声巨响,玻璃仍然完好无损!只是我觉得对于家中的移门,玻璃的要求不需要这么强!销售热情。


大洋移门,其产品的质量好,门的形式多样,推拉非常顺畅,销售热情专业。但是和市场上大多数的移门比较,私人定制,这是我对其的最大印象!


中空玻璃圈边技术,这市场上少有的,对于选择双层玻璃,但不喜欢中空白边的客户带来了福音!

门的型材颜色有100多种,这让各种风格的家庭装修都能够选择到合格的!而一般市面上的移门大多颜色只有白色、黑色、金色……几种。


玻璃(夹胶)形式多样,可以定制,这是最让我感到新奇的!当我一次探店时,正好有一个客户在网上看到一款图案,将其下载下来,由大洋将其制作出来放入夹胶中,非常的漂亮!对于中式及其他对玻璃图案有要求的客户,这无异是一个随心所欲的产品!



经过一翻比较,我还是选择了颜值与效果担当的大洋移门!在定单上钟总将所介绍的产品内容、定金可退都一一注明了,当发现原来承诺的玻璃及门五金终身免费质保未写入,又特意叫我回去补写上去!这让我感到很踏实,一方面说明大洋的产品如其前期介绍的一样,没有水分,同时落在纸上总比落在嘴上可靠!





当天收到了大洋的温馨提示,介绍了产品的制作周期及相关注意事项,非常暖心、专业!必须点赞!

在选择移门时,大洋的钟总提醒了我,移门一般都有一个最低的门套厚度,大多数都是160MM,而我家的厨房隔墙是砌的单墙120MM,加上贴砖也只有140MM!
怎么办?钟总从专业角度给我提出了两种方案:
1、门套加边封正常安装,以外墙为基准,没有缝隙,厨房内侧门框将突出约20MM,到时大洋可以帮我将缝隙封好,从外面看视觉上很漂亮,但里面略有点丑,但是问题不大!
2、先安装门套,再安装边封,这样门套内外均压在了内外墙上面,视觉上没有缝隙,但是,由于边封是安装在门套上的,而不是传统的镶嵌上的,门洞内就有明显的突出的边封!
究竟怎么选择,由我考虑利弊后选择!我于是到同事家进行了参观,发现他家的厨房出是木工打的一个薄墙,他家移门就是采用先安装门套,再安装边封的方式,真的很难看,问同事,他家做移门的没有征求他的意见,这这样安装了!


经过比较我决定采用第一方案。
另外关于厨房移门吊轨的问题,大洋钟总也提出了自己专业的意见:吊轨整体性强,地面清爽,但是不稳定,而且必须配置阻尼,门打开后两扇门不能完全重叠,视觉上会有影响!地轨稳定,门打开后两扇门完全重叠,只是地面的轨道,有点影响通行和视觉!
我提出有的商家建议我直接在地面上安装导轨条,这样既保持了地轨的稳定,视觉上又比较好看。钟总介绍,他们几年前曾经做过这种的地轨,后来不做了,主要原因是:过门石上面直接嵌轨道芯,首先对施工的精准度要求相当高,轨道没有底座的话牢固度大打折扣;其次,即使轨道芯在过门石上开槽固定好了,装移门的时候为了密封更好,只能尽可能得把移门滑轮调到最低,使移门跟过门石的间隙变小,在移门用了一段时间后,滑轮磨损,移门下沉,使移门跟过门石的缝隙更小,轻则移门拉不动,重则移门擦地,在过门石上留下划痕,甚至移门掉落后期维修难度太大,万一主家想换移门了,移门拆走后会在过门石上面留下两道轨道芯留下的深槽,后期不好修复。


钟总身告诉我,我家厨房上面是实芯墙,可以安装吊轨,而且大洋的吊轨也是终身质保,可以放心使用!我需要到安装好的同事家进行实际感受进行最后的选择!
一个负责任的商家不是一味的听客户的,因为客户不专业,只是从自己的喜好出发选择产品形式,不知道其存在的问题,可能这个问题又是不能忍受的!这时及时的进行提醒,让客户综合衡量后进行选择,最终的结果更适合用户!
大洋移门,私人定制,值得推荐!上几款他们的特色产品!






说得好不如做得好——金牌亚洲瓷砖下单
根据我家的装修进度,五一节后吊顶交底,大概10号以后开始木工吊顶,项目经理预计木工约2周结束,然后就是开始瓦工施工,这时就需要瓷砖进场了!而瓷砖下单到送货还有10几天的周期,因此我必须要将瓷砖确定了!
上周金牌亚洲到我家进行了复尺,以便确定用砖数量和铺贴方法!



但是随着家中产品的日益增加,对于未来小家的形象越来越丰满,我和夫人对原来的瓷砖方案有了一点不同的想法!主要是阳光房的瓷砖,原来偏向于美式田园风格,而阳光房外面的平台我使用防腐木的休闲露台,这样阳光房内外有点不搭!
因此在夫人的要求下,我向金牌亚洲进行了反映!
早在定货时我就注明了瓷砖方案在下单前可以重新选择!仍然保持原折扣,按当时店面价格多贴少补!
在跑市场时因为瓷砖质量和热情的服务选择了金牌亚洲,前期只是停留在纸面上,如今要施工了,就会涉及到一些具体问题,此时更加考验商家的服务态度了!
让我很欣慰的是金牌亚洲依然是热情专业的服务,下等当我进店提出需要进行阳光房方案修改的时候,她们并没有拒绝,还是很热情的根据我的需求、风格提出了建议,建议使用地板砖,并且使用人字铺效果更好!当场金牌亚洲立即进行了效果图的修改,以便回去让我夫人了解选择!





同时根据设计师设计的电视背景墙,金牌亚洲向我介绍了他家的大板砖的特点!


晚上还收到了是金牌亚洲的下货单!上面对于瓷砖的用量、型号,以及施工的方法,如是否需要背胶都进行了说明!一目了然!

上次的项目经理沟通交流时我提出为什么现成卫生间很多的没有使用地砖上墙,瓦工也要求业主使用背胶铺贴?项目经理解释,正常的瓷片上铺贴是不用背胶的,其铺贴前必须泡水!但是现场很多品牌的瓷片是全瓷的,不吸水,不用背胶容易脱落!
这一点我有所了解,在跑市场时有一个商家曾经说过,全瓷的瓷片施工方法不同!项目经理讲,其实在现场瓷砖泡水时,瓦工应该是能够判断是否是全瓷!同时负责任的商家也会提醒客户!但是往往很多商家并不会一一说明!
金牌亚洲的下货单让其不但停在嘴上,更落在了纸上!避免施工中出现问题,必须为金牌亚洲点赞!
不怕不识货,就怕货比货——金牌亚洲瓷砖辨别方法
“不怕不识货,就怕货比货!”目前的家装市场真的很透明了,产品、服务都展示在大家的眼中!只要大家擦亮眼睛就能够很容易的发现退潮后谁在裸泳!
昨天将金牌亚洲修改后阳光房的方案给夫人审核!我已经认可了此方案,但是,夫人觉得不适合!主要是颜色和家中的风格和地砖颜色不协调!开始时我主要是将阳光房里的瓷砖和阳光房外平台的防腐木(红色)颜色统一了,没有考虑和家中的地砖的配合!而且夫人讲,防腐木也有灰色的!

对于曾经学习过画画的夫人来说,对于色彩的搭配,我还是相信她的判断的!于是只好又麻烦金牌亚洲张总进行方案修改!但是我不能亲自进店选择,只能麻烦张总根据我描述的情况,结合其专业的经验帮我进行选择!张总没有二话,立即进行了方案的修改!
一个小时后,金牌亚洲张总的方案就修改好了,这一次瓷砖的颜色和家中的风格(灰色系)比较统一协调,而且符合简约和轻奢的风格!我发给夫人,得到了其认可!对于瓷砖搭配时,张总为了阳光房内外颜色的过渡,在内外交界处用了一个淡色系的砖进行了过渡,很是专业、用心!得到夫人的肯定!


最终方案确定后,金牌亚洲立即将最终的下货单进行了修改,效率惊人!点赞!
在交流方案时,我提出在送货到家,我如何判断送的货和我在店中见到的一样,如何判断产地是广东的?张总不怕揭短的向我介绍了挑选瓷砖判断好坏和是否正品的方法:
一、如何挑选瓷砖
1、看;看砖的釉面色泽,一般来说色泽均匀,表面光洁,对着灯看是否通透,有无针孔, 二看,瓷砖的底胚,从底胚的颜色可以看出砖的产地,还有砖的侧面;
2、听:小的砖可以用五指拖起敲打听声音,声音越粹说名砖密度高,烧制的时间够,温度达标(金牌亚洲内部标准,温度1280度,时间4-5小时);
3、摸:用手的背面轻轻的摸砖的釉面是否光滑细腻如婴儿皮肤,这个步骤可以感觉出釉的好坏,(金牌亚洲釉料全部意大利进口);
4、试:用水滴在砖的背面 ,观察水散开后被吸收的快慢。
二、如何判断是否是正牌金牌亚洲瓷砖
目前现在市面上很多品牌都说是广东佛山瓷砖,主要是土质,气候等方面的原因。但是现在有一些广东佛山大品牌瓷砖其实都在外省代生产,主要是山东,江西,湖南,湖北,吉林等地方。




如何去简单辨别是否是佛山制造,主要看底胚颜色。
外底胚颜色偏红的暗红的基本上是江西产,而现在广东很多企业也在江西都有分厂,底胚偏暗偏黑的;
湖南,湖北的多主要以煤土,这种土生产出来的往往密度不够;
市面上最多就是山东砖,也是最难区别的,看底胚测面有细微黑点,或者有分层的,广东砖底胚偏白,看上去像石材的颜色,但是有一种特别白的又是经过化学漂白的。
金牌亚洲磁砖隶属于广东金牌陶瓷有限公司,是集生产、研发、销售于一体的综合型企业,生产基地位于佛山市三水区白坭。金牌亚洲一直坚持佛山制造,品牌创立至今15年,产品品类齐全,花色丰富,规格多样。不仅涵盖大理石瓷砖、现代仿古砖、全抛釉、瓷片、抛光砖、仿古砖等常规产品。
2008年当丝网印刷等传统工艺在行业内大行其道时,金牌亚洲磁砖引进全国第一台3D喷墨机,攻克磁砖喷墨打印技术难关,"喷墨磁砖"惊艳亮相。
2017年打造680米融合国内外前沿科技智能绿色大岩板生产线,实现1.6m×3.2m大岩板量产,拓宽了瓷砖的运用领域,不仅能上墙下地,还能作为门板、桌面、橱柜门、台面使用,不仅技术上是一次飞跃,对行业审美及家居装饰艺术提升都起到积极推动作用。
金牌亚洲磁砖先后荣获"广东省名牌产品"、"高新技术企业"、"广东省工程技术研发中心"、"广东省企业技术中心"等荣誉。北京奥运会时期,金牌亚洲磁砖向国奥村提供工程用砖9万多平方米。2016年品牌广告强势亮相美国时代广场,2019年品牌广告登陆央视,提升品牌高度与辨识度。



还我一片蓝天——阳光房方案落地
小区里很多的顶楼的用户都把露台现浇起来做成一个房间!项目经理也问我是否这样做!
每个人的需求不一样,就像我们挑空的客厅,大部分都浇了起来!也有的保留挑空的效果!
在跑设计市场时,有的设计师也让我保留或者留一半挑空,感觉好!什么东西不能凭着想象!设计师带我参观了完全挑空和半挑空的案例!确实视觉和空间感受上不错!但是,这几个案例无一例外的客厅的面积较大!而我家的客厅才16平方!如果保持挑空,感觉就像一个桶子!
同时结合我家的房间需求,我将客厅浇注了起来,多出了一个房间!
而阳光房,当时在跑设计市场时也有设计师为了让客厅挑空,同时当满足我的房间要求,建议将阳光房浇注起来的!可是我否定了!
当时我在选择房子的时候首先想要错层的二楼有院子的户型!然后才是顶楼!要么接地,要么看天!
房子是用来住的,所有的设计需要结合自己的生活!同时也要结合房子本身的特点扬长避短!
我在房间已经满足的情况下,对于露台的住宿需求就没有了,那就是要将我家房子的长处发挥出来!
在选房子时有两个不同楼幢的顶楼同样户型的供选择,我家的这户比另一个要贵20万!原因是我家是小区最北面的楼,直面长江!尤其是我家的露台,在上面可以欣赏江景和北固风光!

为了让这20万能够体现出来,我否定了露台浇注,增加房间的方案,选择了阳光房,可以看江、看天!
同时为了能够保持一片蓝天,我没有将露台全部做成阳光房,留了东面近一半的区域没有封起来,准备做一个露天花园!可以三五好友在上面烧烤,喝茶,赏景!



随着中央空调安装结束,装修公司的木工准备入场,家装的施工阶段将要如火如荼的进行中,同时我的一些材料就需要确定尺寸和方案,下单,因为他们也有一段制作周期!
五一期间,轩尼斯倪总不顾月星新店正忙着准备开业的紧张时刻,为了不延误我的家装节点,亲自抽空到我家露台进行了现场复尺!今天就将阳光房的方案制作完成了!







对于倪总客户至上的服务精神和极高的工作效率点赞!
对于此方案我基本上没有疑义,但是对于阳光房东面和露天部分的交界处的处理方法有着不同意见,不能确定:
1、和轩尼斯的方案一样,在交界处浇一个地梁,防止阳光房外面的雨水渗入阳光房的地面下;但是这样在浇地梁时,需要破坏现在的地面上的保温层,这样如果地面漏水到下面的房间,物业就不负责了!
2、阳光房直接架在露台的地面上,做好后,在阳光房和地面间用水泥填实,做反水坡!这样防水性能不好,容易阳光房外面的雨水渗入阳光房的地面下!
究竟如何选择,我还需要多听听专业人士的意见,但在阳光房下单前必须确定方案!
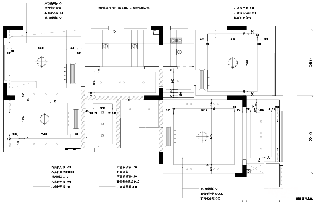
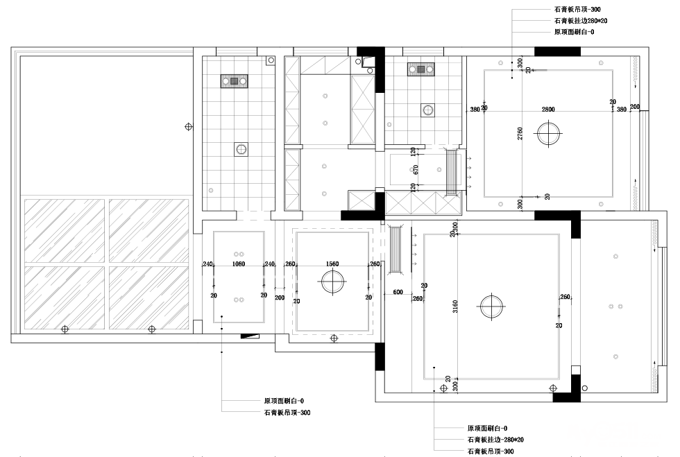
纸上得来终觉浅,现场沟通除问题——吊顶交底
经过多次的反复的吊顶方案沟通,终于在五一节前设计师将最终的吊顶方案确定了!


根据施工计划,节后就要开始进行吊顶的施工了!为了确保吊顶施工的顺利,为了检验吊顶方案的施工是否可行,今天下午和汉宸(中央空调、新风)、美龙(背景音乐)、设计师、项目经理、木工一起到现场进行了吊顶的交底!




纸上得来终觉浅,虽然我和设计师进行了很多次的纸面推演,最后才确定了方案!但是今天到现场交底时发现了还是存在一定的问题!
1、主卧的窗帘盒子无法安装,因为我准备装电动窗帘,电动轨道需要大约20CM高的窗帘盒子,现场发现,如果这样我的窗户就不能开了!只好用明装的罗马杆式的电动窗帘了!


2、餐厅的空调内机离顶面太近(设备离顶面3CM),由于我家餐厅东面有一个下挂42CM的梁,造成吊顶太高,所以在上部打一个6CM的叠级,这样空调的出风口就被挡住了!


有2种整改方案,一是将内机向下移,这样由于空调内机底部需要保持3.5C以上的距离,这样会造成吊顶高度变低;二是将空调的风口向下倾斜(由于汉宸使用的是风道板)让出叠级的高度,但是这样吊顶的厚度需要增加5CM;
经过和设计师沟通,选择将空调内机下移!汉宸的李总二话不说的答应配合整改!同时今天发现一楼阳台空调的冷媒管和冷凝水管已经移好位了,不影响吊顶了!施工中可能商家、也有可能是主家的原因造成一些施工中问题的发生,这不可避免,但是解决问题的态度很重要!对于发生的问题不管谁的原因,汉宸都毫不推诿的积极整改!为其点赞!


对于具体的吊顶结构布局,设计师和木工进行了一一对接,必要的时候进行了画图说明!让木工明确每一个区域的施工情况。






我家干区洗手台盆上方原来设计的是浮光灯槽,设计师建议我改为线槽灯,符合我家的简约的风格,时尚简单!我觉得可以!
为了确定尺寸我立即到六空5楼的艾幕灯饰和铂庭铭灯进行了现场确认,线槽灯有1、1.8、2、3、4CM各种的规格,经过比较我确定了2*2的线槽灯,即达到照明效果又简单明了!




纸上得来终觉浅,在装修施工中总会遇到一些提前不容易想到的问题,为此:
首先在施工前多多考虑、多多斟酌,和各商家积极沟通,现场多跑,结合实际,尽量减少问题的出现!
其次是在施工前将该工序涉及到的商家联系到场进行技术交底,现场提出问题、发现问题、解决问题!
最后也是最重要的是在跑市场时擦亮眼睛,多多比较,选择优质的公司,在提供优质的产品的同时,也提供优质的服务,一是他们的施工前能够及时提出问题、提出注意事项,二是在出现问题时能够站在业主的角度,积极的解决问题!
晚上我将各商家白天沟通时提出的问题进行一一汇总,确认无误后发给项目经理和木工,希望施工中能够完全到位!

很多时候人是要讲究缘分的!一直以来我对于家装市场下单都是报着,不谈感情,比较数据、眼见为实的原则!很多商家都感叹做我一单的不易!
但是,我也有冲动的时候,去年德意丽博橱柜在我们小区搞团购活动,我虽然前期也跑了几家的橱柜,但是由于不是主要内容,因此并未认真的比较!只是一个同事家用了他们的橱柜,现场看了一下做工不错,对于同事家的价格,发现确实优惠不少,就急急忙忙的下了单!


虽然定单上也注明了定金可退,但是我做人的风格,橱柜就算是确定了,期间也收到多家橱柜商家的电话邀约,我都一一回绝了!
但是内心中还是没有底,毕竟没有像其他产品那样多次的沟通、交流,对于德意丽博的产品没有问题,但是服务怎样,却没有信心!
人们相互之间总是从陌生到相识,再到相知!有缘千里来相会!
通过一次次的相处,我对德意丽博有了清晰的认识!在镇江家装界,德意丽博算是网红了,红总有红的理由!
至少对于其一路以来的用心服务,苛刻的我是认可的!
首先是在我家水电施工时,需要确定厨房的水电定位!在我一声招呼下,德意丽博顾总立即上门进行了复尺,和我多次沟通后,几易其稿,出最终详细的水电图!而到目前为止我还可以退定金的哦!

原来我橱电只考虑了洗碗机,在跑橱电市场过程中,我对自己的需要有了改变,想要一个蒸烤一体机!但是我家原先的橱柜没有地方放了!
专业的事情由专业的人来做!我将需求告诉了顾总,其进行了精心的设计,最后选择了将蒸烤一体机放在灶具下方的方案!
首先是安全,上方就是燃气灶具,蒸烤一体机工作时,温度上升会不会造成燃气隐患!对此顾总耐心的向我进行了解释!蒸烤一体机虽然工作时周围的温度上升,但是并不会造成燃气管道的损坏,并且安装时会将燃气管道和蒸烤一体机隔开!真正危险的是燃气泄漏,此时、灶具及厨房内所有电器使用时都可能造成爆炸!顾总告诉我他们有过这种案例!
其次,这种方案存在一定的缺陷,一是在蒸烤一体机使用时,同时可能人在炒菜,会有遮挡,不过蒸烤一体机使用不会和微波炉一样,时间较长,需要时炒菜的人让一让,问题不大!二是由于嵌入式蒸烤一体机排汽口在前方,当排汽温度较高,可能烫伤人,对此我实际对蒸箱排汽温度进行了测试,在排汽口附近(5CM内),温度约有50度,比较能烫人,但是距离远点,温度下降很多,正常人炒菜时离灶台一般在10CM以上,即距排汽口较远,不会烫伤人!并且蒸烤一体机在使用结束前才会排汽,问题不大!
经过多方衡量,我确定了在灶台下方安装嵌入式蒸烤一体的方案,这时就发现了前期顾总帮我做水电设计时的英明,灶台下布置了一个插座,整个方案无缝对接!
五一期间我将橱电确定了下来,商家活动赠送了一个嵌入式微波炉,我又向顾总提出了新要求!
顾客就是上帝!顾总立即帮我进行了设计,需要有原有的布局及水电已经完成的情况下进行方案设计比原来什么没有做要困难得多!经过仔细测量、反复推敲!今天顾总将新的方案完成了,并且做成了3D效果图,让我对未来的厨房有了一个清晰认识!比较较真的夫人好认可了方案!
因为用心所以专业,德意丽博用专业为我解决了一个又一个难题,为我未来的小家描绘出一个温馨的厨房!点赞!
我的家装我做主——房子是我来住的
现在的人们买到房子进行装修,和以前不一样,基本上都会找设计师进行一下设计,其目的是让自己住得更加漂亮、体面一点!
但是我发现现在人们装修时却进入了一个误区——一切设计师说了算!
从视觉和装修效果上说,设计师对装修整体的把握一定是比业主要强!但是这里需要强调一下的是:这个房子是用来住的,而且是“我”住的!
这里离不开一个“住”和一个“我”字!这正是设计师所缺少的!在设计师眼里你的装修只是他的一个作品而已!
今天和一个正在装修的同事聊天,他给我看了设计师帮他做的浴室效果图,真的很是详细,小到装修图案,台面尺寸都进行了说明,让同事根据其要求去购买甚至定制产品!同事说,设计师告诉他:小到他的一个鞋子都要按照他的设计摆放……

但是我有点搞不懂了,他是请了一个设计师为他的未来生活添色加彩,还是他在为设计师的一个作品买单!
今天金牌亚洲发来了我家的瓷砖铺贴图,什么图案,从哪里开始铺都一一注明!但是目前这还不是最终的版本,我需要进行研究,结合自己的生活和审美要求进行研判,可能进行方案修改!






同时德意丽博橱柜应我的要求——柜板采用了岩石板,台面使用深色系,两边都打上吊柜……,将我家的橱柜效果图进行了修改,发给了我!
同事见到我家的瓷砖、橱柜、墙布……3D效果图很是羡慕!所有的设计都是围绕着我的生活展开,在保证我的日常生活次序的同时,让生活更加阳光、多彩!
我的家装我做主——房子是我来住的,这是我的装修原则!离开“我”“住”这两个字,家装再漂亮那都是浮云!
认真检查,规范试验,保障安全——伟星管水压试验合格
年前水电就结束了,下面就是开始进入木工施工阶段!
一旦进入木工吊顶后,如果水路有问题,处理起来就复杂了!因此我的要求项目经理进行水路的水压试验,项目经理说已经准备好,随时可以进行水压试验!
5月7日进行木工吊顶交底时项目经理顺便进行了水压试验,可是项目经理通过手动泵将压力打上去了(0.8MPa)一会儿压力就下去了,无法保压,但是又不见漏点!经过检查发现是手动泵有问题!




我问了项目经理,我看很装友在进行水压试验并不是装修公司组织,而是由伟星公司进行,为什么锦华是自己进行呢?
项目经理回答:锦华的伟星水管是锦华公司和伟星总部签约特供的,和本地伟星公司没有关系,所以一般都是锦华装修公司自己进行的!
5月8日项目经理约我9日下午去现场进行水路水压试验,由于他们公司的水压试验泵坏了无法修复,他们也请伟星公司的人员来进行了水压试验,但是我请不了假,对于这个重要的节点验收,做为业主的我必须到场!
伟星公司的市场很大,做水路水压试验的用户很多,需要提前一天预约,经过工作安排约好发今天下等15:30进行了水压试验!
伟星公司的人很准时的来到房子里,对比装修公司的水压试验,伟星公司很认真、规范!
首先,在试验前伟星人员对我的资料进行了询问,然后人员对家中的水路进行了检查,确认没有水龙头;
然后将进水回水管的堵头拆除,在进水侧安装了一个压力传感器,在回水(热水)侧安装打压泵!而项目经理上次试验就在进水侧安装了打压泵进行打压!有什么区别呢?很快我就发现了问题所在,由于打压泵安装在回水侧,在打压开始时,通过家中的自来水对管路进行充压(约0.25MPa),管路中的空气从打压泵的空气孔排了出去,这样充满水的管路,打压很快变上去了!
当水压达1.2MPa时开始停止打压,进行保压!根据伟星要求30分钟内水压下降小于0.1MPa即为合格!30分钟结束,安装在进水侧的压力传感器没有报警既为合格,同时传感器将具体的数据上传到了伟星手持式的记录仪中,同时我也收到了试验时的情况报告!









最后,伟星人员填写了一张星管家质保卡交给了我,告诉我我家的伟星管均为正品,经过水压试验合格,伟星将提供50年的质保,并且今天检查、试验的情况和数据将会上传到管网,随时可以查阅!








晚上我报着试试看的心态,按照伟星人员给我的服务卡登录了手机公众号进行了检查:
1、关注公众号
2、业主管路图质保查看;
3、输入登记的手机号,通过验证码进入系统;
4、此时我就可以看到自己的信息(小区及房号),点击进入;
5、此时可以看到两部分的信息:
1)管路图:进入后可以看到我家的水管布置情况照片;
2)基本信息:包括业主信息、安装人员信息及试验的数据结果,很是全面!







对于伟星管业如此规范,全面的服务,我必须点赞!让我这个业主对于水路的情况充满了信心!
我不知道装修公司为什么一开始想自己试验而不让伟星公司人员来进行试验,对于我们业主,只有伟星这样的认真检查、规范试验,才能确保安全!
龙骨是装修吊顶中不可缺少的部分,其中包括木龙骨和轻钢龙骨。使用木龙骨要注意木材一定要干燥、要涂防火涂料与防腐涂料。一般使用的是轻钢龙骨。轻钢龙骨是用密度比较小的钢做成的装饰结构用材,它的特点是自重轻,承重量大。表层镀锌工艺处理,防火,经久耐用。
1.木龙骨石膏板吊顶工程施工:
木龙骨选择:无节吧,无开裂,无树皮,无虫蛀,干燥无变形。木龙骨(3X4CM)框架间隔小于400CM,面涂防火涂料,膨胀螺栓固定。面封1.2CM厚优质双面石膏板,自攻螺丝钉固定,钉盖涂防锈漆,石膏板嵌逢处使用专用嵌缝石膏找平,贴优质防裂绷带。
2.轻钢龙骨石膏板吊顶施工:
轻钢龙骨选择:表面光泽自然,壁厚0.6CM以上,无锈斑、扭曲。轻钢龙骨(60系列)框架间隔小于400CM,膨胀螺栓固定。面封1.2CM厚优质双面石膏板,自攻螺丝钉固定,钉盖涂防锈漆,石膏板嵌逢处使用专用嵌缝石膏找平,贴优质防裂绷带。
二、工艺流程:


1.弹线:
采用水平仪抄出水平线,用墨线弹出基准线。对局部吊顶房间,如原天棚不水平,则吊顶是按水平作或顺原天棚作,应在征求设计人员意见后由客户确定。




2.安装吊杆:
吊顶主筋不低于30×50木龙骨,间距为800-1000,必须使用100×8钢膨胀固定,约1㎡用量一个。钢膨胀应尽量打在预制板板缝内,钢膨胀螺母应与木龙骨压紧。


3.安装龙骨及配件:
打木龙骨格栅应注意灯具位置,筒灯开孔处不得有木龙骨,吊顶及吸顶灯处应单独进行加固,客厅主灯应加钢膨胀固定。轻型灯具可吊在主龙骨上,重量大于3公斤的灯具或吊扇不得与吊顶龙骨联结,应另设吊钩。




4.安装纸面石膏板:





1) 纸面石膏板使用前必须弹线分块,封板时相邻板留缝3㎜,使用专用螺钉固定,沉入石膏板0.5-1㎜,钉距为150-170㎜。固定应从板中间向四边固定,不得多点同时作业。板缝交结处必须有龙骨。
2) 封层板前必须弹线分块,确保钉子钉在龙骨上,使用U416或U419码钉固定,钉距为80-150,钉眼涂防锈漆。如作乳胶漆面,则必须使用醇酸清漆滚涂一遍,防止层板翻色。
3) 石膏板的安装应符合下列规定:当采用钉固法安装时,螺钉与板边距离不得小于15mm,螺钉间距宜为150~170mm,均匀布置,并应与板面垂直。
4) 封板时,注意灯具线路拖出顶面,依照施工图在罩面板上弹线定出筒灯、设备(喇叭、窗帘线)位置,拖出线头。
5) 一般吊顶拐角处使用“7字形”工艺,无缝拼接,防止开裂。在吊顶拐角处用一整张板材,裁成“7”字形。这种结构可以大程度保证吊顶结构稳固,其表面的装饰材料不易开裂、鼓起、脱落。
6) 天花板安装,底部与天花板竖板拼成直角,底板要托着侧板。
三、验收标准:
1.表面应平整,不得有污染、折裂、缺棱掉角或锤伤等缺陷,接缝应均匀一致。
2.用2米靠尺检查,平整度误差在3㎜以内。
3.光带、造型部分平直、无波浪,弧形、圆形吊顶光滑、顺畅。
4.装饰线条接缝光滑、顺畅,色差小,阴阳角接口严密。
5.扣板施工,平整顺直,板面不被有污染、划痕、损伤,收口线接缝应严密。
6.吊顶石膏板之间衔接处,应该采用石膏板接缝纸带进行防裂处理。
7.若螺钉为非防锈螺钉,则钉帽应进行防锈处理,应用涂料涂饰。
木工吊顶检查1
家装木工开始如火如荼的进行中,但是由于最近工作比较忙,白天没有时间到现场督促检查,只能晚上利用锻炼的机会到房子里进行检查。
今天书房和客卧的吊顶基本上结束了!客厅正在施工过程中。






我对照吊顶施工标准进行了检查:
1、房间内的吊顶底板都是根据水平仪弹出的线进行施工,从而保证整个吊顶底面保持水平(在一个平面上);

2、在每一个转角,均使用一整张板材,并裁成“7”字形;

3、纸面石膏板封板时相邻板留缝3㎜,板缝交结处必须有龙骨;侧面板缝交结里面的封板固定;


4、纸面石膏板使用前必须弹线分块,确保钉子钉在龙骨上使用专用螺钉固定,钉距为150-170㎜。

5、螺钉与板边距离不得小于15mm,螺钉间距宜为150~170mm,均匀布置,并应与板面垂直;

6、封板时,将有关设备的线路拖出顶面,并在石膏板定出了新风的位置;



在检查中发现了一些问题需要得到解决或解释:
1、发现在有的纸面石膏板封板板缝附近的螺钉与接缝太近,已经打滑了;

2、有一块石膏板边缘有开裂的现象;

3、轻钢龙骨支撑的撑杆,有的中间夹着木条,而有的没有;

4、新风进出风口没有开,只画面了位置,但是有的位置不对!经过和汉宸李总沟通,他们将在木工吊顶结束,进场将新风的风口开好!为了确保不打到龙骨,汉宸要求木工将风口的位置标好,但是项目经理回复:不可能打到龙骨,因为龙骨的位置都的钉子,很容易发现的!
瓷砖下单——服务体现在细节
金牌亚洲经过我的几次要求将瓷砖的方案修改好了,今天和夫人一起到店里最后一次实际检查,确定方案,下单了!
首先,我夫人现场对阳光房的地砖和墙砖进行了确认,实际的效果也比较满意!金牌亚洲张总又带我们对各个区域的砖再次进行了确认!对于她们的认真的态度点赞!



然后,张总又向我介绍了每一个区域的铺贴方案!金牌亚洲的服务是我选择他们的一个重要原因。





在铺贴方案上,不但标明了从哪个方向开始铺,还注明了有多少砖需要进行加工(地砖上墙400*800mm,需要800mm的砖一切二,二楼次卫地砖400*400mm,需要800mm的砖一切四),需要进行倒角(墙面的阳角瓷砖倒45度角)。




对于很多商家来说,这些砖加工是需要收取加工费的,同时一般的瓷砖商家包送货、补货一次,其他的就要收费了,但是金牌亚洲这些都是免费的!
最后,经过方案确定、数量计算,瓷砖的实际价格出来了,按照惯例,需要交全款了,但是金牌亚洲收了50%的款子,其他的货到付款!这证实了他们对于服务和产品的信心!让我们客户也更放心!


我提出了一般人家在瓷砖下单时会多买几片,防止瓷砖出现问题,补货有色差!张总告诉我,他们会多进一点这种瓷砖,让我放心,少了免费送货!
在金牌亚洲定货单上不光写了价格,同时注明了施工工艺(是否用背胶),上面的承诺也一一注明了!
目前瓷砖市场比较透明,只要是一定品牌的瓷砖,产品的质量基本上是没有问题的,这时候相互之间比较的就是服务了!让顾客满意、放心的商家才会越做越好!
眼见为实——德意丽博橱柜探店
虽然目前我家的橱柜还没有到安装阶段,但是德意丽博已经帮我们做了几稿的方案,总体上比较满意,周末和夫人一同到德意丽博橱柜进行了探店,毕竟效果图和实物还是有差别的。
眼见为实,到店后受到德意丽博费总的热情招待!
德意丽博的板材形式、颜色很多,适合不同的装修风格!费总向我们重点介绍了效果图上的两款板材的特点!




其中一款是2019年的新款,仿意大利的拉丝纹板,非常适合现代简约的风格。表面有明显的手抓纹的感觉,质感好!费总用意大利原板进行对比,确实是效果上一致,但是价格上却相差很多!经济实惠!夫人担心日常使用中的清洁问题,费总承诺可以直接用钢丝球擦,花了算德意丽博的!


第二款是是岩板,店中橱柜的展示款,虽然板材是2018年的,但是从风格上非常的现代时尚!适合轻奢的风格!表面光滑,手感细腻!价格上和上一款比贵了约300元每米!


总体上夫从对这两款的板材比较认可,各有优缺点!可以在其中二选择一,但是对于效果图中设计的白色的台面,夫人从日常使用的角度,不喜欢白色的,容易显脏,对此在现场进行了台面的重新选择!



经过对比,第一款选择白色偏黄的台面!第二款选择了一款灰色的台面!


晚上收到了德意丽博修改好的两个方案的效果图,总体的效果呈现了出来,夫人和我都比较满意!后期下单前确认一款方案,复尺即可!

卫生间的处理是家装中的一个重要的环节,如果处理不好可能造成较大的隐患,且整改难度大,对此我进行了卫生间装修处理的相关学习,分享如下:
一、卫生间的形式:
1.隔层排水,此为传统的排水方式,楼上邻居家的排水管就在你家天花板上。我家主卧卫生间是重新做出来的,即为隔层排水。
2.同层排水,即下沉式卫生间,也叫沉箱式卫生间,是指在主体建造时将卫生间结构层局部或整体下沉离相应楼面一定高度(一般40cm),以使卫生间的水平排水管道埋入其中,然后用轻质材料回填,结构构面只须设一个洞口作排水立管通过使用。自家的排水管就在自己家地面上,出现问题从自家找原因即可。目前新的房子基本上都是同层排水。我家的一楼卫生间和二楼次卫即为同层排水。


优点:
1) 便于卫生间的排水布置,可以根据需要自由决定马桶、浴缸和下水地漏的位置,在本层作业,不涉及楼下。
2) 隔音效果好,可减轻排水时产生的噪音。
3) 顶面平整美观,没有排水管,而且做了二次排水,有效防止漏水。
缺点:
1) 防水处理会比较麻烦,装修费用较高。
2) 如果出现漏水,维修会非常麻烦,所以对施工要求很高。
二、下沉式卫生间的处理方法:
1.回填式施工工艺
1) 防水
下沉式卫生间要做两遍防水涂料,而且要连着墙面一起做,墙面的防水高度要高出原水平地面40cm以上,保证上层渗水不会往周边扩,地漏也要做的稍微低一些,避免造成排水不畅,从而产生异味。

2) 砌砖保护管道
红砖或混泥土做隔断架空,把沉箱分成若干个40cm*40cm左右的格子,有了这样一个承重的隔断,上面的混泥土层就不会往下坠了。

3) 回填
回填陶粒或者煤灰渣,不用压得太紧,自然一点,因为它是不承重的,只起吸收水气的作用。回填的材料一定要好,这一块是花钱较多的地方。

也有人为了省事,采用建筑垃圾回填,其存在以下缺点:
(1)建筑垃圾为重质物,正常情况下未吸水前每立方米在2吨左右,吸水后将达到每立方米近3吨重。由于底板常年超负荷承重,可能导致底板开裂而产生渗漏。
(2) 建筑垃圾是一种不规则性的物质,有无数个尖刺,一旦倒入沉箱需整平夯实。如不整平夯实、时间长回填材料就会下沉、就会导致上面瓷砖开裂。如一旦夯实,只要有一个尖刺刺破防水层,这个沉箱的防水就等于归零。
(3) 建筑垃圾是松散物,只要卫生间在施工中一个环节失误,就会导致整个沉箱积水。也就是说:不管是瓷砖缝隙渗下、还是墙壁结合缝隙漏水、以及沉箱内水管渗漏都会导致积水,积水沉淀时间长就会产生难闻异味,而异味会顺着表面裂缝散发出来,导致卫生间产生异味而影响居住品质。
4) 布置钢筋
回填完成后,在格子上方布上一层20cm*20cm见方钢筋网,保证混凝土层的牢固和受力均匀,这个钢筋的质量一定要好。
如果防水和回填没做好,地面就会逐渐下沉,防水层有裂缝,水会积在回填层,久而久之整个回填层都会充满水,当下层的防水层不能承载时,大量的积水就会涌出,所以还需要在地面做一个泄水坡。

5) 倒制混凝土层
40毫米厚度的C25细石混凝土找平。此层要做泻水坡,做两遍防水涂料,连墙体一起做,防水层干了之后,要刷一遍素水泥浆保护它,以免铺地砖和贴瓷片时刮伤。保护层干了之后才能上人和做下一步的瓷砖铺贴工作。

2.架空施工工艺
架空,顾名思义,就是不往里填充材料,直接做一个二次排水,之后垫上水泥板。

采用架空的好处就是,可以减轻卫生间的承载力,也方便维修,而且这种做法是比较经济的。选择架空的方式装修,底部的防水必须做好,否则一旦发生地面渗水或者管道漏水,架空层就成了水箱。

▲架空原理图无论是回填还是架空,防水很重要,二次排水一定要做!这是不可以商量的。

如上图画红圈的位置,二次排水也就是相当于又多做了一个隐形地漏。
如果不做二次排水,一旦出现漏水,会使得沉箱积水,长期下去会损坏水管和地面,造成渗透漏水,维修起来也十分麻烦。

▲回填施工的二次排水(隐形地漏)结构示意图。

▲架空施工的二次排水(隐形地漏)结构示意图。这是二次排水的原理图,如果上层架空层发生漏水,水就可以通过下层的地漏排往二次排水管。
三、回填宝施工工艺
目前网上介绍还有一种回填宝施工工艺,即在卫生间下水管布置好,第一遍防水完成后,直接在沉箱内浇注回填宝,回填宝是一种新型的回填材料,原理是发泡水泥,充满气体的水泥在自然干后拥有水泥的所有特性,但是由于充满气孔,质量更轻。其优点主要有:



1、防水性:回填宝吸水率极低,相对独立的封闭气泡及良好的整体性,使其具有优异的防水性能。右边为回填宝的防水效果。
2、整体性:回填宝采用整体浇筑施工,与主体工程结合紧密,沉箱底无需做二次排水孔,解决沉箱二次排水孔容易堵塞的问题。
3、流动性: 回填宝未成型之前具有超前的流动性,解决了卫生间沉箱防水层施工无法到达的各个死角,真正的自流平施工。因此,回填宝还兼具找平的作用,可以降低工程成本。
4、耐久性:与主体工程寿命相同,耐久性优异。
5、抗压性:现场整体浇筑,里外如一,不收缩,不下沉。
6、轻质性:成型后每立方米重量只有300-350KG,能够有效减轻沉箱底板的承重。
7、环保性:施工主成型材料是水泥,不含苯、甲醛等有害物质。
8、便利性:在填充过程中施工方便,2小时快速成型。
从上面介绍,回填宝施工工艺优点很多,但是在市面上没有见到过这种施工工艺,可能是造价比较高吧!


装修水深——瓷砖背胶篇
随着瓷砖的到位,我家装修就将进入瓷砖铺贴阶段!瓦工师傅和项目经理就开始催我赶快买地砖上墙用的背胶!
昨天下午我就开始了瓷砖背胶的购物之旅!这让我深深的觉得装修市场的水之深!
首先是背胶用量问题,根据背胶说明和瓷砖商家的说明,一桶5KG的背胶约可以刷60-70平方。我家的地砖上墙的应该只有二楼的次卫生间、干区和厨房,一共46平方,如果将墙和砖一起计算,也就91平方,需要二桶背胶就足够了,但是项目经理告诉我需要3桶5KG的。
为此我询问项目经理为什么?回答说工人用量偏大,正常一桶只能刷40平方左右!
我又询问了瓦工,回答说现场的瓷砖不行,很多不吸水,为了保险起见,卫生间都要刷背胶!但是在送货单上金牌亚洲注明了哪些需要背胶的!
项目经理告诉我,使用背胶多一道工序,瓷砖铺贴更麻烦,所以多使用背胶,虽然是主家多付出了金钱,其实工人没有得利,主要是保证墙面瓷砖铺贴的牢固!
其次是背胶的品牌问题,项目经理告诉我,建议我选择楼邦的背胶,我问为什么?说其在市场上使用时间较长,他们一直使用楼邦,对此品质比较认可,其他的品牌没怎么用过,不知道质量好不好!
我经过市场了解,发现其实背胶的品牌很多,有的品牌知名度还是很高的,可能他们不是主打背胶的,但是对于这种技术含量并不大的产品,这些大品牌应该都没有问题!
但是,由于一般的瓦工都推荐使用楼邦,在市场上其价格就偏高,其中有多少品牌溢价就不好说了!
最后是背胶的价格问题,跑家装市场往往是在不同品牌之间比较,除了价格还要考虑产品的品质问题,今天在跑背胶市场时发现,同一产品价格相差却很大(最高达40%),询问价格最高的商家,是否价格低的那些产品不是真的?告之也不是,至少看不出来是否是假货!
在产品一致的情况下,客户肯定是选择价格最低的,但是那价格最高了商家又是怎么能够生存的呢?我不明白!
楼邦背胶:








德高背胶:



雨虹背胶:


其他背胶:


经过比较我选择了一家价格最便宜的楼邦4代的背胶,17:30送到房子里,瓦工还在,检查了一下,发现是正品,不过发现少了刷背胶支撑瓷砖的架子,立即去了店里,商家信誉比较好,没有推诿,承认没有发现,以为在桶里面,在店里找了两袋给我!这样瓦工施工条件就具备了!







瓦工施工——刷背胶
小区规定周末不能有噪音的装修施工,所以瓦工肖师傅就利用周末时间将家中地砖上墙的进行了刷背胶工作!
幸亏我昨天晚上将背胶、瓷砖支撑等材料都送到了现场,没有耽误今天的施工。
下午到房子里时肖师傅已经将厨房上墙的瓷砖背胶刷完了!开始进行墙面的刷胶工作。










刷完背胶的瓷砖背面用手试按一下,很上粘手!很明显在墙砖铺贴上就更加牢固了!
厨房的墙面不是全部刷背胶,做过防水和墙面开过槽不平整的地方都要刷背胶,其实就是一句话,瓷砖铺贴容易脱落的地方刷上背胶后,提高了粘贴力,不容易脱落!
瓷砖背胶
是由优质高分子聚合物乳液材料与无机硅酸盐复合的产品,瓷砖背胶可与多种粘结材料复合使用,形成瓷砖 粘贴体系,大幅度提高瓷砖与基层的粘贴力,瓷砖背胶在标准混凝土板和釉面砖上有良好表现,安全性能大幅度提高。专门应用于湿贴玻化砖的背面处理,有效提高玻化砖与粘结材料之间的粘结强度,解决玻化砖湿贴中常见的空鼓、脱落问题。也适用于低吸水率、质地致密、表面光滑的石材及其他砖材的背面处理。
施工工艺技术
1、基面清理
在涂刷前将玻化砖背面用湿布擦拭干净,去除饰面砖材背面的油污、防护剂、脱模剂等影响粘结的物质。
2、材料和工具的准备
准备好瓷砖背胶。将瓷砖背胶粘合剂搅拌成均匀。
可采用刷涂或滚涂的方法。用毛刷、滚筒将拌均的背胶均匀涂刷在饰面砖材的背面 ,建议采用"十字交叉法"均匀地涂刷一层,避免漏涂露底。
待5小时以上,背胶完全干固后方可进行下道施工工序。
瓷砖背胶注意事项
施工期间及完工一天之内,基层及环境温度应在5~35℃,刚施工好的材料一天之应避免淋水。
背胶不得加水稀释及掺加其它任何物剂,拌好的材料应在规定时间内用完,超时不得再拌混使用。
施工完毕后,应做好养护及保护工作,防止污染、碰撞及损坏。
如遇眼部接触本产品应及时就医处理。
本品应存放于阴凉干燥的环境内,避免潮湿、雨淋。
贮存温度5~40℃,贮存期约为6个月。
今天在0511装友群中有一个装友问是否墙面都要用背胶!严格来说卫生间和厨房墙面是湿贴,地砖的含瓷率高,且比较厚重,地砖上墙肯定需要刷背胶处理。而如果使用瓷片,大部分瓷片吸水率高,只要充分泡水后,铺贴是没有问题的,但是现在有不少的瓷片吸水率较低,此时也需要背胶处理。
瓷砖吸水率多少算合格?
根据最新修订的《陶瓷砖》(GB/T 4100-2015)标准,陶瓷砖按吸水率可分为:
瓷质砖(吸水率E≤0.5%)、
炻瓷砖(吸水率0.5%≤E≤3%)
炻质砖(吸水率6%≤E≤10%)
陶质砖(吸水率为10%以上)
可以看出,瓷砖并没有统一的吸水率标准。不同产品因适用空间不同,标准也有所差异。一般而言,地砖大多为瓷质或炻瓷质,国家通用标准为3%≥地砖吸水率≥0.5%属于合格;墙砖一般为细炻质、炻质砖或陶质砖,国家通用标准:12%≥墙砖吸水率≥3%属于合格。
哪些空间对吸水率要求更高?
卫生间、淋浴间、厨房、阳台等湿度大、易脏污、需要经常清洗的空间,一般建议选择吸水率相对较低的瓷砖。
卫生间长时间处于潮湿状态,容易残留水渍,如果瓷砖吸水率过高,容易出现变色、霉点、空鼓等情况。厨房由于受到油烟侵扰,墙砖要抗油污、耐擦洗,同样要考虑吸水率低的瓷砖。
购买时可以查看瓷砖外包装上的相关说明,了解产品吸水率。也可以做一个简单的吸水率测试:将水滴于陶瓷砖的背面,观察水的扩散情况,扩散较快的砖吸水率较大,反之吸水率较小。
低吸水率瓷砖铺贴时要注意什么?
铺贴前,陶质砖一般需要进行泡水处理,如果吸水率在0.5%以下,铺贴前不泡水也影响不大。对于过低吸水率的瓷砖产品,应该选择粘贴强度更高的辅料。瓦工在铺贴低吸水率的瓷砖时,一定要预先了解粘贴辅料的粘贴强度,以免出现由非瓷砖质量问题导致的状况。
瓷砖铺贴现场交底——确保万无一失
昨天和金牌亚洲张总约好了今天下午到现场和瓦工师傅进行瓷砖铺贴前的交底,确保瓷砖铺贴万无一失。
15:00我正在看瓦工肖师傅刷背胶工作时,金牌亚洲炮哥如约来到现场,首先将昨天答应的瓷砖铺贴调平器带了过来,一共有两种,一种是放在地面上的一次性,还有一种是墙面上使用的,可以重复使用。
炮哥介绍金牌亚洲的砖比较平,正常不需要调平器,地面调平器,会给后期美缝带来问题;墙面调平器由于底部是金属的,容易损坏瓷砖。






接着炮哥就送过来的瓷砖铺贴的图纸,现场和瓦工肖师傅进行了讲解和沟通。






为了让肖师傅明确阳光房地板砖铺贴的方法和注意事项,炮哥将瓷砖现场进行试摆放,确保肖师傅明白铺贴的方法。



在讲解中发现金牌亚洲已经将很多能够预见到的加工砖都加工好了,这大大的方便了瓷砖的铺贴,受到肖师傅的大力赞扬。如:二楼次卫的地墙上墙的400*800砖,地面400*400的砖;有的阳角和阴角的45°倒角都已经处理好了。



我家的厨房和阳台都不使用过门石,准备通铺过去,肖师傅提出通铺存在一个问题,即在厨房和阳台门套处的那块砖,需要加工一个凹槽,在现场加工,会容易造成瓷砖的瓷面损坏,有一定的难度!

炮哥立即表示在铺贴时厨房和阳台门套处的那块砖暂时不要铺贴,由他们将瓷砖带到店里用水刀切割,就不会造成瓷砖损坏了!
对于金牌亚洲这种一切围绕客户,服务客户的态度和精神点赞!
开拓视野,拥抱阳光——轩尼斯阳光房方案确定
随着瓦工的进场,我家露台的阳光房方案就摆上了日程!在露台铺砖时必须确定方案。
首先,对于露台的功能需求上,我不需要增加使用面积,所以不会去像好多邻居一样将其浇筑起来做房间。
同时,我买了顶楼,就是想能够充分的拥抱阳光,呼吸新鲜空气,所以我不准备将露台完全封起来做阳光房!只想做一半阳光房,下雨或者冬日里可以坐在里面看书、听音乐(我在露台设置了背景音乐),另一半露天的可以徜徉在天地间,沐浴在阳光下!
其次,我当时买房,同样的面积、同样的结构,房价比前面一幢的多了20万!原因是我家北临长江,可以看江!号称江景房!因此在装修设计时我要充分的发挥这江景!所以我希望将露台做为一个放松、休闲的地方!
所以我除了一半做阳光房,另一半准备做成露天花园一样的形式,地面铺防腐木,放一张桌子几把椅子,可以呼朋唤友的进行露天烧烤。

基本思路确定了,下面就是阳光房形式的确定!
本来我准备做一个传统的阳光房(北面玻璃墙,东面玻璃墙上开一个小门),但是在水电施工时,阳光房的水管布置的问题(水管必须放在阳光房内),使得我的阳光房扩大了(长3.8米,宽3.3米),超过了露台的一半,这就意味着露天的花园变小了(长3.8米,宽2.6米)!



露天花园更能体现休闲状态!如何扩大露天花园呢?好像不可能了!
有一次去红星轩尼斯门窗店时,看到其店里的一个阳光房样品的折叠门,让我眼前豁然开朗,传统的一半阳光房布置,将露台分割成了室内和室外两个部分,两个区域!功能上不能融合,要么在室内活动,要么在室外休闲。




我家露台面积并不大(长3.8米,宽5.9米),当将其分割成室内、外两部分时,这会使得这两个部分都不大,不能同时有效利用。
将阳光房和露天花园隔离的这堵玻璃墙(东面墙)的小门扩大,做成折叠门,当我在露台上面休闲时,可以将折叠门完全打开,这样墙就没有了!室内与室外的分隔没有了,整个露台形成了一体,扩大的整个休闲的区域!当室外下雨、下雪,不方便待的时候,将折叠门关闭,这样阳光房又形成一个封闭的区域。





此阳光房方案,即满足了阳光房使用的常规功能,同时最大化的满足我休闲的需求!立即方案受到夫人的赞扬!
只是此方案也存在一定的问题:
通风不畅问题,由于东面墙是折叠门,不能设置窗户,当折叠门关闭做传统阳光房时,只有北面墙上有窗户,通风性能下降(需要通过室内房间通风)。我询问可否有折叠门做窗户,本来折叠门的强度就不如玻璃墙,不可能在上面开窗户的。
夏天的蚊虫问题,传统的阳光房,我的窗户上都有金钢网,可以有效的隔绝蚊虫,但是当我东面的玻璃墙改为折叠门后,平时折叠门是打开的,这样窗户上的金钢网就没有用了,蚊虫会进入房子里,这样我房间出露台的这个移门我就要装一扇金钢纱网。
任何一种方案很难做到十全十美的,只要抓住主要环节即可!折叠门最大化的满足了我对露台休闲作用的追求!









































































































