感谢企屋设计发箍男杨涛及其团队~and 欧家地板老王和我乐橱柜的胡总 再and恒信华典家具的薇薇姐
【小区名称】:朴园上观
【所在楼层】:8楼
【建筑面积】:151
【装修风格】:新中式混搭
【包工方式】:半包
【装修公司】:企屋设计
【软装搭配】:企屋陈设 黎伟蜜
【摄影师】:李大伟 闪卓摄影工作室
【完工日期】:2013年12月
历经春夏秋冬懒散的我终于出来贴毕业照了。
我们这一代的成长历程似乎正好符合前段时间ccav力推的改革开放三十年主题,住房经历了各种风格此起彼伏的时段,从家徒四壁到木头上墙恨不能包满全部墙壁再到轻装修重装饰以及世界各地风格的个性化时代。
作为一个过了而立之年的宅男的我在扒拉完各种风格之后貌似有点文化回归的意思还是倾向于偏中式淡雅一些的调调,在我到处游荡做装修前心理建设的时候遇到了企屋设计的发箍男同志。
本质上这厮跳跃的性子和我想要的效果似乎有点矛盾,作为设计师可能更倾向于能接更个性化展示自己思想的装修案例,好在我也不是要一个纯中式的家。
参观了他的几个作品和深入沟通后发现发箍还是个很有想法的人于是正式搭手,最后的结果我还是满意的,各种风格我喜欢的一些东西都揉进去了。
而经过这次装修我认识到发箍是难得在这个商业社会有底线想做好事情的人,这就很不容易了。
好了大家是来看毕业照的不是来听我废话的开始上图:
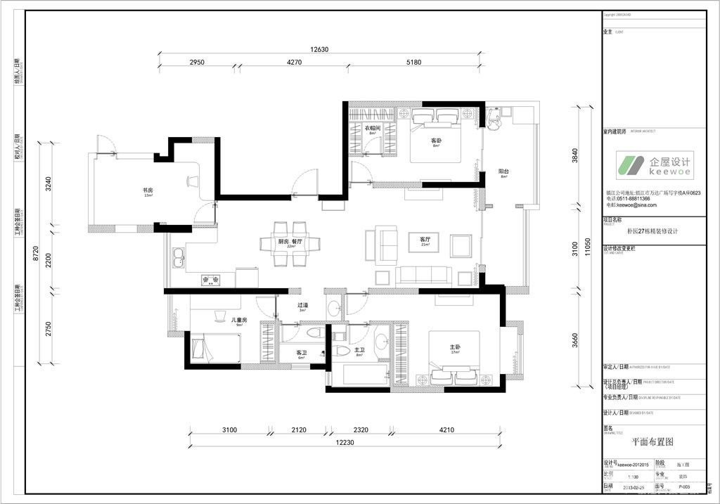
惯例回顾一下户型图及效果图
【户型图】


【效果图】
下面是发箍拍摄的毕业照(私以为有些部分遗失鸟 回头我补上)

客厅全景 由近致远分别是客厅 餐厅 厨房 ,现代中式的家具+似乎是古典日系偏爱的木线条以及有点美系调调的吊灯(客厅顶部类似麻布编制出来的墙纸),中间点缀了一些偏现代的装饰品。

这样的客厅让我有更多驻留的理由,有利于改变我进门就往书房钻的坏习惯。泡一杯茶和家人一起看看新闻联播啥的 ~哈哈


主卧的2个视角 整体的感觉还是满足了我素雅稳重的要求~可惜我的小米电视还未抢到……其实晚上和老婆躺床上看看电视说说闲话也是挺好的事情
虽然女人嘛总是有点唠叨的。梳妆台是我力争购入的,老婆跟我这么多年没有自己的梳妆台一直素面朝天,乘还年轻找个臭美的理由吧。


主卫发箍给我弄了个大镜子 线框我觉得有点浅了 被发箍鄙视土鳖~台盆柜和浴缸之间砌了一堵薄墙很好的避免了卫生死角,我喜欢,对于懒散的我是个福音。
墙砖的对称贴法我喜欢,无比痛恨的小边条在我家基本没有出现。浴缸是我提出来必须要的,个人不喜欢去浴室,喜欢疲惫的时候在自己家泡澡然后淡定的爬上床的感觉。


次卧是留给爸妈用的,床是老房子搬过来的他们一直用的,风格似乎有点不搭 但是好歹也是实木虽然不是啥好木头,恋旧节约是他们的一贯风格。
正反设置的衣帽间很实用 爸妈表示很满意。窗帘的造价是家里所有窗帘中最贵的,但是谁让我当时一眼就看中觉得适合呢。墙上的画实际上是和
餐厅那四幅是一个组合 我一分为二 解决了2个地方的挂画,老妈说挂什么画打扫卫生还麻烦……汗~。主卧和次卧的裂纹釉台灯是一套 一大一小,次卧的床稍小一些所以其中细巧的一个放在了次卧。

上观的次卫很小于是做了干湿分离,依然觉得小所以次卫里面用了浴帘,主要还是为了让空间不要过于拥挤。发箍吝啬的只给了干区照片 浴帘还算是漏一小脸,姑娘房的小碎花窗帘也在镜子中出没了。
镜子被发箍说买小了~ 我觉得还行 留点余地。次卫的所有卫浴都是仿古铜的,价格也不贵 作为自己家和来客人使用还是蛮适合装一下豪华感的。


来到了榻榻米和书房区域,户型的最大变化就是我把厨房移位腾出了这个榻榻米+书房的空间,姑娘房间很小,虽然也摆放了书桌但是孩子需要一个大的空间活动,
因为还没搬家,榻榻米前面踏步上有点空哪里是留给姑娘摆放她的古筝的地方。而我虽然不是很好学但是杂书还是有一些的,目测书架上可能有点不够摆放以后搬家
多余的书可能要扔榻榻米下面去了(榻榻米下全是箱体)。日式纸门后面是上观的第二入户门 特意做了纸门挡起来 否则风格太诡异了。

厨房全景,选了高分子面板 光面+木纹底色的,家里的家具本身就是实木偏深色厚重,厨房还是淡一点 看着舒服些(同时也是节约成本 实木伤不起)。
宜家的碗碟篮以及磨砂质感的碗我很喜欢。考虑到排烟进烟道的问题用了集成灶,为了以防效率不够厨房的集成吊顶增加了一个排风扇以防万一。
白鸟的水槽是请我乐的胡总帮忙拿的,这些年的使用习惯还是觉得大单槽的实用。抽拉龙头受限于预算及耐用性的考虑没有选用。
热水器选了16L超静音的,不用再被热水器点火的声音吓一跳了。
下面是一些小品大家随便看看






亮骚的台灯,让沉闷的家亮起来~
以上就是全部照片了,细心的朋友可能发现了姑娘房没有出镜,闺房嘛总是留点神秘的,嘿嘿。之前的照片 现代简约、现代中式、日式、美式都有隐约的出现,姑
娘房间是我在网上看了照片找家具厂定做的家具一水白算是白色小美?由于装饰等还没到位就没有拍,后期再补上吧~(部分照片在主贴已有)
持续了大半年的装修算是告一段落,目前就差三个电视以及部分小物件,和发箍认识也一年左右了,整个装修过程还是愉快的,在发箍 项目经理老桑 和我自己的努
力下没有出现重大问题,小问题小遗憾还是有的,总结一下小心得:
1、 预算框死 主次分清 砸钱砸在自己喜欢和必要的地方
2、 初期结构多考虑细节多用心,自己的家怎么用的舒服只有自己知道不能盲目追求效果,毕竟房子是用来住的,下定决心就不轻易再动。
3、 找设计师花设计费就要用起来,在纯美观高花费和实用性价比之间找平衡,多沟通多协调,疑人不用 用人不疑,网购千万不要忘。
4、 装修和做任何事一样 投入时间精力都会给你回报,所以小本子记起来 小腿动起来 脑筋转起来。
更多细节照片请看主贴,毕竟还没正式入住,以后使用反馈还放在主贴继续更新。
主贴地址请猛击: http://bbs.my0511.com/f95b-t4162389z-1-2
btw 突然发现开工日期是3.9号今天正好是12.9号 完整的收尾 哇哈哈
[ 本帖最后由 风隐雨疏 于 13-12-10 08:10 编辑 ]






















