收藏本站
客户端
扫码下载客户端
官方微信
打开微信扫一扫
登录
|
注册
|
标题
标题
用户
全站首页
|
论坛导航
|
网络问政
|
招聘求职
|
买房租房
|
装修频道
|
生活服务
|
教育
|
相亲
|
亲子
|
美食
|
婚嫁
|
手机客户端
家有学子
|
母婴乐园
快捷导航
精彩推荐:
MY0511客户端下载
中信银行镇江分行
公益体彩 乐善人生
鹏龙鸿蒙
天然石材·人造石
»
梦溪论坛
»
家庭装修
» 淘宝的温“馨”小家(毕业照已拍)
家庭装修
>
[装修日记]
淘宝的温“馨”小家(毕业照已拍)
查看: 229516 回复: 254
快速回复
返回家庭装修
255
1/6
1
2
3
4
5
6
>
[装修日记]
淘宝的温“馨”小家(毕业照已拍)
查看: 229516 回复: 254
上一主题
|
下一主题
念雪
来自 江苏省
精华
6
注册 2013-7-20
行业 其它
淘宝的温“馨”小家(毕业照已拍)
此帖已成功报名
2016家装日记大赛
。
更多家装信息关注
MY0511家装频道
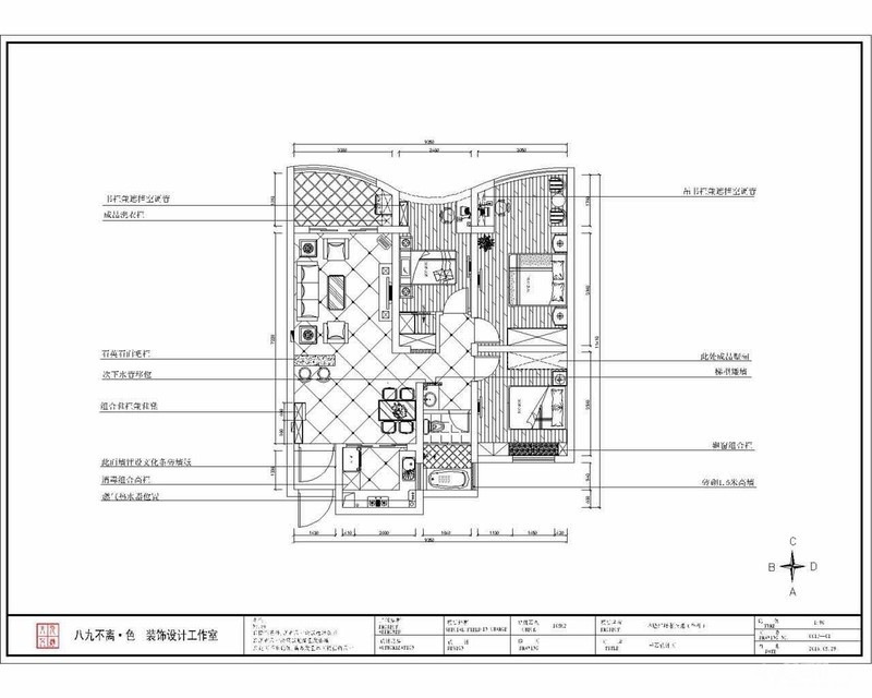
【小区名称】:永隆城市广场馨景苑
【所在楼层】:20
【建筑面积】:108
【装修风格】:简美小清新
【包工方式】:半包
【装修公司】:八九不离·色
【开工日期】:2016年6月8日
【装修预算】:15w
【户型图片】:
毕业照链接:
http://bbs.my0511.com/f95b-t6257500z-1-2#pid96787855
[
本帖最后由 my0511菲雪 于 17-2-13 14:03 编辑
]
---发自iPhone 6S---
已有 伊慕装饰
1
人打赏
2016-6-7 11:52
1楼
MY0511相亲,一分钟注册,享一辈子幸福!
只看该作者
分享本楼
念雪
来自 江苏省
精华
6
注册 2013-7-20
行业 其它
14年8月买的房,等了盼了两年,终于,2016年的5月28日拿房了!
---发自iPhone 6S---
2016-6-7 11:55
2楼
[联宇电脑] 电脑组装\维修\升级\企业单位电脑维护!
只看该作者
分享本楼
念雪
来自 江苏省
精华
6
注册 2013-7-20
行业 其它
5月29日,拿房的第二天就带着设计师去量房了!
---发自iPhone 6S---
2016-6-7 11:56
3楼
买房、卖房、租房上镇江房产网!
只看该作者
分享本楼
念雪
来自 江苏省
精华
6
注册 2013-7-20
行业 其它
量房4天后,设计师准时给出了平面图,经过小改后敲定平面图。就等明天开工啦!
---发自iPhone 6S---
2016-6-7 11:59
4楼
找工作,就上MY0511!
只看该作者
分享本楼
念雪
来自 江苏省
精华
6
注册 2013-7-20
行业 其它
六一儿童节,淘宝和他的座驾。
---发自iPhone 6S---
2016-6-7 12:09
5楼
0511家装频道:本地家居服务平台,数万业主共同选择
只看该作者
分享本楼
子非鱼丶诚
来自 江苏省
精华 0
注册 2016-1-4
恭喜开贴
---发自梦溪论坛手机客户端---
2016-6-7 12:20
6楼
MY0511相亲,一分钟注册,享一辈子幸福!
只看该作者
分享本楼
念雪
来自 江苏省
精华
6
注册 2013-7-20
行业 其它
QUOTE:
原帖由
子非鱼丶诚
于 16-6-7 12:20 发表
恭喜开贴
谢谢!
---发自iPhone 6S---
2016-6-7 12:21
7楼
找工作,就上MY0511!
只看该作者
分享本楼
lodencecne
来自 江苏省
精华 0
注册 2014-7-24
看了标题很好奇,看了觉得标题党害死人啊,楼主家孩子名字起的够时尚,误会成*宝了
---发自梦溪论坛手机客户端---
2016-6-7 12:50
8楼
0511家装频道:本地家居服务平台,数万业主共同选择
只看该作者
分享本楼
念雪
来自 江苏省
精华
6
注册 2013-7-20
行业 其它
QUOTE:
原帖由
lodencecne
于 16-6-7 12:50 发表
看了标题很好奇,看了觉得标题党害死人啊,楼主家孩子名字起的够时尚,误会成*宝了
就知道会有人一开始会以为是那个淘宝~
---发自iPhone 6S---
2016-6-7 13:02
9楼
找工作,就上MY0511!
只看该作者
分享本楼
大唐合盛瓷砖
来自 江苏省
精华 0
注册 2014-8-14
行业 商业贸易
宝宝的车车不错
---发自iPhone 6 Plus---
2016-6-7 13:16
10楼
买房、卖房、租房上镇江房产网!
只看该作者
分享本楼
念雪
来自 江苏省
精华
6
注册 2013-7-20
行业 其它
QUOTE:
原帖由
大唐合盛瓷砖
于 16-6-7 13:16 发表
宝宝的车车不错
---发自iPhone 6S---
2016-6-7 13:43
11楼
[联宇电脑] 电脑组装\维修\升级\企业单位电脑维护!
只看该作者
分享本楼
叶叶叶叶叶绿素
来自 江苏省
精华 0
注册 2015-11-15
一个小区的楼主加油
---发自iPhone 6S---
2016-6-7 15:28
12楼
买房、卖房、租房上镇江房产网!
只看该作者
分享本楼
念雪
来自 江苏省
精华
6
注册 2013-7-20
行业 其它
QUOTE:
原帖由
叶叶叶叶叶绿素
于 16-6-7 15:28 发表
一个小区的楼主加油
谢谢邻居~
---发自iPhone 6S---
2016-6-7 15:30
13楼
MY0511相亲,一分钟注册,享一辈子幸福!
只看该作者
分享本楼
yanglei79
VIP
来自 江苏省
精华
10
注册 2003-2-25
行业 其它
最近永隆开帖的不少,恭喜
2016-6-7 15:32
14楼
[联宇电脑] 电脑组装\维修\升级\企业单位电脑维护!
只看该作者
分享本楼
念雪
来自 江苏省
精华
6
注册 2013-7-20
行业 其它
QUOTE:
原帖由
yanglei79
于 16-6-7 15:32 发表
最近永隆开帖的不少,恭喜
谢谢~
---发自iPhone 6S---
2016-6-7 15:46
15楼
MY0511相亲,一分钟注册,享一辈子幸福!
只看该作者
分享本楼
念雪
来自 江苏省
精华
6
注册 2013-7-20
行业 其它
QUOTE:
原帖由
yanglei79
于 16-6-7 15:32 发表
最近永隆开帖的不少,恭喜
最近刚交房,所以永隆装修的人多了~
---发自iPhone 6S---
2016-6-7 15:47
16楼
0511家装频道:本地家居服务平台,数万业主共同选择
只看该作者
分享本楼
唯美瘦身馆
来自 江苏省
精华 0
注册 2015-3-21
他家停车收费吗
---发自梦溪论坛手机客户端---
2016-6-7 18:23
17楼
[联宇电脑] 电脑组装\维修\升级\企业单位电脑维护!
只看该作者
分享本楼
王老师90
来自 江苏省
精华 0
注册 2016-6-7
恭喜开贴
---发自梦溪论坛手机客户端---
2016-6-7 18:47
18楼
MY0511相亲,一分钟注册,享一辈子幸福!
只看该作者
分享本楼
不给糖就闹
来自 上海
精华 0
注册 2016-5-22
恭喜楼主开贴
---发自iPhone 6S Plus---
2016-6-7 19:07
19楼
[联宇电脑] 电脑组装\维修\升级\企业单位电脑维护!
只看该作者
分享本楼
念雪
来自 江苏省
精华
6
注册 2013-7-20
行业 其它
QUOTE:
原帖由
王老师90
于 16-6-7 18:47 发表
恭喜开贴
谢谢~
---发自iPhone 6S---
2016-6-7 20:04
20楼
找工作,就上MY0511!
只看该作者
分享本楼
念雪
来自 江苏省
精华
6
注册 2013-7-20
行业 其它
QUOTE:
原帖由
不给糖就闹
于 16-6-7 19:07 发表
恭喜楼主开贴
谢谢~
---发自iPhone 6S---
2016-6-7 20:04
21楼
MY0511相亲,一分钟注册,享一辈子幸福!
只看该作者
分享本楼
念雪
来自 江苏省
精华
6
注册 2013-7-20
行业 其它
QUOTE:
原帖由
唯美瘦身馆
于 16-6-7 18:23 发表
他家停车收费吗
哪家?
---发自iPhone 6S---
2016-6-7 20:04
22楼
找工作,就上MY0511!
只看该作者
分享本楼
小黑豹
来自 江苏省
精华 0
注册 2016-5-4
看着小区环境不错。
---发自iPhone 6---
2016-6-7 20:33
23楼
MY0511相亲,一分钟注册,享一辈子幸福!
只看该作者
分享本楼
念雪
来自 江苏省
精华
6
注册 2013-7-20
行业 其它
QUOTE:
原帖由
小黑豹
于 16-6-7 20:33 发表
看着小区环境不错。
是的,绿化面积很大,环境很美~
---发自iPhone 6S---
2016-6-7 21:09
24楼
MY0511相亲,一分钟注册,享一辈子幸福!
只看该作者
分享本楼
念雪
来自 江苏省
精华
6
注册 2013-7-20
行业 其它
2016年6月8日8点58分,吉时吉日,开工啦!~
---发自iPhone 6S---
2016-6-8 11:01
25楼
找工作,就上MY0511!
只看该作者
分享本楼
pisces113
来自 江苏省
精华 0
注册 2015-8-15
行业 其它
恭喜开贴~~
2016-6-8 15:20
26楼
MY0511相亲,一分钟注册,享一辈子幸福!
只看该作者
分享本楼
念雪
来自 江苏省
精华
6
注册 2013-7-20
行业 其它
敲墙结束了,垃圾也清理干净了。效率真高。明天水电开槽啦。
---发自iPhone 6S---
2016-6-11 09:58
27楼
找工作,就上MY0511!
只看该作者
分享本楼
sougous
来自 江苏省
精华 0
注册 2016-4-18
恭喜开帖
---发自梦溪论坛手机客户端---
2016-6-11 10:21
28楼
MY0511相亲,一分钟注册,享一辈子幸福!
只看该作者
分享本楼
念雪
来自 江苏省
精华
6
注册 2013-7-20
行业 其它
主材清单:
地板:上臣地板(亿都)
瓷砖:陶师傅(金桥)
热水器:林内
油烟机:华帝
浴缸:古德
木门:上臣(亿都)
抽水马桶:法恩莎
嵌入式烤箱:美的
[
本帖最后由 念雪 于 16-12-22 14:54 编辑
]
---发自iPhone 6S---
2016-6-14 10:11
29楼
[联宇电脑] 电脑组装\维修\升级\企业单位电脑维护!
只看该作者
分享本楼
念雪
来自 江苏省
精华
6
注册 2013-7-20
行业 其它
千呼万唤始出来的效果图!太美了好么!找到这样让人省心又满意的设计师真的是太幸运了好么!~
---发自iPhone 6S---
2016-6-14 14:20
30楼
MY0511相亲,一分钟注册,享一辈子幸福!
只看该作者
分享本楼
冬日的阳光
来自 江苏省
精华 0
注册 2008-9-27
行业 其它
太漂亮了
如果再装修一定也装这种田园小清新风格
2016-6-15 22:20
31楼
[联宇电脑] 电脑组装\维修\升级\企业单位电脑维护!
只看该作者
分享本楼
念雪
来自 江苏省
精华
6
注册 2013-7-20
行业 其它
QUOTE:
原帖由
冬日的阳光
于 16-6-15 22:20 发表
太漂亮了
如果再装修一定也装这种田园小清新风格
美式田园小清新是近两年的流行风~
---发自iPhone 6S---
2016-6-16 08:54
32楼
找工作,就上MY0511!
只看该作者
分享本楼
木果果
来自 浙江省
精华
2
注册 2010-6-16
行业 教育科研
漂亮!最近非常流行清新小美!
---发自iPhone 6S---
2016-6-16 09:17
33楼
MY0511相亲,一分钟注册,享一辈子幸福!
只看该作者
分享本楼
念雪
来自 江苏省
精华
6
注册 2013-7-20
行业 其它
QUOTE:
原帖由
木果果
于 16-6-16 09:17 发表
漂亮!最近非常流行清新小美!
是的!看你家好像也是这样类似的风格~
---发自iPhone 6S---
2016-6-16 10:55
34楼
找工作,就上MY0511!
只看该作者
分享本楼
念雪
来自 江苏省
精华
6
注册 2013-7-20
行业 其它
开槽结束。今天水电材料进场,后天就可以开始布线了。
---发自iPhone 6S---
2016-6-16 21:32
35楼
0511家装频道:本地家居服务平台,数万业主共同选择
只看该作者
分享本楼
念雪
来自 江苏省
精华
6
注册 2013-7-20
行业 其它
特别喜欢在走廊上看运河带风景,美的不像话。以后每天傍晚可以在楼下运河边散散步坐坐,带着淘宝溜溜弯~
---发自iPhone 6S---
2016-6-16 21:34
36楼
找工作,就上MY0511!
只看该作者
分享本楼
浪里寻花
来自 江苏省
精华
3
注册 2005-10-5
行业 房产建筑
来报个到
我也是经常欣赏这运河美景,饭后一家三口 大手牵小手、小手牵大手散步在如此美景之中是多么的温馨幸福。
2016-6-16 22:28
37楼
买房、卖房、租房上镇江房产网!
只看该作者
分享本楼
念雪
来自 江苏省
精华
6
注册 2013-7-20
行业 其它
QUOTE:
原帖由
浪里寻花
于 16-6-16 22:28 发表
来报个到
我也是经常欣赏这运河美景,饭后一家三口 大手牵小手、小手牵大手散步在如此美景之中是多么的温馨幸福。
设计师终于露面了。
---发自iPhone 6S---
2016-6-17 07:46
38楼
0511家装频道:本地家居服务平台,数万业主共同选择
只看该作者
分享本楼
念雪
来自 江苏省
精华
6
注册 2013-7-20
行业 其它
已经下单的保险箱,浴缸和美的嵌入式烤箱。一直希望厨房能有台嵌入式烤箱,成就我的烘焙之路~
---发自iPhone 6S---
2016-6-17 10:37
39楼
0511家装频道:本地家居服务平台,数万业主共同选择
只看该作者
分享本楼
念雪
来自 江苏省
精华
6
注册 2013-7-20
行业 其它
周四水电就结束了。昨天去拍了点水电验收结束的照片~
---发自iPhone 6S---
2016-6-26 13:06
40楼
[联宇电脑] 电脑组装\维修\升级\企业单位电脑维护!
只看该作者
分享本楼
念雪
来自 江苏省
精华
6
注册 2013-7-20
行业 其它
今天瓦工进场,瓷砖也进场。给部分仿古砖来个特写~
---发自iPhone 6S---
2016-6-26 13:07
41楼
0511家装频道:本地家居服务平台,数万业主共同选择
只看该作者
分享本楼
念雪
来自 江苏省
精华
6
注册 2013-7-20
行业 其它
今天下午带着淘宝参加了体育馆的活动,把壁纸订了~
---发自iPhone 6S---
2016-6-26 19:15
42楼
MY0511相亲,一分钟注册,享一辈子幸福!
只看该作者
分享本楼
潇颦
来自 江苏省
精华
5
注册 2005-6-22
行业 教育科研
哈哈,我也喜欢这个风格,帮顶,同一个装修公司
2016-6-26 20:07
43楼
买房、卖房、租房上镇江房产网!
只看该作者
分享本楼
念雪
来自 江苏省
精华
6
注册 2013-7-20
行业 其它
QUOTE:
原帖由
潇颦
于 16-6-26 20:07 发表
哈哈,我也喜欢这个风格,帮顶,同一个装修公司
当初就是看到你家效果图才知道这家工作室的,然后搜他们家帖子就决定他们家了
---发自iPhone 6S---
2016-6-26 21:00
44楼
[联宇电脑] 电脑组装\维修\升级\企业单位电脑维护!
只看该作者
分享本楼
念雪
来自 江苏省
精华
6
注册 2013-7-20
行业 其它
卫生间的干湿分离砌好了,效果出来了~
---发自iPhone 6S---
2016-6-28 16:58
45楼
买房、卖房、租房上镇江房产网!
只看该作者
分享本楼
念雪
来自 江苏省
精华
6
注册 2013-7-20
行业 其它
两个地漏也到了~
---发自iPhone 6S---
2016-6-28 17:01
46楼
找工作,就上MY0511!
只看该作者
分享本楼
潇颦
来自 江苏省
精华
5
注册 2005-6-22
行业 教育科研
好漂亮的地漏啊
---发自小米2---
2016-6-30 19:42
47楼
[联宇电脑] 电脑组装\维修\升级\企业单位电脑维护!
只看该作者
分享本楼
念雪
来自 江苏省
精华
6
注册 2013-7-20
行业 其它
QUOTE:
原帖由
潇颦
于 16-6-30 19:42 发表
好漂亮的地漏啊
是滴,拿到手之后爱不释手~
---发自iPhone 6S---
2016-7-1 08:32
48楼
0511家装频道:本地家居服务平台,数万业主共同选择
只看该作者
分享本楼
念雪
来自 江苏省
精华
6
注册 2013-7-20
行业 其它
几天没来了,一来就好惊喜。厨房墙砖贴好了!~
---发自iPhone 6S---
2016-7-2 14:45
49楼
[联宇电脑] 电脑组装\维修\升级\企业单位电脑维护!
只看该作者
分享本楼
an415796218
来自 江苏省
精华 0
注册 2016-7-2
90后萌新特来向前辈学习
2016-7-2 16:22
50楼
[联宇电脑] 电脑组装\维修\升级\企业单位电脑维护!
只看该作者
分享本楼
返回家庭装修
255
1/6
1
2
3
4
5
6
>
快速回复主题
游客
您目前还是游客,请
登录
或
注册
您目前是游客,本帖已被系统设置了自动关闭,不可回复!
文明交流,理性发言
0/5000字
<
>
请在打开的新窗口中支付完成打赏
我已完成支付打赏
支付失败重新支付
其他金额
打赏金额:
元
确定
支付打赏
提 现
打赏人
打赏金额(元)
打赏时间
伊慕装饰
1.00
2016-11-28 10:57
Powered by
Discuz! X 2
0.097335 s
清除 Cookies
-
镇江网友之家
-
手机版
论坛导航
关闭
吃喝玩乐
饮食男女
镇江钓友之家
菜菜鸟户外
镇江单车俱乐部
镜头里的镇江
畅游天下
猫狗总动员
视觉Coffeeshop摄影部落
花鸟鱼虫
婚姻.亲子.家庭
家有学子
谈婚论嫁
女性天地
母婴乐园
婚姻生活
梦溪佳缘
装修
家庭装修
装修招标
镇江室内设计师交流
装修商家直通车
你好,镇江!
百姓话题
我要买房
0511爱心家园
市场监管•12315热线
分类信息
生活服务
闲置转让
镇江二手房/镇江租房
镇江招聘求职
教育培训
镇江二手车
商铺厂房写字楼租售
宠物市场
运动健身
卡券交易
电脑维修升级
杂货铺
其他分类信息区
兴趣爱好
HiFi音响江城沙龙
镇江市美术家协会
我爱模型
车友俱乐部
车迷之家
汽车驾培中心
运动俱乐部
镇江市冬泳、铁人三项协会
聚焦足球
镇江羽毛球
镇江乒乓球协会
镇江网球协会
镇江市自行车运动协会
热爱篮球
动力机车
合作栏目
维权热线
天翼时代
色觉影像摄影工作室
站务区
疑问与建议
网络问政
市政府工作部门
垂直管理部门
党群工作部门
其他重点单位
辖市(区)