| 标题
快捷导航

精彩推荐:MY0511客户端下载

    • 中信银行镇江分行

    • 公益体彩 乐善人生

    • 鹏龙鸿蒙

    • 天然石材·人造石

    » 梦溪论坛 » 家庭装修 » 0511一路走来,选定装修公司————上河御府大平层
    家庭装修  >  [装修日记] 0511一路走来,选定装修公司————上河御府大平层     
    查看: 58302  回复: 173
     174  1/4  1  2  3  4  > 
    [装修日记] 0511一路走来,选定装修公司————上河御府大平层      查看: 58302  回复: 173
    • 来自 江苏省
    • 精华 0
    • 注册 2006-4-2
    •  
    0511一路走来,选定装修公司————上河御府大平层

    小区名称上河御府
    【房屋面积】188
    【装修风格】现代美式

    【装修方式半包
    【装修公司前程装饰

    【设计师】陈总监
    【开工日期】2018年6月27日
    【装修预算】40万

    欢迎加入家装官方VIP别墅QQ群 群号:565444352

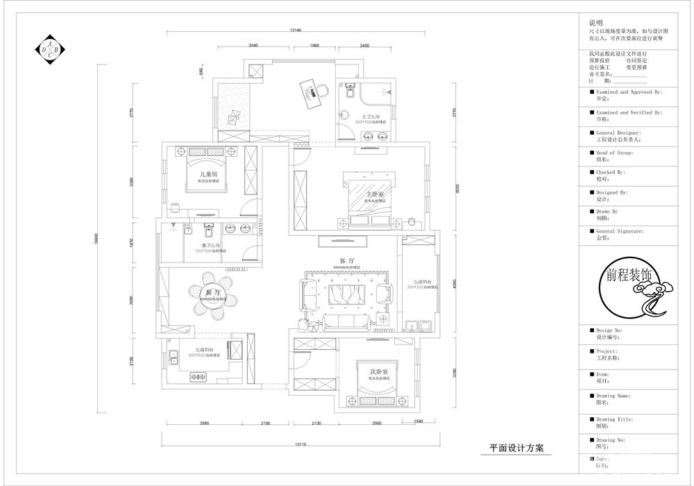
    平面设计图




    [ 本帖最后由 my0511菲雪 于 18-6-28 09:48 编辑 ]





                      
    • 来自 江苏省
    • 精华 0
    • 注册 2006-4-2
    •  

    今天开工了,有点忙,开工图片展示,如何选定装修公司的,下回分解。




    • 来自 江苏省
    • 精华 0
    • 注册 2006-4-2
    •  

    备用




    • 来自 江苏省
    • 精华 0
    • 注册 2006-4-2
    •  

    备用




    • 来自 江苏省
    • 精华 0
    • 注册 2016-10-20
    • 行业 其它
    •  

    恭喜开工




    • 来自 0
    • 精华 0
    • 注册 2009-11-3
    • 行业 房产建筑
    •  

    40万肯定不够




    • 来自 0
    • 精华 0
    • 注册 2014-10-16
    •  

    欢迎新同学




    • 来自 江苏省
    • 精华 0
    • 注册 2017-12-22
    •  

    你这个预算绝对不够




    • 来自 江苏省
    • 精华 0
    • 注册 2018-5-27
    •  

    *** 作者因违反论坛规定,禁言处理,内容自动屏蔽 ***

    详情参阅论坛注册条款:
    http://bbs.my0511.com/f11b-t2789156z


    • 来自 江苏省
    • 精华 0
    • 注册 2018-6-4
    •  

    恭喜楼主开工大吉

    [ 本帖最后由 my0511唐老鸭 于 18-6-27 17:12 编辑 ]




    • 来自 江苏省
    • 精华 0
    • 注册 2018-4-1
    •  

    恭喜恭喜 开工大吉




    • 来自 江苏省
    • 精华 0
    • 注册 2018-6-4
    •  
    • 来自 江苏省
    • 精华 0
    • 注册 2016-8-18
    •  
    • 来自 0
    • 精华 1
    • 注册 2016-12-21
    • 行业 商业贸易
    •  

    恭喜楼主开工大吉,期待分享装修过程祝愿装修顺顺利利




    • 来自 江苏省
    • 精华 0
    • 注册 2006-4-2
    •  

    谢谢楼上的各位




    • 来自 江苏省
    • 精华 53
    • 注册 2016-5-6
    •  

    恭喜开贴




    • 来自 江苏省
    • 精华 0
    • 注册 2014-1-1
    • 行业 房产建筑
    •  

    恭喜楼主开工大吉




    • 来自 江苏省
    • 精华 8
    • 注册 2010-9-13
    • 行业 房产建筑
    •  

    恭喜开贴




    • 来自 江苏省
    • 精华 2
    • 注册 2016-11-17
    •  

    恭喜!开工大吉




    • 来自 江苏省
    • 精华 405
    • 注册 2016-10-30
    • 行业 房产建筑
    •  

    恭喜楼主开工大吉!




    • 来自 0
    • 精华 0
    • 注册 2018-5-3
    • 行业 其它
    •  






    • 来自 江苏省
    • 精华 0
    • 注册 2017-10-8
    • 行业 基础设施
    •  

    恭喜LZ开工大吉




    • 来自 江苏省
    • 精华 0
    • 注册 2016-8-8
    •  

    我家154平米40万都没够呢?你家肯定不够




    • 来自 江苏省
    • 精华 0
    • 注册 2017-7-1
    •  






    • 来自 江苏省
    • 精华 0
    • 注册 2014-7-1
    •  

    恭喜!开工大吉




    • 来自 江苏省
    • 精华 0
    • 注册 2016-6-23
    •  






    • 来自 江苏省
    • 精华 0
    • 注册 2017-5-4
    • 行业 商业贸易
    •  






    • 来自 江苏省
    • 精华 0
    • 注册 2018-4-19
    •  

    恭喜楼主开工大吉,期待分享装修过程祝愿装修顺顺利利




    • 来自 江苏省
    • 精华 4
    • 注册 2010-3-19
    • 行业 房产建筑
    •  

    感谢业主选择我们前程装饰,一起加油,打造精品.




    • 来自 江苏省
    • 精华 0
    • 注册 2017-11-28
    • 行业 商业贸易
    •  






    • 来自 江苏省
    • 精华 0
    • 注册 2006-4-2
    •  
    开工图片











    [ 本帖最后由 麦兜的卡布基诺 于 18-7-6 14:03 编辑 ]




    • 来自 江苏省
    • 精华 0
    • 注册 2006-4-2
    •  
    拆除已刚刚结束






















    • 来自 江苏省
    • 精华 55
    • 注册 2017-2-10
    •  

    恭喜楼主开工大吉~




    • 来自 江苏省
    • 精华 0
    • 注册 2017-5-19
    •  

    欢迎新同学




    • 来自 江苏省
    • 精华 0
    • 注册 2013-9-4
    • 行业 商业贸易
    •  
    • 来自 江苏省
    • 精华 0
    • 注册 2006-4-2
    •  

    自己顶一下




    • 来自 江苏省
    • 精华 0
    • 注册 2012-8-15
    • 行业 工业制造
    •  

    恭喜开工




    • 来自 江苏省
    • 精华 0
    • 注册 2006-4-2
    •  
    效果图










    • 来自 江苏省
    • 精华 0
    • 注册 2006-4-2
    •  
    全景效果

    客餐厅全景请-----【此处为站外链接,请谨慎打开】

    [ 本帖最后由 麦兜的卡布基诺 于 18-7-13 10:43 编辑 ]




    • 来自 江苏省
    • 精华 2
    • 注册 2011-2-14
    • 行业 教育科研
    • 家装达人
    •  

    效果很赞




    • 来自 江苏省
    • 精华 13
    • 注册 2006-8-8
    • 行业 房产建筑
    •  

    恭喜开工





    • 来自 江苏省
    • 精华 0
    • 注册 2007-5-8
    • 行业 IT 通信
    •  


    QUOTE:
    原帖由 xiaopanghai 于 18-7-13 10:55 发表
    效果很赞
    谢谢楼主对我们的关注!




    • 来自 0
    • 精华 0
    • 注册 2011-2-22
    • 行业 教育科研
    •  

    欢迎新童鞋




    • 来自 江苏省
    • 精华 0
    • 注册 2018-6-4
    •  

    恭喜恭喜,,红意硅藻泥半价征集样板间,全房硅藻泥送5平方实木地板~~




    • 来自 江苏省
    • 精华 0
    • 注册 2006-4-2
    •  

    自己再来顶一下对前程公司的前期工作还是很满意的。因为我家要进行窗户改造,砸墙时还是有一定难度的,但工人很负责很细心,很好的完成了此项工作。施工现场也保持的十分整洁




    • 来自 江苏省
    • 精华 0
    • 注册 2006-4-2
    •  

    目前正在比较墙暖和风管机,纠结中,准备菲斯曼的锅炉,格力的风管机。风管机价格很透明,每家都差不多,墙暖差别还是比较大的,施工水平也有差别,正在犹豫用哪家




    • 来自 江苏省
    • 精华 0
    • 注册 2018-5-4
    •  

    恭喜您开业大吉!!!




     174  1/4  1  2  3  4  > 
    查看积分策略说明快速回复主题
    您目前还是游客,请 登录注册
    您目前是游客,本帖已被系统设置了自动关闭,不可回复!

    0/5000字

     
    < >
     

    Powered by Discuz! X 2 0.093877 s 清除 Cookies - 镇江网友之家 - 手机版
    论坛导航 关闭