【项目名称】:观复•景天花园售楼处
【建筑面积】:600㎡
【装修风格】:现代轻奢
【项目性质】:全案定制
【设计单位】:企屋设计
【摄影单位】:ingallery
达芬奇说“简单是终极的复杂”追求简单是本性使然,但“美”却从不简单,关于美的思考早融入每个角落。
方得一传世之作,身处其中,行也安然,坐也安然。
丨一层平面布置图丨

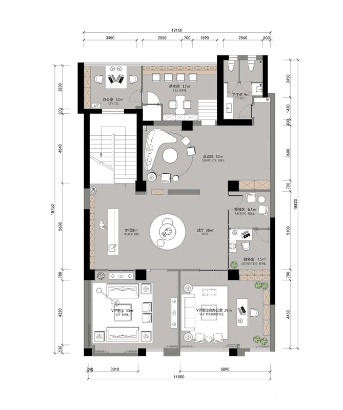
丨二层平面布置图丨

[ 本帖最后由 my0511唐老鸭 于 2019-5-9 14:15 编辑 ]
Second Floor
深入洽谈区
深入洽谈区富有现代感的沙发、艺术灯饰和纹样独特的地毯的搭配,没有繁冗的装饰,
恰到好处的造型,使得每一件物品都呈现出精致的观感,
它们以非常调和的比例在空间细节与画面中,形成让人耳目一新的诗意景观。


VIP室
进入VIP室,设计师以高级灰为主调打造这个相对私密的空间,
流光溢彩的壁灯打破了这种清冽之感,一幅抽象的艺术画简简单单地陈设在端头,悄然地唤起人们阔远又静谧的艺术感知。

灰色调为主调,与黑色融为一体,营造了一个相对静谧的商谈空间。
流光逸雅的饰品、皮质的沙发,表现着艺术融入生活的点滴。



