收藏本站
客户端
扫码下载客户端
官方微信
打开微信扫一扫
登录
|
注册
|
标题
标题
用户
全站首页
|
论坛导航
|
网络问政
|
招聘求职
|
买房租房
|
装修频道
|
生活服务
|
教育
|
相亲
|
亲子
|
美食
|
婚嫁
|
手机客户端
家有学子
|
母婴乐园
梦溪论坛
»
镇江二手房/镇江租房
» 金山 碧桂园滨湖湾联排//婚装未住双车位//江南府邸 正太悠然居 四室三厅
镇江二手房/镇江租房
更新房源:
573
中介发布房产信息、疑问与建议请联系
13236380286
我的房源
我要卖房
我要出租
门面交易
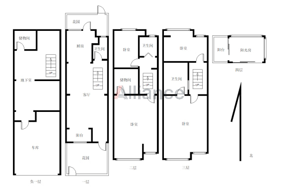
[二手房] 金山 碧桂园滨湖湾联排//婚装未住双车位//江南府邸 正太悠然居 四室三厅
短讯
298
万元
四室三厅
177.98 平方米
16744元/平米
户型
建筑面积
单价
别墅
毛胚房
金山
楼层(共3层)
装修
区域
小区名称:
碧桂园滨湖湾
小区地址:
碧桂园滨湖湾联排//婚装未住双车位//江南府邸 正太悠然居
联系人:
联合房产一部
请微信扫描右侧二维码拨打联系电话
房源信息
2026-1-9 22:45 发布
房屋性质
商品房
建筑结构
框架结构
房龄
5年-10年
所在楼层
1层
基础设施
煤气
独立车库
合用车库
公共车库
宽带网
家具
电话
液化气
有线电视
铝合金窗
铝合金阳台
阁楼
厨房
卫生间
物业管理
防盗门
院子
全明
电器设备
空调
热水器
油烟机
灶具
彩电
洗衣机
冰箱
饮水机
淋浴房
音响
其他说明
更多房源 欢迎来电咨询
联系人
小高 (女)
联系地址
微信同号
联系电话
请微信扫下方二维码拨打
房源图片
周边地图
房价趋势
该中介的推荐房源
碧桂园前排下叠实用200多平//精装设全带地下室汽车库南花园
218
万
127平方米
云开甲第电梯洋房带储藏室车位//精装四室边户//冠城国际
105
万
142.7平方米
中海润泽园一期//四室三卫未住过中央空调地暖全//恒大华府
206
万
153平方米
万科翡翠公园精装未住//三室双卫大阳台//尚书坊美的君兰悦
80
万
116平方米
恒大铂珺二区前排//4室双卫中央空调地暖全//中海润泽园
167
万
142.67平方米
恒大华府一期//精装四室双卫//阳光无遮挡//中海润泽园
185
万
172平方米
恒大华府一期//精装四室双卫//阳光无遮挡//中海润泽园
186
万
172平方米
恒大铂珺花园单门独户//带中央空调地暖精装两房//中海润泽园
73
万
80.88平方米
恒大铂珺花园单门独户//带中央空调地暖精装两房//中海润泽园
73
万
80.88平方米
碧桂园滨湖湾电梯上叠//精装三层带大露台//江山樾金山铭著
230
万
240.02平方米
Powered by
Discuz! X 2
0.021116 s
清除 Cookies
-
镇江网友之家
-
手机版
论坛导航
关闭