收藏本站
客户端
扫码下载客户端
官方微信
打开微信扫一扫
登录
|
注册
|
标题
标题
用户
全站首页
|
论坛导航
|
网络问政
|
招聘求职
|
买房租房
|
装修频道
|
生活服务
|
教育
|
相亲
|
亲子
|
美食
|
婚嫁
|
手机客户端
家有学子
|
母婴乐园
梦溪论坛
»
镇江二手房/镇江租房
» 官塘 8急售滴翠园林清月上叠别墅送阁楼超大露台送储藏室 四室二厅
镇江二手房/镇江租房
更新房源:
629
中介发布房产信息、疑问与建议请联系
13236380286
我的房源
我要卖房
我要出租
门面交易
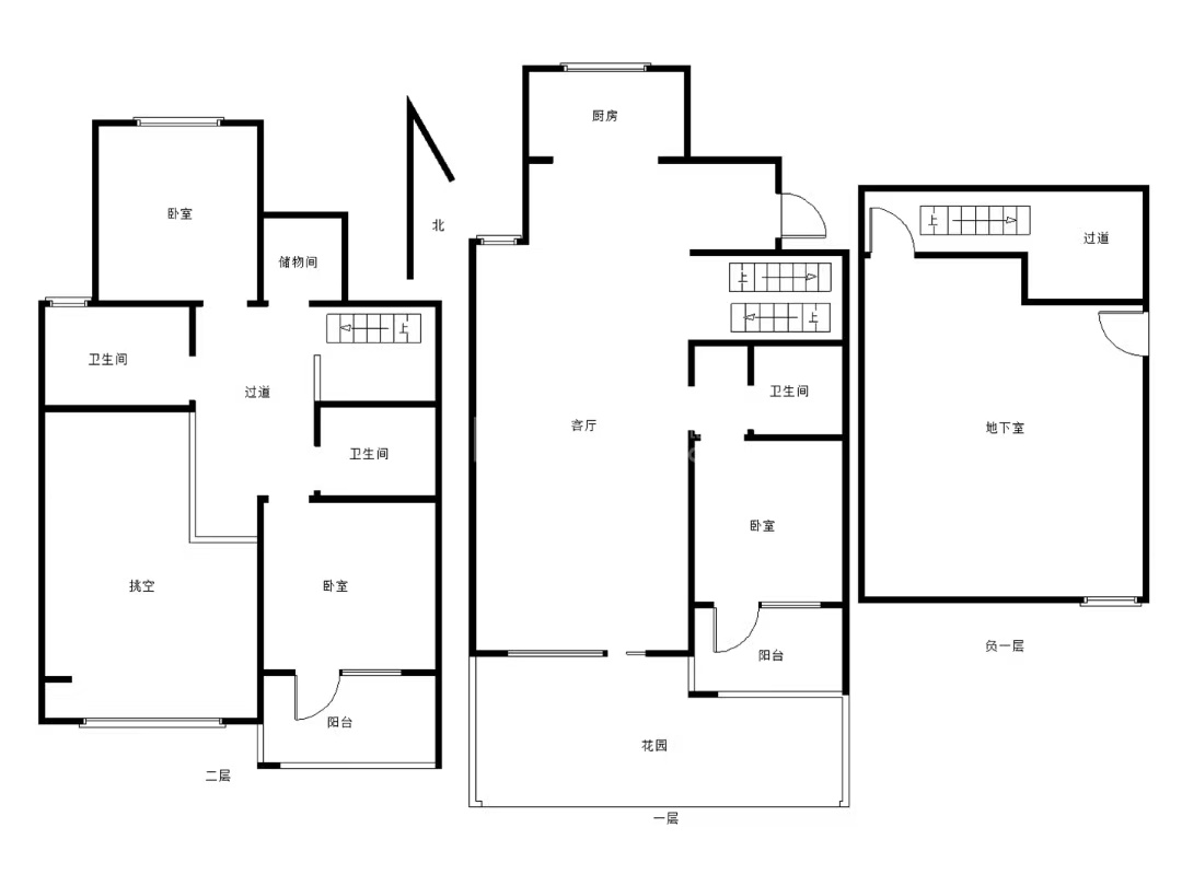
[二手房] 官塘 8急售滴翠园林清月上叠别墅送阁楼超大露台送储藏室 四室二厅
短讯
115
万元
四室二厅
137 平方米
8395元/平米
户型
建筑面积
单价
别墅
毛胚房
官塘
楼层(共)
装修
区域
小区名称:
中南·林清月雅苑
小区地址:
8急售滴翠园林清月上叠别墅送阁楼超大露台送储藏室
联系人:
云鑫房产2
请微信扫描右侧二维码拨打联系电话
房源信息
2026-4-23 18:18 发布
房屋性质
商品房
建筑结构
框架结构
房龄
1年-3年
联系人
苗 (女)
联系地址
添加上面微信了解更多房源信息
联系电话
请微信扫下方二维码拨打
房源图片
周边地图
房价趋势
该中介的推荐房源
8急售镇江一中旁中建大观南区婚装三房双卫双阳台中央空调
88
万
110平方米
8急售稀缺大平层滴翠园林清月户型好南北通透
112.8
万
172平方米
8急售吾悦广场三期君和雅苑精装修三房双阳台
81
万
98平方米
8急售吾悦广场旁融创越秀园融创御园婚装三房双阳台
85
万
98平方米
8急售吾悦广场附近纬五路永隆城市广场精装修电梯小高层
78
万
131平方米
8急售学府路中心地段中建大观北区边户好楼层南北通透
72.8
万
130平方米
8急售江苏大学旁新小区明月澜园一梯一户好楼层
72
万
122平方米
8急售江苏大学旁新小区明月澜园一梯一户好楼层
85
万
138平方米
8急售中南公园物语中南世纪城象山花园精装修三房随时看
55
万
102平方米
8急售珑悦府君和融创吾悦广场超大双阳台楼层好
102
万
128平方米
Powered by
Discuz! X 2
0.025832 s
清除 Cookies
-
镇江网友之家
-
手机版
论坛导航
关闭