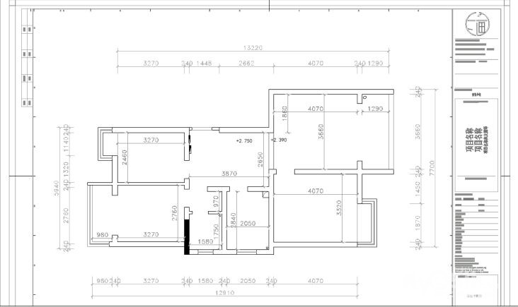
一直想记录总是被各种事情给耽搁下来,现在终于可以提起笔来记录我的装修过程,先开张户型图和平面设计图!
【小区名称】:景天花园
【所在楼层】:5楼
【建筑面积】:98㎡
【装修风格】:美式
【包工方式】:整装
【装修公司】:一画系统装饰
【开工日期】:2017年07月15
- 来自 江苏省
- 精华 0
- 注册 2017-6-22
- 来自 江苏省
- 精华 0
- 注册 2017-6-22
- 来自 江苏省
- 精华 0
- 注册 2017-6-22
- 来自 江苏省
- 精华 0
- 注册 2017-6-22
- 来自 江苏省
- 精华 0
- 注册 2016-6-23
- 来自 江苏省
- 精华 0
- 注册 2017-6-22
- 来自 江苏省
- 精华 0
- 注册 2017-6-22














),阴阳角也处理的很好



