| 标题
快捷导航

精彩推荐:MY0511客户端下载

    • 中信银行镇江分行

    • 公益体彩 乐善人生

    • 鹏龙鸿蒙

    • 天然石材·人造石

    » 梦溪论坛 » 家庭装修 » 记录装潢,品味人生
    家庭装修  >  [装修日记] 记录装潢,品味人生     
    查看: 69684  回复: 234
     235  1/5  1  2  3  4  5  > 
    [装修日记] 记录装潢,品味人生      查看: 69684  回复: 234
    • 来自 江苏省
    • 精华 0
    • 注册 2019-2-22
    •  
    记录装潢,品味人生

    小区名称:长香水岸
    【所在楼层】:7楼
    【建筑面积】:106

    【装修风格】:不一样的新中式
    【包工方式】:全包
    【装修公司】:叁缘堂

    【设计师】   :周小俊
    【现场监理】:王监理
    【装修预算】 :心中有数
      

























                      
    • 来自 江苏省
    • 精华 0
    • 注册 2019-2-22
    •  

    说来惭愧,做为一个曾经在设计界混过几年的人,新房居然交给别人设计装潢。




    • 来自 江苏省
    • 精华 0
    • 注册 2019-2-22
    •  

    本人曾经在某装潢公司混过几年,后辞职去外地发展,这次家中新房装潢,找了几个设计师出图纸,觉得还是叁缘堂的周小俊的设计最符合我的理念,从曾经的内行的角度来看,效果图做的也不错。最终情定叁缘堂。

    [ 本帖最后由 xladd1416 于 2019-5-17 14:56 编辑 ]




    • 来自 江苏省
    • 精华 0
    • 注册 2019-2-22
    •  

    由于人在外地,所以选择全包,当然基础材料和大件主材本人也基本看过了,质量还是不错的。

    [ 本帖最后由 xladd1416 于 2019-5-17 15:12 编辑 ]




    • 来自 江苏省
    • 精华 0
    • 注册 2019-2-22
    •  

    第一次写装潢日记,不太会写,还请版主多多包涵。




    • 来自 江苏省
    • 精华 0
    • 注册 2019-2-22
    •  

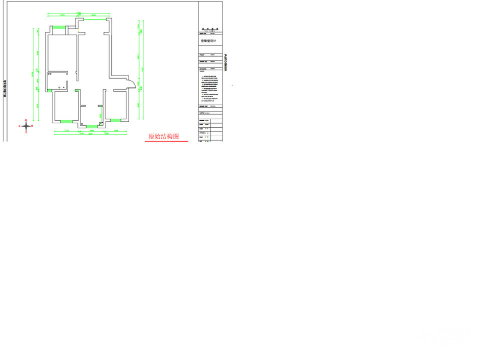
    这是原始结构图,只能说是中规中矩

    [ 本帖最后由 xladd1416 于 2019-5-17 15:12 编辑 ]








    • 来自 江苏省
    • 精华 0
    • 注册 2019-2-22
    •  

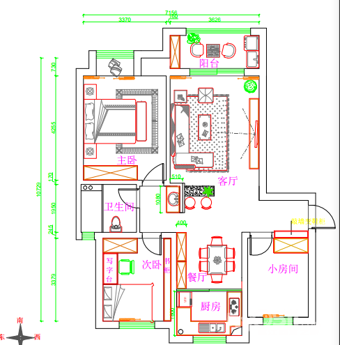
    这是和周总商议后最终确定的平面布置图








    • 来自 江苏省
    • 精华 0
    • 注册 2019-2-22
    •  

    做为一个曾经的设计师,本人自认为还是比较注重设计感的,这个效果图已经是第二稿了,这一稿跟我个人的风格很搭。




    • 来自 江苏省
    • 精华 0
    • 注册 2010-6-15
    • 行业 房产建筑
    •  

    恭喜开贴




    • 来自 江苏省
    • 精华 0
    • 注册 2004-7-27
    •  

    恭喜开贴,大吉大利




    • 来自 江苏省
    • 精华 0
    • 注册 2019-4-8
    • 行业 其它
    •  

    恭喜开帖




    • 来自 江苏省
    • 精华 0
    • 注册 2019-2-22
    •  

    设计是一本书,设计是一个人的经历,是一个人对世界的理解,是对美的感受,对美的感受允许有不同,但需要原创。




    • 来自 江苏省
    • 精华 0
    • 注册 2019-2-22
    •  

    本人认为好的设计是怎么样的呢,你也许会不喜欢这个风格,但是会给你耳目一新的感觉。




    • 来自 江苏省
    • 精华 0
    • 注册 2016-6-7
    •  

    恭喜楼主开工




    • 来自 江苏省
    • 精华 5
    • 注册 2019-3-30
    • 行业 基础设施
    •  

    恭喜开贴




    • 来自 江苏省
    • 精华 0
    • 注册 2016-11-7
    •  

    恭喜开贴!!




    • 来自 江苏省
    • 精华 0
    • 注册 2018-12-12
    • 行业 其它
    •  

    恭喜开帖,期待中




    • 来自 上海
    • 精华 0
    • 注册 2018-5-3
    • 行业 其它
    •  

    恭喜恭喜




    • 来自 江苏省
    • 精华 0
    • 注册 2016-6-7
    •  

    恭喜恭喜,装修大吉




    • 来自 江苏省
    • 精华 0
    • 注册 2019-2-22
    •  

    看了一天帖子才稍微明白一点是怎么回事,不管怎么样先要占楼。




    • 来自 江苏省
    • 精华 0
    • 注册 2019-2-22
    •  

    占楼




    • 来自 江苏省
    • 精华 0
    • 注册 2019-2-22
    •  

    对不起,您两次发表间隔少于 10 秒,请不要灌水!




    • 来自 江苏省
    • 精华 0
    • 注册 2019-2-22
    •  

    占楼




    • 来自 江苏省
    • 精华 0
    • 注册 2019-2-22
    •  

    捞贴




    • 来自 江苏省
    • 精华 0
    • 注册 2019-2-22
    •  

    今天已经开始敲墙了,大概是离开设计界太久了,今天意外的发现装潢公司居然也给工人做起防护措施来了












    • 来自 江苏省
    • 精华 0
    • 注册 2013-5-24
    • 行业 房产建筑
    •  

    恭喜恭喜




    • 来自 江苏省
    • 精华 0
    • 注册 2019-2-22
    •  
    美的冲突

    前面已经说过了,这个效果图是二稿,我很满意,和我想得完全一致,我自己的想法被表现的淋漓尽致。但是周总也有自己的想法,他更喜欢第一稿。这就是所谓的美的冲突




    • 来自 江苏省
    • 精华 0
    • 注册 2019-2-22
    •  

    但是现在又有些纠结,感觉自己的内心也不太安分。所以思来想去还是把第一稿再放上来看看,让大家也给我一些意见。




    • 来自 江苏省
    • 精华 0
    • 注册 2018-3-31
    • 行业 其它
    •  

    恭喜恭喜




    • 来自 江苏省
    • 精华 0
    • 注册 2019-2-22
    •  

    这就是第一稿, 周总喜欢的,中式中带了更多的现代元素,也许是我老了,喜欢更加纯正点的中式




































    • 来自 江苏省
    • 精华 0
    • 注册 2019-4-23
    •  

    一次相见,三生有缘。感谢楼主选择叁缘堂,希望楼主的人生就像叁缘堂的设计一样,每天都有不一样的精彩!




    • 来自 江苏省
    • 精华 0
    • 注册 2018-8-8
    •  

    恭喜恭喜




    • 来自 江苏省
    • 精华 0
    • 注册 2019-2-22
    •  

    今天开始铲墙了,铲墙的师傅姓马,铲墙大概明天就能全部结束




















    • 来自 江苏省
    • 精华 0
    • 注册 2019-2-22
    •  

    总体而言还算满意,前期也去邻居家了解过叁缘堂的工地,该有的都有。




    • 来自 江苏省
    • 精华 0
    • 注册 2019-2-22
    •  

    不知道为什么总觉得有些心绪不宁,我本来也不是一个纠结的人,但是这两个方案始终缠绕在脑子里




    • 来自 江苏省
    • 精华 0
    • 注册 2018-5-27
    •  

    第一稿更好看,应该叫现代新中式,更时尚, 更高级,第二稿中式的纯粹一点,但是就客厅沙发背景和电视背景来看太花了,我感觉比较老一点




    • 来自 江苏省
    • 精华 0
    • 注册 2019-2-22
    •  


    QUOTE:
    原帖由 小小人人儿 于 2019-5-20 10:39 发表
    第一稿更好看,应该叫现代新中式,更时尚, 更高级,第二稿中式的纯粹一点,但是就客厅沙发背景和电视背景来看太花了,我感觉比较老一点
    谢谢,谢谢,我再想想,也许是我老了




    • 来自 江苏省
    • 精华 0
    • 注册 2019-2-22
    •  

    希望0511能与世长存吧,但愿我垂垂老矣的时候还能翻开此贴,露出欣慰的笑容




    • 来自 江苏省
    • 精华 0
    • 注册 2019-2-22
    •  

    请大家踊跃投票,谢谢!http://bbs.my0511.com/f95b-t7240024z

    [ 本帖最后由 xladd1416 于 2019-5-20 16:11 编辑 ]




    • 来自 江苏省
    • 精华 0
    • 注册 2019-2-22
    •  

    经过一天的纠结,还是不忘自己的初心吧




    • 来自 江苏省
    • 精华 0
    • 注册 2019-2-22
    •  

    敲墙铲墙全部结束,我意已决,还是选择第二套方案




















    • 来自 江苏省
    • 精华 0
    • 注册 2019-2-22
    •  

    忙碌的一天终于结束了,累的我什么都不想做,不要问我有没有定好什么没有了,我是全包




    • 来自 江苏省
    • 精华 0
    • 注册 2019-2-22
    •  

    墙固已经刷好了。








    • 来自 江苏省
    • 精华 0
    • 注册 2019-2-22
    •  

    为了省钱,我自己选了一款普通的墙固。立邦的好是好,就是太贵,至于地固则是完全没有必要。




    • 来自 江苏省
    • 精华 0
    • 注册 2019-2-22
    •  

    水电定位。












    • 来自 江苏省
    • 精华 0
    • 注册 2019-2-22
    •  

    水电定位是前期平面布局的时候我和周总一起商量好了的,应该没有什么遗漏吧




    • 来自 江苏省
    • 精华 0
    • 注册 2019-2-22
    •  

    虽然很忙,但这次装潢日记一定要认真写下去。有压力才有动力!




    • 来自 江苏省
    • 精华 0
    • 注册 2018-12-12
    • 行业 其它
    •  
    • 来自 江苏省
    • 精华 0
    • 注册 2019-2-22
    •  

    一回到镇江就下起雨来了,本来约好了周总吃饭,但天气不好估计只能延后了。




    • 来自 江苏省
    • 精华 0
    • 注册 2019-2-22
    •  

    约饭的时候本来说好是周总请客的,但是我有些不好意思,毕竟曾经在设计界混过,还是有几个朋友的,价格还到利润空间已经不大了,所以我说还是我来请客吧




     235  1/5  1  2  3  4  5  > 
    查看积分策略说明快速回复主题
    您目前还是游客,请 登录注册
    您目前是游客,本帖已被系统设置了自动关闭,不可回复!

    0/5000字

     
    < >
     

    Powered by Discuz! X 2 0.089272 s 清除 Cookies - 镇江网友之家 - 手机版
    论坛导航 关闭