
无体验,不装修!
样板房直通车是为即将装修的业主们打造的装修体验式活动
零距离走进各小区正在装修或装修好的样板房
工地进行现场讲解设计/施工知识/答疑解惑
如果您即将准备装修,赶快加入我们吧!

活动时间:2021年6月27日(周日)上午
集合地点:万家基和装饰二楼(学府路欧尚超市店)
集合时间:6月27日上午9:30

【点击图标了解公司详情】
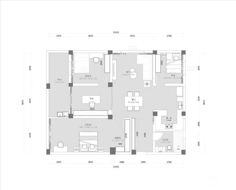
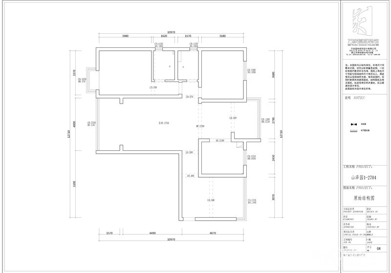
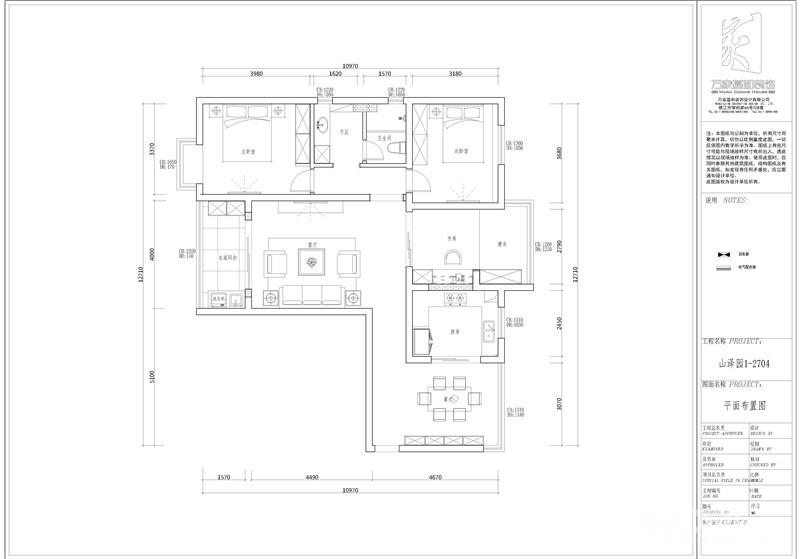
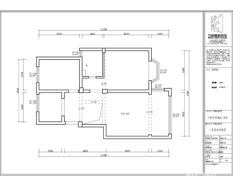
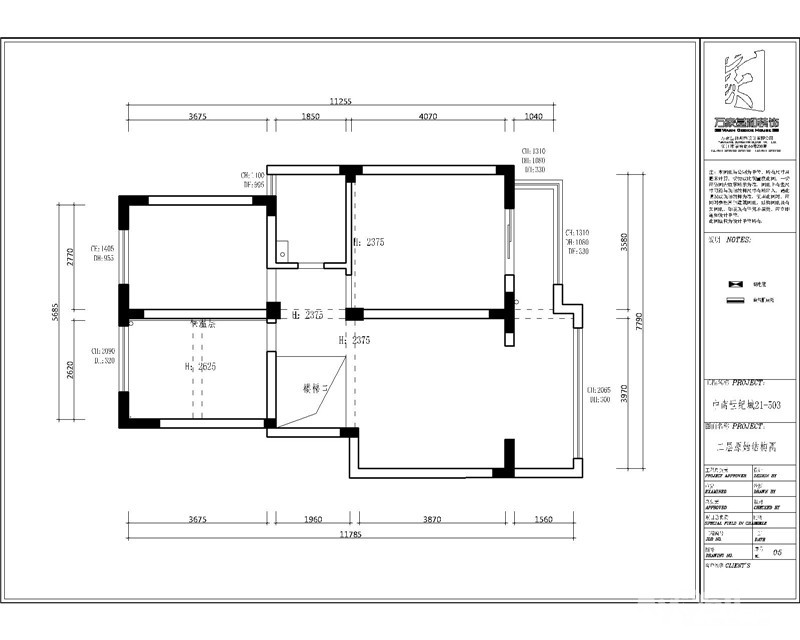
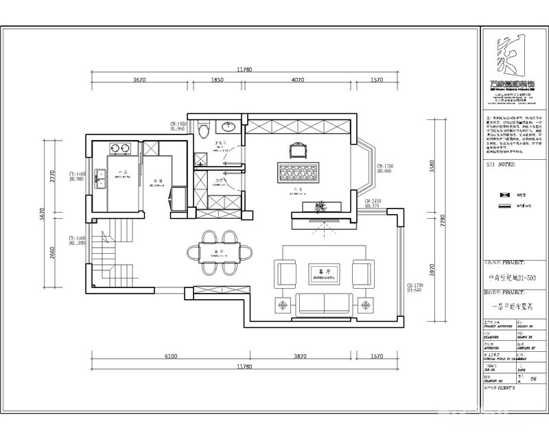
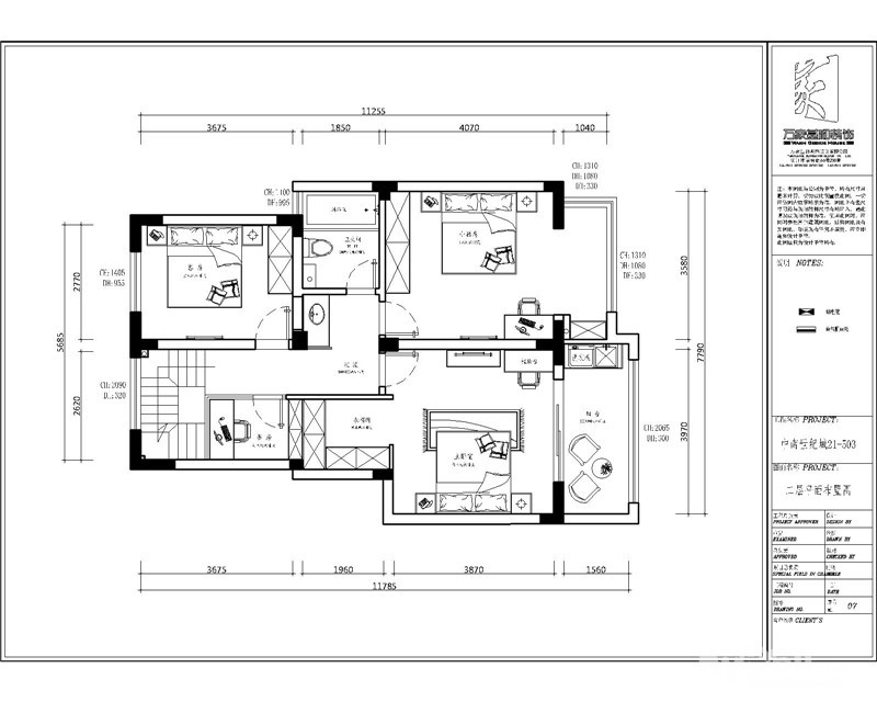
样板房地点及进度:
山泽园[水电结束]
中南世纪城叠加[全包整体完工]
山泽园[全包整体完工]
中南公园物语[精装改造全包整体完工] 参观路线:万家基和装饰学府店——山泽园(水电)——山泽园/中南公园物语/中南世纪城(大家可根据自己的意向选择成品样板房进行参观)——万家基和
【报名方式】:QQ报名:
电话报名:0511—88985388
微信报名:

[ 本帖最后由 my0511菲雪 于 2021-6-23 08:23 编辑 ]































