收藏本站
客户端
扫码下载客户端
官方微信
打开微信扫一扫
登录
|
注册
|
标题
标题
用户
全站首页
|
论坛导航
|
网络问政
|
招聘求职
|
买房租房
|
装修频道
|
生活服务
|
教育
|
相亲
|
亲子
|
美食
|
婚嫁
|
手机客户端
家有学子
|
母婴乐园
快捷导航
精彩推荐:
MY0511客户端下载
中信银行镇江分行
公益体彩 乐善人生
鹏龙鸿蒙
天然石材·人造石
»
梦溪论坛
»
家庭装修
» [2023万家基和杯美家养成记]凌家湾——打造理想中的家(现代简约)
家庭装修
>
[装修日记]
[2023万家基和杯美家养成记]凌家湾——打造理想中的家(现代简约)
查看: 9622 回复: 19
快速回复
返回家庭装修
[装修日记]
[2023万家基和杯美家养成记]凌家湾——打造理想中的家(现代简约)
查看: 9622 回复: 19
上一主题
|
下一主题
gongwy
来自 江苏省
精华 0
注册 2012-6-11
行业 IT 通信
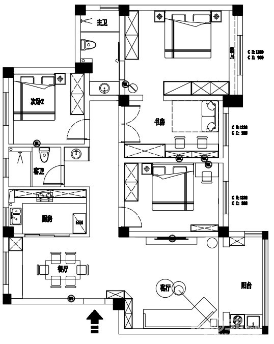
[2023万家基和杯美家养成记]凌家湾——打造理想中的家(现代简约)
【
小区名称】:凌家湾
【所在楼层】:3楼
【建筑面积】:130㎡
【装修风格】:现代简约
【包工方式】:半包
【装修公司】:东墨
【设 计 师】:鲁美女
【项目经理】:海哥
【开工日期】:2023年4月8日(9点18分)
【装修预算】:看情况
[
本帖最后由 my0511菲雪 于 2023-4-20 15:51 编辑
]
已有
0
人打赏
2023-4-19 19:37
1楼
找工作,就上MY0511!
只看该作者
分享本楼
gongwy
来自 江苏省
精华 0
注册 2012-6-11
行业 IT 通信
开工大吉!!!
2023-4-19 20:09
2楼
0511家装频道:本地家居服务平台,数万业主共同选择
只看该作者
分享本楼
gongwy
来自 江苏省
精华 0
注册 2012-6-11
行业 IT 通信
---发自iPhone 12---
2023-4-19 20:15
3楼
MY0511相亲,一分钟注册,享一辈子幸福!
只看该作者
分享本楼
gongwy
来自 江苏省
精华 0
注册 2012-6-11
行业 IT 通信
搞起来
---发自iPhone 12---
2023-4-19 20:22
4楼
找工作,就上MY0511!
只看该作者
分享本楼
gongwy
来自 江苏省
精华 0
注册 2012-6-11
行业 IT 通信
铲顶
---发自iPhone 12---
2023-4-19 20:23
5楼
买房、卖房、租房上镇江房产网!
只看该作者
分享本楼
gongwy
来自 江苏省
精华 0
注册 2012-6-11
行业 IT 通信
砌墙开始,地面比较干净
---发自iPhone 12---
2023-4-19 20:25
6楼
0511家装频道:本地家居服务平台,数万业主共同选择
只看该作者
分享本楼
王露
来自 江苏省
精华 0
注册 2010-7-24
行业 工业制造
半包还是全包?多少钱!一个小区的!
---发自华为---
2023-4-19 20:50
7楼
找工作,就上MY0511!
只看该作者
分享本楼
gongwy
来自 江苏省
精华 0
注册 2012-6-11
行业 IT 通信
QUOTE:
原帖由
王露
于 2023-4-19 20:50 发表
半包还是全包?多少钱!一个小区的!
半包
---发自iPhone 12---
2023-4-19 20:56
8楼
买房、卖房、租房上镇江房产网!
只看该作者
分享本楼
my0511菲雪
版主
来自 江苏省
精华
6
注册 2013-5-21
行业 IT 通信
恭喜LZ参赛成功!加油坚持更新
有其他小伙伴需要报名的微信或者站内短信版主哦~
2023-4-20 15:50
9楼
MY0511相亲,一分钟注册,享一辈子幸福!
只看该作者
分享本楼
gongwy
来自 江苏省
精华 0
注册 2012-6-11
行业 IT 通信
开槽完毕。之前铲顶花了不少时间,非常感谢朱总
---发自iPhone 12---
2023-5-31 08:41
10楼
买房、卖房、租房上镇江房产网!
只看该作者
分享本楼
gongwy
来自 江苏省
精华 0
注册 2012-6-11
行业 IT 通信
继续发
---发自iPhone 12---
2023-5-31 15:57
11楼
找工作,就上MY0511!
只看该作者
分享本楼
gongwy
来自 江苏省
精华 0
注册 2012-6-11
行业 IT 通信
水电开始施工
---发自iPhone 12---
2023-6-5 09:07
12楼
[联宇电脑] 电脑组装\维修\升级\企业单位电脑维护!
只看该作者
分享本楼
gongwy
来自 江苏省
精华 0
注册 2012-6-11
行业 IT 通信
水电差不多搞好了
---发自iPhone 12---
2023-6-6 11:43
13楼
[联宇电脑] 电脑组装\维修\升级\企业单位电脑维护!
只看该作者
分享本楼
gongwy
来自 江苏省
精华 0
注册 2012-6-11
行业 IT 通信
瓦工进场,师傅蛮好的,很负责,手艺也好
---发自iPhone 12---
2023-6-20 11:35
14楼
买房、卖房、租房上镇江房产网!
只看该作者
分享本楼
gongwy
来自 江苏省
精华 0
注册 2012-6-11
行业 IT 通信
做防水
---发自iPhone 12---
2023-6-24 18:33
15楼
0511家装频道:本地家居服务平台,数万业主共同选择
只看该作者
分享本楼
gongwy
来自 江苏省
精华 0
注册 2012-6-11
行业 IT 通信
墙面瓷砖贴贴好了
---发自iPhone 12---
2023-6-27 08:54
16楼
0511家装频道:本地家居服务平台,数万业主共同选择
只看该作者
分享本楼
gongwy
来自 江苏省
精华 0
注册 2012-6-11
行业 IT 通信
做防水
---发自iPhone 12---
2023-6-28 19:35
17楼
买房、卖房、租房上镇江房产网!
只看该作者
分享本楼
gongwy
来自 江苏省
精华 0
注册 2012-6-11
行业 IT 通信
瓷砖贴的差不多了
---发自iPhone 12---
2023-7-3 11:38
18楼
找工作,就上MY0511!
只看该作者
分享本楼
gongwy
来自 江苏省
精华 0
注册 2012-6-11
行业 IT 通信
木工进场
---发自iPhone 12---
2023-7-24 10:07
19楼
[联宇电脑] 电脑组装\维修\升级\企业单位电脑维护!
只看该作者
分享本楼
gongwy
来自 江苏省
精华 0
注册 2012-6-11
行业 IT 通信
柜子是找木工师傅打的,师傅手艺很好,还给了我很多好的建议
---发自iPhone 12---
2023-7-28 13:30
20楼
0511家装频道:本地家居服务平台,数万业主共同选择
只看该作者
分享本楼
返回家庭装修
快速回复主题
游客
您目前还是游客,请
登录
或
注册
您目前是游客,本帖已被系统设置了自动关闭,不可回复!
文明交流,理性发言
0/5000字
<
>
请在打开的新窗口中支付完成打赏
我已完成支付打赏
支付失败重新支付
其他金额
打赏金额:
元
确定
支付打赏
提 现
打赏人
打赏金额(元)
打赏时间
Powered by
Discuz! X 2
0.075923 s
清除 Cookies
-
镇江网友之家
-
手机版
论坛导航
关闭
吃喝玩乐
饮食男女
镇江钓友之家
菜菜鸟户外
镇江单车俱乐部
镜头里的镇江
畅游天下
猫狗总动员
视觉Coffeeshop摄影部落
花鸟鱼虫
婚姻.亲子.家庭
家有学子
谈婚论嫁
女性天地
母婴乐园
婚姻生活
梦溪佳缘
装修
家庭装修
装修招标
镇江室内设计师交流
装修商家直通车
你好,镇江!
百姓话题
我要买房
0511爱心家园
市场监管•12315热线
分类信息
生活服务
闲置转让
镇江二手房/镇江租房
镇江招聘求职
教育培训
镇江二手车
商铺厂房写字楼租售
宠物市场
运动健身
卡券交易
电脑维修升级
杂货铺
其他分类信息区
兴趣爱好
HiFi音响江城沙龙
镇江市美术家协会
我爱模型
车友俱乐部
车迷之家
汽车驾培中心
运动俱乐部
镇江市冬泳、铁人三项协会
聚焦足球
镇江羽毛球
镇江乒乓球协会
镇江网球协会
镇江市自行车运动协会
热爱篮球
动力机车
合作栏目
维权热线
天翼时代
色觉影像摄影工作室
站务区
疑问与建议
网络问政
市政府工作部门
垂直管理部门
党群工作部门
其他重点单位
辖市(区)