随着中央空调和新风施工的钻孔、开槽结束,开始进入设备安装阶段!中央空调三分产品,七分安装!其安装工艺、规范与否直接影响到后期的使用效果!
上午我到房子里进行了施工检查,并对照我学习的相关施工标准对已经完成的部分施工情况进行了一一核查!
一、空调室内机吊装
1、室内机采取防尘保护:为了保证机器清洁,在出场时空调内机的进、回风口都进行了封装处理。

2、室内机定位、安装:
汉宸空调内机首先用一个拉筋进行定位,保证机器下表面与顶面距离25CM,然后通过其他3个拉筋,利用水平仪进行检查调整,保证机器下表面纵向、横向均水平,即整个下表面保持水平。

3、室内机的安装位置符合标准:
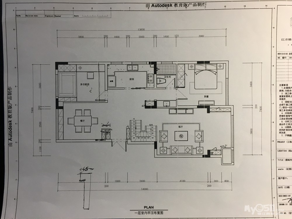
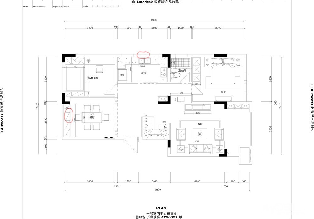
房间内的空调内机均在保证最小的操作空间下,内机靠墙安装,保证另一端的距离尽量大(即保证空调下方衣柜的宽度最大);

客、餐厅的空调内机两墙居中。在现场检查时发现,客厅的空调内机不在正中,立即向李总进行了询问!原来现场的空调内机的回风格栅是检回一体,即检修口也在回风格栅内,回风格栅长度是大于回风口长度(一般进风格栅和回风口长度一致),而在视觉上要求的是进、回风格栅居中布置,所以真正的进、回风口就不居中了!



二、冷媒配管施工:
1、冷媒管及时封口、并保温:


2、铜管保温严密,不能有裸露,现场除了露在外面的冷媒管均包了保温,穿墙管也保温齐全。

3、冷媒管支持间距应≤1000mm

4、冷媒管走向应保持横平竖直:

5、分歧管水平安装、前后保持500mm以上的直管:



三、冷凝水管施工
1、冷凝水管保温层的厚度应≥9mm:

2、冷凝水管上安装排气孔:为了保证冷凝水排水顺畅,防止冷凝水管气阻,在冷凝水管(拐角、下落处)设置排气孔,汉宸于工现场为我做了一个排气帽。



[ 本帖最后由 XPLWJ 于 2020-4-12 00:04 编辑 ]














































































































自己住的房子,前期多多考虑,后期减少后患!当然找到靠谱的商家是前提!































































,也可能是你的不幸!












































