收藏本站
客户端
扫码下载客户端
官方微信
打开微信扫一扫
登录
|
注册
|
标题
标题
用户
全站首页
|
论坛导航
|
网络问政
|
招聘求职
|
买房租房
|
装修频道
|
生活服务
|
教育
|
相亲
|
亲子
|
美食
|
婚嫁
|
手机客户端
家有学子
|
母婴乐园
梦溪论坛
»
镇江二手房/镇江租房
» 丹徒新区 宝龙商圈 魏玛假日联排别墅 史无前例的价格 手慢无 五室及以上
镇江二手房/镇江租房
更新房源:
161
中介发布房产信息、疑问与建议请联系
13236380286
我的房源
我要卖房
我要出租
门面交易
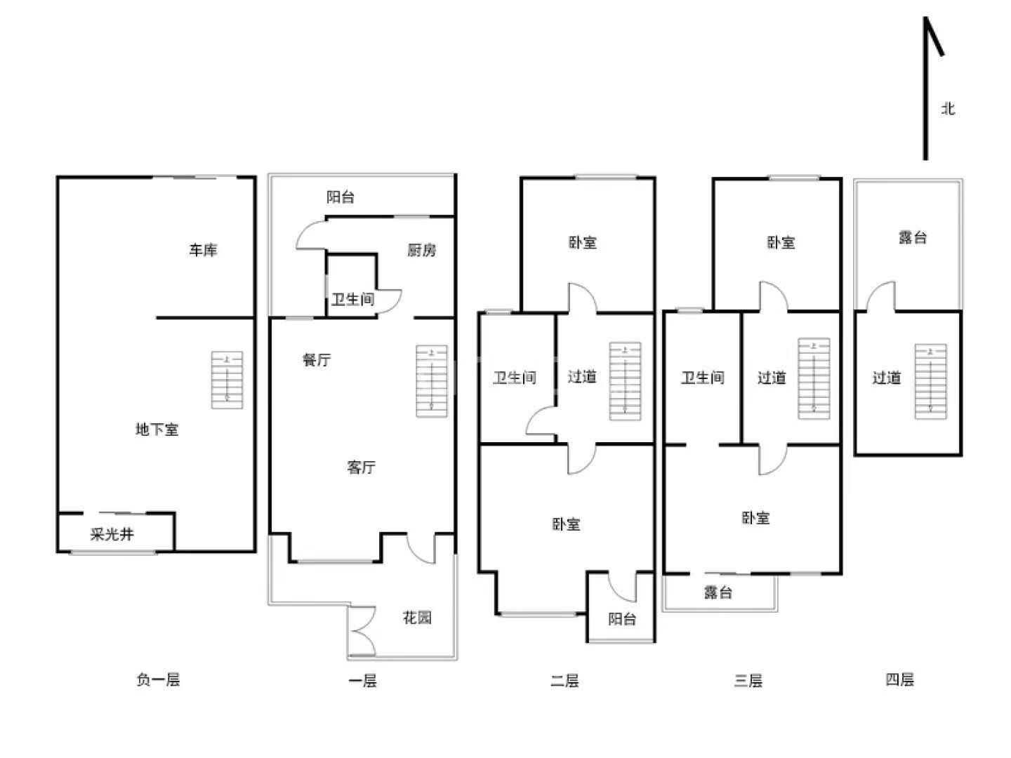
[二手房] 丹徒新区 宝龙商圈 魏玛假日联排别墅 史无前例的价格 手慢无 五室及以上
短讯
90
万元
五室及以上
199 平方米
4523元/平米
户型
建筑面积
单价
别墅
简易装修
丹徒新区
楼层(共3.5层)
装修
区域
小区名称:
魏玛假日
小区地址:
宝龙商圈 魏玛假日联排别墅 史无前例的价格 手慢无
联系人:
好美佳房产7
请微信扫描右侧二维码拨打联系电话
房源信息
2025-10-29 10:26 发布
房屋性质
商品房
建筑结构
框架结构
房龄
3年-5年
所在楼层
1层
其他说明
随时看房 微信同号
联系人
小王 (女)
联系电话
请微信扫下方二维码拨打
房源图片
周边地图
房价趋势
该中介的推荐房源
急卖 华山街茅以升小学旁 尚上城精装三房 装修保养新
49.9
万
110平方米
全新小区绿地翠园 下叠南花园 5米挑高地下室 最便宜一套
159
万
166平方米
福临广场最便宜一套毛坯 有车位 单价只要4000多
59.8
万
134平方米
南站旁 华府天地 精装小高四房 户型好楼层佳 绝对捡漏价
59.8
万
129平方米
一线湖景房 电梯洋房顶复 8房4卫大露台 双入户可做两套
128
万
260平方米
龙山庄园多层一楼南北花园半地下室 户型好 毛坯已改造 捡漏价
79
万
150平方米
银泰茗园下叠大花园 独立车库 实用面积300平 捡漏价
128
万
249平方米
宝龙商圈 魏玛假日联排别墅 史无前例的价格 手慢无
90
万
199平方米
Powered by
Discuz! X 2
0.015768 s
清除 Cookies
-
镇江网友之家
-
手机版
论坛导航
关闭