收藏本站
客户端
扫码下载客户端
官方微信
打开微信扫一扫
登录
|
注册
|
标题
标题
用户
全站首页
|
论坛导航
|
网络问政
|
招聘求职
|
买房租房
|
装修频道
|
生活服务
|
教育
|
相亲
|
亲子
|
美食
|
婚嫁
|
手机客户端
家有学子
|
母婴乐园
梦溪论坛
»
镇江二手房/镇江租房
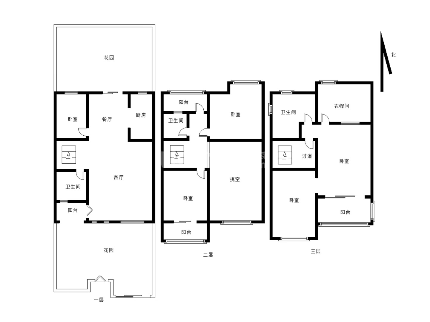
» 万达周边 纯别墅区 联排挑空大客厅 南北花园 自带汽库 朴园和院 景天 五室及以上
镇江二手房/镇江租房
更新房源:
1
中介发布房产信息、疑问与建议请联系
13236380286
我的房源
我要卖房
我要出租
门面交易
[二手房] 万达周边 纯别墅区 联排挑空大客厅 南北花园 自带汽库 朴园和院 景天 五室及以上
短讯
395
万元
五室及以上
226 平方米
17478元/平米
户型
建筑面积
单价
别墅
毛胚房
万达周边
楼层(共3层)
装修
区域
小区名称:
朴园
小区地址:
纯别墅区 联排挑空大客厅 南北花园 自带汽库 朴园和院 景天
联系人:
联合房产七
请微信扫描右侧二维码拨打联系电话
房源信息
2026-1-21 21:36 发布
房屋性质
商品房
建筑结构
框架结构
房龄
5年-10年
所在楼层
1层
其他说明
朴园和院 纯别墅区 联排挑空大客厅 南北花园 自带汽库 随时看房15106109518此房我亲自勘察
联系人
朱铭丽 (女)
联系地址
诚信,专一 ,服务热情
联系电话
请微信扫下方二维码拨打
房源图片
周边地图
房价趋势
该中介的推荐房源
赛珍珠景区旁 电梯洋房毛坯4房 四开间朝南 朱方崇实里太古城
258
万
166平方米
江南岸1.2叠豪装150多万短住 送地下室和车位 有花园万科
468
万
203平方米
金山铭著 电梯洋房 环绕花园300平 精装4房有地暖 樾林苑
185
万
137平方米
纯别墅区 联排挑空大客厅 南北花园 自带汽库 朴园和院 景天
395
万
226平方米
电梯洋房 环绕花园300平精装3房 双阳台 金山铭著 江山樾
156
万
115平方米
西津渡旁 云台居 电梯洋房 豪装短住 带露台 太古城朱方崇实
268
万
136.5平方米
中浩国际 电梯小高 精装3房2卫 保养好一梯一户 国信 华都
90
万
156平方米
青年广场旁 中南上悦城 电梯洋房 豪装未住 全屋智能 奥园
162
万
139平方米
御珑湖 电梯小高 精装3房 短住1月 中央空调地暖 万科美的
88
万
106平方米
美的君兰悦 电梯洋房精装3房2卫双阳台空调带地暖万科翡翠公园
125
万
123平方米
Powered by
Discuz! X 2
0.015558 s
清除 Cookies
-
镇江网友之家
-
手机版
论坛导航
关闭