收藏本站
客户端
扫码下载客户端
官方微信
打开微信扫一扫
登录
|
注册
|
标题
标题
用户
全站首页
|
论坛导航
|
网络问政
|
招聘求职
|
买房租房
|
装修频道
|
生活服务
|
教育
|
相亲
|
亲子
|
美食
|
婚嫁
|
手机客户端
家有学子
|
母婴乐园
梦溪论坛
»
镇江二手房/镇江租房
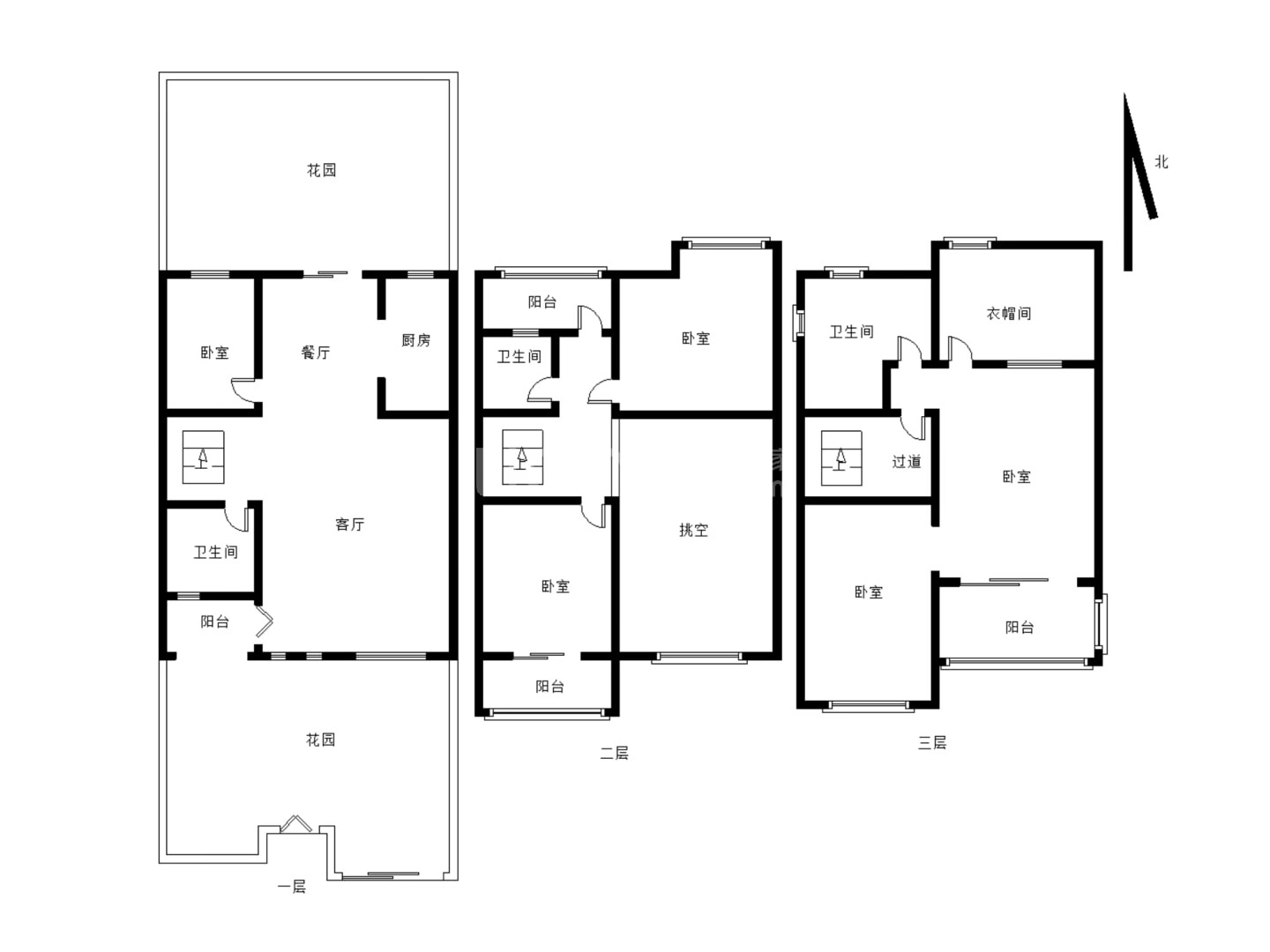
» 万达周边 纯别墅区 联排挑空大客厅 南北花园 自带汽库 朴园和院 景天 五室及以上
镇江二手房/镇江租房
更新房源:
807
中介发布房产信息、疑问与建议请联系
13236380286
我的房源
我要卖房
我要出租
门面交易
[二手房] 万达周边 纯别墅区 联排挑空大客厅 南北花园 自带汽库 朴园和院 景天 五室及以上
短讯
395
万元
五室及以上
226 平方米
17478元/平米
户型
建筑面积
单价
别墅
毛胚房
万达周边
楼层(共3层)
装修
区域
小区名称:
朴园
小区地址:
纯别墅区 联排挑空大客厅 南北花园 自带汽库 朴园和院 景天
联系人:
联合房产七
请微信扫描右侧二维码拨打联系电话
房源信息
2026-3-5 22:45 发布
房屋性质
商品房
建筑结构
框架结构
房龄
5年-10年
所在楼层
1层
其他说明
朴园和院 纯别墅区 联排挑空大客厅 南北花园 自带汽库 随时看房15106109518此房我亲自勘察
联系人
朱铭丽 (女)
联系地址
诚信,专一 ,服务热情
联系电话
请微信扫下方二维码拨打
房源图片
周边地图
房价趋势
该中介的推荐房源
电梯小高凤凰楼层 有车位 精装4房 美的城三期 万科翡翠公园
129
万
132平方米
精装短住1.2叠加 南花园 中央空调 地暖 金山铭著 江山樾
306
万
149平方米
万科蓝山 联排别墅 豪装短住空调地暖 送车位和地下室 御珑湖
525
万
206平方米
西津渡旁 双拼大别墅 环绕花园200多平送3车位和地面负一层
580
万
240平方米
北固湾 双拼别墅 南北大花园 送地下室和双车位 江山名州
580
万
362平方米
山林名墅豪装短住1.2叠加 南北花园 送地下室和汽库 朴园
450
万
275平方米
纯别墅区 联排挑空大客厅 南北花园 自带汽库 朴园和院 景天
395
万
226平方米
悦然广场旁 美的君兰悦 电梯洋房 精装3房 有地暖 万科
143
万
122平方米
体育馆旁 电梯小高层 毛坯大平层 亚东紫檀 御龙湖 万科
163
万
207平方米
内独栋联排别墅 南北大花园 送双车位和地下室山林名墅
598
万
380平方米
Powered by
Discuz! X 2
0.017626 s
清除 Cookies
-
镇江网友之家
-
手机版
论坛导航
关闭