| 标题
快捷导航

精彩推荐:MY0511客户端下载

    • 中信银行镇江分行

    • 公益体彩 乐善人生

    • 鹏龙鸿蒙

    • 天然石材·人造石

    » 梦溪论坛 » 家庭装修 » 皇家大宅设计 » 大港——港城上府8栋102
    皇家大宅设计  >  [在建工地] 大港——港城上府8栋102     
    查看: 2788  回复: 7
    [在建工地] 大港——港城上府8栋102      查看: 2788  回复: 7
    • 来自 江苏省
    • 精华 0
    • 注册 2014-3-26
    •  
    大港——港城上府8栋102

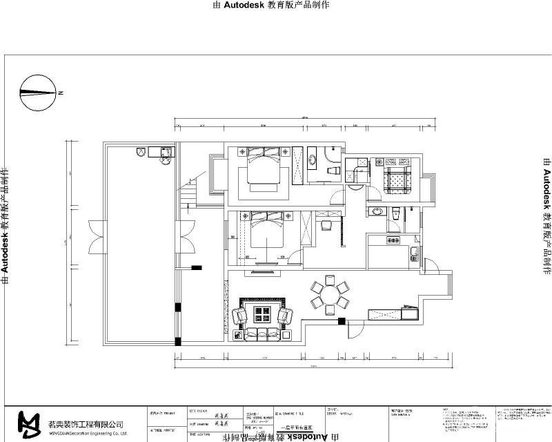
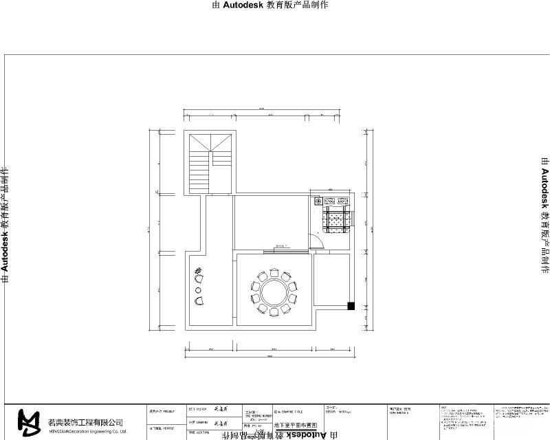
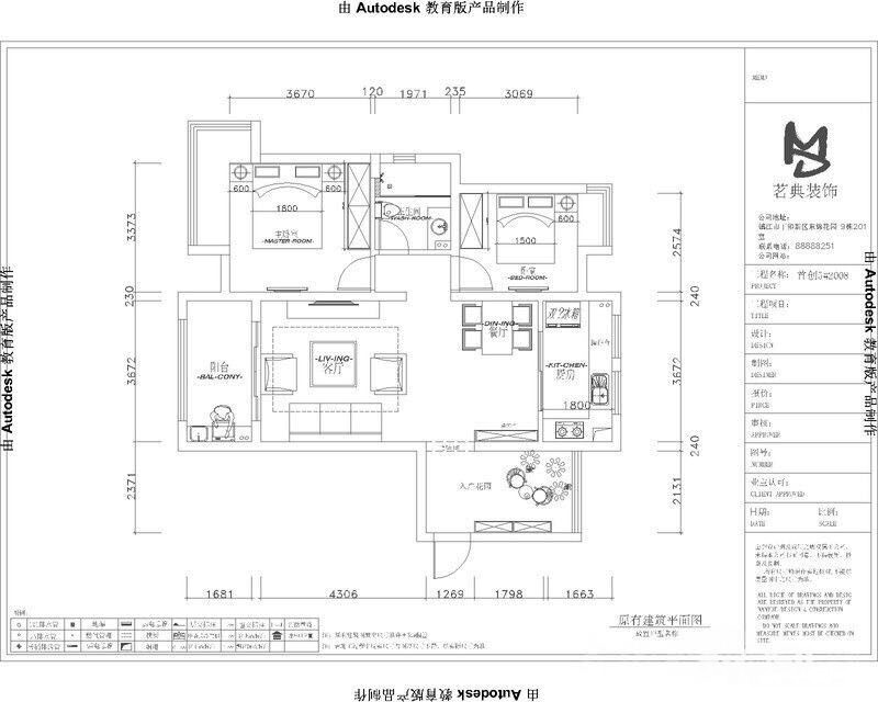
    港城上府8栋102【此处为站外链接,请谨慎打开】港城尚府8栋102开工港城上府8栋102【   业   主  】:束先生
    【建筑面积】:140平方带地下室
    【工程造价】:半包8w

    【装修风格】:  欧式
    【 设 计 师 】:吴长秀
    【项目经理】:吴工


    【户型图】






    【效果图】




    【开工图】
















    公司地址: 镇江店:丁卯纬五路东锦花园小区入口二楼
                           大港店:海德公园枫丹苑2栋  
             


                                              联系电话:13775549557 小陆           

                                               Q Q号码:330996646(暗号:装饰)

                                               微信号 :   ly5807



    家装咨询微信








    [ 本帖最后由 茗典装饰客服 于 18-4-22 17:46 编辑 ]





                      
    • 来自 0
    • 精华 0
    • 注册 2015-5-27
    •  
    XMSJ






    • 来自 江苏省
    • 精华 0
    • 注册 2014-3-26
    •  

    家装咨询扫一扫








    • 来自 江苏省
    • 精华 0
    • 注册 2014-3-26
    •  

    水电验收图
































    • 来自 江苏省
    • 精华 0
    • 注册 2014-3-26
    •  

    木工吊顶工艺
















    • 来自 江苏省
    • 精华 0
    • 注册 2014-3-26
    •  

    施工进行中




















    • 来自 江苏省
    • 精华 0
    • 注册 2014-3-26
    •  

    保洁后,温馨小家初展现 。




























    • 来自 江苏省
    • 精华 0
    • 注册 2014-3-26
    •  

    茗典装饰求骚扰热线:24H家装咨询小陆
    QQ:330996646
    手机:13775549557 (免费量房、出方案、陪唠嗑……)
    公司地址:大港海德公园2栋




    查看积分策略说明快速回复主题
    您目前还是游客,请 登录注册
    您目前是游客,本帖已被系统设置了自动关闭,不可回复!

    0/5000字

     
    < >
     

    Powered by Discuz! X 2 0.028949 s 清除 Cookies - 镇江网友之家 - 手机版
    论坛导航 关闭