| 标题
快捷导航

精彩推荐:MY0511客户端下载

    • 中信银行镇江分行

    • 公益体彩 乐善人生

    • 鹏龙鸿蒙

    • 天然石材·人造石

    » 梦溪论坛 » 家庭装修 » 华浔品味装饰 » 孔雀城——简欧——《华浔品味装饰设计总监:夏雨》
    华浔品味装饰  >  [在建工地] 孔雀城——简欧——《华浔品味装饰设计总监:夏雨》     
    查看: 7834  回复: 1
    [在建工地] 孔雀城——简欧——《华浔品味装饰设计总监:夏雨》      查看: 7834  回复: 1
    • 来自 江苏省
    • 精华 659
    • 注册 2010-4-5
    • 行业 其它
    •  
    孔雀城——简欧——《华浔品味装饰设计总监:夏雨》

    【业主】:左女士     


    【设计风格】:简 欧


    【设计师】:夏 雨  

    开工啦

    户型展示
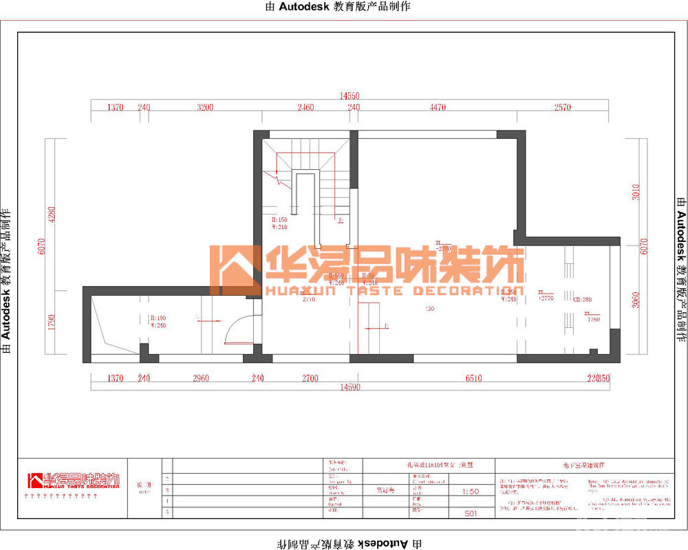
    地下室原始图:


    一楼原始图:

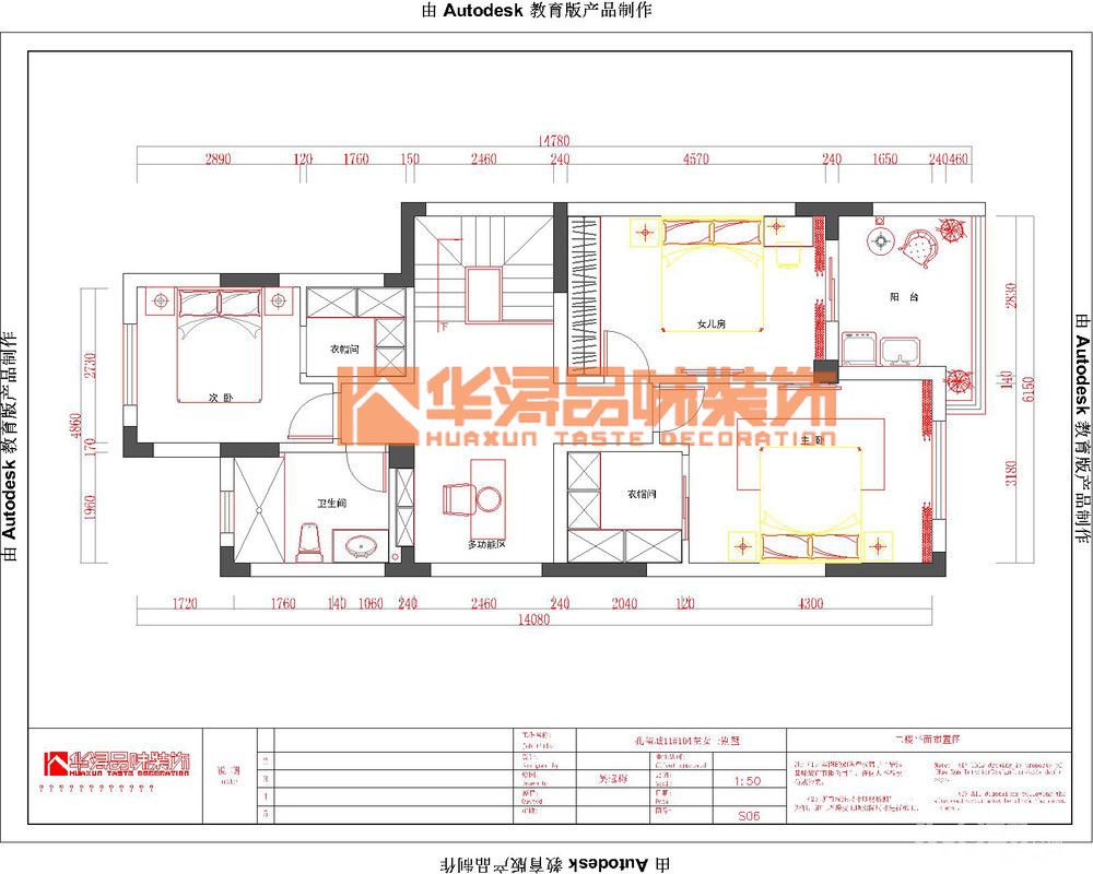
    二楼原始图:

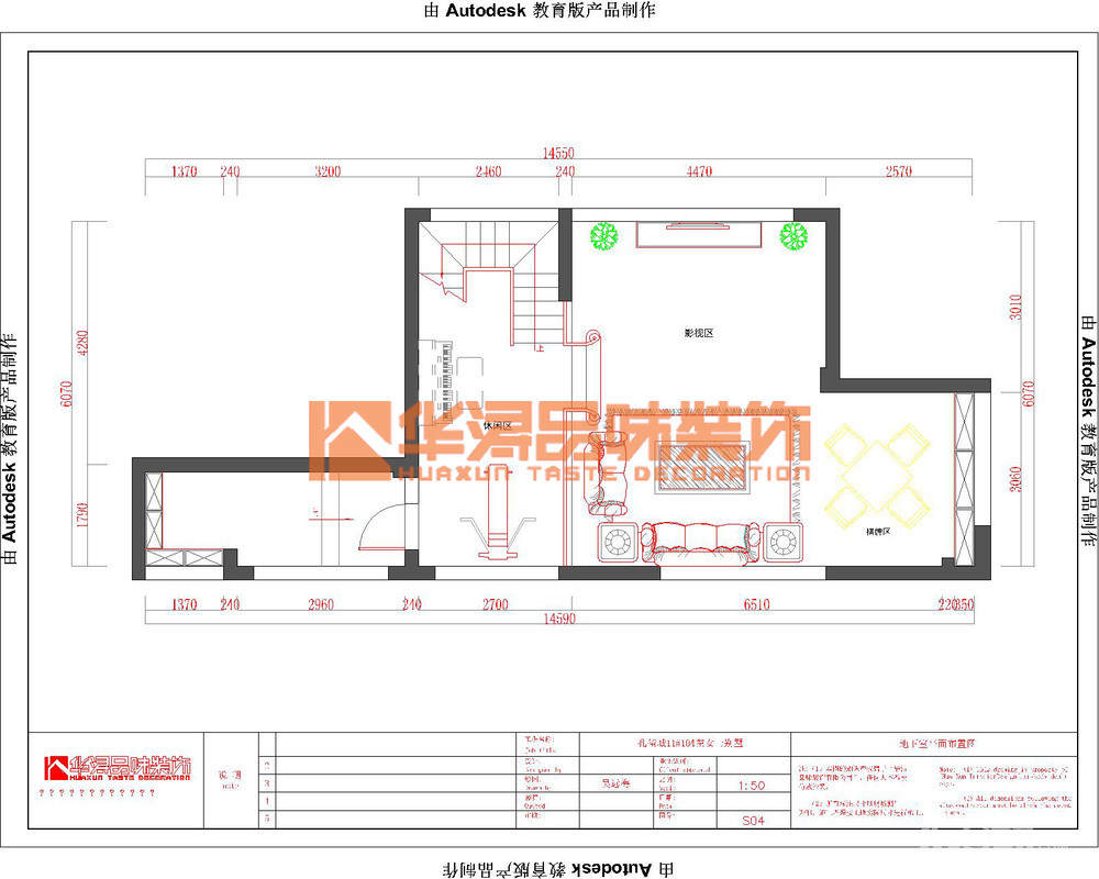
    地下室方案设计图:

    一楼方案设计图:

    二楼方案设计图:

    效果图欣赏
    客厅效果图:

    地下室效果图:

    卧室效果图:



    [ 本帖最后由 广东华浔装饰 于 17-7-25 15:28 编辑 ]





                      
    • 来自 江苏省
    • 精华 0
    • 注册 2017-3-14
    •  



    [ 本帖最后由 广东华浔装饰 于 17-7-25 15:27 编辑 ]




    查看积分策略说明快速回复主题
    您目前还是游客,请 登录注册
    您目前是游客,本帖已被系统设置了自动关闭,不可回复!

    0/5000字

     
    < >
     

    Powered by Discuz! X 2 0.063108 s 清除 Cookies - 镇江网友之家 - 手机版
    论坛导航 关闭